3.841 m² Wohnbaugrundstück in Teisendorf-Weildorf – ideal für Bauträger
1.900.000 €
Kaufpreis
immobilien.de Nr.: 9506738
Objektnummer: D-932
Kaufpreis
| Kaufpreis | 1.900.000 € |
| Maklerprovision | 3,57 % inkl. Mwst. |
Wohnfläche, Grundstück & Bausubstanz
| Grundstücksfläche | 3.841 m² |
| Verfügbar ab | sofort |
Beschreibung der Immobilie
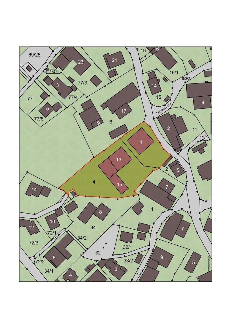
Zum Verkauf steht ein großzügiges Wohnbaugrundstück im Ortsteil Weildorf der Marktgemeinde Teisendorf (Flur-Nr.: 4). Mit einer Gesamtfläche von ca. 3.841 m² bietet das Grundstück ein attraktives Entwicklungspotenzial für ein Wohnbauprojekt in gefragter Lage im Berchtesgadener Land.
Das Grundstück ist derzeit noch bebaut. Auf dem Areal befinden sich ein ehemaliger Gasthof sowie zwei größere Nebengebäude. Eine Neubebauung eröffnet somit vielfältige Möglichkeiten für eine zukünftige Projektentwicklung.
Für das Grundstück liegt nach Auskunft des zuständigen Bauamtes kein rechtskräftiger Bebauungsplan vor. Eine mögliche Bebauung richtet sich daher nach § 34 BauGB und hat sich an der umliegenden Bebauung zu orientieren. Die bestehende Nachbarbebauung weist eine mehrgeschossige Bauweise (EG + 1 + 2 + DG) auf, sodass grundsätzlich eine entsprechende Bebauung denkbar ist – vorbehaltlich der baurechtlichen Genehmigung.
Durch die großzügige Grundstücksfläche sowie die vorhandene Umgebungsbebauung bietet sich das Areal insbesondere für Projektentwickler, Bauträger oder Investoren an, die ein attraktives Wohnbauprojekt in ruhiger und gleichzeitig gut angebundener Lage realisieren möchten.
Für weitere Informationen oder zur Abstimmung eines Besichtigungstermins stehen wir Ihnen jederzeit gerne zur Verfügung.
Das Grundstück ist derzeit noch bebaut. Auf dem Areal befinden sich ein ehemaliger Gasthof sowie zwei größere Nebengebäude. Eine Neubebauung eröffnet somit vielfältige Möglichkeiten für eine zukünftige Projektentwicklung.
Für das Grundstück liegt nach Auskunft des zuständigen Bauamtes kein rechtskräftiger Bebauungsplan vor. Eine mögliche Bebauung richtet sich daher nach § 34 BauGB und hat sich an der umliegenden Bebauung zu orientieren. Die bestehende Nachbarbebauung weist eine mehrgeschossige Bauweise (EG + 1 + 2 + DG) auf, sodass grundsätzlich eine entsprechende Bebauung denkbar ist – vorbehaltlich der baurechtlichen Genehmigung.
Durch die großzügige Grundstücksfläche sowie die vorhandene Umgebungsbebauung bietet sich das Areal insbesondere für Projektentwickler, Bauträger oder Investoren an, die ein attraktives Wohnbauprojekt in ruhiger und gleichzeitig gut angebundener Lage realisieren möchten.
Für weitere Informationen oder zur Abstimmung eines Besichtigungstermins stehen wir Ihnen jederzeit gerne zur Verfügung.
Sonstige Informationen
Wir sind für Sie da!
Besuchen Sie unser großes Immobilienbüro im Zentrum von Freilassing, Münchener Str. 10.
Büroöffnungszeiten - ohne Terminvereinbarung:
Montag bis Donnerstag von 9 bis 12 Uhr
Geschäftszeiten:
Montag bis Freitag: 8 bis 19 Uhr
Samstag: 9 bis 14 Uhr
Sonntag geschlossen
Wir freuen uns auf Ihre Anfrage - Ihren Anruf!
Besuchen Sie unser großes Immobilienbüro im Zentrum von Freilassing, Münchener Str. 10.
Büroöffnungszeiten - ohne Terminvereinbarung:
Montag bis Donnerstag von 9 bis 12 Uhr
Geschäftszeiten:
Montag bis Freitag: 8 bis 19 Uhr
Samstag: 9 bis 14 Uhr
Sonntag geschlossen
Wir freuen uns auf Ihre Anfrage - Ihren Anruf!
Karte wird geladen...
Objektstandort
Weildorf 11,13,15
83317 Teisendorf
- Bayern
Lage & Infrastruktur
Objektstandort
Weildorf 11,13,15
83317 Teisendorf
- Bayern
Weildorf ist ein idyllischer Gemeindeteil des Marktes Teisendorf im oberbayerischen Landkreis Berchtesgadener Land und liegt im malerischen Rupertiwinkel – einer der schönsten Regionen im Alpenvorland. Die Umgebung ist geprägt von sanften Hügeln, weitläufigen Wiesen und einer beeindruckenden Bergkulisse. Unweit erhebt sich der Teisenberg (1.333 m), der nördlichste Tausender der Deutschen Alpen, während der Högl (827 m) im Osten die natürliche Grenze Richtung Salzburg bildet.
Die Ortschaft befindet sich in verkehrsgünstiger Lage zwischen den Städten Freilassing und Traunstein und bietet eine attraktive Kombination aus ländlicher Lebensqualität und guter Erreichbarkeit der umliegenden Städte.
Das Zentrum von Teisendorf liegt nur rund 5 Kilometer entfernt und bietet eine hervorragende Infrastruktur mit zahlreichen Einkaufsmöglichkeiten, Restaurants, Ärzten, Apotheken sowie vielfältigen Freizeit- und Kulturangeboten. Direkt in Weildorf befindet sich zudem ein beliebter Bäcker, der für seine täglich frisch und traditionell hergestellten Backwaren bekannt ist.
Pendler profitieren von der guten Verkehrsanbindung: Die Autobahn A8 München–Salzburg ist in etwa 15 Kilometern erreichbar und ermöglicht eine schnelle Verbindung in Richtung Salzburg, Rosenheim und München.
Auch für Familien ist die Lage besonders attraktiv. Ein Kindergarten befindet sich nur etwa 450 Meter entfernt, die Grundschule ist sogar in rund 400 Metern erreichbar. Weiterführende Schulen wie die Realschule in Freilassing sowie das Gymnasium in Laufen liegen ebenfalls in gut erreichbarer Entfernung.
Insgesamt überzeugt die Lage durch eine gelungene Kombination aus ruhigem, naturnahem Wohnen und einer sehr guten Infrastruktur – ideal für Familien, Berufspendler und alle, die die Nähe zur Natur schätzen und dennoch auf eine gute Anbindung nicht verzichten möchten.
Die Ortschaft befindet sich in verkehrsgünstiger Lage zwischen den Städten Freilassing und Traunstein und bietet eine attraktive Kombination aus ländlicher Lebensqualität und guter Erreichbarkeit der umliegenden Städte.
Das Zentrum von Teisendorf liegt nur rund 5 Kilometer entfernt und bietet eine hervorragende Infrastruktur mit zahlreichen Einkaufsmöglichkeiten, Restaurants, Ärzten, Apotheken sowie vielfältigen Freizeit- und Kulturangeboten. Direkt in Weildorf befindet sich zudem ein beliebter Bäcker, der für seine täglich frisch und traditionell hergestellten Backwaren bekannt ist.
Pendler profitieren von der guten Verkehrsanbindung: Die Autobahn A8 München–Salzburg ist in etwa 15 Kilometern erreichbar und ermöglicht eine schnelle Verbindung in Richtung Salzburg, Rosenheim und München.
Auch für Familien ist die Lage besonders attraktiv. Ein Kindergarten befindet sich nur etwa 450 Meter entfernt, die Grundschule ist sogar in rund 400 Metern erreichbar. Weiterführende Schulen wie die Realschule in Freilassing sowie das Gymnasium in Laufen liegen ebenfalls in gut erreichbarer Entfernung.
Insgesamt überzeugt die Lage durch eine gelungene Kombination aus ruhigem, naturnahem Wohnen und einer sehr guten Infrastruktur – ideal für Familien, Berufspendler und alle, die die Nähe zur Natur schätzen und dennoch auf eine gute Anbindung nicht verzichten möchten.
Kontaktanfrage senden
Über den Anbieter
Alfred Huber Immobilien
Münchener Str. 10
83395 Freilassing
Kontakt
| Telefon | 00498654494046 |
| Mobil | 00491728956085 |
| Fax | 00498654494047 |
| Website | www.ImmoHuber.de |
Ansprechpartner/in
Herr Alfred Huber
Weitere Angebote des Anbieters
7
3.841 m² Wohnbaugrundstück in Teisendorf-Weildorf – ...
Grundstück
83317 Teisendorf
Zum Verkauf steht ein großzügiges Wohnbaugrundstück im Ortsteil Weildorf der Marktgemeinde Teisendorf (Flur-Nr.: 4). Mit einer Gesamtfläche von ca. 3.841 m² bietet das Grundstück ein attraktives Entwicklungspotenzial ...
1.900.000 €
Kaufpreis
3.841 m²
Grundstücksfläche
20
Exklusive 2-Zimmer-Gartenwohnung mit Terrasse & ...
Wohnung
5142 Eggelsberg
Diese exklusive 2-Zimmer-Gartenwohnung in Eggelsberg vereint großzügiges Wohnen, moderne Architektur und eine hochwertige Ausstattung auf rund 102 m² Wohnfläche. Die Immobilie überzeugt durch ein durchdachtes ...
489.000 €
Kaufpreis
102 m²
Wohnfläche
2
Zimmer
12
Solide Altersvorsorge für junge Anleger - vermietete 2 ...
Wohnung
83395 Freilassing
Diese charmante Wohnung befindet sich in einer sehr gepflegten Wohnanlage im beliebten Süden/Osten von Freilassing. Das Gebäude verfügt über einen Aufzug und ist dank einer Auffahrrampe am Hauseingang barrierearm ...
178.000 €
Kaufpreis
45 m²
Wohnfläche
2
Zimmer
17
Vermietete und gepflegte 2-Zimmer-Wohnung mit Balkon ...
Wohnung
83395 Freilassing
Wir freuen uns, Ihnen diese charmante Etagenwohnung in der Von-Weber-Straße 10 in Freilassing anbieten zu können. Diese gepflegte Etagenwohnung (1. OG) zum Kauf bietet Ihnen eine gute Gelegenheit, Wohnen in einem ...
210.000 €
Kaufpreis
54 m²
Wohnfläche
2
Zimmer
4
Attraktive Büroräume im Herzen von Freilassing – Nur ...
Büro / Praxen
83395 Freilassing
Hier vermieten wir eine gepflegte Bürofläche inmitten der Fußgängerzone von Freilassing. Die Immobilie umfasst 2 Büroräume, 2 Toiletten, einen Abstellraum, und ein Foyer. Die Räume bieten ausreichend Raum für kreative ...
616 €
Kaltmiete (netto)
77 m²
Gesamtfläche