Wohnen in bester Lage
1.180.000 €
Kaufpreis
172 m²
Wohnfläche
5
Zimmer
immobilien.de Nr.: 9505712
Objektnummer: Grafing5
Kaufpreis
| Kaufpreis | 1.180.000 € |
Wohnfläche, Grundstück & Bausubstanz
| Wohnfläche | 172 m² |
| Grundstücksfläche | 550 m² |
| Zimmer | 5 |
| Verfügbar ab | keine Angabe |
| Zustand | Projektiert |
Energie
| Energieausweistyp | Bedarfsausweis |
| Energieeffizienzklasse | A+ |
| Energietyp | KfW-40 |
| Endenergiebedarf | 14.00 |
| Heizungsart | Fußbodenheizung |
| Wesentlicher Energieträger | Strom |
| Energieträger/Befeuerung | Luft-Wärme-Pumpe |
Beschreibung der Immobilie
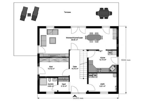
Diese exklusive Stadtvilla mit 5 Zimmern und einer Wohnfläche von 172 m² bietet Ihnen modernen Wohnkomfort auf zwei Etagen. Das großzügige Grundstück mit 550 m² in Grafing bietet ausreichend Platz für Ihre Familie und vielfältige Gestaltungsmöglichkeiten. Die Villa verfügt über vier Schlafzimmer, zwei elegante Badezimmer mit Dusche, Wanne und Fenster sowie ein zusätzliches Gäste-WC. Das offene Raumkonzept ermöglicht eine flexible Grundrissgestaltung, die ganz auf Ihre Bedürfnisse abgestimmt wird - von der Anzahl der Räume bis hin zur Wahl einer Dachterrasse. Mit STREIF bauen Sie Ihr Traumhaus, das sowohl optisch als auch funktional höchsten Ansprüchen gerecht wird und sich harmonisch in die Ortslage einfügt.
Ausstattungsmerkmale
| Anzahl der Etagen im Haus | 2 |
| Bad | 2 |
| Bad | Dusche, Wanne, Fenster |
| Boden | Fliesen, Parkett |
| Barrierefrei |
Die Stadtvilla ist hochwertig ausgestattet mit edlen Fliesen und Parkettböden, die nicht nur durch ihre ästhetische Wirkung überzeugen, sondern auch besonders pflegeleicht und langlebig sind. Die Beheizung erfolgt effizient und umweltfreundlich über eine moderne Wärmepumpe, die für ein angenehmes Raumklima sorgt und Energiekosten reduziert. Das Gebäude erfüllt den KfW40-Standard, was für eine hervorragende Energieeffizienz und nachhaltiges Wohnen steht. Die zwei Badezimmer sind mit hochwertigen Sanitärobjekten ausgestattet, und das Gäste-WC bietet zusätzlichen Komfort. Die Kombination aus qualitativ hochwertigen Materialien und moderner Haustechnik garantiert ein behagliches und zukunftssicheres Zuhause.
Sonstige Informationen
Das Haus wird in der Ausbaustufe 4 - Schlüsselfertig errichtet, inklusive Wand- und Bodenbelägen sowie Zimmertüren, sodass Sie Ihr neues Zuhause ohne zusätzlichen Aufwand beziehen können. Diese Ausbaustufe bietet Ihnen den Vorteil, alles aus einer Hand zu erhalten und die Zeitvorteile der STREIF-Bauweise optimal zu nutzen. Abhängig von Ihrer individuellen Ausstattung liegt der Preis bei diesem Projekt bei etwa 381.371 EUR. STREIF bietet Ihnen zudem verschiedene Ausbaustufen und flexible Dienstleistungspakete, mit denen Sie durch Eigenleistungen erhebliche Kosten sparen können. Ihre persönliche Bauberatung vor Ort unterstützt Sie umfassend bei der Planung und Umsetzung Ihres Traumhauses.
Karte wird geladen...
Objektstandort
85567 Grafing
Lage & Infrastruktur
Objektstandort
85567 Grafing
Die Stadtvilla befindet sich nach Aufbau in der begehrten Ortslage von Grafing, die mit einer hervorragenden Infrastruktur überzeugt. In unmittelbarer Nähe finden Sie eine Apotheke, Bahnhof und Bushaltestellen, die eine bequeme Mobilität gewährleisten. Für den täglichen Bedarf stehen Einkaufscenter, Grundschule, Kindergarten sowie weiterführende Schulen zur Verfügung. Freizeitmöglichkeiten wie Fitnessstudios, ein Golfplatz, ein Reitplatz, Spielplatz und ausgedehnte Waldgebiete bieten vielfältige Erholungs- und Sportangebote für die ganze Familie. Die Lage vereint somit urbanen Komfort mit naturnahem Wohnen.
Kontaktanfrage senden
Über den Anbieter
STREIF Haus GmbH
Josef-Streif-Straße 1
54595 Weinsheim
Kontakt
| Telefon | +49 (0) 65 51.12-00 |
| Mobil | +49 1590 1954233 |
| Website | www.streif.de |
Ansprechpartner/in
Herr Pascal Karbstein
Weitere Angebote des Anbieters
33
***Barrierefreies Wohnen: Ihr Traum-Bungalow für ...
Haus
38108 Braunschweig
Entdecken Sie den Charme und die Freiheit, die Ihnen ein individuell geplanter Bungalow von STREIF bietet. Mit einer Wohnfläche von 121,29 m², verteilt auf 4 großzügige Zimmer, lässt dieser Bungalow keine Wünsche offen ...
900.755 €
Kaufpreis
121,29 m²
Wohnfläche
4
Zimmer
9
Vorankündigung - Wohnen next Level by STREIF DHH
Haus
53844 Troisdorf
Hochwertiges Effizienzhaus-40-PLUS >> Planung nach modernsten Wohnkriterien.
649.800 €
Kaufpreis
149 m²
Wohnfläche
6
Zimmer
8
-inkl. Grundstück-Ihre neue STREIF Doppelhaushälfte in ...
Haus
38108 Braunschweig
Der Preis bezieht sich auf das Haus inkl. Baunebenkosten und einschließlich Grundstück. Die Grunderwerbsteuer fällt nur auf die Grundstückskosten an. Herzlich willkommen bei STREIF, Ihrem zuverlässigen Partner für den ...
620.000 €
Kaufpreis
140 m²
Wohnfläche
4
Zimmer
10
SOFORT BEBAUBAR: Baureifes Exklusiv-Grundstück in ...
Haus
88662 Überlingen
Hören Sie auf zu warten und fangen Sie an zu bauen! In einer der begehrtesten Lagen von Überlingen bieten wir Ihnen dieses baureife Grundstück an. Die Planungssicherheit ist bereits inklusive: Realisieren Sie hier Ihre ...
1.361.450 €
Kaufpreis
170 m²
Wohnfläche
7
Zimmer
6
IM DOPPELPACK AUF GUTE NACHBARSCHAFT
Haus
15366 Hoppegarten
STREIF-Häuser sind Energiesparhäuser. Jedes STREIF-Haus wird im Standard bereits als Energieeffizienzhaus KfW 40 EE* gebaut. (* In Abhängigkeit von Gebäudestandort, Gebäudeausrichtung, Fensterflächenanteile usw. können ...
559.990 €
Kaufpreis
115 m²
Wohnfläche
4
Zimmer