Luxuriöser Bungalow im Stadtteil von St. Wendel !
413.000 €
Kaufpreis
113 m²
Wohnfläche
5
Zimmer
immobilien.de Nr.: 9502675
Objektnummer: 251090A020-260309
Kaufpreis
| Kaufpreis | 413.000 € |
| Stellplatz Garage Kaufpreis | 9.000 € |
Wohnfläche, Grundstück & Bausubstanz
| Wohnfläche | 113 m² |
| Grundstücksfläche | 450 m² |
| Zimmer | 5 |
| Baujahr | 2026 |
| Verfügbar ab | nach Vereinbarung |
| Zustand | Erstbezug |
Energie
| Energieausweistyp | Verbrauch |
| Baujahr (laut Energieausweis) | 2026 |
| Energieeffizienzklasse | A+ |
| Energietyp | Niedrigenergie, Neubaustandard, KfW-40 |
| Energieverbrauchkennwert | 33.00 kWh/(m²*a) |
| Heizungsart | Zentralheizung |
| Wesentlicher Energieträger | Strom |
| Energieträger/Befeuerung | Luft-Wärme-Pumpe |
Beschreibung der Immobilie
Wohnen auf einer Ebene !
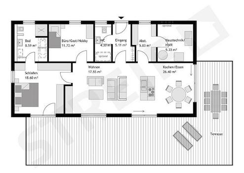
Der Bungalow zeichnet sich durch eine klassische Hausarchitektur mit Walmdach aus. Die Räume sind lichterfüllt geplant. Die Grundrissgestaltung ist für Singles, Paare oder eine Kleinfamilie mit einem Kind perfekt geeignet. Bauartbedingt bringt der Bungalow einen Mehrwert in Sachen Wohnkomfort mit. Der Wohn-/Ess- und Kochbereich ist auf 38,42 m² großzügig angelegt. Ein großes Schlafzimmer mit viel Platz, ein weiterer Raum, der als Kinderzimmer/Büro oder Hobby-/Gästebereich vorgesehen ist, ein Gäste-WC sowie ein Haustechnik-/Hauswirtschaftsraum runden das Raumangebot ab. Eine Garage kann optional ausgeführt werden.
Objektart: Bungalow, 1-geschossig
Hausmaße: 11,83 m x 9,33 m
Der Bungalow zeichnet sich durch eine klassische Hausarchitektur mit Walmdach aus. Die Räume sind lichterfüllt geplant. Die Grundrissgestaltung ist für Singles, Paare oder eine Kleinfamilie mit einem Kind perfekt geeignet. Bauartbedingt bringt der Bungalow einen Mehrwert in Sachen Wohnkomfort mit. Der Wohn-/Ess- und Kochbereich ist auf 38,42 m² großzügig angelegt. Ein großes Schlafzimmer mit viel Platz, ein weiterer Raum, der als Kinderzimmer/Büro oder Hobby-/Gästebereich vorgesehen ist, ein Gäste-WC sowie ein Haustechnik-/Hauswirtschaftsraum runden das Raumangebot ab. Eine Garage kann optional ausgeführt werden.
Objektart: Bungalow, 1-geschossig
Hausmaße: 11,83 m x 9,33 m
Ausstattungsmerkmale
| Anzahl der Etagen im Haus | 1 |
| Küche | Offene Küche |
| Bad | 1 |
| Bad | Dusche, Wanne, Fenster |
| Boden | Fliesen, Stein, Teppich, Parkett, Fertigparkett, Laminat, Dielen, Kunststoff, Linoleum, Marmor, Granit |
| Terrassen | 1 |
| Barrierefrei | |
| Garage/Stellplätze | 1 |
Erstklassige Materialien warten darauf, Ihr Eigen zu werden. Wir verbauen für Sie ausschließlich Produkte von namhaften Herstellern in bester Qualität. Und das Beste, Sie haben die Möglichkeit, durch Eigenleistung beim Innenausbau die Finanzierungsquote zu verbessern und dadurch eine Finanzierung gestalten zu können, die es Ihnen in Zukunft leicht macht, anstatt Miete in Ihr eigenes Haus zu investieren. Fragen Sie uns einfach nach unseren Möglichkeiten im Finanzierungsbereich.
Das Haus wird in Niedrigenergiebauweise KfW 40 gebaut.
Die niedrigen Heizkosten inklusive Warmwasseraufbereitung erreichen wir durch eine Wärmepumpe in Verbindung mit einer kontrollierten Be-und Entlüftungsanlage mit Wärmerückgewinnung.
Sämtliche für den Innenausbau erforderlichen Materialien in Handwerkerqualität sind im Preis enthalten.
Sie können den Innenausbau teilweise selbst durchführen und dadurch zusätzliches Eigenkapital bilden oder die Arbeiten stufenweise bis zur einzugsfertigen Erstellung bei uns beauftragen.
Die zum Einsatz kommenden Materialien beziehen wir ausschließlich von namhaften Herstellern.
Thomas Heitz 0160 7038141 oder thomas.heitz@streif.de
Das Haus wird in Niedrigenergiebauweise KfW 40 gebaut.
Die niedrigen Heizkosten inklusive Warmwasseraufbereitung erreichen wir durch eine Wärmepumpe in Verbindung mit einer kontrollierten Be-und Entlüftungsanlage mit Wärmerückgewinnung.
Sämtliche für den Innenausbau erforderlichen Materialien in Handwerkerqualität sind im Preis enthalten.
Sie können den Innenausbau teilweise selbst durchführen und dadurch zusätzliches Eigenkapital bilden oder die Arbeiten stufenweise bis zur einzugsfertigen Erstellung bei uns beauftragen.
Die zum Einsatz kommenden Materialien beziehen wir ausschließlich von namhaften Herstellern.
Thomas Heitz 0160 7038141 oder thomas.heitz@streif.de
Sonstige Informationen
Wahlweise kann Ihr Haus in den Ausbaustufen "AUSBAUFERTIG" oder "FASTFERTIG" oder FASTFERTIG PLUS" bis hin zu "SCHLÜSSELFERTIG" geplant werden.
Wir ermitteln in der Bedarfsanalyse gemeinsam mit Ihnen den gewünschten Fertigstellungsgrad und kalkulieren den entsprechenden Preis für Sie.
Abgesehen von den Ausbaustufen bestimmen Sie ebenso die technische und optische Ausstattung ganz nach Ihren Vorstellungen und Wünschen.
Diese ersten Gespräche und die Erstellung eines Angebotes sind für Sie kostenlos.
Ich freue mich schon jetzt auf unseren ersten gemeinsamen Termin damit wir mit den ersten Schritten beginnen können.
Thomas Heitz 0160 7038141 oder thomas.heitz@streif.de
Wir ermitteln in der Bedarfsanalyse gemeinsam mit Ihnen den gewünschten Fertigstellungsgrad und kalkulieren den entsprechenden Preis für Sie.
Abgesehen von den Ausbaustufen bestimmen Sie ebenso die technische und optische Ausstattung ganz nach Ihren Vorstellungen und Wünschen.
Diese ersten Gespräche und die Erstellung eines Angebotes sind für Sie kostenlos.
Ich freue mich schon jetzt auf unseren ersten gemeinsamen Termin damit wir mit den ersten Schritten beginnen können.
Thomas Heitz 0160 7038141 oder thomas.heitz@streif.de
Karte wird geladen...
Objektstandort
66606 St. Wendel
Lage & Infrastruktur
Objektstandort
66606 St. Wendel
Das Grundstück liegt in ruhiger Randlage von Remmesweiler.
Das Haus ist auf einem realen Baugrundstück geplant oder auf einem Grundstück in einer Planungsphase. Das Grundstück erwerben Sie direkt vom Eigentümer. Der Preis des Grundstücks ist im Angebotspreis bereits eingerechnet.
Bitte haben Sie Verständnis dafür, dass wir ohne ein persönliches Gespräch keine Grundstücksdaten weiterleiten können.
Gern sind wir bei der Wahl Ihres Traumgrundstückes behilflich!
Natürlich können wir ihren Haustraum auch auf einem anderen Grundstück realisieren, lassen Sie sich dazu in einem unverbindlichen Gespräch zu Ihrem Bauvorhaben beraten.
Thomas Heitz 0160/7038141 oder thomas.heitz@streif.de
Das Haus ist auf einem realen Baugrundstück geplant oder auf einem Grundstück in einer Planungsphase. Das Grundstück erwerben Sie direkt vom Eigentümer. Der Preis des Grundstücks ist im Angebotspreis bereits eingerechnet.
Bitte haben Sie Verständnis dafür, dass wir ohne ein persönliches Gespräch keine Grundstücksdaten weiterleiten können.
Gern sind wir bei der Wahl Ihres Traumgrundstückes behilflich!
Natürlich können wir ihren Haustraum auch auf einem anderen Grundstück realisieren, lassen Sie sich dazu in einem unverbindlichen Gespräch zu Ihrem Bauvorhaben beraten.
Thomas Heitz 0160/7038141 oder thomas.heitz@streif.de
Kontaktanfrage senden
Über den Anbieter
STREIF Haus GmbH
Josef-Streif-Straße 1
54595 Weinsheim
Kontakt
| Telefon | +49 681 70947955 |
| Mobil | +49 160 7038141 |
| Website | www.streif.de |
Ansprechpartner/in
Herr Thomas Heitz
Weitere Angebote des Anbieters
31
**Luxuriöses Wohnen: Entdecken Sie die Stadtvilla ...
Haus
38176 Wendeburg
Willkommen in Ihrer zukünftigen Traumstadtvilla in Wendeburg/ Neubrück, die mit STREIF nach Ihren individuellen Wünschen projektiert wird. Diese exklusive Residenz bietet Ihnen auf 190,29 m² Wohnfläche ein geräumiges ...
713.782,2 €
Kaufpreis
190,29 m²
Wohnfläche
6
Zimmer
35
**Endlich raus aus der Miete - jetzt starten mit ...
Haus
31688 Nienstädt
Willkommen in Ihrem Traumhaus! Dieses Einfamilienhaus, projektiert nach Ihren individuellen Wünschen, bietet Ihnen die perfekte Kombination aus modernem Design und höchstem Wohnkomfort. Mit einer großzügigen Wohnfläche ...
481.229 €
Kaufpreis
143,84 m²
Wohnfläche
4
Zimmer
32
**Familienfreundlicher Bungalow mit perfekter ...
Haus
31226 Peine
Tauchen Sie ein in die Welt des modernen Wohnens mit unserem projektierten Bungalow, der individuell nach Ihren Wünschen gestaltet wird. Auf einer großzügigen Wohnfläche von 93,51 m² verteilen sich geschmackvoll 3,0 ...
495.050 €
Kaufpreis
93,51 m²
Wohnfläche
3
Zimmer
9
Vorankündigung - Wohnen next Level by STREIF DHH
Haus
53844 Troisdorf
Hochwertiges Effizienzhaus-40-PLUS >> Planung nach modernsten Wohnkriterien.
649.800 €
Kaufpreis
149 m²
Wohnfläche
6
Zimmer
8
-inkl. Grundstück-Ihre neue STREIF Doppelhaushälfte in ...
Haus
38108 Braunschweig
Der Preis bezieht sich auf das Haus inkl. Baunebenkosten und einschließlich Grundstück. Die Grunderwerbsteuer fällt nur auf die Grundstückskosten an. Herzlich willkommen bei STREIF, Ihrem zuverlässigen Partner für den ...
620.000 €
Kaufpreis
140 m²
Wohnfläche
4
Zimmer