Erdgeschosswohnung in zentraler Lage in Eggstätt
398.000 €
Kaufpreis
81,76 m²
Wohnfläche
4
Zimmer
immobilien.de Nr.: 9500830
Objektnummer: 428933
Kaufpreis
| Kaufpreis | 398.000 € |
| Hausgeld | 390 € |
| Maklerprovision | keine Provision, courtagefrei |
Wohnfläche, Grundstück & Bausubstanz
| Wohnfläche | 81,76 m² |
| Zimmer | 4 |
| Baujahr | 1994 |
| Verfügbar ab | nach Absprache |
| Zustand | Gepflegt |
Energie
| Energieausweistyp | Bedarfsausweis |
| Endenergiebedarf | 117 |
| Heizungsart | Zentralheizung |
| Energieträger/Befeuerung | Öl |
Beschreibung der Immobilie
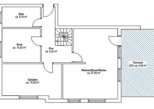
Zum Verkauf steht eine gepflegte und hochwertig ausgestattete 4-Zimmer-Erdgeschoss-Wohnung in Eggstätt. Eines dieser Zimmer ist der vom Erdgeschoss aus, per Treppe innerhalb der Wohnung aus begehbare helle Hobbyraum im Souterrain. Die Wohnung überzeugt durch einen offenen, durchdachten Grundriss, helle Räume und eine hochwertige Ausstattung – ideal für Paare, kleine Familien oder anspruchsvolle Eigennutzer. Zu Wohnung gehört eine ca. 18m² große Terrasse und ein ca. 30m² großes Gartenabteil.
Die Wohnfläche beträgt ca. 82 m², wobei der Hobbyraum im Untergeschoss zu 50 % und die Terrasse zu 25 % angerechnet sind (Wohnflächenberechnung gemäß Wohnflächenverordnung) . Die gesamte Nutzfläche beträgt jedoch ca. 109 m².
Das Haus verfügt über eine Öl-Zentralheizung.
KAPITALANLAGE
Die Wohnung ist seit Juni 2024 vermietet. Kaltmiete: 1.190 € monatlich zzgl. 300 € Nebenkostenvorauszahlung.
Jahreskaltmiete: 14.280 €. Attraktive Kapitalanlage in gefragter Wohnlage.
Die Wohnfläche beträgt ca. 82 m², wobei der Hobbyraum im Untergeschoss zu 50 % und die Terrasse zu 25 % angerechnet sind (Wohnflächenberechnung gemäß Wohnflächenverordnung) . Die gesamte Nutzfläche beträgt jedoch ca. 109 m².
Das Haus verfügt über eine Öl-Zentralheizung.
KAPITALANLAGE
Die Wohnung ist seit Juni 2024 vermietet. Kaltmiete: 1.190 € monatlich zzgl. 300 € Nebenkostenvorauszahlung.
Jahreskaltmiete: 14.280 €. Attraktive Kapitalanlage in gefragter Wohnlage.
Ausstattungsmerkmale
| Anzahl der Etagen im Haus | 2 |
| Inserat befindet sich im Stockwerk | 0 |
| Küche | Einbauküche |
| Bad | 1 |
| Bad | Wanne |
| Boden | Fliesen, Laminat |
| Balkone | 0 |
| Garten | |
| Terrassen | 1 |
| Carport | 1 |
| Keller |
Terrasse, Garten, Keller, Vollbad, Einbauküche, Laminat, Fliesen
Bemerkungen:
Aufteilung und Ausstattung:
- Großzügiger Wohn-/Essbereich mit direktem Zugang zur Terrasse
- Offener Küchenbereich mit hochwertiger Nolte-Küche (2018), Bora-System und Miele-
Geräten – im Kaufpreis enthalten
- Zwei gut geschnittene Schlafzimmer plus zusätzliches Zimmer im Souterrain (mit
Lichtschacht und Heizkörper)
- Modernisiertes Badezimmer (Teilrenovierung 2024)
- Fußbodenheizung im Erdgeschoß
- Bodenbeläge Fliesen und Laminat
- Souterrain (direkter Zugang von der Wohnung per Treppe & von außen über
Gemeinschaftstreppenhaus)
- Carport und Stellplatz
Zusätzlich:
- Waschmaschinenanschluss im Bad
- Eigenes Kellerabteil (ca. 10 m²)
- Gemeinschaftlicher Fahrradkeller
- Trockenraum
Bemerkungen:
Aufteilung und Ausstattung:
- Großzügiger Wohn-/Essbereich mit direktem Zugang zur Terrasse
- Offener Küchenbereich mit hochwertiger Nolte-Küche (2018), Bora-System und Miele-
Geräten – im Kaufpreis enthalten
- Zwei gut geschnittene Schlafzimmer plus zusätzliches Zimmer im Souterrain (mit
Lichtschacht und Heizkörper)
- Modernisiertes Badezimmer (Teilrenovierung 2024)
- Fußbodenheizung im Erdgeschoß
- Bodenbeläge Fliesen und Laminat
- Souterrain (direkter Zugang von der Wohnung per Treppe & von außen über
Gemeinschaftstreppenhaus)
- Carport und Stellplatz
Zusätzlich:
- Waschmaschinenanschluss im Bad
- Eigenes Kellerabteil (ca. 10 m²)
- Gemeinschaftlicher Fahrradkeller
- Trockenraum
Sonstige Informationen
Heizungsart: Zentralheizung
Energieträger: Öl
Fotos stammen aus der Zeit vor Einzug der aktuellen Mieter.
Zum Schutz der Privatsphäre wurden keine aktuellen Innenaufnahmen veröffentlicht.
Makleranfragen nicht erwünscht. Nach § 7 UWG sind unaufgeforderte Kontaktaufnahmen durch Makler ohne ausdrückliche Einwilligung des Empfängers verboten!
ohne-makler (OM) ist weder Anbieter noch Vermittler der Immobilie. OM betreibt eine Plattform für Immobilieneigentümer, die unter anderem die gleichzeitige Veröffentlichung einzelner Inserate auf mehreren Immobilienportalen ermöglicht. Die Inhalte dieser Inserate werden ausschließlich von Dritten verantwortet. Für die Richtigkeit, Vollständigkeit oder Rechtmäßigkeit der Angaben übernimmt OM keine Haftung. Hinweise auf mögliche Rechtsverstöße können jederzeit gemeldet werden und werden nach Prüfung umgehend bearbeitet.
Energieträger: Öl
Fotos stammen aus der Zeit vor Einzug der aktuellen Mieter.
Zum Schutz der Privatsphäre wurden keine aktuellen Innenaufnahmen veröffentlicht.
Makleranfragen nicht erwünscht. Nach § 7 UWG sind unaufgeforderte Kontaktaufnahmen durch Makler ohne ausdrückliche Einwilligung des Empfängers verboten!
ohne-makler (OM) ist weder Anbieter noch Vermittler der Immobilie. OM betreibt eine Plattform für Immobilieneigentümer, die unter anderem die gleichzeitige Veröffentlichung einzelner Inserate auf mehreren Immobilienportalen ermöglicht. Die Inhalte dieser Inserate werden ausschließlich von Dritten verantwortet. Für die Richtigkeit, Vollständigkeit oder Rechtmäßigkeit der Angaben übernimmt OM keine Haftung. Hinweise auf mögliche Rechtsverstöße können jederzeit gemeldet werden und werden nach Prüfung umgehend bearbeitet.
Karte wird geladen...
Objektstandort
83125 Eggstätt
- Bayern
Lage & Infrastruktur
Objektstandort
83125 Eggstätt
- Bayern
Die Wohnung befindet sich in zentraler ruhiger Wohnlage von Eggstätt, am Rand des
Naturschutzgebietes Eggstätt-Hemhofer Seenplatte. Supermarkt, Apotheke, Ärzte, Kindergärten, Grundschule und Gastronomie sind fußläufig erreichbar. Hoher Freizeit- und Erholungswert durch Seen, Natur und aktives Vereinsleben.
Infrastruktur (im Umkreis von 5 km):
Apotheke, Lebensmittel-Discount, Allgemeinmediziner, Kindergarten, Grundschule, Öffentliche Verkehrsmittel
Naturschutzgebietes Eggstätt-Hemhofer Seenplatte. Supermarkt, Apotheke, Ärzte, Kindergärten, Grundschule und Gastronomie sind fußläufig erreichbar. Hoher Freizeit- und Erholungswert durch Seen, Natur und aktives Vereinsleben.
Infrastruktur (im Umkreis von 5 km):
Apotheke, Lebensmittel-Discount, Allgemeinmediziner, Kindergarten, Grundschule, Öffentliche Verkehrsmittel
Kontaktanfrage senden
Über den Anbieter
OM PropTech GmbH
Humboldtstraße 25a
21509 Glinde
Kontakt
| Telefon | - |
| Fax | - |
| Website | www.ohne-makler.net |
Ansprechpartner/in
Privat von Stefan Aumüller
Weitere Angebote des Anbieters
22
2,5-Zimmer Wohnung in Sulz am Neckar ab 01.08. zu ...
Wohnung
72172 Sulz am Neckar
Diese charmante und lichtdurchflutete 2.5-Zimmer-Wohnung mit einer Wohnfläche von ca. 55 m2 befindet sich in einem gepflegten Mehrfamilienhaus mit insgesamt 16 Wohneinheiten in sonniger, guter und ruhiger Lage von Sulz ...
680 €
Kaltmiete (netto)
55 m²
Wohnfläche
2,5
Zimmer
26
Einfamilienhaus mit Einliegerwohnung, Garten & Toplage ...
Haus
64342 Seeheim-Jugenheim
PROVISIONSFREI: Repraesentatives Wohnerlebnis mit Einliegerwohnung und Top-Energiebilanz OBJEKTBESCHREIBUNG Dieses sehr gepflegte und modernisierte Einfamilienhaus in begehrter Lage von Seeheim-Jugenheim bietet mit ca. ...
895.000 €
Kaufpreis
202 m²
Wohnfläche
7
Zimmer
7
Reihenhaus Bungalow
Haus
54296 Trier
Zur Eigennutzung oder als Kapitalanlage veräussern wir provisionsfrei in unvergleichlicher, unverbaubarer Lage - Am Trimmelter Hof - eingebettet in einer gepflegten Parkanlage - einen komplett renovierten, mit neuer ...
279.500 €
Kaufpreis
78 m²
Wohnfläche
2
Zimmer
5
Vollmöblierte 3er WG in City-Nähe (noch 1 Zimmer frei!) ...
Zimmer
76187 Karlsruhe
Bei diesem Inserat handelt es sich um ein vollmöbliertes WG-Zimmer, das ab dem 01.04. beziehbar ist. Die Kaltmiete liegt bei 425 € + 150 € Nebenkosten -> Warm 575 € (Inkl. Strom, Wasser, Müll, Internet etc.) Eine kurze ...
425 €
Kaltmiete (netto)
15 m²
Wohnfläche
1
Zimmer
10
Westsite München*Moderne Bürofläche mit exzellenter ...
Büro / Praxen
80687 München
Nutzen Sie diese einmalige Gelegenheit, Ihr Unternehmen an einem strategisch hervorragend gelegenen Standort in München zu positionieren! Wir bieten auf Basis eines Untermietverhältnisses eine beeindruckend großzügige ...
4.740 €
Kaltmiete (netto)
275 m²
Gesamtfläche