Architektenhaus in Berlin-Wilhelmshagen
925.000 €
Kaufpreis
200 m²
Wohnfläche
6
Zimmer
immobilien.de Nr.: 9500604
Objektnummer: 434715
Kaufpreis
| Kaufpreis | 925.000 € |
| Maklerprovision | keine Provision, courtagefrei |
Wohnfläche, Grundstück & Bausubstanz
| Wohnfläche | 200 m² |
| Grundstücksfläche | 668 m² |
| Zimmer | 6 |
| Baujahr | 2002 |
| Verfügbar ab | nach Absprache |
| Zustand | Gepflegt |
Energie
| Energieausweistyp | Verbrauch |
| Energieeffizienzklasse | B |
| Energieverbrauchkennwert | 63 kWh/(m²*a) |
| Heizungsart | Zentralheizung |
| Energieträger/Befeuerung | Gas |
Beschreibung der Immobilie
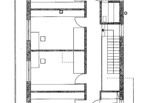
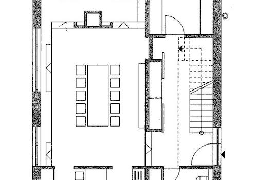
Das Haus ist hell und klar gegliedert. Hervorzuheben ist der große, offene Wohnbereich mit Küche, großzügigem Essplatz und Wohnzimmer. Zwischen Essbereich und Wohnzimmer befindet sich ein zweiseitiger Kamin. Die Deckenhöhe im Essbereich und in der Küche beträgt 3m.
Das Gründach unterstützt das Haus, eine klimatisch angenehme Atmosphäre zu schaffen.
Im OG befinden sich ebenfalls sehr helle Zimmer mit bodentiefen Fenstern. Jedes Zimmer hat direkten Zugang zum Balkon. Ebenfalls im OG sind die Badezimmer untergebracht. Eines mit gefliester Dusche, das andere mit Badewanne.
Auf dem Grundstück gibt es mehrere hochwertige Schuppen sowie ein Fahrradport. Eine Wallbox ist in Betrieb. Zwei großzügige Terrassen laden zum Verweilen ein.
Das Gründach unterstützt das Haus, eine klimatisch angenehme Atmosphäre zu schaffen.
Im OG befinden sich ebenfalls sehr helle Zimmer mit bodentiefen Fenstern. Jedes Zimmer hat direkten Zugang zum Balkon. Ebenfalls im OG sind die Badezimmer untergebracht. Eines mit gefliester Dusche, das andere mit Badewanne.
Auf dem Grundstück gibt es mehrere hochwertige Schuppen sowie ein Fahrradport. Eine Wallbox ist in Betrieb. Zwei großzügige Terrassen laden zum Verweilen ein.
Ausstattungsmerkmale
| Anzahl der Etagen im Haus | 2 |
| Küche | Einbauküche |
| Bad | 2 |
| Bad | Dusche, Wanne |
| Boden | Fliesen |
| Balkone | 1 |
| Garten | |
| Terrassen | 1 |
Balkon, Terrasse, Garten, Vollbad, Duschbad, Einbauküche, Gäste-WC, Kamin, Fliesen, Sonstiges (s. Text)
Bemerkungen:
Die Böden im Erdgeschoss sind aufwändig gefliest. Die Treppe, Flur und die Zimmer im OG sind mit Linoleum belegt. Die Badezimmer im OG sind gefliest.
Bemerkungen:
Die Böden im Erdgeschoss sind aufwändig gefliest. Die Treppe, Flur und die Zimmer im OG sind mit Linoleum belegt. Die Badezimmer im OG sind gefliest.
Sonstige Informationen
Heizungsart: Zentralheizung
Energieträger: Gas
Makleranfragen nicht erwünscht. Nach § 7 UWG sind unaufgeforderte Kontaktaufnahmen durch Makler ohne ausdrückliche Einwilligung des Empfängers verboten!
ohne-makler (OM) ist weder Anbieter noch Vermittler der Immobilie. OM betreibt eine Plattform für Immobilieneigentümer, die unter anderem die gleichzeitige Veröffentlichung einzelner Inserate auf mehreren Immobilienportalen ermöglicht. Die Inhalte dieser Inserate werden ausschließlich von Dritten verantwortet. Für die Richtigkeit, Vollständigkeit oder Rechtmäßigkeit der Angaben übernimmt OM keine Haftung. Hinweise auf mögliche Rechtsverstöße können jederzeit gemeldet werden und werden nach Prüfung umgehend bearbeitet.
Energieträger: Gas
Makleranfragen nicht erwünscht. Nach § 7 UWG sind unaufgeforderte Kontaktaufnahmen durch Makler ohne ausdrückliche Einwilligung des Empfängers verboten!
ohne-makler (OM) ist weder Anbieter noch Vermittler der Immobilie. OM betreibt eine Plattform für Immobilieneigentümer, die unter anderem die gleichzeitige Veröffentlichung einzelner Inserate auf mehreren Immobilienportalen ermöglicht. Die Inhalte dieser Inserate werden ausschließlich von Dritten verantwortet. Für die Richtigkeit, Vollständigkeit oder Rechtmäßigkeit der Angaben übernimmt OM keine Haftung. Hinweise auf mögliche Rechtsverstöße können jederzeit gemeldet werden und werden nach Prüfung umgehend bearbeitet.
Karte wird geladen...
Objektstandort
12589 Berlin
- Berlin
Lage & Infrastruktur
Objektstandort
12589 Berlin
- Berlin
Das Haus im Südosten Berlins steht in ruhiger Lage, jeweils 10 min zu Fuß vom S-Bahnhof Wilhelmshagen und der Grundschule mit Kindergarten entfernt. Supermärkte und Apotheke sowie Ärzte befinden sich innerhalb 1 km Umkreis. Das Strandbad Müggelsee ist 10 min mit dem Fahrrad entfernt. Hinter dem Haus beginnt das Naturschutzgebiet Püttberge - im Winter ein beliebter Rodelberg.
Infrastruktur (im Umkreis von 5 km):
Apotheke, Lebensmittel-Discount, Allgemeinmediziner, Kindergarten, Grundschule, Öffentliche Verkehrsmittel
Infrastruktur (im Umkreis von 5 km):
Apotheke, Lebensmittel-Discount, Allgemeinmediziner, Kindergarten, Grundschule, Öffentliche Verkehrsmittel
Kontaktanfrage senden
Über den Anbieter
OM PropTech GmbH
Humboldtstraße 25a
21509 Glinde
Kontakt
| Telefon | - |
| Fax | - |
| Website | www.ohne-makler.net |
Ansprechpartner/in
Privat vom Eigentümer
Weitere Angebote des Anbieters
13
3 Zimmer Wohnung in zentrale Lage von Bickenbach
Wohnung
64404 Bickenbach
Großzügige Drei-Zimmer-Wohnung mit zwei Bäder / WG-geeignet im OG in Bickenbach Die angebotene Immobilie befindet sich im Obergeschoss eines gepflegten Dreifamilienhauses in Bickenbach. Die Wohnung verfügt über eine ...
1.100 €
Kaltmiete (netto)
100 m²
Wohnfläche
3
Zimmer
0
Halle 3000m2 teilbar, Büro und Sozialräume, Freifläche ...
Hallen / Lager / Produktion
58300 Wetter
3000 qm Halle, 300 qm Büro- und Sozialräume und 2500 qm Freifläche, individuell teilbar Heizung, Wasser, Strom vorhanden, Rolltore, Hallenhöhe teilweise 7 m
keine Angabe
Preis
3000 m²
Gesamtfläche
8
Kernsaniertes Business Apartment in Bestlage Köln Sülz
Wohnung
50937 Köln
Diese hochwertig kernsanierte Einzimmerwohnung mit etwa 30 Quadratmetern liegt in einer der beliebtesten Wohnstraßen von Köln Sülz, nur wenige Gehminuten von der Uniklinik entfernt. Die Wohnung besticht durch eine ...
980 €
Kaltmiete (netto)
30 m²
Wohnfläche
1
Zimmer
45
Witten-Bommern: grosses Haus mit großem Grundstück zu ...
Haus
58452 Witten
Individuell ausgestattetes freistehendes Haus mit Fernblick, einem uneinsehbaren Innenhof und einem uneinsehbaren Grundstück mit einem großen Garten! Das Mietobjekt ist nur etwas für Gartenfreunde! Details werden nach ...
2.000 €
Kaltmiete (netto)
250 m²
Wohnfläche
8
Zimmer
12
2Raumwohnung mit Wohnküche
Wohnung
58452 Witten
Diese Wohnung wird nur an maximal zwei Personen über 25 Jahren, die arbeiten, vermietet. Voraussetzung für einen Mietvertrag ist Berufstätig und Deutschsprachigkeit. Besichtigungen können nur Vormittags angeboten ...
500 €
Kaltmiete (netto)
65 m²
Wohnfläche
2
Zimmer