Provisionsfrei* Doppelhaushälfte in traumhafter Lage
535.000 €
Kaufpreis
121,92 m²
Wohnfläche
5
Zimmer
immobilien.de Nr.: 9499878
Objektnummer: 131275-[26498]
Kaufpreis
| Kaufpreis | 535.000 € |
| Maklerprovision |
Wohnfläche, Grundstück & Bausubstanz
| Wohnfläche | 121,92 m² |
| Grundstücksfläche | 387 m² |
| Zimmer | 5 |
| Baujahr | 1984 |
| Letzte Modernisierung | 2022 |
| Verfügbar ab | sofort |
| Zustand | Gepflegt |
Energie
| Energieausweistyp | Verbrauch |
| Gültig bis | 2035-03-06 |
| Energieverbrauchkennwert | 97.3 kWh/(m²*a) |
| Heizungsart | Zentralheizung |
| Energieträger/Befeuerung | Pellet |
Beschreibung der Immobilie
Doppelhaushälfte am südöstlichen Ortsrand mit altem Obstbaumbestand und Blick auf die angrenzenden Wiesen.
Herzstück des Hauses ist der im Wohnzimmer eingebaute Kachelofen, der auch die obere Etage mit beheizen kann. In Kombination mit der nachhaltigen Pelletheizung sorgt der Kachelofen nicht nur für ein Wohlfühl-Raumklima, sondern ermöglicht eine effiziente, kostengünstige und ökologische Beheizung des Objekts. Zudem wurde das Haus in Massivbauweise mit Isoliersteinen (Isolier-Mauerwerk-System "Calinoor") erstellt.
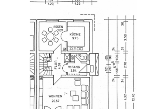
Im Erdgeschoß befindet sich neben dem südlich zum Garten ausgerichteten Wohnzimmer auch das Esszimmer, die Küche sowie ein separates Gäste-WC. In der Küche wurde ein weiteres Fenster zur Ostseite hin eingebaut. Der Eingangsbereich wurde um einen Wintergarten erweitert.
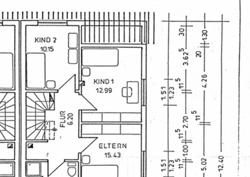
Die 3 Zimmer in der 1.Etage sind multifunktional nutzbar: in 2 der Zimmer passt jeweils ein Schlafzimmer, das 3.Zimmer eignet sich als idealer Ort für ein Home-Office, es weist aufgrund der vorhandenen Dachgaube keine Dachschräge auf.
Keller:
Das Haus ist teilunterkellert und verfügt über Technikraum (Pelletheizung und Pelletlager), Wirtschaftsraum (Waschbecken, Wasseranschluss, Platz für 2 Maschinen) sowie Vorratsraum mit einer 4-Personen-Sauna (kann übernommen werden). Im Garten zur Nordseite befindet sich ein unterirdisches Regenwasser-Reservoir.
Dachboden:
Der Dachboden ist ausbaufähig mit der Option ein Atelier o.ä. auf einer Grundfläche von ca. 6m x 6m einzurichten (Berechnung der sich zusätzlich ergebenden Wohnfläche unter Berücksichtigung der Dachschrägen). Es bietet sich der Einbau von Dachfenstern mit Blick auf die unbebaute Wiese in südlicher Richtung an.
Garten:
Der Garten wurde liebevoll kultiviert und besticht durch seine besondere Blütenpracht. Der jahrzehntealte Obstbaumbestand umfasst Apfel-, Birn-, Zwetschgenbaum und Felsenbirne. Der Apfelbaum der Sorte "Jakob Fischer" ist von besonderer Güte und zeichnet sich durch seinen hohen Ertrag aus. Der Garten ist mit einem Hochbeet bestückt.
Herzstück des Hauses ist der im Wohnzimmer eingebaute Kachelofen, der auch die obere Etage mit beheizen kann. In Kombination mit der nachhaltigen Pelletheizung sorgt der Kachelofen nicht nur für ein Wohlfühl-Raumklima, sondern ermöglicht eine effiziente, kostengünstige und ökologische Beheizung des Objekts. Zudem wurde das Haus in Massivbauweise mit Isoliersteinen (Isolier-Mauerwerk-System "Calinoor") erstellt.
Im Erdgeschoß befindet sich neben dem südlich zum Garten ausgerichteten Wohnzimmer auch das Esszimmer, die Küche sowie ein separates Gäste-WC. In der Küche wurde ein weiteres Fenster zur Ostseite hin eingebaut. Der Eingangsbereich wurde um einen Wintergarten erweitert.
Die 3 Zimmer in der 1.Etage sind multifunktional nutzbar: in 2 der Zimmer passt jeweils ein Schlafzimmer, das 3.Zimmer eignet sich als idealer Ort für ein Home-Office, es weist aufgrund der vorhandenen Dachgaube keine Dachschräge auf.
Keller:
Das Haus ist teilunterkellert und verfügt über Technikraum (Pelletheizung und Pelletlager), Wirtschaftsraum (Waschbecken, Wasseranschluss, Platz für 2 Maschinen) sowie Vorratsraum mit einer 4-Personen-Sauna (kann übernommen werden). Im Garten zur Nordseite befindet sich ein unterirdisches Regenwasser-Reservoir.
Dachboden:
Der Dachboden ist ausbaufähig mit der Option ein Atelier o.ä. auf einer Grundfläche von ca. 6m x 6m einzurichten (Berechnung der sich zusätzlich ergebenden Wohnfläche unter Berücksichtigung der Dachschrägen). Es bietet sich der Einbau von Dachfenstern mit Blick auf die unbebaute Wiese in südlicher Richtung an.
Garten:
Der Garten wurde liebevoll kultiviert und besticht durch seine besondere Blütenpracht. Der jahrzehntealte Obstbaumbestand umfasst Apfel-, Birn-, Zwetschgenbaum und Felsenbirne. Der Apfelbaum der Sorte "Jakob Fischer" ist von besonderer Güte und zeichnet sich durch seinen hohen Ertrag aus. Der Garten ist mit einem Hochbeet bestückt.
Ausstattungsmerkmale
| Bad | 1 |
| Bad | Dusche, Wanne, Fenster |
| Boden | Fliesen, Parkett, Dielen |
| Terrassen | 1 |
| Keller |
Alle Räumlichkeiten sind frisch in weiß gestrichen. Im Wohnzimmer ist ein Massivholz-Stäbchenparkett aus Eiche verlegt. Die übrigen Räumlichkeiten im Erdgeschoss sind gefliest.
In der 1. Etage sind Buchenholzböden (Schiffsboden) verlegt. Das Tageslicht-Badezimmer mit Badewanne, Dusche und WC ist vollflächig gefliest.
Technische Ausstattung:
Pelletheizung:
Ökofen Pellematic, Pelletkessel mit Spezialwärmetauscher PE 10 KW.
Einbau einer neuen Steuerungselektronik "Pelletronic Touch" im Jahr 2022.
Kachelofen:
In 2021 erfolgte die komplette Erneuerung des Kachelofen-Innenlebens durch den Austausch des Ofeneinsatzes und den Einbau des Heizgeräts Rubin K20. Der Kachelofen verbrennt mit hoher Effizienz.
In der 1. Etage sind Buchenholzböden (Schiffsboden) verlegt. Das Tageslicht-Badezimmer mit Badewanne, Dusche und WC ist vollflächig gefliest.
Technische Ausstattung:
Pelletheizung:
Ökofen Pellematic, Pelletkessel mit Spezialwärmetauscher PE 10 KW.
Einbau einer neuen Steuerungselektronik "Pelletronic Touch" im Jahr 2022.
Kachelofen:
In 2021 erfolgte die komplette Erneuerung des Kachelofen-Innenlebens durch den Austausch des Ofeneinsatzes und den Einbau des Heizgeräts Rubin K20. Der Kachelofen verbrennt mit hoher Effizienz.
Sonstige Informationen
Garage, Garagenanbau und Holzschuppen:
* Garage: Maße innen: Länge: 5,40m, Breite: 2,71m, Fläche: 14,63 qm
* Garagenanbau mit Außenmaßen 2,75m x 2,85m.
* Gartenschuppen in Holzbauweise.
* Garage: Maße innen: Länge: 5,40m, Breite: 2,71m, Fläche: 14,63 qm
* Garagenanbau mit Außenmaßen 2,75m x 2,85m.
* Gartenschuppen in Holzbauweise.
Karte wird geladen...
Objektstandort
90584 Allersberg
- Bayern
Lage & Infrastruktur
Objektstandort
90584 Allersberg
- Bayern
Besonderheit der Immobilie: Lage am südöstlichen Ortsrand von Allersberg: von der zum Süden hin ausgerichteten Terrasse bzw. dem Garten reicht der Blick durch die Obstbäume hindurch über die unverbaute Wiese bis zum Wald in der Ferne.
Allersberg liegt etwa 30 km südlich von Nürnberg. Die Anbindung an die Metropolregion Nürnberg ist für Pendler ideal. Von der Anschlussstelle Allersberg (Rothsee) aus erreicht die S-Bahn den Nürnberger Hauptbahnhof in ca. 15min. Auch über die Autobahn A9 bzw. die Landstraße ist Nürnberg schnell zu erreichen. Zahlreiche Freizeitaktivitäten sind im Naherholungsgebiet rund um den Rothsee möglich.
Allersberg liegt etwa 30 km südlich von Nürnberg. Die Anbindung an die Metropolregion Nürnberg ist für Pendler ideal. Von der Anschlussstelle Allersberg (Rothsee) aus erreicht die S-Bahn den Nürnberger Hauptbahnhof in ca. 15min. Auch über die Autobahn A9 bzw. die Landstraße ist Nürnberg schnell zu erreichen. Zahlreiche Freizeitaktivitäten sind im Naherholungsgebiet rund um den Rothsee möglich.
Kontaktanfrage senden
Über den Anbieter
immo-for-less Privat vom Eigentümer
Bierweg 19
99310 Arnstadt
Kontakt
| Telefon | |
| Mobil | |
| Fax | |
| Website | www.immo-for-less.de |
Ansprechpartner/in
Privat von Jochen
Fischer
Weitere Angebote des Anbieters
7
Provisionsfrei* Helle 2-3 Zimmer 91m² Dachgeschoss DG ...
Wohnung
10557 Berlin
PROVISIONSFREI - DIREKT VOM EIGENTÜMER Nach über 30 Jahren Familienbesitz geben wir diese besondere Immobilie im Herzen Berlins in neue Hände. ERSTE REIHE GROSSSTADT - IHR LOGENPLATZ ÜBER BERLIN Mit Blick auf Skyline ...
652.900 €
Kaufpreis
91 m²
Wohnfläche
2,5
Zimmer
1
Provisionsfrei* Wohnen & Arbeiten München - ...
Hallen / Lager / Produktion
82377 Penzberg
Exklusives Wohn- & Gewerbeanwesen am Alpenrand Wohnen. Arbeiten. Investieren. In einzigartiger Lage. Dieses außergewöhnliche Anwesen vereint modernes Wohnen, hochwertige Gewerbeflächen und eine atemberaubende ...
keine Angabe
Preis
1400 m²
Gesamtfläche
33
Provisionsfrei* 3-Zimmer Wohnung mit Balkon in ...
Wohnung
38700 Braunlage
Diese ansprechende Immobilie hat insgesamt 15 Wohneinheiten mit zwei Eingängen. Es handelt sich hierbei um eine Wohnung im Erdgeschoss mit drei gut geschnittenen Zimmern, wobei der Küchenbereich offen gestaltet ist und ...
164.900 €
Kaufpreis
84 m²
Wohnfläche
3
Zimmer
15
Großzügige 4 Zimmer Wohnung mit 185 qm
Wohnung
08468 Reichenbach
Zur Vermietung steht eine großzügige 4-Zimmer-Wohnung mit einer Wohnfläche von 185 m². Die Wohnung befindet sich in Reichenbach auf der Zwickauer Straße 35. Die Wohnung ist neu renoviert und verfügt über eine ...
850 €
Kaltmiete
185 m²
Wohnfläche
4
Zimmer
15
Provisionsfrei* Top ! Dachgeschosswohnung frisch ...
Wohnung
04299 Leipzig
Tolle Altbauwohnung mit in Leipzig Stötteritz in absoluter Parknähe Das Gebäude - ein eleganter Altbau aus der Jahrhundertwende - wurde im Rahmen einer umfassenden Sanierung Ende der Jahrtausendtwende. Dabei blieb der ...
139.000 €
Kaufpreis
50 m²
Wohnfläche
1
Zimmer