Von privat: Einfamilienhaus in Burg/ Fehmarn zu verkaufen
450.000 €
Kaufpreis
122 m²
Wohnfläche
5
Zimmer
immobilien.de Nr.: 9498018
Objektnummer: 29230
Kaufpreis
| Kaufpreis | 450.000 € |
| Maklerprovision | keine Provision, courtagefrei |
Wohnfläche, Grundstück & Bausubstanz
| Wohnfläche | 122 m² |
| Grundstücksfläche | 584 m² |
| Zimmer | 5 |
| Baujahr | 1965 |
| Verfügbar ab | nach Absprache |
| Zustand | Gepflegt |
Energie
| Energieausweistyp | Bedarfsausweis |
| Endenergiebedarf | 45 |
| Heizungsart | Zentralheizung |
| Energieträger/Befeuerung | Gas |
Beschreibung der Immobilie
In einer ruhigen Seitenstraße von Burg, einer Einbahnstraße mit 13 Ein-/bzw. Zweifamilienhäusern, liegt dieses Einfamilienhaus mit Terrasse, Garten, Garage und Stellplätzen.
Ausstattungsmerkmale
| Anzahl der Etagen im Haus | 2 |
| Küche | Einbauküche |
| Bad | 1 |
| Bad | Wanne |
| Boden | Fliesen, Laminat |
| Balkone | 0 |
| Garten | |
| Terrassen | 1 |
| Garage/Stellplätze | 1 |
| Keller |
Terrasse, Garten, Keller, Vollbad, Einbauküche, Gäste-WC, Laminat, Fliesen
Bemerkungen:
Erdgeschoss großes Wohnzimmer ( 44 qm, statt ursprünglich drei Zimmer) mit ungetrenntem Essbereich um die Ecke , Laminat , mit großem Terassenfenster und anschließender Terrasse ca 9 qm , elektrisch betriebener Markise, Flur,Teppich, Gäste-WC, Fliesen, Küche mit Einbauküche, Fliesen, sämtlichst Rolläden, meist mit Elektroantrieb, Kunststoffenster mit Isolierverglasung,
2014 Komplettsanierung Elektro, Wasser, Entwässerung, Heizkörper und-rohre und komplette Innendämmung, Einbau Gastherme 2017
Dachneueindeckung 2022
Seit Juni 2022 auf dem Dach Photovoltaikanlage 10,8 kwp, im Keller senec Batteriespeicher 5kwh
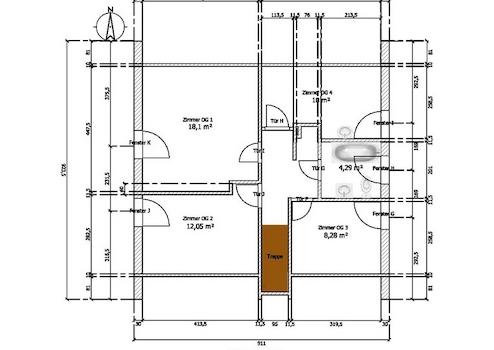
Obergeschoss Schlafzimmer mit Einbauschränken, Gästezimmer, Hauswirtschaftsraum, Bürozimmer mit Einbauschrank, alles Laminat, Bad mit Wanne,Dachboden mit Klappbodentreppe, eventuell ausbaubar, Dach gedämmt.
Keller, 60 qm, 220 cm hoch, auch zu Wohnzwecken umbaubar, Werkstattraum, Vorratskeller, Heizungskeller ( nur noch mit Gastherme, Heizöltank entfernt), Waschraum, gefliest mit Duschkabine, Waschbecken und Entlüftung
Satellitenanlage (2013) am Haus.
Große Garage mit elektrisch betriebenem Tor und separater Eingangstür, kleines Gerätehaus.
Auf dem Grundstück an der Straßenseite ein Stellplatz, daneben Zufahrt zur Garage.
Bemerkungen:
Erdgeschoss großes Wohnzimmer ( 44 qm, statt ursprünglich drei Zimmer) mit ungetrenntem Essbereich um die Ecke , Laminat , mit großem Terassenfenster und anschließender Terrasse ca 9 qm , elektrisch betriebener Markise, Flur,Teppich, Gäste-WC, Fliesen, Küche mit Einbauküche, Fliesen, sämtlichst Rolläden, meist mit Elektroantrieb, Kunststoffenster mit Isolierverglasung,
2014 Komplettsanierung Elektro, Wasser, Entwässerung, Heizkörper und-rohre und komplette Innendämmung, Einbau Gastherme 2017
Dachneueindeckung 2022
Seit Juni 2022 auf dem Dach Photovoltaikanlage 10,8 kwp, im Keller senec Batteriespeicher 5kwh
Obergeschoss Schlafzimmer mit Einbauschränken, Gästezimmer, Hauswirtschaftsraum, Bürozimmer mit Einbauschrank, alles Laminat, Bad mit Wanne,Dachboden mit Klappbodentreppe, eventuell ausbaubar, Dach gedämmt.
Keller, 60 qm, 220 cm hoch, auch zu Wohnzwecken umbaubar, Werkstattraum, Vorratskeller, Heizungskeller ( nur noch mit Gastherme, Heizöltank entfernt), Waschraum, gefliest mit Duschkabine, Waschbecken und Entlüftung
Satellitenanlage (2013) am Haus.
Große Garage mit elektrisch betriebenem Tor und separater Eingangstür, kleines Gerätehaus.
Auf dem Grundstück an der Straßenseite ein Stellplatz, daneben Zufahrt zur Garage.
Sonstige Informationen
Heizungsart: Zentralheizung
Energieträger: Gas
Angebot direkt vom Eigentümer ohne Vermittlungsprovision
Besichtigung nach vorheriger Terminvereinbarung meist am Wochenende möglich
Makleranfragen nicht erwünscht. Nach § 7 UWG sind unaufgeforderte Kontaktaufnahmen durch Makler ohne ausdrückliche Einwilligung des Empfängers verboten!
ohne-makler (OM) ist weder Anbieter noch Vermittler der Immobilie. OM betreibt eine Plattform für Immobilieneigentümer, die unter anderem die gleichzeitige Veröffentlichung einzelner Inserate auf mehreren Immobilienportalen ermöglicht. Die Inhalte dieser Inserate werden ausschließlich von Dritten verantwortet. Für die Richtigkeit, Vollständigkeit oder Rechtmäßigkeit der Angaben übernimmt OM keine Haftung. Hinweise auf mögliche Rechtsverstöße können jederzeit gemeldet werden und werden nach Prüfung umgehend bearbeitet.
Energieträger: Gas
Angebot direkt vom Eigentümer ohne Vermittlungsprovision
Besichtigung nach vorheriger Terminvereinbarung meist am Wochenende möglich
Makleranfragen nicht erwünscht. Nach § 7 UWG sind unaufgeforderte Kontaktaufnahmen durch Makler ohne ausdrückliche Einwilligung des Empfängers verboten!
ohne-makler (OM) ist weder Anbieter noch Vermittler der Immobilie. OM betreibt eine Plattform für Immobilieneigentümer, die unter anderem die gleichzeitige Veröffentlichung einzelner Inserate auf mehreren Immobilienportalen ermöglicht. Die Inhalte dieser Inserate werden ausschließlich von Dritten verantwortet. Für die Richtigkeit, Vollständigkeit oder Rechtmäßigkeit der Angaben übernimmt OM keine Haftung. Hinweise auf mögliche Rechtsverstöße können jederzeit gemeldet werden und werden nach Prüfung umgehend bearbeitet.
Karte wird geladen...
Objektstandort
Meisenweg 7
23769 Fehmarn/Burg
- Schleswig-Holstein
Lage & Infrastruktur
Objektstandort
Meisenweg 7
23769 Fehmarn/Burg
- Schleswig-Holstein
direkt in Burg, 5 Minuten Fußweg bis zum Zentrum, ruhig gelegen auf der touristisch sehr beliebten Insel
Kontaktanfrage senden
Über den Anbieter
OM PropTech GmbH
Humboldtstraße 25a
21509 Glinde
Kontakt
| Telefon | - |
| Fax | - |
| Website | www.ohne-makler.net |
Ansprechpartner/in
Privat vom Eigentümer
Weitere Angebote des Anbieters
15
Attraktive 3-Zimmer- und 2 Zimmer -Wohnung mit KDB – ...
Wohnung
57577 Hamm(sieg)
Wir vermieten verschiedene Wohnungen in den Größen zwischen 83 qm bis 96 qm. Es sind 3 Zimmer KDB . Jede Wohnung ist frisch renoviert. Alle Wohnungen sind hell und gut geschnitten, sie verfügen jeweils über einen ...
672 €
Kaltmiete (netto)
84 m²
Wohnfläche
3
Zimmer
22
Wunderschöne 4-Zi.-Maisonette mit Haus-im-Haus-Charakte ...
Wohnung
71101 SCHOENAICH
In begehrter, zentraler Lage von Schönaich bieten wir diese außergewöhnlich geschnittene 4-Zimmer-Maisonettewohnung mit ca. 101 m² Wohnfläche im Privatverkauf an. Die Wohnung überzeugt durch ihren separaten Hauseingang ...
379.000 €
Kaufpreis
101 m²
Wohnfläche
4
Zimmer
11
Schöne renovierte 3-Zimmer Altbauwohnung in Straubing ...
Wohnung
94315 Straubung
Diese helle neuwertige Altbauwohnung befindet sich in einem ruhigen Mehrfamilienhaus mitten im Herzen von Straubing. Die Wohnung überzeugt durch ihren großzügigen Grundriss. Küche, Wohnzimmer und zwei Schlafzimmer oder ...
820 €
Kaltmiete (netto)
84 m²
Wohnfläche
4
Zimmer
7
Schöne renovierte 2-Zi-Altbauwohnung und EBK in Bogen ...
Wohnung
94327 Bogen
Diese schöne, vollständig renovierte Wohnung in der zweiten Etage zeichnet sich durch eine gehobene Innenausstattung aus und kann zum 01.12.2025 bezogen werden. Die Wohnung bietet neben zwei attraktiven Zimmern nicht ...
676 €
Kaltmiete (netto)
81 m²
Wohnfläche
3
Zimmer
9
Erstbezug nach Sanierung: Großzügige Etagenwohnung
Wohnung
68307 Mannheim
Bei dieser ansprechenden Immobilie handelt es sich um einen Erstbezug nach umfassender Sanierung (Türen, Böden, Fenster, Bäder, Elektroleitungen, gesamte Heizungsanlage, einschließlich Leitungen neu). Die Wohnung in ...
1.550 €
Kaltmiete (netto)
115 m²
Wohnfläche
3
Zimmer