Neu renoviert: Familienfreundliche Eigentumswohnung mit Hauscharakter und großem Garten
299.000 €
Kaufpreis
171 m²
Wohnfläche
6
Zimmer
immobilien.de Nr.: 9497749
Objektnummer: FALC-BZ-81458
Dateien
Kaufpreis
| Kaufpreis | 299.000 € |
| Hausgeld | 264,31 € |
| Maklerprovision | 3,57 % inkl. MwSt vom not. Kaufpreis |
Wohnfläche, Grundstück & Bausubstanz
| Wohnfläche | 171 m² |
| Gesamtfläche | 296 m² |
| Zimmer | 6 |
| Baujahr | 1972 |
| Letzte Modernisierung | 2026 |
| Verfügbar ab | ab sofort |
| Zustand | Gepflegt |
Energie
| Energieausweistyp | Bedarfsausweis |
| Ausstellungsdatum | 03. 11. 2025 |
| Gültig bis | 02.11.2035 |
| Energieeffizienzklasse | H |
| Endenergiebedarf | 266 |
| Wesentlicher Energieträger | Erdgas Schwer |
Beschreibung der Immobilie
Wohnen wie im eigenen Haus – mit großer Terrasse, herrlichem Garten und Feldblick. Neu renoviert und ab sofort bezugsfertig.
Bernd Zinn von FALC Immobilien Overath präsentiert Ihnen eine außergewöhnlich großzügige Eigentumswohnung mit rund 171 m² Wohnfläche und 296 m² Gesamtfläche, verteilt auf drei Etagen – ein echtes Unikat mit Hauscharakter und traumhaftem Blick ins Grüne.
Das im Jahr 1972 in solider Massivbauweise errichtete Haus überzeugt durch seine durchdachte Architektur und den besonderen Doppelhauscharakter. Die Wohnung steht sofort zum Einzug zur Verfügung und bietet damit vielfältige Nutzungsmöglichkeiten – ob als großzügiges Einfamilienparadies oder nach wenigen Umbaumaßnahmen als 2 separate Wohnungen.
Die Wohnung erstreckt sich über Erdgeschoss, 1. Obergeschoss und 2. Obergeschoss. Zusätzlich stehen Ihnen ein Kellerraum sowie ein charmanter alter Gewölbekeller zur Verfügung, der sich ideal als stilvoller Weinkeller nutzen lässt.
Im Erdgeschoss empfängt Sie ein freundlicher Eingangsbereich mit schöner heller Holztreppe und Platz für Garderobe und Stauraum. Ein helles Zimmer kann flexibel als Gäste-, Arbeits- oder Hobbyraum genutzt werden.
Im 1. Obergeschoss entfaltet sich das Herzstück dieser außergewöhnlichen Wohnung. Eine einladende Diele mit praktischer Kammer für Waschmaschine und Hauswirtschaft führt Sie weiter in die helle Küche mit Einbauküche (im Kaufpreis enthalten), in das angrenzende Esszimmer sowie in das weitläufige Wohnzimmer mit gemütlichem Kamin und einladender Leseecke – ein idealer Ort, um entspannte Stunden im warmen Licht des Feuers zu genießen.
Vom Wohnzimmer aus gelangen Sie sowohl auf den Balkon als auch über wenige Stufen auf die große Sonnenterrasse mit freiem Blick über Felder und Wiesen.
Der angrenzende, weitläufige Garten ist ein echtes Paradies für Ruhesuchende – ein Ort der Entspannung, des Rückzugs und der stillen Erholung. Hier finden Sie ausreichend Raum für individuelle Gartengestaltung, gemütliche Sitzecken oder einfach nur das Genießen der Natur. Ein weiteres Zimmer auf dieser Ebene bietet zusätzliche Nutzungsmöglichkeiten.
Das Wohnzimmer, Esszimmer und die Sitzecke sind mit hochwertigem Echtholz-Stäbchenparkett ausgestattet, das Wärme und Stil gleichermaßen ausstrahlt. Ein modernes Badezimmer mit Duschkabine komplettiert diese Ebene.
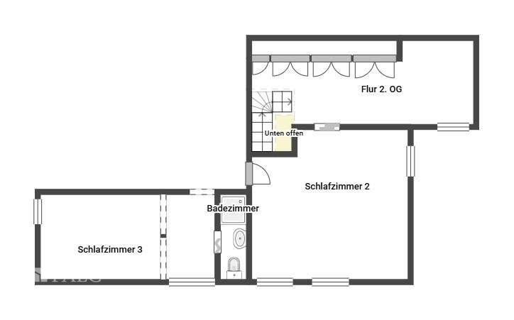
Das 2. Obergeschoss besticht durch eine großzügige Diele mit einem praktischen, großen Einbauschrank, der wertvollen Stauraum bietet. Zwei weitere, lichtdurchflutete Zimmer eröffnen vielfältige Nutzungsmöglichkeiten – ob als Schlafzimmer, Kinderzimmer oder Homeoffice, hier findet jedes Familienmitglied seinen persönlichen Rückzugsort.
Ein weiteres Badezimmer mit Duschkabine sorgt auf dieser Ebene für zusätzlichen Komfort und kurze Wege.
Dank des durchdachten Grundrisses lässt sich das gesamte 2. Obergeschoss auch hervorragend als eigenständiger Kinderbereich gestalten – mit separatem Bad, gemütlichen Rückzugsräumen und ausreichend Platz zum Spielen und Entfalten. So entsteht ein ideales Reich für die jüngeren Familienmitglieder, das Geborgenheit und Freiraum zugleich bietet.
Fazit:
Diese Wohnung vereint Großzügigkeit, Privatsphäre und Wohnkomfort in idealer Weise – ein Zuhause für Menschen, die Wert auf Raum, Ruhe und Individualität legen. Hier genießen Sie das Gefühl, im eigenen Haus zu leben – mit allen Vorzügen einer Eigentumswohnung.
Hereinkommen, wohlfühlen und genießen – in diesen vier Wänden wird Wohnen zum Erlebnis.
Bernd Zinn von FALC Immobilien Overath präsentiert Ihnen eine außergewöhnlich großzügige Eigentumswohnung mit rund 171 m² Wohnfläche und 296 m² Gesamtfläche, verteilt auf drei Etagen – ein echtes Unikat mit Hauscharakter und traumhaftem Blick ins Grüne.
Das im Jahr 1972 in solider Massivbauweise errichtete Haus überzeugt durch seine durchdachte Architektur und den besonderen Doppelhauscharakter. Die Wohnung steht sofort zum Einzug zur Verfügung und bietet damit vielfältige Nutzungsmöglichkeiten – ob als großzügiges Einfamilienparadies oder nach wenigen Umbaumaßnahmen als 2 separate Wohnungen.
Die Wohnung erstreckt sich über Erdgeschoss, 1. Obergeschoss und 2. Obergeschoss. Zusätzlich stehen Ihnen ein Kellerraum sowie ein charmanter alter Gewölbekeller zur Verfügung, der sich ideal als stilvoller Weinkeller nutzen lässt.
Im Erdgeschoss empfängt Sie ein freundlicher Eingangsbereich mit schöner heller Holztreppe und Platz für Garderobe und Stauraum. Ein helles Zimmer kann flexibel als Gäste-, Arbeits- oder Hobbyraum genutzt werden.
Im 1. Obergeschoss entfaltet sich das Herzstück dieser außergewöhnlichen Wohnung. Eine einladende Diele mit praktischer Kammer für Waschmaschine und Hauswirtschaft führt Sie weiter in die helle Küche mit Einbauküche (im Kaufpreis enthalten), in das angrenzende Esszimmer sowie in das weitläufige Wohnzimmer mit gemütlichem Kamin und einladender Leseecke – ein idealer Ort, um entspannte Stunden im warmen Licht des Feuers zu genießen.
Vom Wohnzimmer aus gelangen Sie sowohl auf den Balkon als auch über wenige Stufen auf die große Sonnenterrasse mit freiem Blick über Felder und Wiesen.
Der angrenzende, weitläufige Garten ist ein echtes Paradies für Ruhesuchende – ein Ort der Entspannung, des Rückzugs und der stillen Erholung. Hier finden Sie ausreichend Raum für individuelle Gartengestaltung, gemütliche Sitzecken oder einfach nur das Genießen der Natur. Ein weiteres Zimmer auf dieser Ebene bietet zusätzliche Nutzungsmöglichkeiten.
Das Wohnzimmer, Esszimmer und die Sitzecke sind mit hochwertigem Echtholz-Stäbchenparkett ausgestattet, das Wärme und Stil gleichermaßen ausstrahlt. Ein modernes Badezimmer mit Duschkabine komplettiert diese Ebene.
Das 2. Obergeschoss besticht durch eine großzügige Diele mit einem praktischen, großen Einbauschrank, der wertvollen Stauraum bietet. Zwei weitere, lichtdurchflutete Zimmer eröffnen vielfältige Nutzungsmöglichkeiten – ob als Schlafzimmer, Kinderzimmer oder Homeoffice, hier findet jedes Familienmitglied seinen persönlichen Rückzugsort.
Ein weiteres Badezimmer mit Duschkabine sorgt auf dieser Ebene für zusätzlichen Komfort und kurze Wege.
Dank des durchdachten Grundrisses lässt sich das gesamte 2. Obergeschoss auch hervorragend als eigenständiger Kinderbereich gestalten – mit separatem Bad, gemütlichen Rückzugsräumen und ausreichend Platz zum Spielen und Entfalten. So entsteht ein ideales Reich für die jüngeren Familienmitglieder, das Geborgenheit und Freiraum zugleich bietet.
Fazit:
Diese Wohnung vereint Großzügigkeit, Privatsphäre und Wohnkomfort in idealer Weise – ein Zuhause für Menschen, die Wert auf Raum, Ruhe und Individualität legen. Hier genießen Sie das Gefühl, im eigenen Haus zu leben – mit allen Vorzügen einer Eigentumswohnung.
Hereinkommen, wohlfühlen und genießen – in diesen vier Wänden wird Wohnen zum Erlebnis.
Ausstattungsmerkmale
| Anzahl der Etagen im Haus | 3 |
| Küche | Einbauküche |
| Bad | 2 |
| Bad | Dusche |
| Boden | Parkett, Laminat |
| Balkone | 1 |
| Garten | |
| Terrassen | 1 |
| Keller |
Ausstattung – durchdacht und großzügig:
-ca. 171 m² Wohnfläche, 296 m² Grundfläche
-solide Bausubstanz mit gepflegtem Erscheinungsbild
-Wohnfläche verteilt auf 3 Etagen
-hochwertiges Echtholz-Stäbchenparkett im Wohnzimmer, Esszimmer und Sitzecke
-Kamin im Wohnbereich
-großer, liebevoll angelegter Garten
-großzügige Terrasse mit Weitblick ins Grüne
-idyllischer Feldblick
-Abstellraum, u. a. für Waschmaschine und Wäschetrockner
-separate Küche mit Einbauküche (im Kaufpreis enthalten)
-durch überschaubare Umbaumaßnahmen in 2 Wohneinheiten teilbar
-Balkonsanierung (2025)
-Abdichtung der Terrasse (2025)
-Kompletter Anstrich der Wohnung (2026)
-ca. 171 m² Wohnfläche, 296 m² Grundfläche
-solide Bausubstanz mit gepflegtem Erscheinungsbild
-Wohnfläche verteilt auf 3 Etagen
-hochwertiges Echtholz-Stäbchenparkett im Wohnzimmer, Esszimmer und Sitzecke
-Kamin im Wohnbereich
-großer, liebevoll angelegter Garten
-großzügige Terrasse mit Weitblick ins Grüne
-idyllischer Feldblick
-Abstellraum, u. a. für Waschmaschine und Wäschetrockner
-separate Küche mit Einbauküche (im Kaufpreis enthalten)
-durch überschaubare Umbaumaßnahmen in 2 Wohneinheiten teilbar
-Balkonsanierung (2025)
-Abdichtung der Terrasse (2025)
-Kompletter Anstrich der Wohnung (2026)
Sonstige Informationen
Da Immobilienbörsen die Textlänge beschränken und nur eine begrenzte Anzahl an Bildern zulassen, stellen wir Ihnen gerne unser vollständiges Exposé zur Verfügung – einfach per E-Mail oder telefonisch bei uns anfordern.
Damit wir Ihre Anfrage schnell und zuverlässig bearbeiten können, bitten wir Sie, uns Ihre vollständigen Kontaktdaten inklusive Adresse und Telefonnummer mitzuteilen.
Überzeugen Sie sich selbst und vereinbaren Sie noch heute einen unverbindlichen Besichtigungstermin. Da wir unsere Besichtigungstermine sorgfältig und fair für alle Interessenten koordinieren, bitten wir um Verständnis, dass Terminvereinbarungen ausschließlich schriftlich per E-Mail möglich sind.
Wir freuen uns auf Ihre Kontaktaufnahme.
Ihr Ansprechpartner: Bernd Zinn
E-Mail: bernd.zinn@falcimmo.de
Büro: Hauptstraße 101, 51491 Overath
Sie möchten wissen, was Ihre Immobilie wert ist?
Denken Sie über einen Verkauf nach oder möchten den aktuellen Wert Ihrer Immobilie erfahren?
Nutzen Sie unseren kostenlosen Bewertungsservice unter:
https://www.falcimmo.de/wertermittlung-immobilien.html
oder sprechen Sie uns direkt an – wir beraten Sie gerne.
Angaben gemäß Gebäudeenergiegesetz (GEG):
Energieausweistyp: Bedarfsausweis
gültig bis: 02.11.2035
Baujahr des Hauses: 1968
Baujahr der Heizung: 1998
Hauptenergieträger: Erdgas
Energiekennwert: 266 kWh/(m²·a)
Energieeffizienzklasse: H
Unser Service – Ihr Vorteil:
Als Immobilienexperten mit zahlreichen Auszeichnungen begleiten wir Sie von der ersten Beratung bis weit über den Notartermin hinaus. Mit unserer langjährigen Erfahrung und hervorragenden Marktkenntnis unterstützen wir Sie kompetent bei Ihrem Immobilienverkauf – vertrauensvoll, transparent und erfolgreich.
Sie erreichen uns jederzeit kostenfrei unter 0800 - 646 0 646.
Wichtige Hinweise:
Die Objektbeschreibung beruht ganz oder teilweise auf den Angaben der Eigentümer. Trotz sorgfältiger Prüfung können wir keine Gewähr für die Richtigkeit und Vollständigkeit der Informationen übernehmen.
Gas und Strom rechnen Sie direkt mit den Versorgern ab. Die sonstigen umlagefähigen Nebenkosten betrugen für das Jahr 2024 264,31 EUR monatlich.
Einige der gezeigten Bilder wurden zur besseren Visualisierung digital bearbeitet.
Der ausgewiesene Preis ist ein Angebotspreis, der sich im Rahmen von Verhandlungen noch ändern kann.
Bei diesem Objekt ist nicht vorgesehen, dass der Käufer mit uns eine eigenständige Provisionsvereinbarung trifft, sofern dieser als Verbraucher (§ 14 BGB) zu qualifizieren ist. Der Verkauf erfolgt nur an denjenigen, der sich bereit erklärt, einen Teil der vom Verkäufer zugesagten Provision zu übernehmen. Dieser Anteil beträgt in diesem Fall 3,57 % inkl. MwSt. vom Kaufpreis und ist nach Abschluss des Kaufvertrages zur Zahlung fällig.
Damit wir Ihre Anfrage schnell und zuverlässig bearbeiten können, bitten wir Sie, uns Ihre vollständigen Kontaktdaten inklusive Adresse und Telefonnummer mitzuteilen.
Überzeugen Sie sich selbst und vereinbaren Sie noch heute einen unverbindlichen Besichtigungstermin. Da wir unsere Besichtigungstermine sorgfältig und fair für alle Interessenten koordinieren, bitten wir um Verständnis, dass Terminvereinbarungen ausschließlich schriftlich per E-Mail möglich sind.
Wir freuen uns auf Ihre Kontaktaufnahme.
Ihr Ansprechpartner: Bernd Zinn
E-Mail: bernd.zinn@falcimmo.de
Büro: Hauptstraße 101, 51491 Overath
Sie möchten wissen, was Ihre Immobilie wert ist?
Denken Sie über einen Verkauf nach oder möchten den aktuellen Wert Ihrer Immobilie erfahren?
Nutzen Sie unseren kostenlosen Bewertungsservice unter:
https://www.falcimmo.de/wertermittlung-immobilien.html
oder sprechen Sie uns direkt an – wir beraten Sie gerne.
Angaben gemäß Gebäudeenergiegesetz (GEG):
Energieausweistyp: Bedarfsausweis
gültig bis: 02.11.2035
Baujahr des Hauses: 1968
Baujahr der Heizung: 1998
Hauptenergieträger: Erdgas
Energiekennwert: 266 kWh/(m²·a)
Energieeffizienzklasse: H
Unser Service – Ihr Vorteil:
Als Immobilienexperten mit zahlreichen Auszeichnungen begleiten wir Sie von der ersten Beratung bis weit über den Notartermin hinaus. Mit unserer langjährigen Erfahrung und hervorragenden Marktkenntnis unterstützen wir Sie kompetent bei Ihrem Immobilienverkauf – vertrauensvoll, transparent und erfolgreich.
Sie erreichen uns jederzeit kostenfrei unter 0800 - 646 0 646.
Wichtige Hinweise:
Die Objektbeschreibung beruht ganz oder teilweise auf den Angaben der Eigentümer. Trotz sorgfältiger Prüfung können wir keine Gewähr für die Richtigkeit und Vollständigkeit der Informationen übernehmen.
Gas und Strom rechnen Sie direkt mit den Versorgern ab. Die sonstigen umlagefähigen Nebenkosten betrugen für das Jahr 2024 264,31 EUR monatlich.
Einige der gezeigten Bilder wurden zur besseren Visualisierung digital bearbeitet.
Der ausgewiesene Preis ist ein Angebotspreis, der sich im Rahmen von Verhandlungen noch ändern kann.
Bei diesem Objekt ist nicht vorgesehen, dass der Käufer mit uns eine eigenständige Provisionsvereinbarung trifft, sofern dieser als Verbraucher (§ 14 BGB) zu qualifizieren ist. Der Verkauf erfolgt nur an denjenigen, der sich bereit erklärt, einen Teil der vom Verkäufer zugesagten Provision zu übernehmen. Dieser Anteil beträgt in diesem Fall 3,57 % inkl. MwSt. vom Kaufpreis und ist nach Abschluss des Kaufvertrages zur Zahlung fällig.
Karte wird geladen...
Objektstandort
51491 Overath
- Nordrhein-Westfalen
Lage & Infrastruktur
Objektstandort
51491 Overath
- Nordrhein-Westfalen
Nah an allem was zählt...
Die Immobilie bietet eine ideale Lage für ein komfortables Familienleben. In unmittelbarer Nähe finden Sie zahlreiche Annehmlichkeiten, die den Alltag erleichtern und bereichern.
Für die Bildung Ihrer Kinder ist bestens gesorgt. Die Gemeinschaftsgrundschule Immekeppel ist nur etwa 1 km entfernt, was einen kurzen und sicheren Schulweg ermöglicht. Zudem gibt es mehrere Kindergärten in der Umgebung, darunter die KiTa & FiZ, die ebenfalls gut erreichbar ist.
Einkaufsmöglichkeiten sind ebenfalls in der Nähe. Ein Lidl und ein ALDI Süd befinden sich jeweils nur ca. 1 km entfernt, sodass der Wocheneinkauf schnell erledigt ist. Auch Apotheken wie die Berta Apotheke sind in der Nähe, um die medizinische Versorgung sicherzustellen.
Für Freizeitaktivitäten bietet die Umgebung viele Optionen. Ein Spielplatz ist in weniger als 1 km Entfernung zu finden, ideal für einen Nachmittag mit den Kindern. Zudem gibt es mehrere Parks in der Nähe, die zu Spaziergängen und Erholung im Grünen einladen.
Die Verkehrsanbindung ist hervorragend. Eine Bushaltestelle befindet sich in unmittelbarer Nähe, was den Zugang zum öffentlichen Nahverkehr erleichtert. Die nächste Autobahnauffahrt ist ebenfalls schnell erreichbar, was die Mobilität mit dem Auto komfortabel gestaltet. Der Flughafen Köln/Bonn ist etwa 30 km entfernt und bietet internationale Anbindungen.
Diese Lage kombiniert die Ruhe einer familienfreundlichen Umgebung mit der Nähe zu wichtigen Einrichtungen und einer guten Verkehrsanbindung, was sie zu einem idealen Wohnort macht.
Die Immobilie bietet eine ideale Lage für ein komfortables Familienleben. In unmittelbarer Nähe finden Sie zahlreiche Annehmlichkeiten, die den Alltag erleichtern und bereichern.
Für die Bildung Ihrer Kinder ist bestens gesorgt. Die Gemeinschaftsgrundschule Immekeppel ist nur etwa 1 km entfernt, was einen kurzen und sicheren Schulweg ermöglicht. Zudem gibt es mehrere Kindergärten in der Umgebung, darunter die KiTa & FiZ, die ebenfalls gut erreichbar ist.
Einkaufsmöglichkeiten sind ebenfalls in der Nähe. Ein Lidl und ein ALDI Süd befinden sich jeweils nur ca. 1 km entfernt, sodass der Wocheneinkauf schnell erledigt ist. Auch Apotheken wie die Berta Apotheke sind in der Nähe, um die medizinische Versorgung sicherzustellen.
Für Freizeitaktivitäten bietet die Umgebung viele Optionen. Ein Spielplatz ist in weniger als 1 km Entfernung zu finden, ideal für einen Nachmittag mit den Kindern. Zudem gibt es mehrere Parks in der Nähe, die zu Spaziergängen und Erholung im Grünen einladen.
Die Verkehrsanbindung ist hervorragend. Eine Bushaltestelle befindet sich in unmittelbarer Nähe, was den Zugang zum öffentlichen Nahverkehr erleichtert. Die nächste Autobahnauffahrt ist ebenfalls schnell erreichbar, was die Mobilität mit dem Auto komfortabel gestaltet. Der Flughafen Köln/Bonn ist etwa 30 km entfernt und bietet internationale Anbindungen.
Diese Lage kombiniert die Ruhe einer familienfreundlichen Umgebung mit der Nähe zu wichtigen Einrichtungen und einer guten Verkehrsanbindung, was sie zu einem idealen Wohnort macht.
Kontaktanfrage senden
Über den Anbieter
FALC Immobilien GmbH & Co. KG
Humperdickstr. 3
53773 Hennef (Sieg)
Kontakt
| Telefon | +49 2262 980660 |
| Mobil | +49 1515 7333007 |
| Fax | +49 2242 9010319 |
| Website | www.falcimmo.de |
Ansprechpartner/in
Herr Bernd Zinn
Weitere Angebote des Anbieters
38
Exklusive Maisonette-Wohnung in Nürnbergs begehrter ...
Wohnung
90480 Nürnberg / Zerzabelshof
Diese attraktive Maisonette-Wohnung befindet sich in einer gepflegten Wohnanlage in Mögeldorf. Die Wohnanlage wurde im Jahr 1983 erbaut und präsentiert sich in einer ansprechenden Nachbarschaft. Das hier angebotene ...
675.000 €
Kaufpreis
4421,05 €
Kaufpreis pro m²
190 m²
Wohnfläche
4
Zimmer
36
Wohn- und Bürogebäude mit Ausbaupotenzial
Haus
81737 München
In der gefragten und charmanten Lage Münchens, im Stadtteil Perlach, steht dieses beeindruckende Anwesen zum Verkauf. Mit einer Wohn- und Nutzfläche von etwa 1.450 m² auf einem großzügigen Grundstück von ca. 1.002 m² ...
3.700.000 €
Kaufpreis
2551,72 €
Kaufpreis pro m²
725 m²
Wohnfläche
14
Zimmer
5
3 Zimmer EG- Wohnung nahe Maximilian in Nürnberg
Wohnung
90429 Nürnberg
Moderne 3-Zimmer-Erdgeschosswohnung in Nürnberg, Nähe Maximilianstraße Willkommen in dieser modern renovierten 3-Zimmer-Wohnung im Erdgeschoss eines gepflegten Mehrfamilienhauses in attraktiver Lage von Nürnberg, nahe ...
360.000 €
Kaufpreis
95 m²
Wohnfläche
3
Zimmer
20
Einfamilienhaus in Erlangen-Vestenbergsgreuth
Haus
91487 Vestensbergsreuth
Dieses Einfamilienhaus aus dem Baujahr 1846 steht in einer ruhigen, wenig befahrenen Nebenstraße im Erlanger Ortsteil Vestenbergsrgreuth. Das Gebäude ist ein Baudenkmal und überzeugt durch seinen historischen Charakter ...
195.000 €
Kaufpreis
180 m²
Wohnfläche
4
Zimmer
20
Einfamilienhaus in Erlangen-Vestenbergsgreuth zu Mieten ...
Haus
91487 Vestensbergsgreuth
Dieses Einfamilienhaus aus dem Baujahr 1846 steht in einer ruhigen, wenig befahrenen Nebenstraße im Erlanger Ortsteil Vestenbergsrgreuth. Das Gebäude ist ein Baudenkmal und überzeugt durch seinen historischen Charakter ...
1.100 €
Kaltmiete
180 m²
Wohnfläche
4
Zimmer