Bestlage Dülmen: 3,5 Zimmer mit Balkon direkt an der Fußgängerzone – 64,08 m²
880 €
Kaltmiete (netto)
64,08 m²
Wohnfläche
3,5
Zimmer
immobilien.de Nr.: 9495297
Objektnummer: 433834
Mietpreis & Nebenkosten
| Kaltmiete (netto) | 880 € |
| Nebenkosten | 110 € |
| Heizkosten | 60 € |
| Kaution | 1.600 € |
Wohnfläche, Grundstück & Bausubstanz
| Wohnfläche | 64,08 m² |
| Zimmer | 3,5 |
| Baujahr | 1958 |
| Verfügbar ab | nach Absprache |
Energie
| Energieausweistyp | Verbrauch |
| Energieeffizienzklasse | D |
| Energieverbrauchkennwert | 129 kWh/(m²*a) |
| Heizungsart | Etagenheizung |
| Energieträger/Befeuerung | Gas |
Beschreibung der Immobilie
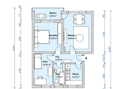
Diese hochwertig ausgestattete 3,5-Zimmer-Wohnung befindet sich im zweiten Obergeschoss links eines gepflegten Mehrfamilienhauses in absoluter Bestlage von Dülmen – direkt am Beginn der Fußgängerzone.
Die Fläche beträgt 64,08 m² nach DIN 277 und überzeugt durch eine durchdachte Raumaufteilung:
Wohnzimmer mit Zugang zum Balkon
Schlafzimmer
Kinder- oder Arbeitszimmer
Küche mit Tageslicht
Helles Bad
Der großzügige Balkon mit Blick in den ruhigen Innenhof schafft zusätzlichen Wohnkomfort mitten in der Innenstadt.
Kaltmiete: 880 €
Hausgeld: 110 € / Monat
Stellplatz optional verfügbar
Die Fläche beträgt 64,08 m² nach DIN 277 und überzeugt durch eine durchdachte Raumaufteilung:
Wohnzimmer mit Zugang zum Balkon
Schlafzimmer
Kinder- oder Arbeitszimmer
Küche mit Tageslicht
Helles Bad
Der großzügige Balkon mit Blick in den ruhigen Innenhof schafft zusätzlichen Wohnkomfort mitten in der Innenstadt.
Kaltmiete: 880 €
Hausgeld: 110 € / Monat
Stellplatz optional verfügbar
Ausstattungsmerkmale
| Anzahl der Etagen im Haus | 3 |
| Inserat befindet sich im Stockwerk | 2 |
| Bad | 1 |
| Boden | Fliesen |
| Balkone | 1 |
| Terrassen | 0 |
| Keller |
Balkon, Keller, Fliesen
Bemerkungen:
64,08 m² Fläche (DIN 277)
3,5 Zimmer
Balkon zum Innenhof
Gepflegtes, weißes Bad mit modernen Armaturen
Gas-Zentralheizung
Neue Hauseingangstür
Moderne Klingel- und Briefkastenanlage
LED-Treppenhausbeleuchtung
Neuwertige Wohnungseingangstüren
Voll unterkellert
Gemeinschaftliche Waschküche
Fahrradkeller
PKW-Stellplatz optional
Solides Baujahr 1958, gepflegte Eigentümergemeinschaft, sauberes Erscheinungsbild
Bemerkungen:
64,08 m² Fläche (DIN 277)
3,5 Zimmer
Balkon zum Innenhof
Gepflegtes, weißes Bad mit modernen Armaturen
Gas-Zentralheizung
Neue Hauseingangstür
Moderne Klingel- und Briefkastenanlage
LED-Treppenhausbeleuchtung
Neuwertige Wohnungseingangstüren
Voll unterkellert
Gemeinschaftliche Waschküche
Fahrradkeller
PKW-Stellplatz optional
Solides Baujahr 1958, gepflegte Eigentümergemeinschaft, sauberes Erscheinungsbild
Sonstige Informationen
Heizungsart: Etagenheizung
Energieträger: Gas
Vermietung direkt vom Eigentümer
Solide Verwaltung
Hausgeld nur 110 € monatlich
Stellplatz optional anmietbar
Bezug nach Vereinbarung
Makleranfragen nicht erwünscht. Nach § 7 UWG sind unaufgeforderte Kontaktaufnahmen durch Makler ohne ausdrückliche Einwilligung des Empfängers verboten!
ohne-makler (OM) ist weder Anbieter noch Vermittler der Immobilie. OM betreibt eine Plattform für Immobilieneigentümer, die unter anderem die gleichzeitige Veröffentlichung einzelner Inserate auf mehreren Immobilienportalen ermöglicht. Die Inhalte dieser Inserate werden ausschließlich von Dritten verantwortet. Für die Richtigkeit, Vollständigkeit oder Rechtmäßigkeit der Angaben übernimmt OM keine Haftung. Hinweise auf mögliche Rechtsverstöße können jederzeit gemeldet werden und werden nach Prüfung umgehend bearbeitet.
Energieträger: Gas
Vermietung direkt vom Eigentümer
Solide Verwaltung
Hausgeld nur 110 € monatlich
Stellplatz optional anmietbar
Bezug nach Vereinbarung
Makleranfragen nicht erwünscht. Nach § 7 UWG sind unaufgeforderte Kontaktaufnahmen durch Makler ohne ausdrückliche Einwilligung des Empfängers verboten!
ohne-makler (OM) ist weder Anbieter noch Vermittler der Immobilie. OM betreibt eine Plattform für Immobilieneigentümer, die unter anderem die gleichzeitige Veröffentlichung einzelner Inserate auf mehreren Immobilienportalen ermöglicht. Die Inhalte dieser Inserate werden ausschließlich von Dritten verantwortet. Für die Richtigkeit, Vollständigkeit oder Rechtmäßigkeit der Angaben übernimmt OM keine Haftung. Hinweise auf mögliche Rechtsverstöße können jederzeit gemeldet werden und werden nach Prüfung umgehend bearbeitet.
Karte wird geladen...
Objektstandort
Coesfelder Str. 20
48249 Dülmen
- Nordrhein-Westfalen
Lage & Infrastruktur
Objektstandort
Coesfelder Str. 20
48249 Dülmen
- Nordrhein-Westfalen
Direkt am Beginn der Fußgängerzone – zentraler geht es kaum.
Einkaufsmöglichkeiten, Ärzte, Cafés, Schulen und ÖPNV befinden sich in unmittelbarer Umgebung.
Sehr gute Anbindung Richtung Münster – ideal für Pendler.
Innenstadtflair kombiniert mit ruhigem Wohnen zum Innenhof.
Infrastruktur (im Umkreis von 5 km):
Lebensmittel-Discount, Allgemeinmediziner, Kindergarten, Grundschule, Hauptschule, Realschule, Gymnasium, Gesamtschule, Öffentliche Verkehrsmittel
Einkaufsmöglichkeiten, Ärzte, Cafés, Schulen und ÖPNV befinden sich in unmittelbarer Umgebung.
Sehr gute Anbindung Richtung Münster – ideal für Pendler.
Innenstadtflair kombiniert mit ruhigem Wohnen zum Innenhof.
Infrastruktur (im Umkreis von 5 km):
Lebensmittel-Discount, Allgemeinmediziner, Kindergarten, Grundschule, Hauptschule, Realschule, Gymnasium, Gesamtschule, Öffentliche Verkehrsmittel
Kontaktanfrage senden
Über den Anbieter
OM PropTech GmbH
Humboldtstraße 25a
21509 Glinde
Kontakt
| Telefon | - |
| Fax | - |
| Website | www.ohne-makler.net |
Ansprechpartner/in
Privat von Office Dülmen
Weitere Angebote des Anbieters
3
2 Einzelbüros in Bürogemeinschaft zu vermieten, 41 qm ...
Büro / Praxen
13403 Berlin
In unserem Gewerbegebäude bieten wir zwei Büroräume zuzüglich Gemeinschaftsfläche (sanitäre Anlagen) an: 31 qm sowie 70 qm. Die Räume sind sehr hell und abschließbar. Die sanitären Anlagen und die Küche werden mit den ...
keine Angabe
Preis
90 m²
Gesamtfläche
4
Preisreduzierung - 19700 m² - Kapitalanlage m² - ...
Grundstück
15732 Schulzendorf
Hiermit bieten wir ein Grundstück in der Gemeinde Schulzendorf in 15732 mit einer Flächengröße von 19.700 Quadratmetern. Die Fläche ist im Flächennutzungsplan als zukünftiges Wohnbauland und Planungsfläche ausgewiesen ...
150.000 €
Kaufpreis
19.700 m²
Grundstücksfläche
17
Kapitalanlage: 6 Einheiten vollvermietet, Neubau 2019, ...
Haus
28865 Lilienthal
Kapitalanlage nahe Bremen – 6 vollvermietete Reihenhäuser (Baujahr 2019) Zum Verkauf steht ein modernes Reihenhausensemble mit 6 Wohneinheiten in gefragter Lage von Lilienthal-Falkenberg (28865), nur wenige Minuten von ...
1.849.000 €
Kaufpreis
140 m²
Wohnfläche
5
Zimmer
13
Schöne Lichtdurchflutete 4 ZKB Wohnung
Wohnung
67227 Frankenthal
Schöne teilmöbilierten Wohnung mit einer neuen Einbauküche inkl. Gerärete.
1.400 €
Kaltmiete (netto)
101 m²
Wohnfläche
4
Zimmer
3
46m² LAGERFLÄCHE IN TOP VERKEHRSLAGE
Hallen / Lager / Produktion
12107 Berlin
Mit über 270.000 m2 Gesamtmietfläche ist MyPlace SelfStorage Ihr starker Partner für mehr Platz in Haus, Wohnung und Unternehmen. Unser Objekt in Berlin Mariendorf ist ein strategisch günstiger und durchdachter ...
889 €
Kaltmiete (netto)
46,79 m²
Gesamtfläche