Provisionsfrei* Provisionsfreie Eigentumswohnung in Berlin Lankwitz (bezugsfrei)
380.000 €
Kaufpreis
78,38 m²
Wohnfläche
3
Zimmer
immobilien.de Nr.: 9495193
Objektnummer: 134389-[26637]
Kaufpreis
| Kaufpreis | 380.000 € |
| Hausgeld | 545,35 € |
| Maklerprovision |
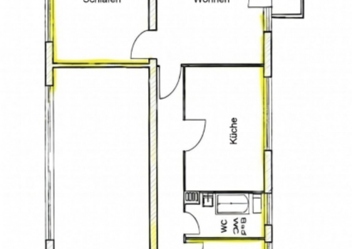
Wohnfläche, Grundstück & Bausubstanz
| Wohnfläche | 78,38 m² |
| Zimmer | 3 |
| Baujahr | 1929 |
| Verfügbar ab | sofort |
| Zustand | Gepflegt |
Energie
| Energieausweistyp | Verbrauch |
| Gültig bis | 2029-03-04 |
| Energieverbrauchkennwert | 203 kWh/(m²*a) |
| Heizungsart | Zentralheizung |
| Energieträger/Befeuerung | Gas |
Beschreibung der Immobilie
Exklusive 3-Zimmer-Wohnung mit Balkon in ruhiger Bestlage von Berlin-Lankwitz (kann sofort bezogen werden)
Diese lichtdurchflutete 3-Zimmer-Wohnung vereint eine helle Wohnatmosphäre mit einer durchdachten Raumaufteilung und einem gepflegten Gesamtzustand. Großzügige, sonnendurchflutete Zimmer schaffen ein offenes und einladendes Wohngefühl und bieten vielfältige Nutzungsmöglichkeiten - ideal für Eigennutzer mit Anspruch ebenso wie für Kapitalanleger.
Der nach Grün ausgerichtete Balkon bildet einen besonderen Rückzugsort. Hier genießen Sie Ruhe, Entspannung und sonnige Stunden in angenehmer Atmosphäre - ein perfekter Ort zum Abschalten vom Alltag.
Nachhaltige Wertanlage mit Perspektive
Dank der gefragten Wohnlage, der guten Ausrichtung und des soliden baulichen Zustands eignet sich diese Immobilie sowohl als attraktive Renditeimmobilie als auch zur hochwertigen Eigennutzung. Eine stabile Eigentümergemeinschaft mit gesunden Rücklagen sorgt für langfristige Planungssicherheit und unterstreicht die Qualität des Gesamtobjekts.
Anmerkung: Das Wohngeld beinhaltet auch die Heizkosten
Diese lichtdurchflutete 3-Zimmer-Wohnung vereint eine helle Wohnatmosphäre mit einer durchdachten Raumaufteilung und einem gepflegten Gesamtzustand. Großzügige, sonnendurchflutete Zimmer schaffen ein offenes und einladendes Wohngefühl und bieten vielfältige Nutzungsmöglichkeiten - ideal für Eigennutzer mit Anspruch ebenso wie für Kapitalanleger.
Der nach Grün ausgerichtete Balkon bildet einen besonderen Rückzugsort. Hier genießen Sie Ruhe, Entspannung und sonnige Stunden in angenehmer Atmosphäre - ein perfekter Ort zum Abschalten vom Alltag.
Nachhaltige Wertanlage mit Perspektive
Dank der gefragten Wohnlage, der guten Ausrichtung und des soliden baulichen Zustands eignet sich diese Immobilie sowohl als attraktive Renditeimmobilie als auch zur hochwertigen Eigennutzung. Eine stabile Eigentümergemeinschaft mit gesunden Rücklagen sorgt für langfristige Planungssicherheit und unterstreicht die Qualität des Gesamtobjekts.
Anmerkung: Das Wohngeld beinhaltet auch die Heizkosten
Ausstattungsmerkmale
| Anzahl der Etagen im Haus | 4 |
| Inserat befindet sich im Stockwerk | 1 |
| Küche | Einbauküche |
| Bad | 1 |
| Bad | Wanne, Fenster |
| Boden | Laminat |
| Balkone | 1 |
| Haustiere |
Die Wohnung wurde fortlaufend instandgehalten und technisch modernisiert. So wurde unter anderem der Sicherungskasten erneuert und sämtliche Elektro- und LAN- Leitungen auf einen zeitgemäßen Stand gebracht. Die Fenster des Gebäudes wurden innerhalb der letzten zehn Jahre vollständig ausgetauscht, ebenso wurde das Dach komplett erneuert - Investitionen, die langfristige Sicherheit und Werterhalt gewährleisten.
Das gepflegte Wohnhaus verfügt über breite, komfortable Treppenaufgänge. Die Wohnung liegt in der 1. Etage eines viergeschossigen Gebäudes und ist somit angenehm erreichbar. Ein großzügiger Kellerraum ergänzt das Angebot und bietet zusätzlichen Stauraum.
Sonstige Ausstattung:
- gefliestes Badezimmer
- Einbauküche
- Laminatböden
Das gepflegte Wohnhaus verfügt über breite, komfortable Treppenaufgänge. Die Wohnung liegt in der 1. Etage eines viergeschossigen Gebäudes und ist somit angenehm erreichbar. Ein großzügiger Kellerraum ergänzt das Angebot und bietet zusätzlichen Stauraum.
Sonstige Ausstattung:
- gefliestes Badezimmer
- Einbauküche
- Laminatböden
Karte wird geladen...
Objektstandort
12249 Berlin
- Berlin
Lage & Infrastruktur
Objektstandort
12249 Berlin
- Berlin
Die Wohnung befindet sich in einer sehr ruhigen Seitenstraße im beliebten Berliner Ortsteil Lankwitz. Die Derfflingerstraße zeichnet sich durch ihre grüne Umgebung, geringe Verkehrsbelastung und ein angenehmes, gewachsenes Wohnumfeld aus.
Ein besonderes Highlight des Viertels ist der traditionsreiche Wochenmarkt auf dem nahegelegenen Kranoldplatz, der regelmäßig mit frischen regionalen Produkten, Blumen und kulinarischen Spezialitäten zum Einkaufen und Verweilen einlädt und die hohe Lebensqualität der Umgebung unterstreicht.
Darüber hinaus bietet Lankwitz eine ausgezeichnete Infrastruktur mit kurzen Wegen: Einkaufsmöglichkeiten, Cafés, Restaurants, Schulen, Kitas sowie medizinische Versorgung sind bequem erreichbar. Die sehr gute Anbindung an den öffentlichen Nahverkehr (Bus und S-Bahn) ermöglicht eine schnelle Verbindung in die Berliner Innenstadt. Zahlreiche Grünflächen und Parks bieten zusätzlichen Erholungswert
Ein besonderes Highlight des Viertels ist der traditionsreiche Wochenmarkt auf dem nahegelegenen Kranoldplatz, der regelmäßig mit frischen regionalen Produkten, Blumen und kulinarischen Spezialitäten zum Einkaufen und Verweilen einlädt und die hohe Lebensqualität der Umgebung unterstreicht.
Darüber hinaus bietet Lankwitz eine ausgezeichnete Infrastruktur mit kurzen Wegen: Einkaufsmöglichkeiten, Cafés, Restaurants, Schulen, Kitas sowie medizinische Versorgung sind bequem erreichbar. Die sehr gute Anbindung an den öffentlichen Nahverkehr (Bus und S-Bahn) ermöglicht eine schnelle Verbindung in die Berliner Innenstadt. Zahlreiche Grünflächen und Parks bieten zusätzlichen Erholungswert
Kontaktanfrage senden
Über den Anbieter
immo-for-less Privat vom Eigentümer
Bierweg 19
99310 Arnstadt
Kontakt
| Telefon | |
| Mobil | |
| Fax | |
| Website | www.immo-for-less.de |
Ansprechpartner/in
von
Privat
Weitere Angebote des Anbieters
0
Barrierefreie 3-Zimmer Wohnung 90 qm mit Einbauküche ...
Wohnung
73733 Esslingen
Barrierefreie 3-Zimmer Wohnung 90 qm mit Einbauküche zu vermieten. Ideal für ältere Menschen da die Wohnung sich im EG befindet und stufenlos zu erreichen ist.
1.000 €
Kaltmiete
90 m²
Wohnfläche
3
Zimmer
1
Provisionsfrei* Wohnen & Arbeiten München - ...
Hallen / Lager / Produktion
82377 Penzberg
Exklusives Wohn- & Gewerbeanwesen am Alpenrand Wohnen. Arbeiten. Investieren. In einzigartiger Lage. Dieses außergewöhnliche Anwesen vereint modernes Wohnen, hochwertige Gewerbeflächen und eine atemberaubende ...
keine Angabe
Preis
1400 m²
Gesamtfläche
33
Provisionsfrei* 3-Zimmer Wohnung mit Balkon in ...
Wohnung
38700 Braunlage
Diese ansprechende Immobilie hat insgesamt 15 Wohneinheiten mit zwei Eingängen. Es handelt sich hierbei um eine Wohnung im Erdgeschoss mit drei gut geschnittenen Zimmern, wobei der Küchenbereich offen gestaltet ist und ...
164.900 €
Kaufpreis
84 m²
Wohnfläche
3
Zimmer
15
Großzügige 4 Zimmer Wohnung mit 185 qm
Wohnung
08468 Reichenbach
Zur Vermietung steht eine großzügige 4-Zimmer-Wohnung mit einer Wohnfläche von 185 m². Die Wohnung befindet sich in Reichenbach auf der Zwickauer Straße 35. Die Wohnung ist neu renoviert und verfügt über eine ...
850 €
Kaltmiete
185 m²
Wohnfläche
4
Zimmer
15
Provisionsfrei* Top ! Dachgeschosswohnung frisch ...
Wohnung
04299 Leipzig
Tolle Altbauwohnung mit in Leipzig Stötteritz in absoluter Parknähe Das Gebäude - ein eleganter Altbau aus der Jahrhundertwende - wurde im Rahmen einer umfassenden Sanierung Ende der Jahrtausendtwende. Dabei blieb der ...
142.500 €
Kaufpreis
50 m²
Wohnfläche
1
Zimmer