Exklusive Gartenwohnung in Köln-Deckstein – provisionsfreier Privatverkauf
597.000 €
Kaufpreis
73,56 m²
Wohnfläche
2
Zimmer
immobilien.de Nr.: 9495057
Objektnummer: 425448
Kaufpreis
| Kaufpreis | 597.000 € |
| Hausgeld | 497 € |
| Maklerprovision | keine Provision, courtagefrei |
Wohnfläche, Grundstück & Bausubstanz
| Wohnfläche | 73,56 m² |
| Zimmer | 2 |
| Baujahr | 1998 |
| Verfügbar ab | nach Absprache |
| Zustand | Gepflegt |
Energie
| Energieausweistyp | Verbrauch |
| Energieeffizienzklasse | E |
| Energieverbrauchkennwert | 139 kWh/(m²*a) |
| Heizungsart | Fußbodenheizung |
| Energieträger/Befeuerung | Gas |
Beschreibung der Immobilie
Exklusive Gartenwohnung in Köln-Deckstein – provisionsfreier Privatverkauf
Exklusive Gartenwohnung in ruhiger Bestlage von Köln-Deckstein direkt am Stadtwald
Manche Wohnungen sind mehr als nur ein Ort zum Wohnen.
Sie sind ein Rückzugsort, ein Stück Lebensqualität – ein Zuhause.
In einer der grünsten und repräsentativsten Wohnlagen Kölns, ruhig gelegen in einer verkehrsberuhigten Sackgasse in Köln-Deckstein, befindet sich diese besondere Gartenwohnung im Hochparterre eines äußerst gepflegten Mehrfamilienhauses mit lediglich fünf Wohneinheiten.
Das Wohnumfeld ist geprägt von Privatsphäre, Ruhe und einer angenehmen Nachbarschaft. Gleichzeitig ist die Kölner Innenstadt in wenigen Minuten mit dem Fahrrad oder öffentlichen Verkehrsmitteln erreichbar – eine seltene Kombination aus urbaner Nähe und naturnahem Wohnen.
Wohnqualität mit Atmosphäre
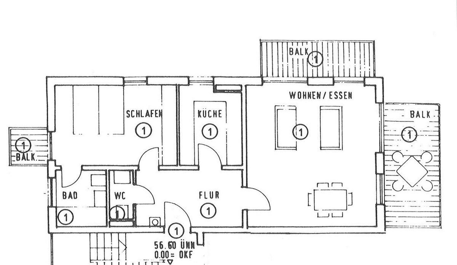
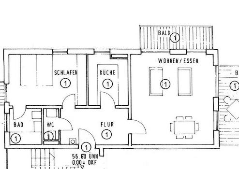
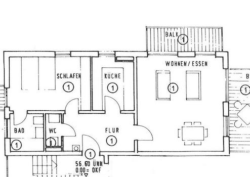
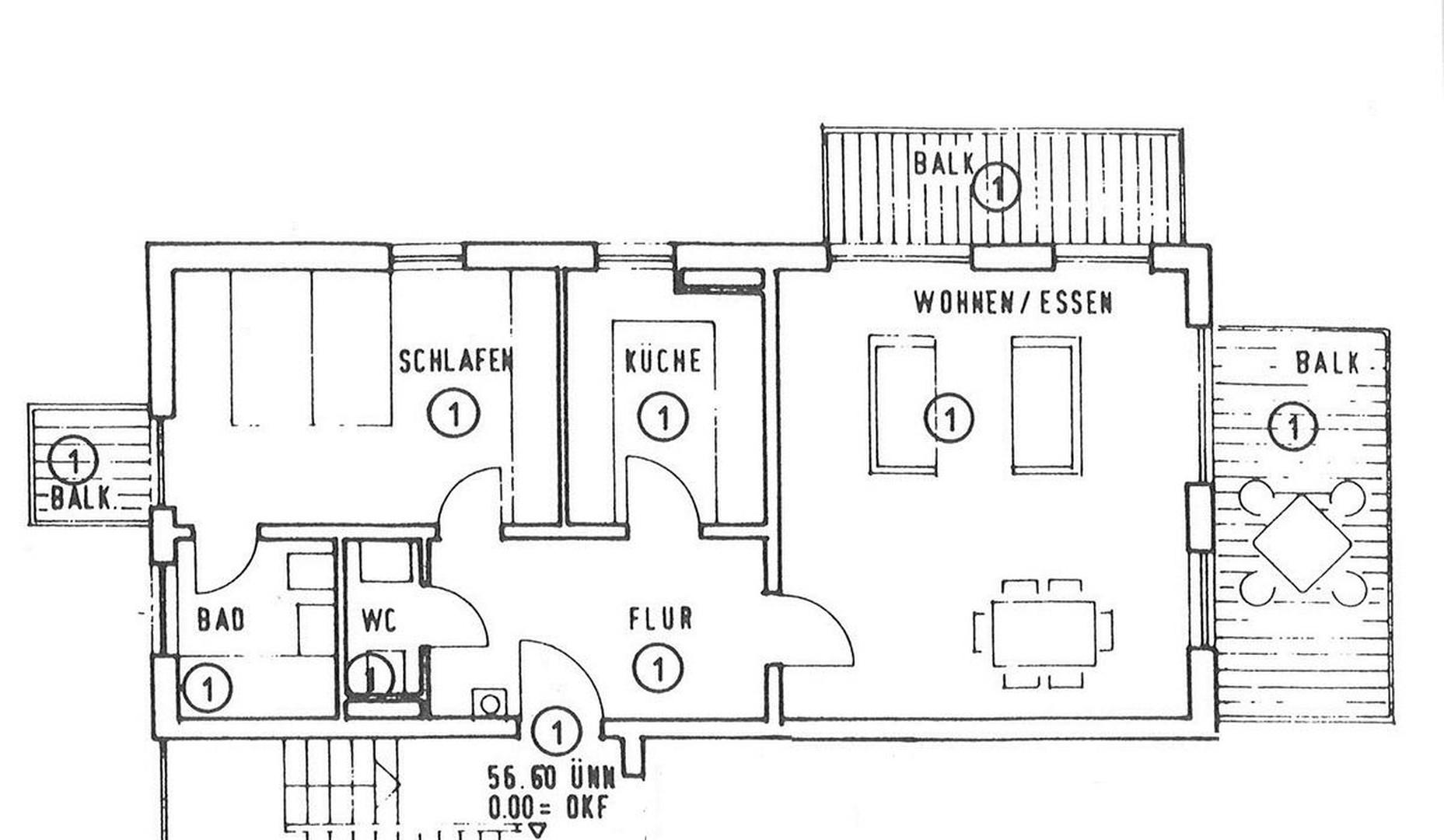
Die Wohnung verfügt über ca. 74 m² Wohnfläche und überzeugt durch eine harmonische Raumaufteilung, hochwertige Materialien und ein spürbar angenehmes Wohnambiente.
Der großzügige Wohnbereich mit edlen Eichendielen, Fußbodenheizung und großen Fensterflächen bildet das Herzstück der Wohnung. Viel Tageslicht und der Blick ins Grüne schaffen eine ruhige, warme Atmosphäre zu jeder Jahreszeit.
Die separate Küche ist mit hochwertigen Einbauten und stilvollen Terracottafliesen ausgestattet und verbindet zeitlose Eleganz mit mediterraner Wärme – ein Ort für genussvolles Kochen und Verweilen.
Das Schlafzimmer mit angrenzendem Tageslichtbad bietet eine private Rückzugsoase. Ein zusätzliches Gäste-WC ergänzt den durchdachten Grundriss ideal.
Elektrische Rollläden sorgen in allen Räumen für Komfort, Ruhe und Privatsphäre.
Ein besonderes Alleinstellungsmerkmal dieser Immobilie sind die zwei Terrassen sowie der Garten zur alleinigen Nutzung.
Ob morgens mit Kaffee im Grünen, nachmittags mit einem Buch oder abends bei einem Glas Wein – diese Terrassen und der Garten erweitern den Wohnraum auf elegante Weise ins Freie und bieten einen seltenen Rückzugsort in bester Stadtlage.
Ausstattung & Highlights
- ca. 74 m² Wohnfläche
- Hochparterre
- Sehr gepflegtes Haus mit nur 5 Wohneinheiten
- Edle Eichendielen
- Fußbodenheizung
- Elektrische Rollläden
- Tageslichtbad + separates Gäste-WC
- Zwei Terrassen & privater Garten
- Hochwertige, voll ausgestattete Küche
- Eigener Kellerraum 8 qm abschließbar
- Gemeinschaftlicher Waschkeller belüftet sehr gepflegt
- Separater Fahrradkeller
- Ruhige Sackgassenlage
- Grüne, repräsentative Wohnlage
- Tiefgaragenstellplatz kann zusätzlich angemietet werden
Sonstiges
Der Verkauf erfolgt provisionsfrei direkt durch ein Familienmitglied – es fällt keine Maklerprovision an.
Besichtigungen sowie die weitere Abwicklung werden persönlich, zuverlässig und diskret begleitet.
Diese Wohnung richtet sich an Käufer, die Qualität, Lage und ein besonderes Wohngefühl zu schätzen wissen –
Gerne stellen wir Ihnen bei ernsthaftem Interesse weitere Informationen zur Verfügung und freuen uns, Ihnen diese besondere Wohnung persönlich zeigen zu dürfen.
Das Wohnzimmer, das Schlafzimmer und die Küche haben wir beispielhaft möbliert dargestellt. So möchten wir Ihnen eine bessere Vorstellung davon geben, wie die Räume eingerichtet wirken können und welches Potenzial sie bieten. Die gezeigte Möblierung dient dabei ausschließlich zur Inspiration und kann Ihnen helfen, sich Ihr zukünftiges Zuhause lebendig vorzustellen.
Exklusive Gartenwohnung in ruhiger Bestlage von Köln-Deckstein direkt am Stadtwald
Manche Wohnungen sind mehr als nur ein Ort zum Wohnen.
Sie sind ein Rückzugsort, ein Stück Lebensqualität – ein Zuhause.
In einer der grünsten und repräsentativsten Wohnlagen Kölns, ruhig gelegen in einer verkehrsberuhigten Sackgasse in Köln-Deckstein, befindet sich diese besondere Gartenwohnung im Hochparterre eines äußerst gepflegten Mehrfamilienhauses mit lediglich fünf Wohneinheiten.
Das Wohnumfeld ist geprägt von Privatsphäre, Ruhe und einer angenehmen Nachbarschaft. Gleichzeitig ist die Kölner Innenstadt in wenigen Minuten mit dem Fahrrad oder öffentlichen Verkehrsmitteln erreichbar – eine seltene Kombination aus urbaner Nähe und naturnahem Wohnen.
Wohnqualität mit Atmosphäre
Die Wohnung verfügt über ca. 74 m² Wohnfläche und überzeugt durch eine harmonische Raumaufteilung, hochwertige Materialien und ein spürbar angenehmes Wohnambiente.
Der großzügige Wohnbereich mit edlen Eichendielen, Fußbodenheizung und großen Fensterflächen bildet das Herzstück der Wohnung. Viel Tageslicht und der Blick ins Grüne schaffen eine ruhige, warme Atmosphäre zu jeder Jahreszeit.
Die separate Küche ist mit hochwertigen Einbauten und stilvollen Terracottafliesen ausgestattet und verbindet zeitlose Eleganz mit mediterraner Wärme – ein Ort für genussvolles Kochen und Verweilen.
Das Schlafzimmer mit angrenzendem Tageslichtbad bietet eine private Rückzugsoase. Ein zusätzliches Gäste-WC ergänzt den durchdachten Grundriss ideal.
Elektrische Rollläden sorgen in allen Räumen für Komfort, Ruhe und Privatsphäre.
Ein besonderes Alleinstellungsmerkmal dieser Immobilie sind die zwei Terrassen sowie der Garten zur alleinigen Nutzung.
Ob morgens mit Kaffee im Grünen, nachmittags mit einem Buch oder abends bei einem Glas Wein – diese Terrassen und der Garten erweitern den Wohnraum auf elegante Weise ins Freie und bieten einen seltenen Rückzugsort in bester Stadtlage.
Ausstattung & Highlights
- ca. 74 m² Wohnfläche
- Hochparterre
- Sehr gepflegtes Haus mit nur 5 Wohneinheiten
- Edle Eichendielen
- Fußbodenheizung
- Elektrische Rollläden
- Tageslichtbad + separates Gäste-WC
- Zwei Terrassen & privater Garten
- Hochwertige, voll ausgestattete Küche
- Eigener Kellerraum 8 qm abschließbar
- Gemeinschaftlicher Waschkeller belüftet sehr gepflegt
- Separater Fahrradkeller
- Ruhige Sackgassenlage
- Grüne, repräsentative Wohnlage
- Tiefgaragenstellplatz kann zusätzlich angemietet werden
Sonstiges
Der Verkauf erfolgt provisionsfrei direkt durch ein Familienmitglied – es fällt keine Maklerprovision an.
Besichtigungen sowie die weitere Abwicklung werden persönlich, zuverlässig und diskret begleitet.
Diese Wohnung richtet sich an Käufer, die Qualität, Lage und ein besonderes Wohngefühl zu schätzen wissen –
Gerne stellen wir Ihnen bei ernsthaftem Interesse weitere Informationen zur Verfügung und freuen uns, Ihnen diese besondere Wohnung persönlich zeigen zu dürfen.
Das Wohnzimmer, das Schlafzimmer und die Küche haben wir beispielhaft möbliert dargestellt. So möchten wir Ihnen eine bessere Vorstellung davon geben, wie die Räume eingerichtet wirken können und welches Potenzial sie bieten. Die gezeigte Möblierung dient dabei ausschließlich zur Inspiration und kann Ihnen helfen, sich Ihr zukünftiges Zuhause lebendig vorzustellen.
Ausstattungsmerkmale
| Anzahl der Etagen im Haus | 2 |
| Inserat befindet sich im Stockwerk | 0 |
| Küche | Einbauküche |
| Bad | 1 |
| Bad | Wanne |
| Boden | Fliesen, Parkett |
| Balkone | 1 |
| Garten | |
| Terrassen | 0 |
| Keller |
Balkon, Garten, Keller, Vollbad, Einbauküche, Gäste-WC, Parkett, Fliesen
Bemerkungen:
Die Ausstattung dieser Gartenwohnung unterstreicht den hohen Anspruch an Qualität, Komfort und Wohnatmosphäre. Sämtliche Materialien wurden mit Blick auf Langlebigkeit, Ästhetik und ein stimmiges Gesamtbild ausgewählt.
Im Wohnbereich verleihen edle Eichendielen den Räumen eine warme, natürliche Eleganz. In Kombination mit der flächendeckenden Fußbodenheizung entsteht ein behagliches Wohngefühl, das sich zu jeder Jahreszeit angenehm anfühlt. Großzügige Fensterflächen sorgen für viel Tageslicht und verbinden den Innenraum harmonisch mit dem Blick ins Grüne.
Die separate Küche überzeugt durch hochwertige Einbauten und stilvolle Terracottafliesen, die dem Raum eine zeitlose, leicht mediterrane Note verleihen. Sie ist funktional durchdacht und zugleich ein Ort, an dem Kochen und Genießen selbstverständlich zusammengehören.
Das Schlafzimmer bildet gemeinsam mit dem angrenzenden Tageslichtbad einen privaten Rückzugsbereich. Das Bad ist hell und freundlich gestaltet und bietet durch das Fenster eine angenehme Belichtung und Belüftung. Ein zusätzliches, separat gelegenes Gäste-WC ergänzt den Grundriss sinnvoll und erhöht den Wohnkomfort im Alltag.
Elektrische Rollläden in allen Räumen ermöglichen eine komfortable Steuerung von Licht, Sichtschutz und Privatsphäre und tragen zusätzlich zur Ruhe und Wohnqualität bei.
Ein besonderes Ausstattungsmerkmal stellen die zwei Terrassen sowie der zur Wohnung gehörende Garten zur alleinigen Nutzung dar. Diese Außenflächen erweitern den Wohnraum auf außergewöhnliche Weise und schaffen einen privaten, geschützten Rückzugsort mitten im Grünen – eine Seltenheit in dieser Lage. Ob als ruhiger Start in den Tag oder als entspannter Ausklang am Abend: Hier wird Wohnen spürbar erlebbar.
Abgerundet wird das Angebot durch einen eigenen, abschließbaren Kellerraum, einen sehr gepflegten gemeinschaftlichen Waschkeller sowie einen separaten Fahrradkeller. Ein Tiefgaragenstellplatz kann bei Bedarf zusätzlich angemietet werden und rundet den hohen Komfort dieser Immobilie ab.
Bemerkungen:
Die Ausstattung dieser Gartenwohnung unterstreicht den hohen Anspruch an Qualität, Komfort und Wohnatmosphäre. Sämtliche Materialien wurden mit Blick auf Langlebigkeit, Ästhetik und ein stimmiges Gesamtbild ausgewählt.
Im Wohnbereich verleihen edle Eichendielen den Räumen eine warme, natürliche Eleganz. In Kombination mit der flächendeckenden Fußbodenheizung entsteht ein behagliches Wohngefühl, das sich zu jeder Jahreszeit angenehm anfühlt. Großzügige Fensterflächen sorgen für viel Tageslicht und verbinden den Innenraum harmonisch mit dem Blick ins Grüne.
Die separate Küche überzeugt durch hochwertige Einbauten und stilvolle Terracottafliesen, die dem Raum eine zeitlose, leicht mediterrane Note verleihen. Sie ist funktional durchdacht und zugleich ein Ort, an dem Kochen und Genießen selbstverständlich zusammengehören.
Das Schlafzimmer bildet gemeinsam mit dem angrenzenden Tageslichtbad einen privaten Rückzugsbereich. Das Bad ist hell und freundlich gestaltet und bietet durch das Fenster eine angenehme Belichtung und Belüftung. Ein zusätzliches, separat gelegenes Gäste-WC ergänzt den Grundriss sinnvoll und erhöht den Wohnkomfort im Alltag.
Elektrische Rollläden in allen Räumen ermöglichen eine komfortable Steuerung von Licht, Sichtschutz und Privatsphäre und tragen zusätzlich zur Ruhe und Wohnqualität bei.
Ein besonderes Ausstattungsmerkmal stellen die zwei Terrassen sowie der zur Wohnung gehörende Garten zur alleinigen Nutzung dar. Diese Außenflächen erweitern den Wohnraum auf außergewöhnliche Weise und schaffen einen privaten, geschützten Rückzugsort mitten im Grünen – eine Seltenheit in dieser Lage. Ob als ruhiger Start in den Tag oder als entspannter Ausklang am Abend: Hier wird Wohnen spürbar erlebbar.
Abgerundet wird das Angebot durch einen eigenen, abschließbaren Kellerraum, einen sehr gepflegten gemeinschaftlichen Waschkeller sowie einen separaten Fahrradkeller. Ein Tiefgaragenstellplatz kann bei Bedarf zusätzlich angemietet werden und rundet den hohen Komfort dieser Immobilie ab.
Sonstige Informationen
Heizungsart: Fußbodenheizung
Energieträger: Gas
Makleranfragen nicht erwünscht. Nach § 7 UWG sind unaufgeforderte Kontaktaufnahmen durch Makler ohne ausdrückliche Einwilligung des Empfängers verboten!
ohne-makler (OM) ist weder Anbieter noch Vermittler der Immobilie. OM betreibt eine Plattform für Immobilieneigentümer, die unter anderem die gleichzeitige Veröffentlichung einzelner Inserate auf mehreren Immobilienportalen ermöglicht. Die Inhalte dieser Inserate werden ausschließlich von Dritten verantwortet. Für die Richtigkeit, Vollständigkeit oder Rechtmäßigkeit der Angaben übernimmt OM keine Haftung. Hinweise auf mögliche Rechtsverstöße können jederzeit gemeldet werden und werden nach Prüfung umgehend bearbeitet.
Energieträger: Gas
Makleranfragen nicht erwünscht. Nach § 7 UWG sind unaufgeforderte Kontaktaufnahmen durch Makler ohne ausdrückliche Einwilligung des Empfängers verboten!
ohne-makler (OM) ist weder Anbieter noch Vermittler der Immobilie. OM betreibt eine Plattform für Immobilieneigentümer, die unter anderem die gleichzeitige Veröffentlichung einzelner Inserate auf mehreren Immobilienportalen ermöglicht. Die Inhalte dieser Inserate werden ausschließlich von Dritten verantwortet. Für die Richtigkeit, Vollständigkeit oder Rechtmäßigkeit der Angaben übernimmt OM keine Haftung. Hinweise auf mögliche Rechtsverstöße können jederzeit gemeldet werden und werden nach Prüfung umgehend bearbeitet.
Karte wird geladen...
Objektstandort
Bachemer Str. 341
50935 Köln
- Nordrhein-Westfalen
Lage & Infrastruktur
Objektstandort
Bachemer Str. 341
50935 Köln
- Nordrhein-Westfalen
Die Immobilie liegt in der Bachemer Straße im Herzen von Köln-Lindenthal – einem Stadtteil, der seit Jahrzehnten für seine besondere Wohnqualität, seine gewachsene Struktur und seine angenehme Atmosphäre geschätzt wird. Lindenthal verbindet auf harmonische Weise urbanes Leben mit grüner Ruhe und gehört zu den begehrtesten Wohnlagen der Stadt.
Die Umgebung ist geprägt von gepflegten Wohnhäusern, altem Baumbestand und einer Nachbarschaft, die Beständigkeit und Lebendigkeit vereint. Entlang der Bachemer Straße finden sich vielfältige Einkaufsmöglichkeiten, kleine Cafés, Restaurants und Dienstleister, die den Alltag angenehm und unkompliziert gestalten. Alles Wichtige liegt in komfortabler Nähe – oft nur wenige Schritte entfernt.
Die Verkehrsanbindung ist ausgezeichnet: Öffentliche Verkehrsmittel sind fußläufig erreichbar und ermöglichen eine schnelle Verbindung in die Kölner Innenstadt sowie in andere Stadtteile. Gleichzeitig bietet die Lage Rückzug und Entspannung. Nahegelegene Grünflächen und Parkanlagen laden zu Spaziergängen, sportlichen Aktivitäten oder ruhigen Momenten im Freien ein und schaffen einen wohltuenden Ausgleich zum städtischen Leben.
Auch Familien profitieren von der ausgezeichneten Infrastruktur mit Kindergärten, Schulen und medizinischer Versorgung in der Umgebung. Die Nähe zu Bildungseinrichtungen und kulturellen Angeboten verleiht dem Stadtteil zusätzlich eine lebendige, inspirierende Note.
Die Lage in der Bachemer Straße 341 steht für ein Zuhause mit Charakter – in einem Stadtteil, der Lebensqualität, Wertbeständigkeit und ein angenehmes Wohngefühl auf besondere Weise vereint.
Infrastruktur (im Umkreis von 5 km):
Apotheke, Lebensmittel-Discount, Allgemeinmediziner, Kindergarten, Grundschule, Realschule, Gymnasium, Gesamtschule, Öffentliche Verkehrsmittel
Die Umgebung ist geprägt von gepflegten Wohnhäusern, altem Baumbestand und einer Nachbarschaft, die Beständigkeit und Lebendigkeit vereint. Entlang der Bachemer Straße finden sich vielfältige Einkaufsmöglichkeiten, kleine Cafés, Restaurants und Dienstleister, die den Alltag angenehm und unkompliziert gestalten. Alles Wichtige liegt in komfortabler Nähe – oft nur wenige Schritte entfernt.
Die Verkehrsanbindung ist ausgezeichnet: Öffentliche Verkehrsmittel sind fußläufig erreichbar und ermöglichen eine schnelle Verbindung in die Kölner Innenstadt sowie in andere Stadtteile. Gleichzeitig bietet die Lage Rückzug und Entspannung. Nahegelegene Grünflächen und Parkanlagen laden zu Spaziergängen, sportlichen Aktivitäten oder ruhigen Momenten im Freien ein und schaffen einen wohltuenden Ausgleich zum städtischen Leben.
Auch Familien profitieren von der ausgezeichneten Infrastruktur mit Kindergärten, Schulen und medizinischer Versorgung in der Umgebung. Die Nähe zu Bildungseinrichtungen und kulturellen Angeboten verleiht dem Stadtteil zusätzlich eine lebendige, inspirierende Note.
Die Lage in der Bachemer Straße 341 steht für ein Zuhause mit Charakter – in einem Stadtteil, der Lebensqualität, Wertbeständigkeit und ein angenehmes Wohngefühl auf besondere Weise vereint.
Infrastruktur (im Umkreis von 5 km):
Apotheke, Lebensmittel-Discount, Allgemeinmediziner, Kindergarten, Grundschule, Realschule, Gymnasium, Gesamtschule, Öffentliche Verkehrsmittel
Kontaktanfrage senden
Über den Anbieter
OM PropTech GmbH
Humboldtstraße 25a
21509 Glinde
Kontakt
| Telefon | - |
| Fax | - |
| Website | www.ohne-makler.net |
Ansprechpartner/in
Privat von Martina Anna Wimmer
Weitere Angebote des Anbieters
18
Platzwunder, Reihenmittelhaus in begehrter Höhenlage ...
Haus
73230 Kirchheim unter Teck
Das gepflegte Reihenhaus (Baujahr 1985 Fertighaus in Holzständerbauweise gefertigt Fa. Allbert Haussmann) befindet sich in einer Sackgasse gelegen im beliebten Wohngebiet Schafhof ca. 2 km vom Stadtzentrum Kirchheim ...
509.000 €
Kaufpreis
110 m²
Wohnfläche
5
Zimmer
13
helle 4-Zimmer-Wohnung in ruhiger Lage
Wohnung
82347 Bernried
360°-Rundgang: https://www.ohne-makler.net/panorama/344307/ Diese schöne, sanierte Wohnung (ca. 120 m² inkl. Balkon in südwestlicher Ausrichtung) mit vier attraktiven und hellen Zimmern (Eichenparkett, neue ...
1.800 €
Kaltmiete (netto)
120 m²
Wohnfläche
4
Zimmer
20
WG Zimmer mit Ausblick ins Grüne – WG mit ...
Wohnung
31141 Hildesheim
360°-Rundgang: https://www.ohne-makler.net/panorama/380080/ ACHTUNG: Aktuell ist noch ein Zimmer frei - 1x EG Frauen WG hinten Links In der Männer WG im OG wird am 23.03.2026 ein Zimmer frei. 🌿 WG-Leben im Grünen – ...
440 €
Kaltmiete (netto)
20 m²
Wohnfläche
1
Zimmer
7
Landhaus unter Reetdach
Haus
25712 Hochdonn
Individuell gestaltetes Landhaus unter gepflegtem Reetdach Das liebevoll sanierte Haus, Ursprung 1845, saniert bis 2018, vereint historischen Charme mit modernem Komfort auf einem 3600 m² großen Grundstück mit ...
429.000 €
Kaufpreis
126 m²
Wohnfläche
3
Zimmer
22
Gemütliche 2 Zimmerwohnung mit Balkon und Garage in ...
Wohnung
88471 Laupheim
Zum Verkauf steht eine gepflegte 2-Zimmer-Wohnung in attraktiver Wohnlage von Laupheim. Die Wohnung befindet sich in einem ansprechenden Mehrfamilienhauskomplex aus dem Jahr 1994 und überzeugt durch eine durchdachte ...
135.000 €
Kaufpreis
43 m²
Wohnfläche
2
Zimmer