EFH mit Havelblick, Nebengelass & großem Grundstück in Briest – Ihr Sanierungsprojekt
179.000 €
Kaufpreis
157 m²
Wohnfläche
6
Zimmer
immobilien.de Nr.: 9495044
Objektnummer: 433243
Kaufpreis
| Kaufpreis | 179.000 € |
| Maklerprovision | keine Provision, courtagefrei |
Wohnfläche, Grundstück & Bausubstanz
| Wohnfläche | 157 m² |
| Grundstücksfläche | 1.050 m² |
| Zimmer | 6 |
| Verfügbar ab | nach Absprache |
| Zustand | Entkernt |
Energie
| Heizungsart | Zentralheizung |
| Energieträger/Befeuerung | Gas |
Beschreibung der Immobilie
In attraktiver Lage von Briest, nur ca. 30 Meter von der Havel entfernt und wenige Fahrminuten von Brandenburg an der Havel, befindet sich dieses Einfamilienhaus auf einem großzügigen ca. 1.050 m² großen Grundstück am Dorfanger.
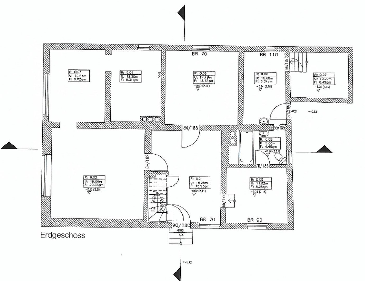
Das Haus bietet derzeit ca. 87 m² Wohnfläche im Erdgeschoss sowie weitere ca. 70 m² im Obergeschoss – insgesamt rund 157 m² Potenzial für Ihr zukünftiges Zuhause.
Ein besonderes Highlight ist der Blick zur Havel:
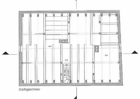
Vom Wohnzimmer sowie von der Küche genießen Sie bereits heute die Aussicht in Richtung Wasser. Das noch nicht ausgebaute Dachgeschoss eröffnet auf einer gesamten Seite einen besonders schönen Havelblick und bietet ideale Voraussetzungen für ein lichtdurchflutetes Studio, einen großzügigen Elternbereich oder ein Homeoffice mit besonderem Ambiente.
Das Wohnhaus (Baujahr ca. 1950) wurde bereits teilweise entkernt und bietet die Möglichkeit, Grundriss und Ausstattung vollständig nach eigenen Vorstellungen zu gestalten. Es handelt sich um ein umfassendes Sanierungsprojekt – ideal für Eigennutzer, die sich ihren Wohntraum individuell verwirklichen möchten.
Ein kleiner Halbpaterre-Keller ergänzt das Raumangebot.
Zusätzlich befinden sich auf dem Grundstück ein Nebengelass sowie eine ehemalige Scheune, die zuletzt als Garage genutzt wurde. Diese Flächen bieten vielfältige Nutzungsmöglichkeiten – ob als Werkstatt, Lagerraum, Hobbybereich oder zur Unterbringung von Fahrzeugen und Gartengeräten. Auch diese Gebäude bieten Potenzial zur individuellen Gestaltung oder Weiterentwicklung.
Das weitläufige Grundstück schafft Raum für Gartenliebhaber, Spielbereiche für Kinder oder entspannte Stunden im Grünen. Bitte beachten Sie, dass nicht das gesamte Grundstück direkten Wasserblick bietet.
Hier erwerben Sie eine Immobilie mit echter Lagequalität, großem Entwicklungspotenzial und einzigartigem Havelblick – eine seltene Gelegenheit, Ihr ganz persönliches Zuhause in naturnaher Umgebung mit schneller Anbindung nach Brandenburg an der Havel zu schaffen.
Das Haus bietet derzeit ca. 87 m² Wohnfläche im Erdgeschoss sowie weitere ca. 70 m² im Obergeschoss – insgesamt rund 157 m² Potenzial für Ihr zukünftiges Zuhause.
Ein besonderes Highlight ist der Blick zur Havel:
Vom Wohnzimmer sowie von der Küche genießen Sie bereits heute die Aussicht in Richtung Wasser. Das noch nicht ausgebaute Dachgeschoss eröffnet auf einer gesamten Seite einen besonders schönen Havelblick und bietet ideale Voraussetzungen für ein lichtdurchflutetes Studio, einen großzügigen Elternbereich oder ein Homeoffice mit besonderem Ambiente.
Das Wohnhaus (Baujahr ca. 1950) wurde bereits teilweise entkernt und bietet die Möglichkeit, Grundriss und Ausstattung vollständig nach eigenen Vorstellungen zu gestalten. Es handelt sich um ein umfassendes Sanierungsprojekt – ideal für Eigennutzer, die sich ihren Wohntraum individuell verwirklichen möchten.
Ein kleiner Halbpaterre-Keller ergänzt das Raumangebot.
Zusätzlich befinden sich auf dem Grundstück ein Nebengelass sowie eine ehemalige Scheune, die zuletzt als Garage genutzt wurde. Diese Flächen bieten vielfältige Nutzungsmöglichkeiten – ob als Werkstatt, Lagerraum, Hobbybereich oder zur Unterbringung von Fahrzeugen und Gartengeräten. Auch diese Gebäude bieten Potenzial zur individuellen Gestaltung oder Weiterentwicklung.
Das weitläufige Grundstück schafft Raum für Gartenliebhaber, Spielbereiche für Kinder oder entspannte Stunden im Grünen. Bitte beachten Sie, dass nicht das gesamte Grundstück direkten Wasserblick bietet.
Hier erwerben Sie eine Immobilie mit echter Lagequalität, großem Entwicklungspotenzial und einzigartigem Havelblick – eine seltene Gelegenheit, Ihr ganz persönliches Zuhause in naturnaher Umgebung mit schneller Anbindung nach Brandenburg an der Havel zu schaffen.
Ausstattungsmerkmale
| Anzahl der Etagen im Haus | 2 |
| Bad | 2 |
| Garage/Stellplätze | 1 |
Sonstige Informationen
Heizungsart: Zentralheizung
Energieträger: Gas
Energieausweis nicht vorhanden
Makleranfragen nicht erwünscht. Nach § 7 UWG sind unaufgeforderte Kontaktaufnahmen durch Makler ohne ausdrückliche Einwilligung des Empfängers verboten!
ohne-makler (OM) ist weder Anbieter noch Vermittler der Immobilie. OM betreibt eine Plattform für Immobilieneigentümer, die unter anderem die gleichzeitige Veröffentlichung einzelner Inserate auf mehreren Immobilienportalen ermöglicht. Die Inhalte dieser Inserate werden ausschließlich von Dritten verantwortet. Für die Richtigkeit, Vollständigkeit oder Rechtmäßigkeit der Angaben übernimmt OM keine Haftung. Hinweise auf mögliche Rechtsverstöße können jederzeit gemeldet werden und werden nach Prüfung umgehend bearbeitet.
Energieträger: Gas
Energieausweis nicht vorhanden
Makleranfragen nicht erwünscht. Nach § 7 UWG sind unaufgeforderte Kontaktaufnahmen durch Makler ohne ausdrückliche Einwilligung des Empfängers verboten!
ohne-makler (OM) ist weder Anbieter noch Vermittler der Immobilie. OM betreibt eine Plattform für Immobilieneigentümer, die unter anderem die gleichzeitige Veröffentlichung einzelner Inserate auf mehreren Immobilienportalen ermöglicht. Die Inhalte dieser Inserate werden ausschließlich von Dritten verantwortet. Für die Richtigkeit, Vollständigkeit oder Rechtmäßigkeit der Angaben übernimmt OM keine Haftung. Hinweise auf mögliche Rechtsverstöße können jederzeit gemeldet werden und werden nach Prüfung umgehend bearbeitet.
Karte wird geladen...
Objektstandort
Dorfstraße 7
14798 Havelsee
- Brandenburg
Kontaktanfrage senden
Über den Anbieter
OM PropTech GmbH
Humboldtstraße 25a
21509 Glinde
Kontakt
| Telefon | - |
| Fax | - |
| Website | www.ohne-makler.net |
Ansprechpartner/in
Privat von privat
Weitere Angebote des Anbieters
7
Landhaus unter Reetdach
Haus
25712 Hochdonn
Individuell gestaltetes Landhaus unter gepflegtem Reetdach Das liebevoll sanierte Haus, Ursprung 1845, saniert bis 2018, vereint historischen Charme mit modernem Komfort auf einem 3600 m² großen Grundstück mit ...
429.000 €
Kaufpreis
126 m²
Wohnfläche
3
Zimmer
22
Gemütliche 2 Zimmerwohnung mit Balkon und Garage in ...
Wohnung
88471 Laupheim
Zum Verkauf steht eine gepflegte 2-Zimmer-Wohnung in attraktiver Wohnlage von Laupheim. Die Wohnung befindet sich in einem ansprechenden Mehrfamilienhauskomplex aus dem Jahr 1994 und überzeugt durch eine durchdachte ...
135.000 €
Kaufpreis
43 m²
Wohnfläche
2
Zimmer
18
Helle 3 Zimmer Wohnung mit Terasse und Garten in ...
Wohnung
60322 Frankfurt
Diese stilvolle Hochparterre-Wohnung im begehrten Gärtnerweg vereint urbanes Leben mit absoluter Ruhe. Die Wohnung überzeugt durch ihre hochwertige Ausstattung, eine durchdachte Raumaufteilung und ein elegantes ...
1.966 €
Kaltmiete (netto)
85,5 m²
Wohnfläche
3
Zimmer
23
Schöne 3,5-Zimmer Wohnung mit Balkon & Garage - ohne ...
Wohnung
44532 Lünen
Eine schöne, lichtdurchflutete Wohnung in der 2. Etage mit Südbalkon. Die Wohnung ist ab Juli 2026 zu beziehen und wird direkt vom Eigentümer ohne Maklercourtage verkauft. Die Wohnung ist wie folgt aufgeteilt: - Die ...
185.000 €
Kaufpreis
76 m²
Wohnfläche
3,5
Zimmer
13
Schöne, helle 3,5 Zimmerwohnung in Groß-Borstel zu ...
Wohnung
22354 Hamburg
Zur Vermietung angeboten wird eine attraktive und helle 3,5-Zimmer-Wohnung mit 84 m² in Groß Borstel, verfügbar ab dem 1. Mai 2026. Die Wohnung liegt im 6.Stock mit Aufzug und verfügt über Balkon, Einbauküche, ...
1.400 €
Kaltmiete (netto)
84 m²
Wohnfläche
3,5
Zimmer