Ökologisch nachhaltiges Niedrigenergiehaus - gesund wohnen mit Lehm
679.000 €
Kaufpreis
145 m²
Wohnfläche
3,5
Zimmer
immobilien.de Nr.: 9495008
Objektnummer: 428674
Dateien
Kaufpreis
| Kaufpreis | 679.000 € |
| Maklerprovision | keine Provision, courtagefrei |
Wohnfläche, Grundstück & Bausubstanz
| Wohnfläche | 145 m² |
| Grundstücksfläche | 854 m² |
| Zimmer | 3,5 |
| Baujahr | 2001 |
| Verfügbar ab | nach Absprache |
| Zustand | Neuwertig |
Energie
| Energieausweistyp | Verbrauch |
| Energieeffizienzklasse | A |
| Energieverbrauchkennwert | 30 kWh/(m²*a) |
| Heizungsart | Fußbodenheizung |
| Energieträger/Befeuerung | Gas |
Beschreibung der Immobilie
Dieses freistehende Einfamilienhaus in Haseldorf ist ein Beispiel für gesundes, ökologisches Wohnen. Es wurde Wert auf natürliche Materialien, nachhaltige Baustoffe und ein angenehmes Raumklima gelegt. Gemütlichkeit und ein moderner, mit der Natur im Einklang ausgerichteter Lebensstil wurden hier vereint.
Ideal für Paare und kleine Familien, die Wert auf Nachhaltigkeit und Wohngesundheit legen.
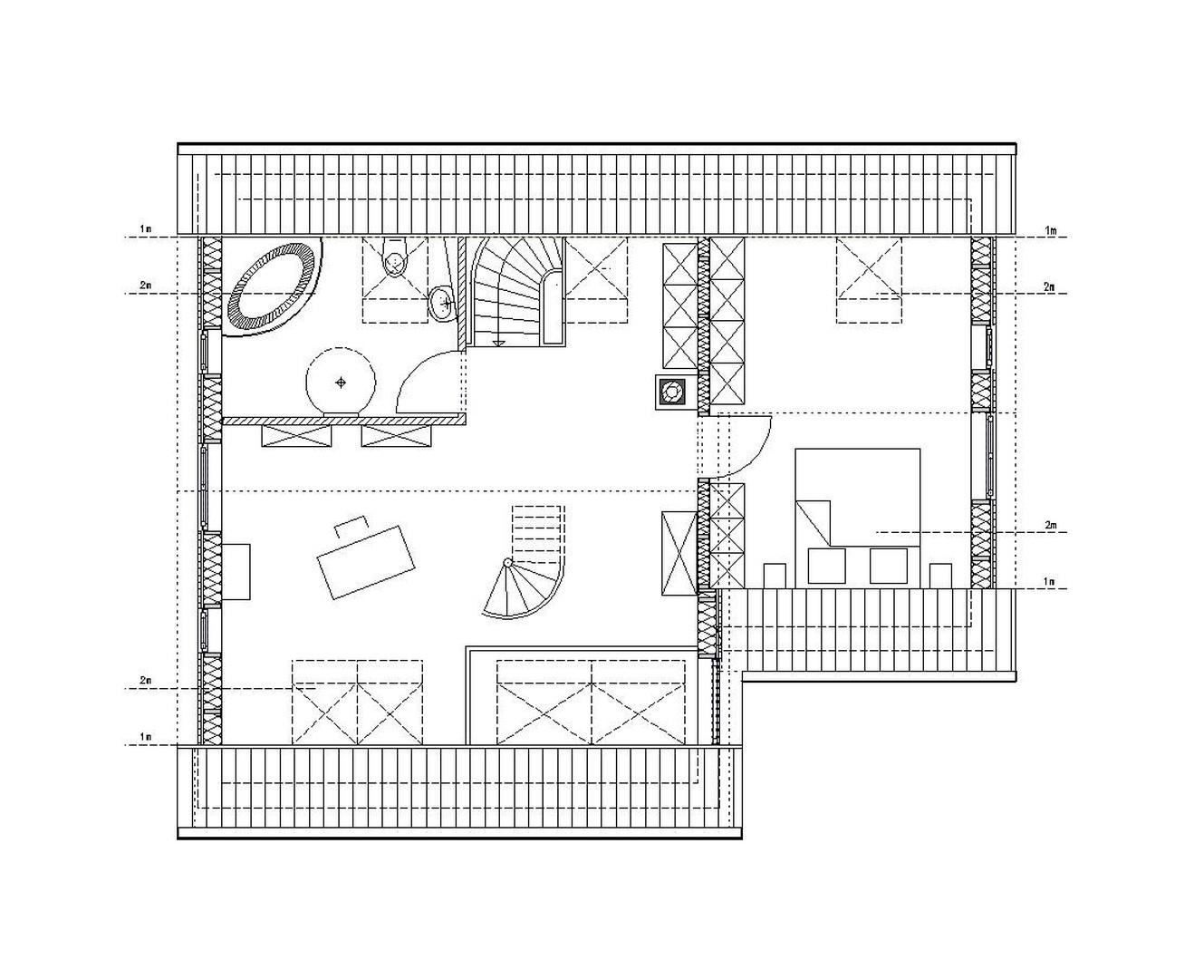
Dieses exklusive Architektenhaus bietet 145 m² Wohnfläche, 3 m Deckenhöhe im EG, einen einladenden Eingangsbereich, einen lichtdurchfluteten Wohn-Essbereich, den offenen Küchenbereich und ein Gäste-WC.
Eine große über 2 Hausseiten angelegte, nach Süden ausgerichtete Terrasse bietet tolle Sonnen- und Schattenplätze. Die Terrasse gewährt einen herrlichen Blick auf den parkähnlich angelegten Garten mit artenreicher Blumenwiese, sowie Nuss und Obstbäumen.
Eine breite geschwungene Stahlwangentreppe führt ins Obergeschoss mit der sonnigen Galerie. Im Osten liegt das geräumige Schlafzimmer sowie im Westen das helle Vollbad mit Eckwanne und bodengleicher Dusche.
Eine weitere Stahlwangentreppe erschließt das gemütliche Atelier mit seinen großen nach Norden ausgerichteten Dachflächenfenstern.
Die massiv gemauerten Außenwände mit rotem Verblend-Mauerwerk und die Holzgiebel mit Vorhangfassade aus naturbelassenem Lärchenholz sind pflegeleicht. Die sehr gute Wärmedämmung aus Zelluloseflocken bzw. Korkgranulat hält im Winter die Wärme im Haus und sorgt im Sommer für angenehme Innentemperaturen. Der Lehmputz und die massive Stampflehmwand gewährleisten ein angenehmes und natürlich reguliertes Raumklima.
Die Fußbodenheizung im Erdgeschoss und die Wandheizung im Obergeschoss arbeiten mit sehr niedrigen Vorlauftemperaturen. Die Gas-Brennwertheizung (Baujahr 2001) ist in die Solarthermieanlage mit Heizungsunterstützung und Pufferspeicher integriert. Eine Photovoltaikanlage mit Speicher (Baujahr 2022) erzeugt 3/4 des benötigten Stroms. Das Haus ist auf passive solare Gewinne und dauerhaft geringe Energiekosten ausgelegt.
Die Küche wurde 2008 erneuert und das Badfenster 2022 auf Dreifachverglasung umgestellt. 2021 wurde das Haus an das Breitbandnetz von WilhelmTel angeschlossen.
Zur Immobilie gehören eine Garage mit einem Stellplatz sowie 2-3 Außenstellplätze.
Garten und Terrasse erweitern den Wohnraum spürbar ins Freie.
Das Dachgeschoss ist ausgebaut und gedämmt.
Das Gebäude ist nicht unterkellert.
Das Haus überzeugt durch seine durchdachte Planung, die nachhaltige Bauweise, den niedrigen Energiebedarf sowie den großzügigen, hellen Grundriss.
Details
- EFH Bj. 2000/2001 in 25489 Haseldorf
- nachhaltige, natürliche Baustoffe
- gesundes schadstofffreies Wohnklima
- hohe Energieeffizienz
- sehr gute Dämmung (vergleichbar zu den Anforderungen für KFW 40/55)
- regenerative Energiequellen
- Energieverbrauch gem. Verbrauchsausweis (2023): 30,54 kWh/(m2*a)
- Energieeffizienzklasse A
- Wohnfläche ca. 145 qm
- 3 ½ Zimmer plus Atelier im DG
- Grundstück: 854qm
- Das Grundstück liegt in einer Spielstraße.
- umfangreiche Dokumentation von Planung und Bau des Hauses
Ideal für Paare und kleine Familien, die Wert auf Nachhaltigkeit und Wohngesundheit legen.
Dieses exklusive Architektenhaus bietet 145 m² Wohnfläche, 3 m Deckenhöhe im EG, einen einladenden Eingangsbereich, einen lichtdurchfluteten Wohn-Essbereich, den offenen Küchenbereich und ein Gäste-WC.
Eine große über 2 Hausseiten angelegte, nach Süden ausgerichtete Terrasse bietet tolle Sonnen- und Schattenplätze. Die Terrasse gewährt einen herrlichen Blick auf den parkähnlich angelegten Garten mit artenreicher Blumenwiese, sowie Nuss und Obstbäumen.
Eine breite geschwungene Stahlwangentreppe führt ins Obergeschoss mit der sonnigen Galerie. Im Osten liegt das geräumige Schlafzimmer sowie im Westen das helle Vollbad mit Eckwanne und bodengleicher Dusche.
Eine weitere Stahlwangentreppe erschließt das gemütliche Atelier mit seinen großen nach Norden ausgerichteten Dachflächenfenstern.
Die massiv gemauerten Außenwände mit rotem Verblend-Mauerwerk und die Holzgiebel mit Vorhangfassade aus naturbelassenem Lärchenholz sind pflegeleicht. Die sehr gute Wärmedämmung aus Zelluloseflocken bzw. Korkgranulat hält im Winter die Wärme im Haus und sorgt im Sommer für angenehme Innentemperaturen. Der Lehmputz und die massive Stampflehmwand gewährleisten ein angenehmes und natürlich reguliertes Raumklima.
Die Fußbodenheizung im Erdgeschoss und die Wandheizung im Obergeschoss arbeiten mit sehr niedrigen Vorlauftemperaturen. Die Gas-Brennwertheizung (Baujahr 2001) ist in die Solarthermieanlage mit Heizungsunterstützung und Pufferspeicher integriert. Eine Photovoltaikanlage mit Speicher (Baujahr 2022) erzeugt 3/4 des benötigten Stroms. Das Haus ist auf passive solare Gewinne und dauerhaft geringe Energiekosten ausgelegt.
Die Küche wurde 2008 erneuert und das Badfenster 2022 auf Dreifachverglasung umgestellt. 2021 wurde das Haus an das Breitbandnetz von WilhelmTel angeschlossen.
Zur Immobilie gehören eine Garage mit einem Stellplatz sowie 2-3 Außenstellplätze.
Garten und Terrasse erweitern den Wohnraum spürbar ins Freie.
Das Dachgeschoss ist ausgebaut und gedämmt.
Das Gebäude ist nicht unterkellert.
Das Haus überzeugt durch seine durchdachte Planung, die nachhaltige Bauweise, den niedrigen Energiebedarf sowie den großzügigen, hellen Grundriss.
Details
- EFH Bj. 2000/2001 in 25489 Haseldorf
- nachhaltige, natürliche Baustoffe
- gesundes schadstofffreies Wohnklima
- hohe Energieeffizienz
- sehr gute Dämmung (vergleichbar zu den Anforderungen für KFW 40/55)
- regenerative Energiequellen
- Energieverbrauch gem. Verbrauchsausweis (2023): 30,54 kWh/(m2*a)
- Energieeffizienzklasse A
- Wohnfläche ca. 145 qm
- 3 ½ Zimmer plus Atelier im DG
- Grundstück: 854qm
- Das Grundstück liegt in einer Spielstraße.
- umfangreiche Dokumentation von Planung und Bau des Hauses
Ausstattungsmerkmale
| Anzahl der Etagen im Haus | 3 |
| Küche | Einbauküche |
| Bad | 1 |
| Bad | Dusche, Wanne |
| Boden | Fliesen, Teppich |
| Balkone | 0 |
| Garten | |
| Terrassen | 1 |
| Garage/Stellplätze | 1 |
Terrasse, Garten, Vollbad, Duschbad, Einbauküche, Gäste-WC, Kamin, Teppichboden, Fliesen, Sonstiges (s. Text)
Bemerkungen:
Kurzfassung:
- lichtdurchfluteter offener Wohn-Essbereich
- großzügige 3m Deckenhöhe im Erdgeschoss
- repräsentative Trennwand aus sichtbarem Stampflehm
- offene hochwertige Einbauküche mit Insel
- Speisekammer direkt neben der Küche
- Gäste WC im Erdgeschoss
- 2,6m Deckenhöhe im Obergeschoss
- zum EG offene Galerie mit Stahlgeländer im Obergeschoss
- helles Vollbad mit Eckwanne und bodengleicher Dusche im Obergeschoss
- gemütliches Atelier im Dachgeschoss
- geschwungene Stahlwangentreppen mit Buchenholzstufen ins OG und DG
- dänische Holzfenster und Dachflächenfenster (mit Hitzeschutzmarkiesen im OG und DG)
- hochwertige und nachhaltige Dämmung aus Korkgranulat- und Zelluloseflocken
- natürliche Feuchteregulierung durch Lehmputz an Wänden und Dachschrägen
- schadstofffreier Innenanstrich aus Kalk Kasein- und Silikatfarben
- Böden im EG aus unempfindlichem Cotto- bzw Terrazzo-Belag
- Bodenbelag im OG aus Kiefer Kurzdielen auf Trittschalldämmung, Fliesen im Bad
- Hochwertiger schadstofffreier Teppichbodenbelag im Atelier
- naturbelassene sichtbare Holzbalkendecken und Balken
Technik:
- hocheffiziente Gas-Brennwert-Heizung im Solar-Schichtenspeicher
- Solarthermie mit 7,5m² und solarer Heizungsunterstützung
- sicherer Legionellenschutz durch Warmwasserbereitung über Plattenwärmetauscher
- Hydraulischer Abgleich der Heizungsanlage
- Nachtabsenkung
- natürliche Fensterlüftung
- Kamin zum Anschluss eines Holzofens
- Fußbodenheizung im Erdgeschoss
- Wandheizung in den Dachschrägen im Obergeschoss
- PV Anlage mit 6,75 kWp und 5 kWh Speicher (2022)
- schnelles Internet - Glasfaser Anschluss bis zu 1000 Mbits
- Wallbox Vorbereitung in der Garage, 400 V Anschluss
- 5000 l Regenwasserzisterne aus Beton zur Regenwassernutzung
Außen:
- Hofauffahrt mit 2-3 Stellplätzen, wenig Straßenfront
- massiv gemauerte große Garage und Gartengeräteraum
- parkähnlich angelegter Garten mit artenreicher Blumenwiese, Nuss- und Obstbäumen.
- große Süd-Terrasse über 2 Hausseiten
- Eingangsüberdachung aus Stahlprofilen und Echtglas
- massiv gemauerte Außenwände mit rotem Verblend-Mauerwerk (U-Wert 0,21 W/m²K)
- Holzgiebel mit Vorhangfassade aus naturbelassenem Lärchenholz (U-Wert 0,17 W/m²K)
- Dach mit Eindeckung aus roten Tonziegeln (U-Wert 0,17 W/m²K)
Bemerkungen:
Kurzfassung:
- lichtdurchfluteter offener Wohn-Essbereich
- großzügige 3m Deckenhöhe im Erdgeschoss
- repräsentative Trennwand aus sichtbarem Stampflehm
- offene hochwertige Einbauküche mit Insel
- Speisekammer direkt neben der Küche
- Gäste WC im Erdgeschoss
- 2,6m Deckenhöhe im Obergeschoss
- zum EG offene Galerie mit Stahlgeländer im Obergeschoss
- helles Vollbad mit Eckwanne und bodengleicher Dusche im Obergeschoss
- gemütliches Atelier im Dachgeschoss
- geschwungene Stahlwangentreppen mit Buchenholzstufen ins OG und DG
- dänische Holzfenster und Dachflächenfenster (mit Hitzeschutzmarkiesen im OG und DG)
- hochwertige und nachhaltige Dämmung aus Korkgranulat- und Zelluloseflocken
- natürliche Feuchteregulierung durch Lehmputz an Wänden und Dachschrägen
- schadstofffreier Innenanstrich aus Kalk Kasein- und Silikatfarben
- Böden im EG aus unempfindlichem Cotto- bzw Terrazzo-Belag
- Bodenbelag im OG aus Kiefer Kurzdielen auf Trittschalldämmung, Fliesen im Bad
- Hochwertiger schadstofffreier Teppichbodenbelag im Atelier
- naturbelassene sichtbare Holzbalkendecken und Balken
Technik:
- hocheffiziente Gas-Brennwert-Heizung im Solar-Schichtenspeicher
- Solarthermie mit 7,5m² und solarer Heizungsunterstützung
- sicherer Legionellenschutz durch Warmwasserbereitung über Plattenwärmetauscher
- Hydraulischer Abgleich der Heizungsanlage
- Nachtabsenkung
- natürliche Fensterlüftung
- Kamin zum Anschluss eines Holzofens
- Fußbodenheizung im Erdgeschoss
- Wandheizung in den Dachschrägen im Obergeschoss
- PV Anlage mit 6,75 kWp und 5 kWh Speicher (2022)
- schnelles Internet - Glasfaser Anschluss bis zu 1000 Mbits
- Wallbox Vorbereitung in der Garage, 400 V Anschluss
- 5000 l Regenwasserzisterne aus Beton zur Regenwassernutzung
Außen:
- Hofauffahrt mit 2-3 Stellplätzen, wenig Straßenfront
- massiv gemauerte große Garage und Gartengeräteraum
- parkähnlich angelegter Garten mit artenreicher Blumenwiese, Nuss- und Obstbäumen.
- große Süd-Terrasse über 2 Hausseiten
- Eingangsüberdachung aus Stahlprofilen und Echtglas
- massiv gemauerte Außenwände mit rotem Verblend-Mauerwerk (U-Wert 0,21 W/m²K)
- Holzgiebel mit Vorhangfassade aus naturbelassenem Lärchenholz (U-Wert 0,17 W/m²K)
- Dach mit Eindeckung aus roten Tonziegeln (U-Wert 0,17 W/m²K)
Sonstige Informationen
Heizungsart: Fußbodenheizung
Energieträger: Gas
Schlagworte für Informationen im Internet
moderner Lehmbau in der Praxis
ökologisch bauen
Wikipedia: Haseldorf
NDR: Haseldorfer Marsch - Naturidyll an der Elbe
Amt-Geest-und-Marsch-Südholstein: Gemeinde Haseldorf
Haben Sie Interesse, dann freuen wir uns auf Ihre Nachricht.
Ein exklusiver 360-Grad-Rundgang steht Ihnen bei Interesse und auf Anfrage zur Verfügung.
Makleranfragen nicht erwünscht. Nach § 7 UWG sind unaufgeforderte Kontaktaufnahmen durch Makler ohne ausdrückliche Einwilligung des Empfängers verboten!
ohne-makler (OM) ist weder Anbieter noch Vermittler der Immobilie. OM betreibt eine Plattform für Immobilieneigentümer, die unter anderem die gleichzeitige Veröffentlichung einzelner Inserate auf mehreren Immobilienportalen ermöglicht. Die Inhalte dieser Inserate werden ausschließlich von Dritten verantwortet. Für die Richtigkeit, Vollständigkeit oder Rechtmäßigkeit der Angaben übernimmt OM keine Haftung. Hinweise auf mögliche Rechtsverstöße können jederzeit gemeldet werden und werden nach Prüfung umgehend bearbeitet.
Energieträger: Gas
Schlagworte für Informationen im Internet
moderner Lehmbau in der Praxis
ökologisch bauen
Wikipedia: Haseldorf
NDR: Haseldorfer Marsch - Naturidyll an der Elbe
Amt-Geest-und-Marsch-Südholstein: Gemeinde Haseldorf
Haben Sie Interesse, dann freuen wir uns auf Ihre Nachricht.
Ein exklusiver 360-Grad-Rundgang steht Ihnen bei Interesse und auf Anfrage zur Verfügung.
Makleranfragen nicht erwünscht. Nach § 7 UWG sind unaufgeforderte Kontaktaufnahmen durch Makler ohne ausdrückliche Einwilligung des Empfängers verboten!
ohne-makler (OM) ist weder Anbieter noch Vermittler der Immobilie. OM betreibt eine Plattform für Immobilieneigentümer, die unter anderem die gleichzeitige Veröffentlichung einzelner Inserate auf mehreren Immobilienportalen ermöglicht. Die Inhalte dieser Inserate werden ausschließlich von Dritten verantwortet. Für die Richtigkeit, Vollständigkeit oder Rechtmäßigkeit der Angaben übernimmt OM keine Haftung. Hinweise auf mögliche Rechtsverstöße können jederzeit gemeldet werden und werden nach Prüfung umgehend bearbeitet.
Karte wird geladen...
Objektstandort
25489 Haseldorf
- Schleswig-Holstein
Lage & Infrastruktur
Objektstandort
25489 Haseldorf
- Schleswig-Holstein
Haseldorf liegt in Schleswig-Holstein im Kreis Pinneberg an der Elbe. Es ist eines der ältesten Dörfer Schleswig-Holsteins und ist bekannt für seine landschaftliche Schönheit mit dem Naturschutzgebiet "Haseldorfer Marsch".
Viele Erledigungen können in wenigen Minuten zu Fuß oder mit dem Fahrrad bewältigt werden.
Haseldorf hat ein aktives Vereinsleben.
Infrastruktur im Ort und drumherum:
- Spielplatz: 300m
- Kita "Elb Arche": 1100m
- Grundschule Haseldorfer Marsch: 900m
- Sportzentrum: 900m
- Bushaltestelle: 200m bzw. 1000m
- Arztpraxis Haseldorf: 700m
- Raiffeisenbank: 800m
- Obst- und Gemüseverkauf: 1500m
- Bäckerei: 1600m
- Schlachterei: 2100m
- Supermarkt Heist: 6km
- Restaurant: 1600m
- Haseldorfer Hafen und Imbiss: 2800m
- Golfplatz: 3100m
- Elbstrand Hetlinger Schanze 5km
- Amtsverwaltung: 6km
- Uetersen: 10km
- Wedel: 15km
- Hamburg Zentrum: 35km
Verkehrsanbindung:
- Zur Autobahn A23 (Richtung Hamburg/Heide) ca. 16 km.
- Der Bus 589 fährt stündlich zum S Bahnhof Wedel.
Es gibt gute Versorgungmöglichkeiten vor Ort und in den umliegenden Städten. In Haseldorf kann man in einer dörflichen Umgebung an der Elbe wohnen und ist trotzdem gut an Hamburg angebunden.
Infrastruktur (im Umkreis von 5 km):
Apotheke, Lebensmittel-Discount, Allgemeinmediziner, Kindergarten, Grundschule, Öffentliche Verkehrsmittel
Viele Erledigungen können in wenigen Minuten zu Fuß oder mit dem Fahrrad bewältigt werden.
Haseldorf hat ein aktives Vereinsleben.
Infrastruktur im Ort und drumherum:
- Spielplatz: 300m
- Kita "Elb Arche": 1100m
- Grundschule Haseldorfer Marsch: 900m
- Sportzentrum: 900m
- Bushaltestelle: 200m bzw. 1000m
- Arztpraxis Haseldorf: 700m
- Raiffeisenbank: 800m
- Obst- und Gemüseverkauf: 1500m
- Bäckerei: 1600m
- Schlachterei: 2100m
- Supermarkt Heist: 6km
- Restaurant: 1600m
- Haseldorfer Hafen und Imbiss: 2800m
- Golfplatz: 3100m
- Elbstrand Hetlinger Schanze 5km
- Amtsverwaltung: 6km
- Uetersen: 10km
- Wedel: 15km
- Hamburg Zentrum: 35km
Verkehrsanbindung:
- Zur Autobahn A23 (Richtung Hamburg/Heide) ca. 16 km.
- Der Bus 589 fährt stündlich zum S Bahnhof Wedel.
Es gibt gute Versorgungmöglichkeiten vor Ort und in den umliegenden Städten. In Haseldorf kann man in einer dörflichen Umgebung an der Elbe wohnen und ist trotzdem gut an Hamburg angebunden.
Infrastruktur (im Umkreis von 5 km):
Apotheke, Lebensmittel-Discount, Allgemeinmediziner, Kindergarten, Grundschule, Öffentliche Verkehrsmittel
Kontaktanfrage senden
Über den Anbieter
OM PropTech GmbH
Humboldtstraße 25a
21509 Glinde
Kontakt
| Telefon | - |
| Fax | - |
| Website | www.ohne-makler.net |
Ansprechpartner/in
Privat vom Eigentümer
Weitere Angebote des Anbieters
14
Kernsanierte Wohnung in Dorfmitte mit hochwertigem ...
Wohnung
78262 Gailingen
Entdecken Sie Ihr neues Zuhause im Herzen von Gailingen! Diese hochwertig sanierte 2,5-Zimmer-Wohnung im ersten Obergeschoss verbindet modernen Komfort mit durchdachter Nachhaltigkeit. Auf ca. 65 m² Wohnfläche erwartet ...
1.190 €
Kaltmiete (netto)
87 m²
Wohnfläche
2,5
Zimmer
7
2 Zimmerwohnung in Schmargendorf, unvermietet
Wohnung
14193 Berlin
Die Wohnung liegt im 2. Obergeschoss eines gepflegten, viergeschossigen Wohnhauses mit ausgebautem Dachgeschoss. Die Wohnfläche von ca. 55 m² umfasst eine Diele, eine ebenerdige Dusche mit Fenster, eine Küche mit ...
350.000 €
Kaufpreis
54,47 m²
Wohnfläche
2
Zimmer
13
Exklusive Gartenwohnung in Köln-Deckstein – ...
Wohnung
50935 Köln
Exklusive Gartenwohnung in Köln-Deckstein – provisionsfreier Privatverkauf Exklusive Gartenwohnung in ruhiger Bestlage von Köln-Deckstein direkt am Stadtwald Manche Wohnungen sind mehr als nur ein Ort zum Wohnen. Sie ...
597.000 €
Kaufpreis
73,56 m²
Wohnfläche
2
Zimmer
8
Eigentumswohnung in Düsseldorf Unterbilk
Wohnung
40217 Düsseldorf
Großzügiges Wohnerlebnis im Herzen von Düsseldorf-Unterbilk Objektbeschreibung Diese helle und weitläufige Wohnung im 1. Obergeschoss besticht durch eine beeindruckende Gesamtwohnfläche von ca. 120,50 m². Die ...
549.000 €
Kaufpreis
122 m²
Wohnfläche
4
Zimmer
5
Altbauwohnung mit Balkon und Grünblick in ...
Wohnung
14197 Berlin
Die 3-Zimmerwohnung mit einer Wohnfläche von ca. 85 m² befindet sich im 2. Obergeschoss eines gut gepflegten Wohnhauses. Sie ist nach zwei Himmelsrichtungen ausgerichtet und überzeugt durch ihre praktische ...
350.000 €
Kaufpreis
85 m²
Wohnfläche
3
Zimmer