Gepflegtes Einfamilienhaus im Gartenhof-Stil mit hoher Privatssphäre - modernisiert und bezugsbereit
655.000 €
Kaufpreis
149 m²
Wohnfläche
5
Zimmer
immobilien.de Nr.: 9493624
Objektnummer: 428271
Kaufpreis
| Kaufpreis | 655.000 € |
| Maklerprovision | keine Provision, courtagefrei |
Wohnfläche, Grundstück & Bausubstanz
| Wohnfläche | 149 m² |
| Grundstücksfläche | 322 m² |
| Zimmer | 5 |
| Baujahr | 1983 |
| Verfügbar ab | sofort |
| Zustand | Gepflegt |
Energie
| Energieausweistyp | Bedarfsausweis |
| Energieeffizienzklasse | D |
| Endenergiebedarf | 114 |
| Heizungsart | Fußbodenheizung |
| Energieträger/Befeuerung | Elektro |
Beschreibung der Immobilie
Keine Maklerkosten!
Dieses Einfamilienhaus als Reiheneckhaus im beliebten Gartenhof-Baustil (Baujahr 1983) verbindet durchdachte Architektur mit hoher Wohnqualität. Es liegt in einer gewachsenen, familienfreundlichen Nachbarschaft in Münster-Hiltrup-West.
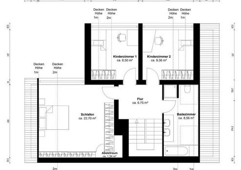
Mit knapp 150 m² Wohnfläche, großzügigem Grundriss sowie einem ca. 50 m² großen Keller bietet das Haus ideale Voraussetzungen für Familien mit bis zu drei Kindern und moderne Arbeitsanforderungen.
Wohnen mit Weitblick und Rückzug
Herzstück ist der helle Wohn- und Essbereich in L-Form mit beeindruckenden 8,63 m Raumbreite. Hochwertiger italienischer Marmorboden mit Fußbodenheizung sorgt für ein offenes Raumgefühl. Die sonnige Terrasse ist mit hochwertigen Fliesen ausgestattet und verfügt über eine neue elektrische Markise (2023). Durch die Ecklage genießen alle Räume maximale Privatsphäre und freien Blick ins Grüne. Der Keller bietet zusätzlichen Stauraum.
Flexible Nutzung – vorbereitet auf die Arbeitswelt von morgen
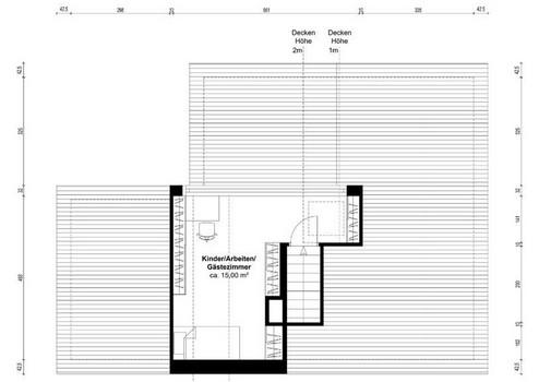
Das ausgebaute Dachgeschoss eignet sich ideal als ruhiges Homeoffice oder Gästezimmer. Die räumliche Trennung ermöglicht konzentriertes Arbeiten und bietet hohe Flexibilität für zukünftige Lebens- und Arbeitsmodelle.
Energieeffizient und zukunftssicher
Gute Dach- und Fassadendämmung, 2-fach verglaste Fenster sowie die komplette Erneuerung der Heizung in 2024 (Luftwärmepumpe, Investition ca. 40.000 €) führen zu einem soliden Energiekennwert D (114,8 kWh/m²). Weitere Maßnahmen (Fenster, Lüftung, PV) sind optional. Ein individueller Sanierungsfahrplan (ISFP) eines unabhängigen Energieberaters liegt vor.
Hochwertige Einbauten – direkt einziehen
Maßgefertigte Einbaumöbel optimieren die Wohnfläche, insbesondere im 1. OG und Dachgeschoss. Zeitlose Gaggenau-Einbauküche, Maßgarderobe, Holzkamin, flexibel bearbeitbares Mahagoni-Holz im Erdgeschoss, ausgestattete Kinderzimmer, Einbauschränke im Elternschlafzimmer sowie ein modernes Bad mit wandhängenden Möbeln runden das Angebot ab.
Dieses Einfamilienhaus als Reiheneckhaus im beliebten Gartenhof-Baustil (Baujahr 1983) verbindet durchdachte Architektur mit hoher Wohnqualität. Es liegt in einer gewachsenen, familienfreundlichen Nachbarschaft in Münster-Hiltrup-West.
Mit knapp 150 m² Wohnfläche, großzügigem Grundriss sowie einem ca. 50 m² großen Keller bietet das Haus ideale Voraussetzungen für Familien mit bis zu drei Kindern und moderne Arbeitsanforderungen.
Wohnen mit Weitblick und Rückzug
Herzstück ist der helle Wohn- und Essbereich in L-Form mit beeindruckenden 8,63 m Raumbreite. Hochwertiger italienischer Marmorboden mit Fußbodenheizung sorgt für ein offenes Raumgefühl. Die sonnige Terrasse ist mit hochwertigen Fliesen ausgestattet und verfügt über eine neue elektrische Markise (2023). Durch die Ecklage genießen alle Räume maximale Privatsphäre und freien Blick ins Grüne. Der Keller bietet zusätzlichen Stauraum.
Flexible Nutzung – vorbereitet auf die Arbeitswelt von morgen
Das ausgebaute Dachgeschoss eignet sich ideal als ruhiges Homeoffice oder Gästezimmer. Die räumliche Trennung ermöglicht konzentriertes Arbeiten und bietet hohe Flexibilität für zukünftige Lebens- und Arbeitsmodelle.
Energieeffizient und zukunftssicher
Gute Dach- und Fassadendämmung, 2-fach verglaste Fenster sowie die komplette Erneuerung der Heizung in 2024 (Luftwärmepumpe, Investition ca. 40.000 €) führen zu einem soliden Energiekennwert D (114,8 kWh/m²). Weitere Maßnahmen (Fenster, Lüftung, PV) sind optional. Ein individueller Sanierungsfahrplan (ISFP) eines unabhängigen Energieberaters liegt vor.
Hochwertige Einbauten – direkt einziehen
Maßgefertigte Einbaumöbel optimieren die Wohnfläche, insbesondere im 1. OG und Dachgeschoss. Zeitlose Gaggenau-Einbauküche, Maßgarderobe, Holzkamin, flexibel bearbeitbares Mahagoni-Holz im Erdgeschoss, ausgestattete Kinderzimmer, Einbauschränke im Elternschlafzimmer sowie ein modernes Bad mit wandhängenden Möbeln runden das Angebot ab.
Ausstattungsmerkmale
| Anzahl der Etagen im Haus | 3 |
| Küche | Einbauküche |
| Bad | 1 |
| Bad | Wanne |
| Balkone | 0 |
| Garten | |
| Terrassen | 1 |
| Garage/Stellplätze | 1 |
| Keller |
Terrasse, Garten, Keller, Vollbad, Einbauküche, Gäste-WC, Kamin, Sonstiges (s. Text)
Sonstige Informationen
Heizungsart: Fußbodenheizung
Energieträger: Strom
Makleranfragen nicht erwünscht. Nach § 7 UWG sind unaufgeforderte Kontaktaufnahmen durch Makler ohne ausdrückliche Einwilligung des Empfängers verboten!
ohne-makler (OM) ist weder Anbieter noch Vermittler der Immobilie. OM betreibt eine Plattform für Immobilieneigentümer, die unter anderem die gleichzeitige Veröffentlichung einzelner Inserate auf mehreren Immobilienportalen ermöglicht. Die Inhalte dieser Inserate werden ausschließlich von Dritten verantwortet. Für die Richtigkeit, Vollständigkeit oder Rechtmäßigkeit der Angaben übernimmt OM keine Haftung. Hinweise auf mögliche Rechtsverstöße können jederzeit gemeldet werden und werden nach Prüfung umgehend bearbeitet.
Energieträger: Strom
Makleranfragen nicht erwünscht. Nach § 7 UWG sind unaufgeforderte Kontaktaufnahmen durch Makler ohne ausdrückliche Einwilligung des Empfängers verboten!
ohne-makler (OM) ist weder Anbieter noch Vermittler der Immobilie. OM betreibt eine Plattform für Immobilieneigentümer, die unter anderem die gleichzeitige Veröffentlichung einzelner Inserate auf mehreren Immobilienportalen ermöglicht. Die Inhalte dieser Inserate werden ausschließlich von Dritten verantwortet. Für die Richtigkeit, Vollständigkeit oder Rechtmäßigkeit der Angaben übernimmt OM keine Haftung. Hinweise auf mögliche Rechtsverstöße können jederzeit gemeldet werden und werden nach Prüfung umgehend bearbeitet.
Karte wird geladen...
Objektstandort
Hölderlinweg 39
48165 Münster
- Nordrhein-Westfalen
Lage & Infrastruktur
Objektstandort
Hölderlinweg 39
48165 Münster
- Nordrhein-Westfalen
Top gefragte Lage – Natur, Stadt und Familienalltag
Das Haus liegt in einer ruhigen Spielstraße – nur 100 m vom nächsten Spielplatz entfernt. Kindergarten, Grundschule und weiterführende Schulen sind sicher und schnell erreichbar – ebenso wie Einkaufsmöglichkeiten, Bushaltestellen (20-Minuten-Takt in die Innenstadt von Münster), Sportvereine und das Naherholungsgebiet Steiner See.
Hiltrup selbst ist mit über 30.000 Einwohnern der größte Stadtteil Münsters und bietet eine hervorragende Infrastruktur: eigener Bahnhof, direkte Autobahnanbindung (A1, A43), zahlreiche Buslinien, moderne medizinische Versorgung und ein breites Sport- und Freizeitangebot – bis hin zum Golfclub.
⸻
Fazit: Einziehen – wohlfühlen – nichts vermissen
Dieses gepflegte, durchdachte und bereits energetisch modernisierte Haus ist sofort bezugsbereit. Es verbindet Lebensqualität mit Funktionalität und liegt in einem der gefragtesten Stadtteile Münsters.
Und das Beste: Keine Maklerprovision!
Infrastruktur (im Umkreis von 5 km):
Apotheke, Lebensmittel-Discount, Allgemeinmediziner, Kindergarten, Grundschule, Hauptschule, Realschule, Gymnasium, Gesamtschule, Öffentliche Verkehrsmittel
Das Haus liegt in einer ruhigen Spielstraße – nur 100 m vom nächsten Spielplatz entfernt. Kindergarten, Grundschule und weiterführende Schulen sind sicher und schnell erreichbar – ebenso wie Einkaufsmöglichkeiten, Bushaltestellen (20-Minuten-Takt in die Innenstadt von Münster), Sportvereine und das Naherholungsgebiet Steiner See.
Hiltrup selbst ist mit über 30.000 Einwohnern der größte Stadtteil Münsters und bietet eine hervorragende Infrastruktur: eigener Bahnhof, direkte Autobahnanbindung (A1, A43), zahlreiche Buslinien, moderne medizinische Versorgung und ein breites Sport- und Freizeitangebot – bis hin zum Golfclub.
⸻
Fazit: Einziehen – wohlfühlen – nichts vermissen
Dieses gepflegte, durchdachte und bereits energetisch modernisierte Haus ist sofort bezugsbereit. Es verbindet Lebensqualität mit Funktionalität und liegt in einem der gefragtesten Stadtteile Münsters.
Und das Beste: Keine Maklerprovision!
Infrastruktur (im Umkreis von 5 km):
Apotheke, Lebensmittel-Discount, Allgemeinmediziner, Kindergarten, Grundschule, Hauptschule, Realschule, Gymnasium, Gesamtschule, Öffentliche Verkehrsmittel
Kontaktanfrage senden
Über den Anbieter
OM PropTech GmbH
Humboldtstraße 25a
21509 Glinde
Kontakt
| Telefon | - |
| Fax | - |
| Website | www.ohne-makler.net |
Ansprechpartner/in
Privat vom Eigentümer
Weitere Angebote des Anbieters
4
Baugrundstück voll erschlossen
Haus
85119 Ernsgaden
Das vollerschlossene Baumgrundstück kann mit einem Einfamilienhaus, Zweifamilienhaus oder Doppelhaus bebaut werden. Es besteht kein Bauzwang.
340.000 €
Kaufpreis
683 m²
Wohnfläche
1
Zimmer
2
Leben...Wohnen...Genießen. Ruhig, grün und zentral - ...
Wohnung
90766 Fürth
Ruhig, grün und zugleich zentral – diese moderne Wohnung in der begehrten Weststadt von Fürth sucht ihresgleichen. Die Weststadt zählt zu den beliebtesten und gleichzeitig zentralsten Wohnlagen der Stadt und bietet ...
595.000 €
Kaufpreis
95,63 m²
Wohnfläche
4
Zimmer
19
Rennovierte 3-Zimmer-Wohnung im Zweifamilienhaus in ...
Wohnung
42499 Hückeswagen
Die rennovierte Wohnung Dreizimmerwohnung mit ca. 70qm befindet sich im Erdgschosse eines gepflegten Zweifamilienhaueses. Zu der lichtdurchfluteten Wohnung gehören ein Wohnzimmer, eine Küche, ein Schlafzimmer, ...
895 €
Kaltmiete (netto)
70 m²
Wohnfläche
3
Zimmer
5
Büro oder Praxis in Bestlage
Büro / Praxen
55276 Oppenheim
Historischer Charme trifft moderne Architektur Diese ca. 111 m² (optional erweiterbar um ca. 16–20 m²) große Gewerbefläche im Erdgeschoss besticht durch eine einzigartige Symbiose aus historischer Bausubstanz und ...
keine Angabe
Preis
126 m²
Gesamtfläche
11
Erstbezug nach Komplettrenovierung - 2 Zimmer-Maisonett ...
Wohnung
60316 Frankfurt am Main
Diese stilvoll und hochwertig renovierte -Zimmer-Maisonettewohnung in top Lage im Frankfurter Nordend überzeugt durch durchdachten Komfort auf kompaktem Raum auf zwei Etagen. Die Wohnung wurde vollständig renoviert und ...
1.380 €
Kaltmiete (netto)
46 m²
Wohnfläche
2
Zimmer