EXKLUSIVES GRUNDSTÜCK! Ihr Bungalow mit Klasse Raumaufteilung
504.996 €
Kaufpreis
108 m²
Wohnfläche
3
Zimmer
immobilien.de Nr.: 9487408
Objektnummer: ReichenwaldeBungalow09
Kaufpreis
| Kaufpreis | 504.996 € |
Wohnfläche, Grundstück & Bausubstanz
| Wohnfläche | 108 m² |
| Grundstücksfläche | 500 m² |
| Zimmer | 3 |
| Baujahr | 2026 |
| Verfügbar ab | keine Angabe |
| Zustand | Projektiert |
Energie
| Energietyp | Niedrigenergie |
| Energieträger/Befeuerung | Luft-Wärme-Pumpe |
Beschreibung der Immobilie
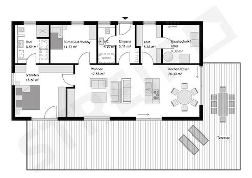
Der Bungalow zeichnet sich durch eine klassische Hausarchitektur mit Walmdach
aus. Die Räume sind lichterfüllt geplant. Die Grundrissgestaltung ist mit ca. 107,43 m² Netto-
Raumfläche für Singles, Paare oder eine Kleinfamilie mit einem Kind geeignet. Bauartbedingt bringt der Bungalow einen Mehrwert in Sachen Wohnkomfort mit. Der Wohn-/Ess- und Kochbereich ist auf 43,95 m² großzügig angelegt. Ein großes Schlafzimmer mit viel Platz, ein weiterer Raum, der als Kinderzimmer/Büro oder Hobby-/Gästebereich vorgesehen ist, ein Gäste-WC sowie ein Haustechnik-/Hauswirtschaftsraum runden das Raumangebot ab. Eine Garage kann optional ausgeführt werden.
aus. Die Räume sind lichterfüllt geplant. Die Grundrissgestaltung ist mit ca. 107,43 m² Netto-
Raumfläche für Singles, Paare oder eine Kleinfamilie mit einem Kind geeignet. Bauartbedingt bringt der Bungalow einen Mehrwert in Sachen Wohnkomfort mit. Der Wohn-/Ess- und Kochbereich ist auf 43,95 m² großzügig angelegt. Ein großes Schlafzimmer mit viel Platz, ein weiterer Raum, der als Kinderzimmer/Büro oder Hobby-/Gästebereich vorgesehen ist, ein Gäste-WC sowie ein Haustechnik-/Hauswirtschaftsraum runden das Raumangebot ab. Eine Garage kann optional ausgeführt werden.
Ausstattungsmerkmale
| Anzahl der Etagen im Haus | 1 |
| Küche | Offene Küche |
| Bad | 2 |
| Bad | Dusche, Wanne, Fenster |
| Barrierefrei |
Das Streif City Haus wird im Standard KFW 40 PLUS ausgeführt. KfW Effizienshaus inkl. Haustechnik aus dem STREIF-Programm in der Ausbaustufe FF+ inklusive einer gedämmten Fundamentplatte.
■ Rohbau (geschlossene Gebäudehülle) mit Fenstern, Haustür, Dacheindeckung
■ Außenfassade inkl. Außenputz, vor Ort komplett fertiggestellt
■ Komplette Blechner-/Spenglerarbeiten
■ lnnen-/Außenwände wärme- und schallgedämmt und mit Gipsfaserplatten geschlossen
■ Geschosstreppe (außer Bungalow)
■ Decken wärme- und schallgedämmt und mit Gipskarton Bauplatten geschlossen
■ Elektroinstallation, einschließlich erforderlichem Zählerschrank und Inbetriebnahme
■ Heizungsanlage inkl. Inbetriebnahme
■ Innenfensterbänke Kunststeinbänke (Gussmarmorbänke) inkl. Einbau
■ Estrich
■ Sanitärräume mit Wand- und Bodenfliesen
■ Sanitärräume mit Sanitärobjekten
■ 6,23 kWp Photovoltaikanlage und 7,7 kWh Speicher
Die Innentüren sowie Wand-, Decken- und Bodenbeläge der übrigen Räume sind Eigenleistungen des Bauherren.
STREIF Frischluft-Wärmepumpen-Technologie - inklusive
- Heizen mit frischer Außenluft
- Kein Gasanschluss, kein Öl- oder Pelletlagerraum
- Keine Heizkörper
- Wärmetauscher mit bis zu 85% Wärmerückgewinnung
Die dargestellten Bilder können Sonderausstattungen beinhalten, die nicht im Preis enthalten sind!
zzgl. Ortüblicher Baunebenkosten
Selbstverständlich können wir Ihr Haus auch schlüsselfertig / bezugsfertig errichten.
■ Bodenbeläge, Sockelleisten verlegt
■ Maler- und Tapezierarbeiten
■ Innentüren inkl. Einbau
■ Rohbau (geschlossene Gebäudehülle) mit Fenstern, Haustür, Dacheindeckung
■ Außenfassade inkl. Außenputz, vor Ort komplett fertiggestellt
■ Komplette Blechner-/Spenglerarbeiten
■ lnnen-/Außenwände wärme- und schallgedämmt und mit Gipsfaserplatten geschlossen
■ Geschosstreppe (außer Bungalow)
■ Decken wärme- und schallgedämmt und mit Gipskarton Bauplatten geschlossen
■ Elektroinstallation, einschließlich erforderlichem Zählerschrank und Inbetriebnahme
■ Heizungsanlage inkl. Inbetriebnahme
■ Innenfensterbänke Kunststeinbänke (Gussmarmorbänke) inkl. Einbau
■ Estrich
■ Sanitärräume mit Wand- und Bodenfliesen
■ Sanitärräume mit Sanitärobjekten
■ 6,23 kWp Photovoltaikanlage und 7,7 kWh Speicher
Die Innentüren sowie Wand-, Decken- und Bodenbeläge der übrigen Räume sind Eigenleistungen des Bauherren.
STREIF Frischluft-Wärmepumpen-Technologie - inklusive
- Heizen mit frischer Außenluft
- Kein Gasanschluss, kein Öl- oder Pelletlagerraum
- Keine Heizkörper
- Wärmetauscher mit bis zu 85% Wärmerückgewinnung
Die dargestellten Bilder können Sonderausstattungen beinhalten, die nicht im Preis enthalten sind!
zzgl. Ortüblicher Baunebenkosten
Selbstverständlich können wir Ihr Haus auch schlüsselfertig / bezugsfertig errichten.
■ Bodenbeläge, Sockelleisten verlegt
■ Maler- und Tapezierarbeiten
■ Innentüren inkl. Einbau
Sonstige Informationen
STREIF Leistungen sind mehr wert - schon im Grundpreis! INDIVIDUELLE ARCHITEKTUR -persönliche Architekten-Planung inklusive -Fundamentplatte inklusive (Keller optional) -individuelle Grundrissgestaltung ohne Mehrpreis
UNSERE BAUWEISE -mehrschichtiger diffusionsvariabler Wandaufbau bis U Wert 0,10 W / m² * K - im Gefach (zwischen den Stielen) gemessen -hochstabile Innenwand und Konstruktion -Fenster gesamt: Uw-Wert 0,81 W/m² * K Glas der Fenster: Ug-Wert 0,6 W/m² * K -Haustür ab UD-Wert 0,64 W/m² * K -30 Jahre Garantie auf statisches Tragwerk -ausschließlich handgemacht in Deutschland INNOVATION -kontrollierte Be- und Entlüftung mit Wärmerückgewinnung bereits in der Grundausstattung -STREIF schadstoffarmer Innenraum - für Allergiker geeignet
UNSERE BAUWEISE -mehrschichtiger diffusionsvariabler Wandaufbau bis U Wert 0,10 W / m² * K - im Gefach (zwischen den Stielen) gemessen -hochstabile Innenwand und Konstruktion -Fenster gesamt: Uw-Wert 0,81 W/m² * K Glas der Fenster: Ug-Wert 0,6 W/m² * K -Haustür ab UD-Wert 0,64 W/m² * K -30 Jahre Garantie auf statisches Tragwerk -ausschließlich handgemacht in Deutschland INNOVATION -kontrollierte Be- und Entlüftung mit Wärmerückgewinnung bereits in der Grundausstattung -STREIF schadstoffarmer Innenraum - für Allergiker geeignet
Karte wird geladen...
Objektstandort
15526 Bad Saarow OT Reichwalde
Lage & Infrastruktur
Objektstandort
15526 Bad Saarow OT Reichwalde
Das von unserem Kooperationspartner angebotene Baugrundstück liegt im Grünen, umgeben von Natur und Wäldern. In der familienfreundlichen Umgebung finden sich Einkaufsmöglichkeiten, Schulen und Gesundheitseinrichtungen. Die nahegelegene Stadt Storkow ist für seine malerische Altstadt, seinen See und seine vielfältigen Freizeitangebote bekannt, was das Grundstück zu einer attraktiven Wohnlage für Familien macht.
Die Städte Berlin, Fürstenwalde und Frankfurt/Oder sind mit dem Auto oder öffentlichen Verkehrsmitteln sehr gut erreichbar.
Die Städte Berlin, Fürstenwalde und Frankfurt/Oder sind mit dem Auto oder öffentlichen Verkehrsmitteln sehr gut erreichbar.
Kontaktanfrage senden
Über den Anbieter
STREIF Haus GmbH
Josef-Streif-Straße 1
54595 Weinsheim
Kontakt
| Telefon | +49 30 67390424 |
| Mobil | +49 172 1588519 |
| Website | www.streif.de |
Ansprechpartner/in
Herr Andreas Ott
Weitere Angebote des Anbieters
16
Bungalow in Dillingen
Haus
66763 Dillingen
Wohnen auf einer Ebene ! Der Bungalow zeichnet sich durch eine klassische Hausarchitektur, wahlweise mit Walmdach, Flachdach oder Satteldach aus. Die Räume sind lichterfüllt geplant. Die Grundrissgestaltung ist für ...
503.000 €
Kaufpreis
113 m²
Wohnfläche
5
Zimmer
22
Stadtvilla in Bilsdorf
Haus
66809 Nalbach
Viel Platz und von Licht erfüllte Räume bietet diese Stadtvilla. Im Erdgeschoss bildet der offen gestaltete Wohn-, Ess- und Kochbereich mit 49 m² das Herzstück des Hauses. Der gesamte Wohnbereich wird von drei Seiten ...
494.000 €
Kaufpreis
186 m²
Wohnfläche
5
Zimmer
19
Geräumige Stadtvilla in Ensdorf !
Haus
66806 Ensdorf
Charakteristisch für die moderne Architektur der Stadtvilla ist die zweigeschossige Bauweise mit Walmdach. Die Nettogrundfläche des Hauses beträgt 146,44m². Das Erdgeschoss bietet einen geräumigen, lichtdurchfluteten ...
382.000 €
Kaufpreis
153 m²
Wohnfläche
5
Zimmer
12
Einfamilienhaus mit Garage und PV-Anlage
Haus
85120 Hepberg
Auf einem Grundstück von 730 qm werden zwei Profilgleichen Häuser geplant. Die Garagen mit der Einfahrt wurden zwischen den Häusern auf die Grundstückgrenzen gesetzt. Das spart Platz und mach damit ein Unterschied zur ...
636.000 €
Kaufpreis
131 m²
Wohnfläche
4
Zimmer
13
EXKLUSIVES GRUNDSTÜCK! Ihr Bungalow mit Klasse ...
Haus
15526 Bad Saarow OT Reichwalde
Der Bungalow zeichnet sich durch eine klassische Hausarchitektur mit Walmdach aus. Die Räume sind lichterfüllt geplant. Die Grundrissgestaltung ist mit ca. 107,43 m² Netto- Raumfläche für Singles, Paare oder eine ...
504.996 €
Kaufpreis
108 m²
Wohnfläche
3
Zimmer