Neubauerstbezug an der Dahme mit Fußbodenheizung und Balkon / nur mit 160er, 180er oder 220er WBS
1.150,06 €
Kaltmiete (netto)
1.530,1 €
Warmmiete
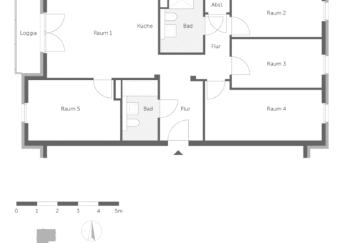
100,01 m²
Wohnfläche
5
Zimmer
immobilien.de Nr.: 9487117
Objektnummer: 6025/32592/0501/0191
Dateien
Mietpreis & Nebenkosten
| Kaltmiete (netto) | 1.150,06 € |
| Warmmiete | 1.530,1 € |
| Nebenkosten | 190,02 € |
| Heizkosten | 190,02 € |
| Kaution | 3450,18 € |
Wohnfläche, Grundstück & Bausubstanz
| Wohnfläche | 100,01 m² |
| Zimmer | 5 |
| Baujahr | 2025 |
| Verfügbar ab | 01.03.2026 |
Energie
| Energieausweistyp | Bedarfsausweis |
| Energieeffizienzklasse | B |
| Endenergiebedarf | 59.90 |
| Heizungsart | Fernwärme |
| Energieträger/Befeuerung | Block |
Beschreibung der Immobilie
Sie sind im Besitz eines gültigen WBS (bis 160, 180 oder 220 %) für mindestens fünf Räume? Dann sind Sie vielleicht der/ die zukünftige Mieter/ in dieser wunderschönen und hellen Wohnung am Ufer der Dahme Diese Neubauwohnung im Erstbezug lässt kaum Wünsche offen und präsentiert sich mit strapazierfähigen Vinylboden in Holzoptik, Fußbodenheizung, hochwertigen Fenstern und zwei modern gefliesten Bädern, eines mit Wanne und eines mit Dusche. Erfreuen Sie sich an dem geräumigen Balkon, der viel Platz zum Entspannen bietet. Der offen gehaltene Wohn- und Küchenbereich lässt vielfältige Gestaltungsmöglichkeiten zu. Der Gebäudekomplex verfügt über separate Mieterkeller und zusätzliche Fahrradabstellräume. Sie sind an einer Besichtigung interessiert? Dann senden Sie uns bitte eine einfache Anfrage über den entsprechenden Button ("Anbieter kontaktieren" oder "Anfrage senden").
Ausstattungsmerkmale
| Anzahl der Etagen im Haus | 7 |
| Inserat befindet sich im Stockwerk | 3 |
| Balkone | 1 |
| Fahrstuhl | |
| Barrierefrei | |
| Haustiere |
Fernheizung/Zentralheizung, Fern-/Zentralwarmwasserversorgung, Glasfaserleitung, Handtuchheizkörper, Fußbodenheizung, Barrierearme Wohnungsgestaltung
Sonstige Informationen
Hinweis zu Ihrem Schutz: Wir vermieten provisionsfrei gemäß § 2 WoVermG. Personen, die im Auftrag der Gewobag tätig sind, dürfen keine Provision von Ihnen verlangen.
Anbieter
Eigentümer/Vermieter oder Verwalter des jeweiligen Mietobjekts ist Gewobag Wohnungsbau-Aktien- gesellschaft Berlin. Die Gewobag MB Mieterberatungsgesellschaft mbH übernimmt den Vermietungsservice für diese Gesellschaft. Weitere Informationen finden Sie unter www.gewobag.de/datenschutz .
Anbieter
Eigentümer/Vermieter oder Verwalter des jeweiligen Mietobjekts ist Gewobag Wohnungsbau-Aktien- gesellschaft Berlin. Die Gewobag MB Mieterberatungsgesellschaft mbH übernimmt den Vermietungsservice für diese Gesellschaft. Weitere Informationen finden Sie unter www.gewobag.de/datenschutz .
Karte wird geladen...
Objektstandort
Wendenschloßstr. 160
12557 Berlin
Lage & Infrastruktur
Objektstandort
Wendenschloßstr. 160
12557 Berlin
Das idyllisch gelegene Wohngebiet liegt zwischen Dahme und der Wendenschlossstraße im Südosten Berlins. Der umgebende Stadtraum weist eine vorstädtische Charakteristik auf. Das historische Zentrum von Köpenick liegt nördlich und ist fußläufig zu erreichen. Die Lage zeichnet sich durch eine ruhige Wohnatmosphäre und die unmittelbare Nähe zu Wasser (Dahme und Großer Müggelsee) und Natur aus, bietet aber dennoch eine gute Anbindung an die Berliner Innenstadt. In der näheren Umgebung gibt es Einkaufsmöglichkeiten und weitere Infrastruktur. Die Anbindung an den öffentlichen Nahverkehr ist gut. Mehrere Bus- und Tramlinien sind fußläufig erreichbar.
Kontaktanfrage senden
Über den Anbieter
Gewobag Wohnungsbau-Aktiengesellschaft Berlin
Alt-Moabit 101 A
10559 Berlin
Kontakt
| Telefon | +49 30 47084000 |
| Website | www.gewobag.de |
Ansprechpartner/in
Gewobag MB Mieterberat.ges. mbH (Vermietungs-Service)
Weitere Angebote des Anbieters
9
Helle 2-Zimmer-Wohnung mit Balkon und Wasserblick – ...
Wohnung
13599 Berlin
Die gut geschnittene Neubauwohnung im Erdgeschoss befindet sich in neuer und gepflegter Wohnanlage. Der offen gehaltene Wohn- und Küchenbereich lässt vielfältige Gestaltungsmöglichkeiten zu. Alle Wohnungen verfügen ...
1.159,76 €
Kaltmiete (netto)
64,82 m²
Wohnfläche
2
Zimmer
10
Neubauwohnung mit Blick auf die Havel!
Wohnung
13599 Berlin
Die gut geschnittene Neubauwohnung befindet sich in einer gepflegter Wohnanlage. Der offen gehaltene Wohn- und Küchenbereich lässt vielfältige Gestaltungsmöglichkeiten zu. Alle Wohnungen verfügen über zentrale ...
1.562,12 €
Kaltmiete (netto)
87,25 m²
Wohnfläche
4
Zimmer
8
Bezugsfertig!
Wohnung
13593 Berlin
Die gut geschnittene Zweizimmerwohnung mit Balkon befindet sich im 1.Obergeschoss, das Haus verfügt über einen Aufzug. Die Wohnung ist unter anderem mit einem Linoleum- Bodenbelag, einem Wannenbad, Nachtspeicherheizung ...
348,91 €
Kaltmiete (netto)
62,52 m²
Wohnfläche
2
Zimmer
7
Familiengerecht!
Wohnung
13593 Berlin
Die gut geschnittene Zweieinhalbzimmerwohnung mit Balkon befindet sich im 2.Obergeschoss, das Haus verfügt über einen Aufzug. Die Wohnung ist unter anderem mit einem Linoleum- Bodenbelag, einem Wannenbad, ...
587,81 €
Kaltmiete (netto)
77,11 m²
Wohnfläche
2,5
Zimmer
9
Neubauwohnung an der Waterkant mit Balkon und ...
Wohnung
13599 Berlin
Die gut geschnittene Neubauwohnung befindet sich in neuer und gepflegter Wohnanlage. Der offen gehaltene Wohn- und Küchenbereich lässt vielfältige Gestaltungsmöglichkeiten zu. Alle Wohnungen verfügen über zentrale ...
1.248,85 €
Kaltmiete (netto)
78,63 m²
Wohnfläche
3
Zimmer