Mit Streif wird dein Traum vom modernen Zuhause Wirklichkeit
549.220 €
Kaufpreis
178 m²
Wohnfläche
5
Zimmer
immobilien.de Nr.: 9486561
Objektnummer: 9017
Kaufpreis
| Kaufpreis | 549.220 € |
Wohnfläche, Grundstück & Bausubstanz
| Wohnfläche | 178 m² |
| Grundstücksfläche | 467 m² |
| Zimmer | 5 |
| Verfügbar ab | keine Angabe |
| Zustand | Projektiert |
Energie
| Energietyp | KfW-40 |
| Heizungsart | Zentralheizung |
| Energieträger/Befeuerung | Luft-Wärme-Pumpe |
Beschreibung der Immobilie
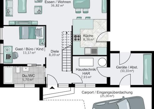
Die Architektur des Hauses ist im klassischen Stadtvillenstil gehalten. Der Grundriss ist klug durchdacht. Im
Erdgeschoss befinden sich ein offen gestalteter Wohn-/Ess- und Kochbereich mit einem praktischen
Haustechnik-/Hauswirtschaftsraum, direkt neben der Küche. Ein Zusatzraum, der als Homeoffice, Gäste-, Schlaf-
oder Hobbyraum genutzt werden kann, bietet zusätzlichen Komfort. Die Diele mit dem Treppenhaus ist mittig
angeordnet, neben dem Eingangsbereich ist eine Garderobennische und ein Gäste/WC eingeplant. Das Gäste-
WC kann optional auch als Duschbad ausgebaut werden. Im Obergeschoss des Hausentwurfes befinden sich
zwei nahezu gleich große Kinderzimmer, ein geräumiges Familienbad und der Elternschlafbereich mit Ankleide
und direktem Zugang zum Bad. Die Nettoraumfläche beträgt 125 m².
Die Lage der Treppe und des Haustechnikraumes sind beim Winterzauberangebot fixiert.
Objektart: Stadtvilla, 2-geschossig
Dachform: Walmdach
Erdgeschoss befinden sich ein offen gestalteter Wohn-/Ess- und Kochbereich mit einem praktischen
Haustechnik-/Hauswirtschaftsraum, direkt neben der Küche. Ein Zusatzraum, der als Homeoffice, Gäste-, Schlaf-
oder Hobbyraum genutzt werden kann, bietet zusätzlichen Komfort. Die Diele mit dem Treppenhaus ist mittig
angeordnet, neben dem Eingangsbereich ist eine Garderobennische und ein Gäste/WC eingeplant. Das Gäste-
WC kann optional auch als Duschbad ausgebaut werden. Im Obergeschoss des Hausentwurfes befinden sich
zwei nahezu gleich große Kinderzimmer, ein geräumiges Familienbad und der Elternschlafbereich mit Ankleide
und direktem Zugang zum Bad. Die Nettoraumfläche beträgt 125 m².
Die Lage der Treppe und des Haustechnikraumes sind beim Winterzauberangebot fixiert.
Objektart: Stadtvilla, 2-geschossig
Dachform: Walmdach
Ausstattungsmerkmale
| Anzahl der Etagen im Haus | 2 |
| Bad | 1 |
| Bad | Dusche, Wanne, Fenster |
Das Streif City Haus wird im Standard KFW 40 PLUS ausgeführt. KfW Effizienshaus inkl. Haustechnik aus dem STREIF-Programm in der Ausbaustufe FF+ inklusive einer gedämmten Fundamentplatte.
■ Rohbau (geschlossene Gebäudehülle) mit Fenstern, Haustür, Dacheindeckung
■ Außenfassade inkl. Außenputz, vor Ort komplett fertiggestellt
■ Komplette Blechner-/Spenglerarbeiten
■ lnnen-/Außenwände wärme- und schallgedämmt und mit Gipsfaserplatten geschlossen
■ Geschosstreppe (außer Bungalow)
■ Decken wärme- und schallgedämmt und mit Gipskarton Bauplatten geschlossen
■ Elektroinstallation, einschließlich erforderlichem Zählerschrank und Inbetriebnahme
■ Heizungsanlage inkl. Inbetriebnahme
■ Innenfensterbänke Kunststeinbänke (Gussmarmorbänke) inkl. Einbau
■ Estrich
■ Sanitärräume mit Wand- und Bodenfliesen
■ Sanitärräume mit Sanitärobjekten
■ 6,23 kWp Photovoltaikanlage und 7,7 kWh Speicher
Die Innentüren sowie Wand-, Decken- und Bodenbeläge der übrigen Räume sind Eigenleistungen des Bauherren.
STREIF Frischluft-Wärmepumpen-Technologie - inklusive
- Heizen mit frischer Außenluft
- Kein Gasanschluss, kein Öl- oder Pelletlagerraum
- Keine Heizkörper
- Wärmetauscher mit bis zu 85% Wärmerückgewinnung
Die dargestellten Bilder können Sonderausstattungen beinhalten, die nicht im Preis enthalten sind!
zzgl. Ortüblicher Baunebenkosten
Selbstverständlich können wir Ihr Haus auch schlüsselfertig / bezugsfertig errichten.
■ Bodenbeläge, Sockelleisten verlegt
■ Maler- und Tapezierarbeiten
■ Innentüren inkl. Einbau
■ Rohbau (geschlossene Gebäudehülle) mit Fenstern, Haustür, Dacheindeckung
■ Außenfassade inkl. Außenputz, vor Ort komplett fertiggestellt
■ Komplette Blechner-/Spenglerarbeiten
■ lnnen-/Außenwände wärme- und schallgedämmt und mit Gipsfaserplatten geschlossen
■ Geschosstreppe (außer Bungalow)
■ Decken wärme- und schallgedämmt und mit Gipskarton Bauplatten geschlossen
■ Elektroinstallation, einschließlich erforderlichem Zählerschrank und Inbetriebnahme
■ Heizungsanlage inkl. Inbetriebnahme
■ Innenfensterbänke Kunststeinbänke (Gussmarmorbänke) inkl. Einbau
■ Estrich
■ Sanitärräume mit Wand- und Bodenfliesen
■ Sanitärräume mit Sanitärobjekten
■ 6,23 kWp Photovoltaikanlage und 7,7 kWh Speicher
Die Innentüren sowie Wand-, Decken- und Bodenbeläge der übrigen Räume sind Eigenleistungen des Bauherren.
STREIF Frischluft-Wärmepumpen-Technologie - inklusive
- Heizen mit frischer Außenluft
- Kein Gasanschluss, kein Öl- oder Pelletlagerraum
- Keine Heizkörper
- Wärmetauscher mit bis zu 85% Wärmerückgewinnung
Die dargestellten Bilder können Sonderausstattungen beinhalten, die nicht im Preis enthalten sind!
zzgl. Ortüblicher Baunebenkosten
Selbstverständlich können wir Ihr Haus auch schlüsselfertig / bezugsfertig errichten.
■ Bodenbeläge, Sockelleisten verlegt
■ Maler- und Tapezierarbeiten
■ Innentüren inkl. Einbau
Sonstige Informationen
STREIF Haus - der Pionier der deutschen Fertighausbranche
Die langjährige Firmentradition des Unternehmens reicht bis in das Jahr 1929 zurück. In den 50er und 60er Jahren wurde in Deutschland schnell und viel Wohnraum für Familien benötigt, seitdem konzentrierte sich das Unternehmen auf die Entwicklung und Produktion von Fertighaustypen, die im Werk in großen Stückzahlen hergestellt werden konnten. So kann das Unternehmen auf 90.000 gebaute Hausobjekte zurückblicken und sich zu Recht als Pionier der deutschen Fertighausbranche bezeichnen.
Die neuen Energiesparhäuser - So baut man heute.
Unser Anspruch ist es, in enger Partnerschaft mit unseren Kunden langlebige Häuser zu bauen, mit einer hohen architektonischen Qualität, individuell geplant und dabei energieeffizient und ressourcenschonend. Jedes STREIF-Haus ist einzigartig und wird speziell für jeden Kunden "maßgeschneidert" und gebaut. Passend zu den persönlichen Wünschen, dem vorgegebenen Budget und dem vorhandenen Grundstück planen und bauen wir jedes Haus mit viel Liebe zum Detail.
Die langjährige Firmentradition des Unternehmens reicht bis in das Jahr 1929 zurück. In den 50er und 60er Jahren wurde in Deutschland schnell und viel Wohnraum für Familien benötigt, seitdem konzentrierte sich das Unternehmen auf die Entwicklung und Produktion von Fertighaustypen, die im Werk in großen Stückzahlen hergestellt werden konnten. So kann das Unternehmen auf 90.000 gebaute Hausobjekte zurückblicken und sich zu Recht als Pionier der deutschen Fertighausbranche bezeichnen.
Die neuen Energiesparhäuser - So baut man heute.
Unser Anspruch ist es, in enger Partnerschaft mit unseren Kunden langlebige Häuser zu bauen, mit einer hohen architektonischen Qualität, individuell geplant und dabei energieeffizient und ressourcenschonend. Jedes STREIF-Haus ist einzigartig und wird speziell für jeden Kunden "maßgeschneidert" und gebaut. Passend zu den persönlichen Wünschen, dem vorgegebenen Budget und dem vorhandenen Grundstück planen und bauen wir jedes Haus mit viel Liebe zum Detail.
Karte wird geladen...
Objektstandort
59399 Olfen
Lage & Infrastruktur
Objektstandort
59399 Olfen
Unser STREIF - Grundstücksservice ist unseren Kunden vorenthalten. Gerne Prüfen wir mit Ihnen gemeinsam ob STREIF zu Ihnen passt. Hierzu stehen wir Ihnen in einem persönlichen Gespräch zur Seite.
Kontaktanfrage senden
Über den Anbieter
STREIF Haus GmbH
Josef-Streif-Straße 1
54595 Weinsheim
Kontakt
| Telefon | +49 2595 9909690 |
| Mobil | +49 157 53710612 |
| Website | www.streif.de |
Ansprechpartner/in
Herr Andreas Rogge
Weitere Angebote des Anbieters
31
**Luxuriöses Wohnen: Entdecken Sie die Stadtvilla ...
Haus
38176 Wendeburg
Willkommen in Ihrer zukünftigen Traumstadtvilla in Wendeburg/ Neubrück, die mit STREIF nach Ihren individuellen Wünschen projektiert wird. Diese exklusive Residenz bietet Ihnen auf 190,29 m² Wohnfläche ein geräumiges ...
713.782,2 €
Kaufpreis
190,29 m²
Wohnfläche
6
Zimmer
35
**Endlich raus aus der Miete - jetzt starten mit ...
Haus
31688 Nienstädt
Willkommen in Ihrem Traumhaus! Dieses Einfamilienhaus, projektiert nach Ihren individuellen Wünschen, bietet Ihnen die perfekte Kombination aus modernem Design und höchstem Wohnkomfort. Mit einer großzügigen Wohnfläche ...
481.229 €
Kaufpreis
143,84 m²
Wohnfläche
4
Zimmer
32
**Familienfreundlicher Bungalow mit perfekter ...
Haus
31226 Peine
Tauchen Sie ein in die Welt des modernen Wohnens mit unserem projektierten Bungalow, der individuell nach Ihren Wünschen gestaltet wird. Auf einer großzügigen Wohnfläche von 93,51 m² verteilen sich geschmackvoll 3,0 ...
495.050 €
Kaufpreis
93,51 m²
Wohnfläche
3
Zimmer
9
Vorankündigung - Wohnen next Level by STREIF DHH
Haus
53844 Troisdorf
Hochwertiges Effizienzhaus-40-PLUS >> Planung nach modernsten Wohnkriterien.
649.800 €
Kaufpreis
149 m²
Wohnfläche
6
Zimmer
8
-inkl. Grundstück-Ihre neue STREIF Doppelhaushälfte in ...
Haus
38108 Braunschweig
Der Preis bezieht sich auf das Haus inkl. Baunebenkosten und einschließlich Grundstück. Die Grunderwerbsteuer fällt nur auf die Grundstückskosten an. Herzlich willkommen bei STREIF, Ihrem zuverlässigen Partner für den ...
620.000 €
Kaufpreis
140 m²
Wohnfläche
4
Zimmer