Jetzt noch schnell Aktionsbonus von STREIF Haus sichern - STREIF Platzwunder erleben
411.220 €
Kaufpreis
154 m²
Wohnfläche
6
Zimmer
immobilien.de Nr.: 9486554
Objektnummer: 9010
Kaufpreis
| Kaufpreis | 411.220 € |
Wohnfläche, Grundstück & Bausubstanz
| Wohnfläche | 154 m² |
| Grundstücksfläche | 758 m² |
| Zimmer | 6 |
| Verfügbar ab | keine Angabe |
Beschreibung der Immobilie
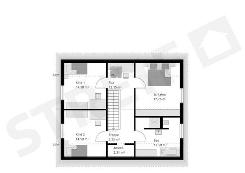
Willkommen in Ihrem zukünftigen Traumhaus. Dieses Einfamilienhaus mit 6 Zimmern und einer großzügigen Wohnfläche von 154 m² bietet Ihnen und Ihrer Familie den perfekten Raum zum Leben und Entspannen. Auf zwei Etagen verteilen sich 4 geräumige Schlafzimmer, ein modernes Badezimmer sowie ein zusätzliches Gäste-WC, die Ihnen viel Komfort und Privatsphäre bieten. Das durchdachte Raumkonzept ermöglicht es Ihnen, Ihre individuellen Wünsche und Vorstellungen in die Planung einzubringen. Vor jedem Hausbau steht eine ausführliche Beratung, bei der wir Ihre Wünsche genau ermitteln und die maßgeschneiderte Planung Ihres neuen Zuhauses vornehmen. Erst wenn der Grundriss zu Ihrer vollsten Zufriedenheit ist, beginnt die Realisierung, die innerhalb weniger Monate abgeschlossen ist. Ihr neues Zuhause wird Ihnen schlüsselfertig oder in der von Ihnen gewählten Ausbaustufe übergeben.
Ausstattungsmerkmale
| Anzahl der Etagen im Haus | 1 |
| Bad | 1 |
Ihr STREIF Haus wird im KfW-Standard ausgeführt. KfW-Effizienzhaus inkl. Haustechnik aus dem STREIF-Programm in der Ausbaustufe FF+ (Fast-Fertig+) exklusive einer Fundamentplatte.
■ Rohbau (geschlossene Gebäudehülle) mit Fenstern, Haustür, Dacheindeckung
■ Außenfassade inkl. Außenputz, vor Ort komplett fertiggestellt
■ Komplette Blechner-/Spenglerarbeiten
■ lnnen-/Außenwände wärme- und schallgedämmt und mit Gipsfaserplatten geschlossen
■ Geschosstreppe (außer Bungalow)
■ Decken wärme- und schallgedämmt und mit Gipskarton Bauplatten geschlossen
■ Elektroinstallation, einschließlich erforderlichem Zählerschrank und Inbetriebnahme
■ Heizungsanlage inkl. Inbetriebnahme
■ Innenfensterbänke Kunststeinbänke (Gussmarmorbänke) inkl. Einbau
■ Estrich
■ Sanitärräume mit Wand- und Bodenfliesen
■ Sanitärräume mit Sanitärobjekten
■ Inklusive Gutschein für eine Designküche.
Die Innentüren sowie Wand-, Decken- und Bodenbeläge der übrigen Räume sind Eigenleistungen des Bauherren.
STREIF Frischluft-Wärmepumpen-Technologie - inklusive
- Heizen mit frischer Außenluft
- Kein Gasanschluss, kein Öl- oder Pelletlagerraum
- Keine Heizkörper
- Wärmetauscher mit bis zu 85% Wärmerückgewinnung
Die dargestellten Bilder können Sonderausstattungen beinhalten, die nicht im Preis enthalten sind!
zzgl. Ortüblicher Baunebenkosten
Selbstverständlich können wir Ihr Haus auch schlüsselfertig / bezugsfertig errichten.
■ Bodenbeläge, Sockelleisten verlegt
■ Maler- und Tapezierarbeiten
■ Innentüren inkl. Einbau
■ Rohbau (geschlossene Gebäudehülle) mit Fenstern, Haustür, Dacheindeckung
■ Außenfassade inkl. Außenputz, vor Ort komplett fertiggestellt
■ Komplette Blechner-/Spenglerarbeiten
■ lnnen-/Außenwände wärme- und schallgedämmt und mit Gipsfaserplatten geschlossen
■ Geschosstreppe (außer Bungalow)
■ Decken wärme- und schallgedämmt und mit Gipskarton Bauplatten geschlossen
■ Elektroinstallation, einschließlich erforderlichem Zählerschrank und Inbetriebnahme
■ Heizungsanlage inkl. Inbetriebnahme
■ Innenfensterbänke Kunststeinbänke (Gussmarmorbänke) inkl. Einbau
■ Estrich
■ Sanitärräume mit Wand- und Bodenfliesen
■ Sanitärräume mit Sanitärobjekten
■ Inklusive Gutschein für eine Designküche.
Die Innentüren sowie Wand-, Decken- und Bodenbeläge der übrigen Räume sind Eigenleistungen des Bauherren.
STREIF Frischluft-Wärmepumpen-Technologie - inklusive
- Heizen mit frischer Außenluft
- Kein Gasanschluss, kein Öl- oder Pelletlagerraum
- Keine Heizkörper
- Wärmetauscher mit bis zu 85% Wärmerückgewinnung
Die dargestellten Bilder können Sonderausstattungen beinhalten, die nicht im Preis enthalten sind!
zzgl. Ortüblicher Baunebenkosten
Selbstverständlich können wir Ihr Haus auch schlüsselfertig / bezugsfertig errichten.
■ Bodenbeläge, Sockelleisten verlegt
■ Maler- und Tapezierarbeiten
■ Innentüren inkl. Einbau
Sonstige Informationen
Sie wünschen Bauplanung und Begleitung aus einer Hand? Dann sind wir Ihr Baupartner! Wir stehen Ihnen von Anfang an zur Seite und führen Sie auf dem Weg in Ihr neues perfektes Zuhause!
Mit STREIF haben Sie einen Baupartner mit Bau-Know-how, der seit 1929 auf fast 100 Jahre und 100.000 realisierte Wohnträume zurückblicken kann.
Jedes Haus von STREIF wird individuell als Energiesparhaus geplant und gebaut. Eine nachhaltige, ökologische und wohngesunde Bauweise, eine zertifizierte Ausführungsqualität und eine kurze Bauzeit, dafür stehen wir.
Im Anschluss der gemeinsamen Bedarfsermittlung erstellen wir Ihnen Ihren individuellen Planungsvorschlag mit einer detaillierten & realistisch ermittelten Aufstellung der Gesamt-Investition.
Änderung gegen Aufpreis möglich**
Smart-Indi-Paket: Veränderung der Fenster, Spiegelung des Grundrisses und Anbau von Bauteilen sind möglich.
Speedlieferung innerhalb von 8 Monaten*
Auf Wunsch wird ein Terminplan mit Baubeginn innerhalb von 8 Monaten vereinbart. Dabei werden kundenseitige und von STREIF einzuhaltende Maximaltermine definiert.
Die Fundamentplatte wird zum Platzwunder-Aktionspreis angeboten.
Die hohe Wertigkeit und Langlebigkeit eines STREIF-Energiespar-Hauses wird durch zahlreiche Auszeichnungen, Qualitäts- und Gütesiegel unabhängiger Institute und Verbände dokumentiert.
Abbildungen können Sonderausstattungen oder Anbauteile zeigen, die nicht im Lieferumfang/Angebot enthalten sind.
Mit STREIF haben Sie einen Baupartner mit Bau-Know-how, der seit 1929 auf fast 100 Jahre und 100.000 realisierte Wohnträume zurückblicken kann.
Jedes Haus von STREIF wird individuell als Energiesparhaus geplant und gebaut. Eine nachhaltige, ökologische und wohngesunde Bauweise, eine zertifizierte Ausführungsqualität und eine kurze Bauzeit, dafür stehen wir.
Im Anschluss der gemeinsamen Bedarfsermittlung erstellen wir Ihnen Ihren individuellen Planungsvorschlag mit einer detaillierten & realistisch ermittelten Aufstellung der Gesamt-Investition.
Änderung gegen Aufpreis möglich**
Smart-Indi-Paket: Veränderung der Fenster, Spiegelung des Grundrisses und Anbau von Bauteilen sind möglich.
Speedlieferung innerhalb von 8 Monaten*
Auf Wunsch wird ein Terminplan mit Baubeginn innerhalb von 8 Monaten vereinbart. Dabei werden kundenseitige und von STREIF einzuhaltende Maximaltermine definiert.
Die Fundamentplatte wird zum Platzwunder-Aktionspreis angeboten.
Die hohe Wertigkeit und Langlebigkeit eines STREIF-Energiespar-Hauses wird durch zahlreiche Auszeichnungen, Qualitäts- und Gütesiegel unabhängiger Institute und Verbände dokumentiert.
Abbildungen können Sonderausstattungen oder Anbauteile zeigen, die nicht im Lieferumfang/Angebot enthalten sind.
Karte wird geladen...
Objektstandort
58762 Altena
Lage & Infrastruktur
Objektstandort
58762 Altena
Die Lage bietet Ihnen alles, was Sie für den Alltag benötigen, von Schulen und Kindergärten bis hin zu Einkaufsmöglichkeiten und Freizeitaktivitäten. Zudem profitieren Sie von einer guten Anbindung an öffentliche Verkehrsmittel und die umliegenden Städte, die eine schnelle Erreichbarkeit gewährleisten.
Kontaktanfrage senden
Über den Anbieter
STREIF Haus GmbH
Josef-Streif-Straße 1
54595 Weinsheim
Kontakt
| Telefon | +49 2595 9909690 |
| Mobil | +49 157 53710612 |
| Website | www.streif.de |
Ansprechpartner/in
Herr Andreas Rogge
Weitere Angebote des Anbieters
10
Inkl. PV-Anlage mit Batteriespeicher!
Haus
88697 Bermatingen
Im Erdgeschoss befindet sich der große Wohn-/Ess- und Kochbereich. Das Gäste-WC wird optional zum Duschbad erweitert und der Hauswirtschafts-/Haustechnikraum komplettiert das Ganze. Im Obergeschoss befinden sich ein ...
600.000 €
Kaufpreis
133 m²
Wohnfläche
4,5
Zimmer
31
**Luxuriöses Wohnen: Entdecken Sie die Stadtvilla ...
Haus
38176 Wendeburg
Willkommen in Ihrer zukünftigen Traumstadtvilla in Wendeburg/ Neubrück, die mit STREIF nach Ihren individuellen Wünschen projektiert wird. Diese exklusive Residenz bietet Ihnen auf 190,29 m² Wohnfläche ein geräumiges ...
713.782,2 €
Kaufpreis
190,29 m²
Wohnfläche
6
Zimmer
35
**Endlich raus aus der Miete - jetzt starten mit ...
Haus
31688 Nienstädt
Willkommen in Ihrem Traumhaus! Dieses Einfamilienhaus, projektiert nach Ihren individuellen Wünschen, bietet Ihnen die perfekte Kombination aus modernem Design und höchstem Wohnkomfort. Mit einer großzügigen Wohnfläche ...
481.229 €
Kaufpreis
143,84 m²
Wohnfläche
4
Zimmer
32
**Familienfreundlicher Bungalow mit perfekter ...
Haus
31226 Peine
Tauchen Sie ein in die Welt des modernen Wohnens mit unserem projektierten Bungalow, der individuell nach Ihren Wünschen gestaltet wird. Auf einer großzügigen Wohnfläche von 93,51 m² verteilen sich geschmackvoll 3,0 ...
495.050 €
Kaufpreis
93,51 m²
Wohnfläche
3
Zimmer
9
Vorankündigung - Wohnen next Level by STREIF DHH
Haus
53844 Troisdorf
Hochwertiges Effizienzhaus-40-PLUS >> Planung nach modernsten Wohnkriterien.
649.800 €
Kaufpreis
149 m²
Wohnfläche
6
Zimmer