Neubau! Sonnige Doppelhaushälfte in ruhiger Lage
980.000 €
Kaufpreis
126,59 m²
Wohnfläche
108,93 m²
Nutzfläche
4
Zimmer
immobilien.de Nr.: 9486054
Objektnummer: 4098
Kaufpreis
| Kaufpreis | 980.000 € |
| Stellplatz Garage Kaufpreis | 22.500 € |
Wohnfläche, Grundstück & Bausubstanz
| Wohnfläche | 126,59 m² |
| Nutzfläche | 108,93 m² |
| Grundstücksfläche | 301 m² |
| Zimmer | 4 |
| Baujahr | 2026 |
| Verfügbar ab | nach Vereinbarung |
| Zustand | Erstbezug |
Beschreibung der Immobilie
Willkommen im Rotkehlchenweg – Ihrem neuen Lebensmittelpunkt in absolut ruhiger Lage von Geretsried-Gartenberg. Hier realisieren wir zwei hochwertig konzipierte Neubau-Doppelhaushälften mit klarem architektonischem Anspruch und durchdachtem Raumkonzept.
Im Erdgeschoss bildet der offen gestaltete Wohn- und Essbereich das kommunikative Herzstück des Hauses. Großzügige Fensterflächen sorgen für eine optimale Belichtung und schaffen eine angenehme Wohnatmosphäre. Von hier aus gelangen Sie direkt auf die sonnige Süd-Terrasse sowie in den privaten Garten – ideal für entspannte Feierabende, Familienzeit oder gesellige Stunden im Freien.
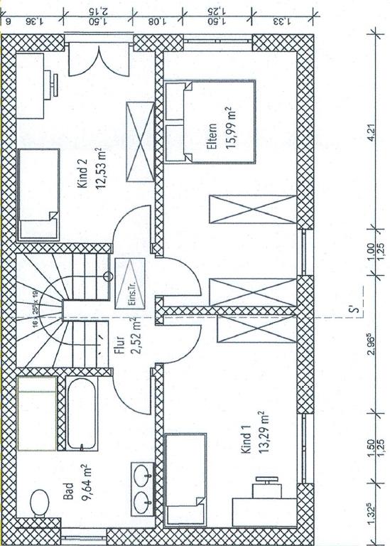
Das Obergeschoss bietet drei gut geschnittene, helle Schlafzimmer mit flexiblen Nutzungsmöglichkeiten – ob als Kinder-, Gäste- oder Homeoffice-Bereich. Ergänzt wird diese Ebene durch ein großzügiges Tageslichtbad mit Dusche und Badewanne, das Funktionalität und Komfort harmonisch vereint.
Die Realisierung erfolgt wahlweise mit oder ohne Unterkellerung. Der ausgewiesene Kaufpreis bezieht sich auf die Ausführung mit Keller.
In puncto Energieeffizienz positioniert sich das Objekt zukunftssicher: Eine moderne Luft-Wasser-Wärmepumpe in Kombination mit nachhaltiger Holzständerbauweise gewährleistet ein ressourcenschonendes Energiekonzept und langfristige Wirtschaftlichkeit.
Die Baugenehmigung ist erteilt und der Baubeginn ist für April/Mai 2026 angedacht.
Gerne präsentieren wir Ihnen dieses familienorientierte Neubauprojekt im persönlichen Austausch. Vereinbaren Sie jetzt einen Termin zur Besichtigung des Baugrundstücks oder ein individuelles Beratungsgespräch.
Im Erdgeschoss bildet der offen gestaltete Wohn- und Essbereich das kommunikative Herzstück des Hauses. Großzügige Fensterflächen sorgen für eine optimale Belichtung und schaffen eine angenehme Wohnatmosphäre. Von hier aus gelangen Sie direkt auf die sonnige Süd-Terrasse sowie in den privaten Garten – ideal für entspannte Feierabende, Familienzeit oder gesellige Stunden im Freien.
Das Obergeschoss bietet drei gut geschnittene, helle Schlafzimmer mit flexiblen Nutzungsmöglichkeiten – ob als Kinder-, Gäste- oder Homeoffice-Bereich. Ergänzt wird diese Ebene durch ein großzügiges Tageslichtbad mit Dusche und Badewanne, das Funktionalität und Komfort harmonisch vereint.
Die Realisierung erfolgt wahlweise mit oder ohne Unterkellerung. Der ausgewiesene Kaufpreis bezieht sich auf die Ausführung mit Keller.
In puncto Energieeffizienz positioniert sich das Objekt zukunftssicher: Eine moderne Luft-Wasser-Wärmepumpe in Kombination mit nachhaltiger Holzständerbauweise gewährleistet ein ressourcenschonendes Energiekonzept und langfristige Wirtschaftlichkeit.
Die Baugenehmigung ist erteilt und der Baubeginn ist für April/Mai 2026 angedacht.
Gerne präsentieren wir Ihnen dieses familienorientierte Neubauprojekt im persönlichen Austausch. Vereinbaren Sie jetzt einen Termin zur Besichtigung des Baugrundstücks oder ein individuelles Beratungsgespräch.
Ausstattungsmerkmale
| Bad | 1 |
| Terrassen | 1 |
| Garage/Stellplätze | 1 |
| Keller |
- Fußbodenheizung mit Einzelraumsteuerung
- Modern ausgestattetes Badezimmer mit bodenebener Dusche und Badewanne
- Modernste Luft-Wasser-Wärmepumpe
- Große Süd-Sonnenterrasse
- Garage sowie ein Außenstellplatz
- Weitere Details gerne auf Anfrage
Gerne setzen wir, soweit möglich, all Ihre Wünsche um!
Sprechen Sie uns bitte hierzu an!
- Modern ausgestattetes Badezimmer mit bodenebener Dusche und Badewanne
- Modernste Luft-Wasser-Wärmepumpe
- Große Süd-Sonnenterrasse
- Garage sowie ein Außenstellplatz
- Weitere Details gerne auf Anfrage
Gerne setzen wir, soweit möglich, all Ihre Wünsche um!
Sprechen Sie uns bitte hierzu an!
Karte wird geladen...
Objektstandort
82538 Geretsried
Lage & Infrastruktur
Objektstandort
82538 Geretsried
Geretsried bei Wolfratshausen liegt in einer der schönsten Regionen Bayerns und hat sich in ihrer jungen 60-jährigen Geschichte mit derzeit knapp 24.000 Einwohnern zur größten Stadt im Landkreis Bad Tölz-Wolfratshausen entwickelt. Die nahe gelegene Bergwelt der Alpen und die vielen Seen und Flüsse im Alpenvorland sind ein wahres Eldorado für Wassersportler, Wanderbegeisterte, Radfahrer und Golfspieler. Mit besten Anbindungen durch Autobahn, S-Bahn im Nachbarort Wolfratshausen (S7), Bus oder Fahrradwegen gelangt man von Geretsried aus schnell zum gewünschten Ziel.
Objektlage:
Die geplanten Doppelhaushälften befinden sich in ruhiger Nachbarschaft im Ortsteil Gartenberg. In nur wenigen Gehminuten ist das Zentrum von Geretsried, mit all seinen Einkaufsgeschäften erreichbar. Auch soziale Einrichtungen wie Schulen, Kindergärten und Sportvereine befinden sich in der nahen Umgebung.
Objektlage:
Die geplanten Doppelhaushälften befinden sich in ruhiger Nachbarschaft im Ortsteil Gartenberg. In nur wenigen Gehminuten ist das Zentrum von Geretsried, mit all seinen Einkaufsgeschäften erreichbar. Auch soziale Einrichtungen wie Schulen, Kindergärten und Sportvereine befinden sich in der nahen Umgebung.
Kontaktanfrage senden
Weitere Angebote des Anbieters
11
Neubau! Sonnige Doppelhaushälfte in ruhiger Lage
Haus
82538 Geretsried
Willkommen im Rotkehlchenweg – Ihrem neuen Lebensmittelpunkt in absolut ruhiger Lage von Geretsried-Gartenberg. Hier realisieren wir zwei hochwertig konzipierte Neubau-Doppelhaushälften mit klarem architektonischem ...
980.000 €
Kaufpreis
126,59 m²
Wohnfläche
4
Zimmer
14
Bergblick! Zentrale 3-Zimmer-Balkonwohnung
Wohnung
82377 Penzberg
Diese außergewöhnliche 3-Zimmer-Wohnung überzeugt durch ihre hochwertige Ausstattung sowie großzügige Raumaufteilung und ist bequem und barrierefrei mit dem Aufzug erreichbar. Mittelpunkt ist der ca. 41 m² große Wohn-, ...
723.450 €
Kaufpreis
96,59 m²
Wohnfläche
3
Zimmer
10
Großzügige 1-Zimmer-Wohnung mit sonnigem Balkon
Wohnung
82377 Penzberg
Diese großzügige 1-Zimmer-Wohnung im 1. Obergeschoss bietet modernen Wohnkomfort im Erstbezug. Der gut geschnittene Grundriss umfasst ein Wohn - und Schlafzimmer mit hochwertigem Vinylboden sowie eine separate Küche ...
367.800 €
Kaufpreis
49,7 m²
Wohnfläche
1
Zimmer
28
Rarität! Großes Anwesen auf parkähnlichem Grundstück ...
Haus
81929 München-Johanneskirchen-Gemarkung Bogenhausen
Dieses großzügige Einfamilienhaus aus dem Baujahr 1983 überzeugt durch seine außergewöhnliche Flächenstruktur, die ruhige Lage in München-Johanneskirchen sowie ein Wohnambiente mit hohem Komfort- und Privatsphärenfaktor ...
3.480.000 €
Kaufpreis
282,57 m²
Wohnfläche
9
Zimmer
5
Attraktive Bürofläche zur Untermiete im Glaspalast
Büro / Praxen
82377 Penzberg
Zur Untermiete steht eine moderne, helle Bürofläche mit ca. 30 m² in repräsentativer Lage im Glaspalast Penzberg. Zusätzlich stehen ca. 50 m² Gemeinschaftsflächen (Eingangsfoyer, Bad, hochwertige Küche) zur ...
650 €
Warmmiete
29,6 m²
Gesamtfläche