3.153 m² Grundstücksfläche I Platz für Ihr Traumhaus auf idyllischem Grundstück | Naturschutzgebiet
90.000 €
Kaufpreis
immobilien.de Nr.: 9486044
Objektnummer: 502696
Kaufpreis
| Kaufpreis | 90.000 € |
| Maklerprovision | 7,14 % inkl. 19 % Umsatzsteuer |
Wohnfläche, Grundstück & Bausubstanz
| Grundstücksfläche | 3.153 m² |
| Verfügbar ab | sofort |
Beschreibung der Immobilie
Dieses idyllische Traumgrundstück befindet sich in einer ruhigen Straße in der charmanten Ortschaft Kreischau bei Lützen. Das Grundstück erstreckt sich über ca. 3.153 m² Fläche und ist voll erschlossen (Strom, Wasser, Schmutzwasser).
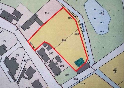
Hinter dem Grundstück fließt ein kleiner Bach, gefolgt von einem malerischen Wiesenhügel. Der hintere Teil des Grundstücks gehört zu einem Landschaftsschutzgebiet, das für seine Artenvielfalt und den Naturschutz bekannt ist. Innerhalb der rot schraffierten Fläche (378 m²) darf gebaut und überbaut werden (siehe auch Bebauungsvorschlag).
Ohne Abstimmung ist eine Magerwiese erlaubt und die alten Obstbäume dürfen gefällt werden. Eine biologische, landwirtschaftliche Nutzung ist möglich.
Laut Bauvorbescheid sind 2-3 Vollgeschoss (Neubau Einfamilienhaus / Doppelhaus) nach den Vorschriften der §§ 29-36 Baugesetzbuch zulässig.
Hinter dem Grundstück fließt ein kleiner Bach, gefolgt von einem malerischen Wiesenhügel. Der hintere Teil des Grundstücks gehört zu einem Landschaftsschutzgebiet, das für seine Artenvielfalt und den Naturschutz bekannt ist. Innerhalb der rot schraffierten Fläche (378 m²) darf gebaut und überbaut werden (siehe auch Bebauungsvorschlag).
Ohne Abstimmung ist eine Magerwiese erlaubt und die alten Obstbäume dürfen gefällt werden. Eine biologische, landwirtschaftliche Nutzung ist möglich.
Laut Bauvorbescheid sind 2-3 Vollgeschoss (Neubau Einfamilienhaus / Doppelhaus) nach den Vorschriften der §§ 29-36 Baugesetzbuch zulässig.
Ausstattungsmerkmale
| Garten |
* ca. 3.153 m² Grundstücksfläche
* 378 m² bebaubare Fläche mit Bau-Vorschlag
* voll erschlossen
* Pferdehaltung möglich
* Naturteich oder Gemüsebete möglich
* anliegender Bach
* Wiesenhügel
* 378 m² bebaubare Fläche mit Bau-Vorschlag
* voll erschlossen
* Pferdehaltung möglich
* Naturteich oder Gemüsebete möglich
* anliegender Bach
* Wiesenhügel
Sonstige Informationen
Hinweis zur Richtigkeit und Vollständigkeit der Angaben:
Der Makler weist darauf hin, dass die von ihm weitergegebenen Objektinformationen vom Verkäufer bzw. von einem vom Verkäufer beauftragten Dritten stammen und von ihm, dem Makler, auf ihre Richtigkeit nicht überprüft worden sind. Es ist Sache des Kunden, diese Angaben auf ihre Richtigkeit hin zu überprüfen. Der Makler, der diese Informationen nur weitergibt, übernimmt für die Richtigkeit keinerlei Haftung.
Der Makler weist darauf hin, dass die von ihm weitergegebenen Objektinformationen vom Verkäufer bzw. von einem vom Verkäufer beauftragten Dritten stammen und von ihm, dem Makler, auf ihre Richtigkeit nicht überprüft worden sind. Es ist Sache des Kunden, diese Angaben auf ihre Richtigkeit hin zu überprüfen. Der Makler, der diese Informationen nur weitergibt, übernimmt für die Richtigkeit keinerlei Haftung.
Karte wird geladen...
Objektstandort
06686 Lützen
- Sachsen-Anhalt
Lage & Infrastruktur
Objektstandort
06686 Lützen
- Sachsen-Anhalt
Lützen, OT Kreischau, liegt malerisch in der ländlichen Region von Sachsen-Anhalt, umgeben von einer idyllischen Landschaft aus Feldern und Wäldern. Lützen ist durch seine historische Bedeutung und ländliche Umgebung geprägt ist.
Lage und Erreichbarkeit:
Lützen liegt etwa 20 Kilometer südwestlich von Leipzig und ist über die Bundesstraßen B87 und B186 gut erreichbar. Die Autobahn A9 ist in unmittelbarer Nähe, was eine gute Anbindung an das regionale und überregionale Straßennetz gewährleistet. Der öffentliche Nahverkehr ist vorhanden. Es gibt Busverbindungen (Buslinien 782, 784 und 806) in die umliegenden Orte und nach Leipzig.
Infrastruktur:
Lützen verfügt über Grundschulen, eine Sekundarschule, Kindergärten und grundlegende Einkaufsmöglichkeiten für den täglichen Bedarf. Es gibt Ärzte, eine Apotheke und weitere notwendige Dienstleistungen vor Ort. Weitere umfassendere Versorgungsmöglichkeiten und Dienstleistungen finden sich im nahegelegenen Leipzig und Weißenfels.
Natur und Freizeit:
Die Umgebung von Lützen ist ländlich geprägt, mit vielen Feldern, Wäldern und Wanderwegen, die zu Spaziergängen und Radtouren einladen.
Es gibt mehrere kleine Seen und Teiche in der Umgebung, die Möglichkeiten zum Angeln und Entspannen bieten.
Historisch Interessierte können das Gustav-Adolf-Denkmal und das Schloss Lützen besichtigen.
Wohnen und Lebensqualität:
Die Wohnqualität in Lützen ist durch eine ruhige, ländliche Atmosphäre und eine enge Gemeinschaft geprägt. Es gibt eine Mischung aus historischen Gebäuden, Einfamilienhäusern und neueren Wohnbauten. Die ländliche Umgebung und die Nähe zu Leipzig machen Lützen zu einem attraktiven Wohnort für Pendler und Familien, die eine ruhige Wohnlage bevorzugen.
Kulturelle und soziale Angebote:
Lützen hat ein reges Vereinsleben, mit verschiedenen Sport- und Kulturvereinen, die das Gemeinschaftsleben fördern. Es gibt regelmäßig lokale Veranstaltungen und Feste, die das soziale Miteinander stärken. Die historische Bedeutung von Lützen als Schauplatz der Schlacht bei Lützen (1632) zieht auch geschichtsinteressierte Besucher an.
Lage und Erreichbarkeit:
Lützen liegt etwa 20 Kilometer südwestlich von Leipzig und ist über die Bundesstraßen B87 und B186 gut erreichbar. Die Autobahn A9 ist in unmittelbarer Nähe, was eine gute Anbindung an das regionale und überregionale Straßennetz gewährleistet. Der öffentliche Nahverkehr ist vorhanden. Es gibt Busverbindungen (Buslinien 782, 784 und 806) in die umliegenden Orte und nach Leipzig.
Infrastruktur:
Lützen verfügt über Grundschulen, eine Sekundarschule, Kindergärten und grundlegende Einkaufsmöglichkeiten für den täglichen Bedarf. Es gibt Ärzte, eine Apotheke und weitere notwendige Dienstleistungen vor Ort. Weitere umfassendere Versorgungsmöglichkeiten und Dienstleistungen finden sich im nahegelegenen Leipzig und Weißenfels.
Natur und Freizeit:
Die Umgebung von Lützen ist ländlich geprägt, mit vielen Feldern, Wäldern und Wanderwegen, die zu Spaziergängen und Radtouren einladen.
Es gibt mehrere kleine Seen und Teiche in der Umgebung, die Möglichkeiten zum Angeln und Entspannen bieten.
Historisch Interessierte können das Gustav-Adolf-Denkmal und das Schloss Lützen besichtigen.
Wohnen und Lebensqualität:
Die Wohnqualität in Lützen ist durch eine ruhige, ländliche Atmosphäre und eine enge Gemeinschaft geprägt. Es gibt eine Mischung aus historischen Gebäuden, Einfamilienhäusern und neueren Wohnbauten. Die ländliche Umgebung und die Nähe zu Leipzig machen Lützen zu einem attraktiven Wohnort für Pendler und Familien, die eine ruhige Wohnlage bevorzugen.
Kulturelle und soziale Angebote:
Lützen hat ein reges Vereinsleben, mit verschiedenen Sport- und Kulturvereinen, die das Gemeinschaftsleben fördern. Es gibt regelmäßig lokale Veranstaltungen und Feste, die das soziale Miteinander stärken. Die historische Bedeutung von Lützen als Schauplatz der Schlacht bei Lützen (1632) zieht auch geschichtsinteressierte Besucher an.
Kontaktanfrage senden
Über den Anbieter
Willuhn Immobilien e. K.
Scherlstraße 12
04103 Leipzig
Kontakt
| Telefon | 0341 25327 305 |
| Fax | 0341 25327329 |
| Website | www.vvv-leipzig-immobilien.de |
Ansprechpartner/in
Josie Celina Voigt
Weitere Angebote des Anbieters
19
Südvorstadt | WG-geeignet | Balkon
Wohnung
04275 Leipzig
Diese 4-Raum-Wohnung befindet sich im 1. Obergeschoss eines ca. 1900 errichteten Mehrfamilienhauses in der Karl-Liebknecht-Straße. Das Treppenhaus ist sehr gepflegt und spricht für eine intakte und sehr nette ...
944 €
Kaltmiete
85,77 m²
Wohnfläche
4
Zimmer
24
Großzügiges Familienwohnen – 7 Zimmer auf traumhaftem ...
Haus
04509 Krostitz
Dieses charmante Einfamilienhaus vereint Großzügigkeit, Wohnkomfort und vielseitige Nutzungsmöglichkeiten auf einem beeindruckenden Grundstück. Hier genießen Sie ein Zuhause, das Raum für die ganze Familie bietet – ...
539.000 €
Kaufpreis
152,17 m²
Wohnfläche
7
Zimmer
20
Zweifamilienhaus in idyllischer Lage! | Hochwertig ...
Haus
04509 Schönwölkau
Bei diesem außergewöhnlichen Angebot handelt es sich um ein idyllisches Zweifamilienhaus in dem aktuell beide Wohnungen zur Verfügung stehen: - EG, 160 m², eigene Terrasse & Garten (ca. 300 m²), Kaltmiete 1.568€ - 1. ...
2.940 €
Kaltmiete
300 m²
Wohnfläche
8
Zimmer
14
Wie im eigenen Haus | Garten, Terrasse & Stellplatz | ...
Wohnung
04509 Schönwölkau
Diese außergewöhnlich großzügige Erdgeschosswohnung mit ca. 160 m² Wohnfläche befindet sich in einem Zweifamilienhaus und bietet ein Wohngefühl, das dem eines eigenen Hauses sehr nahekommt. Durch die Lage im ...
1.568 €
Kaltmiete
160 m²
Wohnfläche
4
Zimmer
14
Traumhaft helle Wohnung mit eigenem Garten | ...
Wohnung
04509 Schönwölkau
Diese bezugsfreie Wohnung im 1. Obergeschoss überzeugt mit einer großzügigen Wohnfläche von ca. 140 m², einem durchdachten Grundriss sowie einer hochwertigen und energieeffizienten Ausstattung. Die Immobilie bietet ...
1.372 €
Kaltmiete
140 m²
Wohnfläche
4
Zimmer