Haus+Einliegerwohnung - 2 Generationen unter einem Dach
579.997 €
Kaufpreis
168 m²
Wohnfläche
6
Zimmer
immobilien.de Nr.: 9484534
Objektnummer: 4279
Kaufpreis
| Kaufpreis | 579.997 € |
Wohnfläche, Grundstück & Bausubstanz
| Wohnfläche | 168 m² |
| Grundstücksfläche | 700 m² |
| Zimmer | 6 |
| Verfügbar ab | keine Angabe |
| Zustand | Projektiert |
Energie
| Energietyp | Niedrigenergie |
| Energieträger/Befeuerung | Luft-Wärme-Pumpe |
Beschreibung der Immobilie
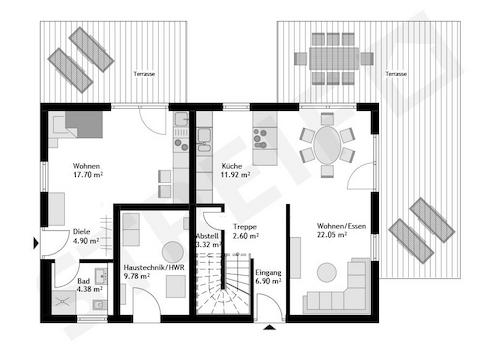
Ihr Traumhaus mit Einliegerwohnung - ideal für Mehrgenerationen oder Vermietung
Willkommen in einer Stadtvilla, die modernes Familienleben und smarte Raumlösungen perfekt vereint!
Das Family Hauskonzept von STREIF bietet auf großzügigen 167,94 qm Netto-Raumfläche ein innovatives Konzept für Mehrgenerationenwohnen, Vermietung oder flexible Familiengestaltung.
Ein besonderes Highlight ist die integrierte Einliegerwohnung mit separatem Eingang - perfekt geeignet für die Vermietung, das Wohnen mit Großeltern oder erwachsenen Kindern oder als exklusives Home-Office.
Die bodentiefen Terrassentüren im Erdgeschoss sorgen für lichtdurchflutete Räume und einen offenen, modernen Charakter.
Im Obergeschoss bietet die Villa ein durchdachtes Raumkonzept mit einer großen Ankleide im Elternbereich sowie einem zusätzlichen Abstellraum, der für extra Stauraum und Ordnung sorgt - ideal für anspruchsvolle Familienbedürfnisse.
Willkommen in einer Stadtvilla, die modernes Familienleben und smarte Raumlösungen perfekt vereint!
Das Family Hauskonzept von STREIF bietet auf großzügigen 167,94 qm Netto-Raumfläche ein innovatives Konzept für Mehrgenerationenwohnen, Vermietung oder flexible Familiengestaltung.
Ein besonderes Highlight ist die integrierte Einliegerwohnung mit separatem Eingang - perfekt geeignet für die Vermietung, das Wohnen mit Großeltern oder erwachsenen Kindern oder als exklusives Home-Office.
Die bodentiefen Terrassentüren im Erdgeschoss sorgen für lichtdurchflutete Räume und einen offenen, modernen Charakter.
Im Obergeschoss bietet die Villa ein durchdachtes Raumkonzept mit einer großen Ankleide im Elternbereich sowie einem zusätzlichen Abstellraum, der für extra Stauraum und Ordnung sorgt - ideal für anspruchsvolle Familienbedürfnisse.
Ausstattungsmerkmale
| Anzahl der Etagen im Haus | 2 |
| Bad | 1 |
| Bad | Dusche, Wanne, Fenster |
| Boden | Fliesen |
Das Streif City Haus wird im Standard KFW 40 PLUS ausgeführt. Innenausstattung aus dem STREIF-Programm in der Ausbaustufe FF+ inklusive Fundamentplatte.
■ Rohbau (geschlossene Gebäudehülle) mit Fenstern, Haustür1 inkl. Dacheindeckung
■ Außenfassade inkl. Außenputz, vor Ort komplett fertiggestellt
■ Komplette Blechner-/Spenglerarbeiten
■ lnnen-/Außenwände wärme- und schallgedämmt und mit Rigidur Gipsfaserplatten geschlossen
■ Geschosstreppe (außer Bungalow)
■ Decken wärme- und schallgedämmt und mit Gipskartonbau platten geschlossen
■ Elektroinstallation, einschließlich erforderlichem Zählerschrank und Inbetriebnahme
■ Heizungsanlage inkl. Inbetriebnahme
■ Innenfensterbänke Kunststeinbänke (Gussmarmorbänke) inkl. Einbau
■ Estrich
■ Sanitärräume mit Wand- und Bodenfliesen
■ Sanitärräume mit Sanitärobjekten
■ 6,23 kWP Photovoltaikanlage und 7,7 kWh Batteriespeicher
Die Innentüren sowie Wand-, Decken- und Bodenbeläge der übrigen Räume sind Eigenleistungen des Bauherren.
STREIF Frischluft-Wärmepumpen-Technologie - inklusive
- Heizen mit frischer Außenluft
- Kein Gasanschluss, kein Öl- oder Pelletlagerraum
- Keine Heizkörper
- Wärmetauscher mit bis zu 85% Wärmerückgewinnung
Die dargestellten Bilder können Sonderausstattungen beinhalten, die nicht im Preis enthalten sind!
zzgl. Ortüblicher Baunebenkosten
Selbstverständlich können wir Ihr Haus auch schlüsselfertig / bezugsfertig errichten.
■ Bodenbeläge, Sockel leisten verlegt
■ Maler- und Tapezierarbeiten
■ Innentüren inkl. Einbau
■ Rohbau (geschlossene Gebäudehülle) mit Fenstern, Haustür1 inkl. Dacheindeckung
■ Außenfassade inkl. Außenputz, vor Ort komplett fertiggestellt
■ Komplette Blechner-/Spenglerarbeiten
■ lnnen-/Außenwände wärme- und schallgedämmt und mit Rigidur Gipsfaserplatten geschlossen
■ Geschosstreppe (außer Bungalow)
■ Decken wärme- und schallgedämmt und mit Gipskartonbau platten geschlossen
■ Elektroinstallation, einschließlich erforderlichem Zählerschrank und Inbetriebnahme
■ Heizungsanlage inkl. Inbetriebnahme
■ Innenfensterbänke Kunststeinbänke (Gussmarmorbänke) inkl. Einbau
■ Estrich
■ Sanitärräume mit Wand- und Bodenfliesen
■ Sanitärräume mit Sanitärobjekten
■ 6,23 kWP Photovoltaikanlage und 7,7 kWh Batteriespeicher
Die Innentüren sowie Wand-, Decken- und Bodenbeläge der übrigen Räume sind Eigenleistungen des Bauherren.
STREIF Frischluft-Wärmepumpen-Technologie - inklusive
- Heizen mit frischer Außenluft
- Kein Gasanschluss, kein Öl- oder Pelletlagerraum
- Keine Heizkörper
- Wärmetauscher mit bis zu 85% Wärmerückgewinnung
Die dargestellten Bilder können Sonderausstattungen beinhalten, die nicht im Preis enthalten sind!
zzgl. Ortüblicher Baunebenkosten
Selbstverständlich können wir Ihr Haus auch schlüsselfertig / bezugsfertig errichten.
■ Bodenbeläge, Sockel leisten verlegt
■ Maler- und Tapezierarbeiten
■ Innentüren inkl. Einbau
Sonstige Informationen
Sie brauchen einen kompetenten und verlässlichen Baupartner? Wir stehen Ihnen von Anfang an zur Seite und begleiten Sie auf dem Weg in Ihr Eigenheim.
Mit großem Engagement, Persönlichkeit und der Fachfirma STREIF mit immensen Bau-Know-how, die seit 1929 auf über 90.000 realisierte Wohnträume zurückblicken kann.
Jedes Haus von STREIF wird individuell als Energiesparhaus geplant und gebaut. Eine nachhaltige, ökologische und wohngesunde Bauweise, eine zertifizierte Ausführungsqualität und eine kurze Bauzeit, dafür stehen wir.
Mit großem Engagement, Persönlichkeit und der Fachfirma STREIF mit immensen Bau-Know-how, die seit 1929 auf über 90.000 realisierte Wohnträume zurückblicken kann.
Jedes Haus von STREIF wird individuell als Energiesparhaus geplant und gebaut. Eine nachhaltige, ökologische und wohngesunde Bauweise, eine zertifizierte Ausführungsqualität und eine kurze Bauzeit, dafür stehen wir.
Karte wird geladen...
Objektstandort
56858 Peterswald-Löffelscheid
Lage & Infrastruktur
Objektstandort
56858 Peterswald-Löffelscheid
Unsere Grundstücke befinden sich in attraktiven Lagen und bieten die ideale Basis für Ihr zukünftiges Zuhause.
Bitte haben Sie Verständnis dafür, dass wir aus Datenschutz- und Vertraulichkeitsgründen telefonisch keine Grundstücksdaten herausgeben können.
Bitte haben Sie Verständnis dafür, dass wir aus Datenschutz- und Vertraulichkeitsgründen telefonisch keine Grundstücksdaten herausgeben können.
Kontaktanfrage senden
Über den Anbieter
STREIF Haus GmbH
Josef-Streif-Straße 1
54595 Weinsheim
Kontakt
| Telefon | +49 (0) 65 51.12-00 |
| Mobil | +49 171 2225255 |
| Website | www.streif.de |
Ansprechpartner/in
Herr Markus Stemmler