Großzügiges Zweifamilienhaus mit ausgebautem DG, 10 Zimmer, 2 Garagen – ideal für Mehrgenerationen
379.000 €
Kaufpreis
286 m²
Wohnfläche
10
Zimmer
immobilien.de Nr.: 9484530
Objektnummer: 431819
Kaufpreis
| Kaufpreis | 379.000 € |
| Maklerprovision | keine Provision, courtagefrei |
Wohnfläche, Grundstück & Bausubstanz
| Wohnfläche | 286 m² |
| Grundstücksfläche | 336 m² |
| Zimmer | 10 |
| Baujahr | 1960 |
| Verfügbar ab | nach Absprache |
| Zustand | Teil Vollrenovierungsbed |
Energie
| Energieausweistyp | Verbrauch |
| Energieeffizienzklasse | F |
| Energieverbrauchkennwert | 172 kWh/(m²*a) |
| Energieträger/Befeuerung | Öl |
Beschreibung der Immobilie
WICHTIG: Das Haus wird derzeit noch geräumt/aufbereitet. Besichtigungen sind voraussichtlich erst ab Mitte März möglich.
Gerne können Sie sich bereits jetzt vormerken lassen (Interessentenliste).
Eckdaten
Kaufpreis: 379.000 € VB
Ort: Burggrumbach (Gemeinde Unterpleichfeld), Fischergasse 6
Objektart: Zweifamilienhaus mit ausgebautem Dachgeschoss
Wohnfläche: ca. 286 m²
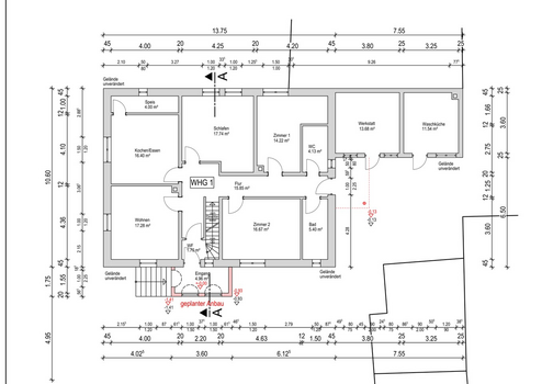
EG ca. 113 m²
OG ca. 113 m²
DG ca. 60 m² anrechenbar (Zugang über Innentreppe vom 1. OG)
Grundstück: ca. 366 m²
Zimmer: 10
Bäder/WC: EG 1 Bad + separates WC / 1. OG 2 Bäder
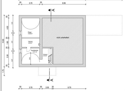
Nebenflächen: Werkstatt/ehem. Stall ca. 13,68 m², Waschküche ca. 11,54 m², Lagerflächen
Garagen: 2 (mit großer Terrasse darüber)
Heizung: Öl-Zentralheizung (Bj. 2005/2006), 8.000-l-Tank
Fenster: ca. 80 % Kunststofffenster neu (2025)
Elektrik: über Jahre angepasst, zuletzt 2016 erweitert/erneuert
Provision: Privatverkauf, keine Käuferprovision
Beschreibung
Zum Verkauf steht ein sehr geräumiges Zweifamilienhaus mit ausgebautem Dachgeschoss in Burggrumbach (Gemeinde Unterpleichfeld). Das Haus bietet insgesamt ca. 286 m² Wohnfläche und eignet sich durch Größe und Aufteilung ideal als Mehrgenerationenhaus, für großzügiges Wohnen mit separater Wohnung oder für Käufer, die ein Objekt mit weiterem Nutzungskonzept entwickeln möchten.
Aufteilung:
Erdgeschoss (ca. 113 m²): 4 Zimmer, Küche, Bad, separates WC, Flur
1. Obergeschoss (ca. 113 m²): 4 Zimmer, Küche, 2 Bäder, Flur
Dachgeschoss (ca. 60 m² anrechenbar): ausgebaut, gedämmt, helle Räume mit Dachflächenfenstern
Hinweis: Das Dachgeschoss ist über eine Innentreppe vom 1. OG erreichbar und bildet zusammen mit dem 1. OG eine Einheit (keine separate Wohnung).
Zustand / Modernisierungsbedarf
Die Immobilie ist insgesamt modernisierungsbedürftig – der Kaufpreis berücksichtigt dies.
In Erdgeschoss und Obergeschoss sind die meisten Oberflächen (Wände/Decken/Bodenbeläge) zu überarbeiten bzw. zu erneuern.
Die Bäder (EG und OG) sind sanierungsbedürftig und entsprechen nicht mehr heutigem Standard.
Haustür und Innentüren sind überwiegend im Originalzustand und aus heutiger Sicht nicht mehr zeitgemäß.
Außenbereich: Hofeinfahrt/Beläge sind in die Jahre gekommen; Sockelbereich ist erneuerungsbedürftig.
Außenhülle: Putz/Fassade grundsätzlich in Ordnung (optische Überarbeitung möglich).
Dach: gedämmt; Eindeckung mit Wellplatten
Besichtigung / Ablauf
Besichtigungen sind voraussichtlich erst ab Mitte März möglich, da das Haus derzeit noch geräumt und vorbereitet wird.
Gerne nehme ich Interessenten vorab in eine Liste auf und melde mich zur Terminabstimmung, sobald Besichtigungen starten.
Bitte senden Sie bei Interesse kurz:
Telefonnummer
Eigennutzung oder Kapitalanlage
ob Finanzierung grundsätzlich geklärt ist
Privatverkauf ohne Käuferprovision. Angaben ohne Gewähr.
Gerne können Sie sich bereits jetzt vormerken lassen (Interessentenliste).
Eckdaten
Kaufpreis: 379.000 € VB
Ort: Burggrumbach (Gemeinde Unterpleichfeld), Fischergasse 6
Objektart: Zweifamilienhaus mit ausgebautem Dachgeschoss
Wohnfläche: ca. 286 m²
EG ca. 113 m²
OG ca. 113 m²
DG ca. 60 m² anrechenbar (Zugang über Innentreppe vom 1. OG)
Grundstück: ca. 366 m²
Zimmer: 10
Bäder/WC: EG 1 Bad + separates WC / 1. OG 2 Bäder
Nebenflächen: Werkstatt/ehem. Stall ca. 13,68 m², Waschküche ca. 11,54 m², Lagerflächen
Garagen: 2 (mit großer Terrasse darüber)
Heizung: Öl-Zentralheizung (Bj. 2005/2006), 8.000-l-Tank
Fenster: ca. 80 % Kunststofffenster neu (2025)
Elektrik: über Jahre angepasst, zuletzt 2016 erweitert/erneuert
Provision: Privatverkauf, keine Käuferprovision
Beschreibung
Zum Verkauf steht ein sehr geräumiges Zweifamilienhaus mit ausgebautem Dachgeschoss in Burggrumbach (Gemeinde Unterpleichfeld). Das Haus bietet insgesamt ca. 286 m² Wohnfläche und eignet sich durch Größe und Aufteilung ideal als Mehrgenerationenhaus, für großzügiges Wohnen mit separater Wohnung oder für Käufer, die ein Objekt mit weiterem Nutzungskonzept entwickeln möchten.
Aufteilung:
Erdgeschoss (ca. 113 m²): 4 Zimmer, Küche, Bad, separates WC, Flur
1. Obergeschoss (ca. 113 m²): 4 Zimmer, Küche, 2 Bäder, Flur
Dachgeschoss (ca. 60 m² anrechenbar): ausgebaut, gedämmt, helle Räume mit Dachflächenfenstern
Hinweis: Das Dachgeschoss ist über eine Innentreppe vom 1. OG erreichbar und bildet zusammen mit dem 1. OG eine Einheit (keine separate Wohnung).
Zustand / Modernisierungsbedarf
Die Immobilie ist insgesamt modernisierungsbedürftig – der Kaufpreis berücksichtigt dies.
In Erdgeschoss und Obergeschoss sind die meisten Oberflächen (Wände/Decken/Bodenbeläge) zu überarbeiten bzw. zu erneuern.
Die Bäder (EG und OG) sind sanierungsbedürftig und entsprechen nicht mehr heutigem Standard.
Haustür und Innentüren sind überwiegend im Originalzustand und aus heutiger Sicht nicht mehr zeitgemäß.
Außenbereich: Hofeinfahrt/Beläge sind in die Jahre gekommen; Sockelbereich ist erneuerungsbedürftig.
Außenhülle: Putz/Fassade grundsätzlich in Ordnung (optische Überarbeitung möglich).
Dach: gedämmt; Eindeckung mit Wellplatten
Besichtigung / Ablauf
Besichtigungen sind voraussichtlich erst ab Mitte März möglich, da das Haus derzeit noch geräumt und vorbereitet wird.
Gerne nehme ich Interessenten vorab in eine Liste auf und melde mich zur Terminabstimmung, sobald Besichtigungen starten.
Bitte senden Sie bei Interesse kurz:
Telefonnummer
Eigennutzung oder Kapitalanlage
ob Finanzierung grundsätzlich geklärt ist
Privatverkauf ohne Käuferprovision. Angaben ohne Gewähr.
Ausstattungsmerkmale
| Anzahl der Etagen im Haus | 2 |
| Bad | 4 |
| Bad | Dusche, Wanne |
| Boden | Fliesen, Teppich, Parkett, Laminat, Kunststoff |
| Balkone | 1 |
| Garten | |
| Terrassen | 1 |
| Barrierefrei | |
| Garage/Stellplätze | 2 |
| Keller |
Balkon, Terrasse, Garten, Keller, Vollbad, Duschbad, Gäste-WC, Barrierefrei, Parkett, Laminat, Teppichboden, Fliesen
Sonstige Informationen
Energieträger: Öl
Makleranfragen nicht erwünscht. Nach § 7 UWG sind unaufgeforderte Kontaktaufnahmen durch Makler ohne ausdrückliche Einwilligung des Empfängers verboten!
ohne-makler (OM) ist weder Anbieter noch Vermittler der Immobilie. OM betreibt eine Plattform für Immobilieneigentümer, die unter anderem die gleichzeitige Veröffentlichung einzelner Inserate auf mehreren Immobilienportalen ermöglicht. Die Inhalte dieser Inserate werden ausschließlich von Dritten verantwortet. Für die Richtigkeit, Vollständigkeit oder Rechtmäßigkeit der Angaben übernimmt OM keine Haftung. Hinweise auf mögliche Rechtsverstöße können jederzeit gemeldet werden und werden nach Prüfung umgehend bearbeitet.
Makleranfragen nicht erwünscht. Nach § 7 UWG sind unaufgeforderte Kontaktaufnahmen durch Makler ohne ausdrückliche Einwilligung des Empfängers verboten!
ohne-makler (OM) ist weder Anbieter noch Vermittler der Immobilie. OM betreibt eine Plattform für Immobilieneigentümer, die unter anderem die gleichzeitige Veröffentlichung einzelner Inserate auf mehreren Immobilienportalen ermöglicht. Die Inhalte dieser Inserate werden ausschließlich von Dritten verantwortet. Für die Richtigkeit, Vollständigkeit oder Rechtmäßigkeit der Angaben übernimmt OM keine Haftung. Hinweise auf mögliche Rechtsverstöße können jederzeit gemeldet werden und werden nach Prüfung umgehend bearbeitet.
Karte wird geladen...
Objektstandort
Fischergasse 6
97294 Burggrumbach
- Bayern
Lage & Infrastruktur
Objektstandort
Fischergasse 6
97294 Burggrumbach
- Bayern
Infrastruktur (im Umkreis von 5 km):
Lebensmittel-Discount, Allgemeinmediziner, Kindergarten, Grundschule, Hauptschule, Realschule, Gesamtschule, Öffentliche Verkehrsmittel
Kontaktanfrage senden
Über den Anbieter
OM PropTech GmbH
Humboldtstraße 25a
21509 Glinde
Kontakt
| Telefon | - |
| Fax | - |
| Website | www.ohne-makler.net |
Ansprechpartner/in
Privat vom Eigentümer