Nach Kernsanierung - 3-Zimmer-Dachgeschosswohnung mit Balkon in Magdeburg-Sudenburg
724 €
Kaltmiete (netto)
69 m²
Wohnfläche
3
Zimmer
immobilien.de Nr.: 9483668
Objektnummer: 426195
Mietpreis & Nebenkosten
| Kaltmiete (netto) | 724 € |
| Nebenkosten | 85 € |
| Heizkosten | 145 € |
| Kaution | 1.448 € |
Wohnfläche, Grundstück & Bausubstanz
| Wohnfläche | 69 m² |
| Zimmer | 3 |
| Baujahr | 1900 |
| Verfügbar ab | 15.03.2026 |
| Zustand | Teil Vollsaniert |
Energie
| Energieausweistyp | Verbrauch |
| Energieeffizienzklasse | D |
| Energieverbrauchkennwert | 124 kWh/(m²*a) |
| Heizungsart | Zentralheizung |
| Energieträger/Befeuerung | Gas |
Beschreibung der Immobilie
Objektbeschreibung
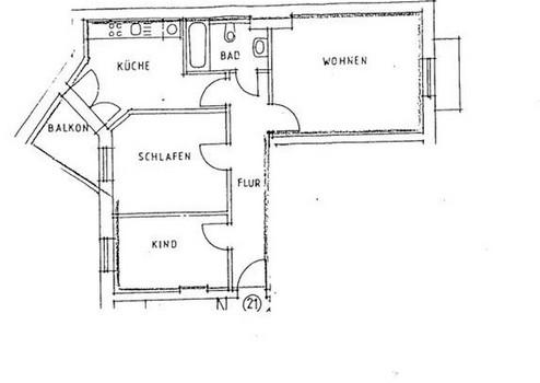
Zur Vermietung steht eine 3-Zimmer-Dachgeschosswohnung in einem gepflegten Mehrfamilienhaus im beliebten Magdeburger Stadtteil Sudenburg.
Die Wohnung verfügt über eine praktische Raumaufteilung mit drei gut nutzbaren Zimmern, einer separaten Küche, einem Badezimmer mit Dusche sowie einem Balkon mit Blick in den ruhigen Innenhof.
Durch die Dachgeschosslage sind die Räume angenehm hell. Die Wohnung eignet sich ideal für Paare, kleine Familien oder eine 2er-WG.
Ausstattung
- ca. 69 m² Wohnfläche
- 3 Zimmer
- Separate Küche
- Badezimmer mit Dusche
- Balkon zum Innenhof
- Vinylboden in Holzoptik
- Weiß gestrichene Wände
- Zentralheizung (Gas)
- Kellerabteil vorhanden
Energieausweis:
Verbrauchsausweis, 124 kWh/(m²·a), Effizienzklasse D
Objektzustand: Erstbezug nach Sanierung
Zur Vermietung steht eine 3-Zimmer-Dachgeschosswohnung in einem gepflegten Mehrfamilienhaus im beliebten Magdeburger Stadtteil Sudenburg.
Die Wohnung verfügt über eine praktische Raumaufteilung mit drei gut nutzbaren Zimmern, einer separaten Küche, einem Badezimmer mit Dusche sowie einem Balkon mit Blick in den ruhigen Innenhof.
Durch die Dachgeschosslage sind die Räume angenehm hell. Die Wohnung eignet sich ideal für Paare, kleine Familien oder eine 2er-WG.
Ausstattung
- ca. 69 m² Wohnfläche
- 3 Zimmer
- Separate Küche
- Badezimmer mit Dusche
- Balkon zum Innenhof
- Vinylboden in Holzoptik
- Weiß gestrichene Wände
- Zentralheizung (Gas)
- Kellerabteil vorhanden
Energieausweis:
Verbrauchsausweis, 124 kWh/(m²·a), Effizienzklasse D
Objektzustand: Erstbezug nach Sanierung
Ausstattungsmerkmale
| Anzahl der Etagen im Haus | 3 |
| Inserat befindet sich im Stockwerk | 3 |
| Küche | Einbauküche |
| Bad | 1 |
| Bad | Dusche |
| Boden | Fliesen, Kunststoff |
| Balkone | 1 |
| Terrassen | 0 |
| Keller |
Balkon, Keller, Duschbad, Einbauküche, Fliesen
Bemerkungen:
Die gesamte Wohnung ist erstklassig und mit hochwertigen Materialien ausgestattet. Es wurde besonderer Wert auf eine moderne, langlebige und stilvolle Ausführung gelegt.
- Hochwertige Bodenbeläge
- Modern gestaltete Wohnräume
- Zeitgemäße Ausstattung mit qualitativen Materialien
- Balkon zum ruhigen Innenhof
Kellerabteil vorhanden
Neue Einbauküche inklusive:
- Zum Einzug wird eine moderne Einbauküche neu installiert. Diese ist ausgestattet mit:
- Cerankochfeld
- Backofen
- Dunstabzugshaube
- Anschlussmöglichkeit für Waschmaschine
- Die Küche ist Bestandteil der Wohnung und wird zur Nutzung mitvermietet.
Bemerkungen:
Die gesamte Wohnung ist erstklassig und mit hochwertigen Materialien ausgestattet. Es wurde besonderer Wert auf eine moderne, langlebige und stilvolle Ausführung gelegt.
- Hochwertige Bodenbeläge
- Modern gestaltete Wohnräume
- Zeitgemäße Ausstattung mit qualitativen Materialien
- Balkon zum ruhigen Innenhof
Kellerabteil vorhanden
Neue Einbauküche inklusive:
- Zum Einzug wird eine moderne Einbauküche neu installiert. Diese ist ausgestattet mit:
- Cerankochfeld
- Backofen
- Dunstabzugshaube
- Anschlussmöglichkeit für Waschmaschine
- Die Küche ist Bestandteil der Wohnung und wird zur Nutzung mitvermietet.
Sonstige Informationen
Heizungsart: Zentralheizung
Energieträger: Gas
Die Wohnung ist ab dem 15. März verfügbar.
Besichtigungen sind nach Vereinbarung möglich.
Bitte senden Sie bei Interesse eine kurze Vorstellung Ihrer Person (Anzahl der einziehenden Personen, Berufstätigkeit, gewünschter Einzugstermin).
Ein ruhiges Mietverhältnis wird gewünscht. Nichtraucher bevorzugt.
Die Vermietung erfolgt langfristig. Eine positive Schufa-Auskunft sowie geregeltes Einkommen werden vorausgesetzt.
Besichtigungstermine sind nach Absprache möglich.
Makleranfragen nicht erwünscht. Nach § 7 UWG sind unaufgeforderte Kontaktaufnahmen durch Makler ohne ausdrückliche Einwilligung des Empfängers verboten!
ohne-makler (OM) ist weder Anbieter noch Vermittler der Immobilie. OM betreibt eine Plattform für Immobilieneigentümer, die unter anderem die gleichzeitige Veröffentlichung einzelner Inserate auf mehreren Immobilienportalen ermöglicht. Die Inhalte dieser Inserate werden ausschließlich von Dritten verantwortet. Für die Richtigkeit, Vollständigkeit oder Rechtmäßigkeit der Angaben übernimmt OM keine Haftung. Hinweise auf mögliche Rechtsverstöße können jederzeit gemeldet werden und werden nach Prüfung umgehend bearbeitet.
Energieträger: Gas
Die Wohnung ist ab dem 15. März verfügbar.
Besichtigungen sind nach Vereinbarung möglich.
Bitte senden Sie bei Interesse eine kurze Vorstellung Ihrer Person (Anzahl der einziehenden Personen, Berufstätigkeit, gewünschter Einzugstermin).
Ein ruhiges Mietverhältnis wird gewünscht. Nichtraucher bevorzugt.
Die Vermietung erfolgt langfristig. Eine positive Schufa-Auskunft sowie geregeltes Einkommen werden vorausgesetzt.
Besichtigungstermine sind nach Absprache möglich.
Makleranfragen nicht erwünscht. Nach § 7 UWG sind unaufgeforderte Kontaktaufnahmen durch Makler ohne ausdrückliche Einwilligung des Empfängers verboten!
ohne-makler (OM) ist weder Anbieter noch Vermittler der Immobilie. OM betreibt eine Plattform für Immobilieneigentümer, die unter anderem die gleichzeitige Veröffentlichung einzelner Inserate auf mehreren Immobilienportalen ermöglicht. Die Inhalte dieser Inserate werden ausschließlich von Dritten verantwortet. Für die Richtigkeit, Vollständigkeit oder Rechtmäßigkeit der Angaben übernimmt OM keine Haftung. Hinweise auf mögliche Rechtsverstöße können jederzeit gemeldet werden und werden nach Prüfung umgehend bearbeitet.
Karte wird geladen...
Objektstandort
39112 Magdeburg
- Sachsen-Anhalt
Lage & Infrastruktur
Objektstandort
39112 Magdeburg
- Sachsen-Anhalt
Die Wohnung befindet sich in
Magdeburg – Stadtteil Sudenburg.
Sudenburg ist ein gewachsener, beliebter Wohnstandort mit sehr guter Infrastruktur:
- Einkaufsmöglichkeiten fußläufig erreichbar
- Straßenbahn- und Busanbindung in unmittelbarer Nähe
- Schulen und Kindergärten im Umfeld
- Innenstadt in wenigen Minuten erreichbar
Infrastruktur (im Umkreis von 5 km):
Apotheke, Lebensmittel-Discount, Allgemeinmediziner, Kindergarten, Grundschule, Hauptschule, Realschule, Gymnasium, Gesamtschule, Öffentliche Verkehrsmittel
Magdeburg – Stadtteil Sudenburg.
Sudenburg ist ein gewachsener, beliebter Wohnstandort mit sehr guter Infrastruktur:
- Einkaufsmöglichkeiten fußläufig erreichbar
- Straßenbahn- und Busanbindung in unmittelbarer Nähe
- Schulen und Kindergärten im Umfeld
- Innenstadt in wenigen Minuten erreichbar
Infrastruktur (im Umkreis von 5 km):
Apotheke, Lebensmittel-Discount, Allgemeinmediziner, Kindergarten, Grundschule, Hauptschule, Realschule, Gymnasium, Gesamtschule, Öffentliche Verkehrsmittel