Black Forest Villa - available in a few days after reniovation!

75365 Calw
2.700 € Kaltmiete
11,25 € Preis/m² ca.
Wohnfläche
240 m²
Zimmer
6,5
Einbauküche
Fahrstuhl

Mietpreis & Nebenkosten

Kaltmiete2.700 €
Nebenkosten Keine Angabe
Kaution 3 MM

Wohnfläche, Grundstück & Bausubstanz

Wohnfläche240 m²
Grundstücksfläche1.348 m²
Zimmer6,5
Verfügbar ab Keine Angabe

Beschreibung der Immobilie

Black Forest Villa - Calw
The private elevator takes you to your spacious house in an exposed panoramic location with a wonderfull yard.

* Approx. 240 m² of living space and several other usable/storage areas
* approx. 1348 m² plot
* 6.5 rooms (up to 5 bedrooms)
* various terraces and balconies
* representative living and dining room with an open fire place and a wonderful view over the city and into the Black Forest
* build in kitchen with modern appliances and second pantry kitchen in the upper floor
* Masterbedroom with dressing room and en-suite bathroom
* 2 full baths and guest toilet
* open fireplace
* Sauna
* private elevator to the house
* spacious carport for 2 cars
* Energy information 1980, consumptioncertificate, 84 kWh / m²xa, class C, oil.
* Pet friendly
* To be mentioned the Inlaw unit in the house with separate access is rented out for long-term.
* Internet - DSL up to 250 Mbit available

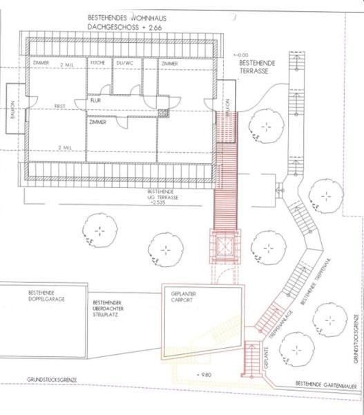
Floor plan:

Ground floor - entrance area, open living and dining room with access to the balcony, well-equipped build in kitchen with separate terrace access, guest toilet, bedroom with separate dressing room and en-suite bathroom, further bedroom or study.

Upper floor - 3 bedrooms, bathroom, pantry kitchen, 2 balconies.

Above - large storage space via attic stairs.

Basement - sauna, with shower and space for the washer and dryer, technical room, oil tank room, small wine cellar.

Street level - double garage, carport with access to the elevator and outside stairs

Very nice, sunny and quiet location with a wonderful view over the entire city and the Black Forest. Wonderfully landscaped garden, BBQ terrace and lots of nature.

Calw is about 1000 years old and a very typical pittoresque german town with a market place, lots of little shops, restaurants, beergarden along the river Nagold as well as modern supermarkets, the hospital, the train station …
A place that makes you feel at home!

Cold rent EUR 2700 + oil and water (about EUR 465) + electricity and internet

2 months cold rent deposit



Contact
Tel. 0160 7988336
Info@Immopointeurope.de



Distances
Panzerkaserne 32 km - 19 miles - 35 minutes
Patch Barracks 35 kms - 22 miles - 30 minutes
kelley Barracks 45 km - 28 miles - 40 minutes
S-Bahn in town and US School Bus Zone in Weil der Stadt 15 minutes to drive

Ausstattungsmerkmale

KücheEinbauküche
Bad (Ausstattung)Dusche, Wanne, Fenster
Fahrstuhl

Energie

EnergieausweistypVerbrauch
Energieverbrauchkennwert84 kWh/(m²*a)
Heizungsart Zentralheizung

Karte wird geladen...
75365 Calw

Sonstige Informationen

Black Forest Villa - In Calwer Höhenlage

Sehr großzügiges Haus in exponierter Panoramalage mit wunderbarem Grundstück.

* ca 240 m² Wohnflächen und etliche weitere Nutzflächen
* ca. 1348 m² Grundstück
* 6,5 Zimmer
* verschiedene Terrassen und Balkone
* repräsentatives Wohn- und Esszimmer mit herrlicher Aussicht über die Stadt und in die Ferne
* Einbauküche mit modernen Geräten
* Schlafzimmer mit Ankleideraum und Ensuite Badezimmer
* 2 Vollbäder und Gäste WC
* offener Kamin
* Sauna
* privater Aufzug zum Haus
* geräumiger Carport
* Energieangaben 1980, Verbrauchsausweis, 84 kWh/m²xa, Klasse C, Öl.
* Haustiere auf Anfrage
* Besonderheit, die ELW im Haus mit sep. Zugang ist langfristig vermietet.
* DSL bis 250 MBit verfügbar

Aufteilung:

EG - Eingangsbereich, offenes Wohn- und Esszimmer mit Zugang zum Balkon, gut ausgesattete Einbauküche mit sep. Terrassenzugang, Gäste WC, Schlafzimmer mit sep. Ankleideraum und Ensuite Badezimmer, weiteres Schlafzimmer oder Arbeitszimmer.

OG - 3 Schlafzimmer, Badezimmer, Pantryküche, 2 Balkone.

Darüber - durchgängiger sehr großer Stauraum über Bodentreppe.

UG - Sauna, mit Dusche und Platz für die Waschmaschine und den Trockner, Technikraum, Öltankraum, kleiner Weinkeller.

Straßenebene - Carport mit Zugang zum Aufzug und Aussentreppe

Weiteres - sehr schöne, sonnige und ruhige Lage mit herrlichem Blick über die gesamte Stadt und in den Schwarzwald. Wunderbar angelegter Garten, BBQ Terrasse und viel Natur.

EUR 2700 + Öl und Wasser (ca. EUR 465) + Strom und Internet
An All incl. Lease (without electricity and internet) will be welcome as well.
Kaution 3 Monatskaltmieten

Kontakt
Tel. 07052 930384 und 0160 7988336
Info@Immopointeurope.de
Ansprechpartner/in: Maximilian Allgayer
07052 930384
Immopointeurope
Schillerallee 6, 75378 Bad Liebenzell
07052 930384

Weitere Angebote in Calw