Ihr Haus, Ihr Design: Neubau-Villa schlüsselfertig bis auf die Beläge.
613.991 €
Kaufpreis
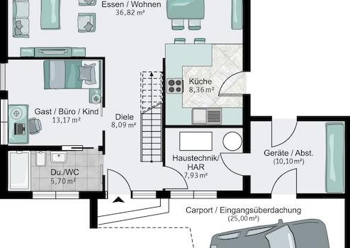
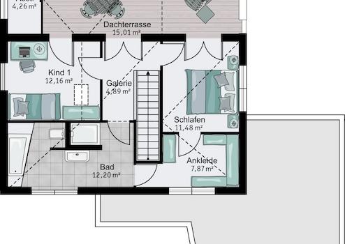
146 m²
Wohnfläche
4
Zimmer
immobilien.de Nr.: 9477850
Objektnummer: JW-Stemmler-MFH-2-09
Kaufpreis
| Kaufpreis | 613.991 € |
Wohnfläche, Grundstück & Bausubstanz
| Wohnfläche | 146 m² |
| Grundstücksfläche | 645 m² |
| Zimmer | 4 |
| Verfügbar ab | 2026 |
| Zustand | Projektiert |
Energie
| Energietyp | KfW-40 |
| Energieträger/Befeuerung | Luft-Wärme-Pumpe |
Beschreibung der Immobilie
Die Stadtvilla wird mit einer umweltfreundlichen Wärmepumpe beheizt, die nicht nur kosteneffizient ist, sondern auch zu einer nachhaltigen Lebensweise beiträgt. Das Objekt entspricht dem KFW40 Standard und verspricht somit energetische Effizienz sowie eine langfristige Wertbeständigkeit.
Ausstattungsmerkmale
| Anzahl der Etagen im Haus | 2 |
| Küche | Offene Küche |
| Bad | 1 |
| Bad | Dusche, Wanne, Fenster |
| Boden | Fliesen |
Das Streif City Haus wird im Standard KFW 40 PLUS ausgeführt. Innenausstattung aus dem STREIF-Programm in der Ausbaustufe FF+ inklusive Fundamentplatte.
■ Rohbau (geschlossene Gebäudehülle) mit Fenstern, Haustür1 inkl. Dacheindeckung
■ Außenfassade inkl. Außenputz, vor Ort komplett fertiggestellt
■ Komplette Blechner-/Spenglerarbeiten
■ lnnen-/Außenwände wärme- und schallgedämmt und mit Rigidur Gipsfaserplatten geschlossen
■ Geschosstreppe (außer Bungalow)
■ Decken wärme- und schallgedämmt und mit Gipskartonbau platten geschlossen
■ Elektroinstallation, einschließlich erforderlichem Zählerschrank und Inbetriebnahme
■ Heizungsanlage inkl. Inbetriebnahme
■ Innenfensterbänke Kunststeinbänke (Gussmarmorbänke) inkl. Einbau
■ Estrich
■ Sanitärräume mit Wand- und Bodenfliesen
■ Sanitärräume mit Sanitärobjekten
■ 6,23 kWP Photovoltaikanlage und 7,7 kWh Batteriespeicher
Die Innentüren sowie Wand-, Decken- und Bodenbeläge der übrigen Räume sind Eigenleistungen des Bauherren.
STREIF Frischluft-Wärmepumpen-Technologie - inklusive
- Heizen mit frischer Außenluft
- Kein Gasanschluss, kein Öl- oder Pelletlagerraum
- Keine Heizkörper
- Wärmetauscher mit bis zu 85% Wärmerückgewinnung
Die dargestellten Bilder können Sonderausstattungen beinhalten, die nicht im Preis enthalten sind!
zzgl. Ortüblicher Baunebenkosten
Selbstverständlich können wir Ihr Haus auch schlüsselfertig / bezugsfertig errichten.
■ Bodenbeläge, Sockel leisten verlegt
■ Maler- und Tapezierarbeiten
■ Innentüren inkl. Einbau
■ Rohbau (geschlossene Gebäudehülle) mit Fenstern, Haustür1 inkl. Dacheindeckung
■ Außenfassade inkl. Außenputz, vor Ort komplett fertiggestellt
■ Komplette Blechner-/Spenglerarbeiten
■ lnnen-/Außenwände wärme- und schallgedämmt und mit Rigidur Gipsfaserplatten geschlossen
■ Geschosstreppe (außer Bungalow)
■ Decken wärme- und schallgedämmt und mit Gipskartonbau platten geschlossen
■ Elektroinstallation, einschließlich erforderlichem Zählerschrank und Inbetriebnahme
■ Heizungsanlage inkl. Inbetriebnahme
■ Innenfensterbänke Kunststeinbänke (Gussmarmorbänke) inkl. Einbau
■ Estrich
■ Sanitärräume mit Wand- und Bodenfliesen
■ Sanitärräume mit Sanitärobjekten
■ 6,23 kWP Photovoltaikanlage und 7,7 kWh Batteriespeicher
Die Innentüren sowie Wand-, Decken- und Bodenbeläge der übrigen Räume sind Eigenleistungen des Bauherren.
STREIF Frischluft-Wärmepumpen-Technologie - inklusive
- Heizen mit frischer Außenluft
- Kein Gasanschluss, kein Öl- oder Pelletlagerraum
- Keine Heizkörper
- Wärmetauscher mit bis zu 85% Wärmerückgewinnung
Die dargestellten Bilder können Sonderausstattungen beinhalten, die nicht im Preis enthalten sind!
zzgl. Ortüblicher Baunebenkosten
Selbstverständlich können wir Ihr Haus auch schlüsselfertig / bezugsfertig errichten.
■ Bodenbeläge, Sockel leisten verlegt
■ Maler- und Tapezierarbeiten
■ Innentüren inkl. Einbau
Sonstige Informationen
Ein Haus auf dem Papier ist gut - es live zu erleben ist besser.
Auch wenn dieses Haus noch nicht real ist, können Sie schon heute erleben, wie es sich anfühlen könnte:
In unserem STREIF-Musterhaus in Mülheim-Kärlich spüren Sie Raumgefühl, Qualität und Wohnkomfort - ganz nah und in Originalgröße.
Vereinbaren Sie einfach einen persönlichen Termin und lassen Sie sich von Grundrissideen, Ausstattung und unseren Möglichkeiten begeistern.
Gemeinsam finden wir den Weg zu Ihrem ganz individuellen Zuhause.
📍 Musterhausstraße 144, 56218 Mülheim-Kärlich
🕚 Mi.-So. 11:00-17:00 Uhr oder nach Vereinbarung
📞 0171 222 52 55
Auch wenn dieses Haus noch nicht real ist, können Sie schon heute erleben, wie es sich anfühlen könnte:
In unserem STREIF-Musterhaus in Mülheim-Kärlich spüren Sie Raumgefühl, Qualität und Wohnkomfort - ganz nah und in Originalgröße.
Vereinbaren Sie einfach einen persönlichen Termin und lassen Sie sich von Grundrissideen, Ausstattung und unseren Möglichkeiten begeistern.
Gemeinsam finden wir den Weg zu Ihrem ganz individuellen Zuhause.
📍 Musterhausstraße 144, 56218 Mülheim-Kärlich
🕚 Mi.-So. 11:00-17:00 Uhr oder nach Vereinbarung
📞 0171 222 52 55
Karte wird geladen...
Objektstandort
57638 Neitersen
Kontaktanfrage senden
Über den Anbieter
STREIF Haus GmbH
Josef-Streif-Straße 1
54595 Weinsheim
Kontakt
| Telefon | +49 (0) 65 51.12-00 |
| Mobil | +49 171 2225255 |
| Website | www.streif.de |
Ansprechpartner/in
Herr Markus Stemmler