Einfamilienhaus in Berlin-Karlshorst
650.000 €
Kaufpreis
95 m²
Wohnfläche
3
Zimmer
immobilien.de Nr.: 9477623
Objektnummer: 431192
Kaufpreis
| Kaufpreis | 650.000 € |
| Maklerprovision | keine Provision, courtagefrei |
Wohnfläche, Grundstück & Bausubstanz
| Wohnfläche | 95 m² |
| Grundstücksfläche | 492 m² |
| Zimmer | 3 |
| Baujahr | 1936 |
| Verfügbar ab | nach Absprache |
Energie
| Energieausweistyp | Bedarfsausweis |
| Energieeffizienzklasse | E |
| Endenergiebedarf | 153 |
| Heizungsart | Fußbodenheizung |
| Energieträger/Befeuerung | Gas |
Beschreibung der Immobilie
Zum Verkauf steht ein freistehendes Einfamilienhaus in massiver Bauweise aus dem Jahr 1936 auf einem ca. 492 m² großen Grundstück. Die Immobilie befindet sich im Stadtteil Karlshorst und wurde in den Jahren 2022–2023 umfassend saniert und modernisiert. Das Haus bietet ca. 95 m² Wohnfläche, verteilt auf zwei Etagen, sowie einen teilunterkellerten Bereich. Der Verkauf erfolgt provisionsfrei.
Allgemeine Angaben
Objektart: Einfamilienhaus
Lage: Berlin, Karlshorst
Baujahr: 1936
Bauweise: Massive Bauweise
Grundstücksgröße: ca. 492 m²
Wohnfläche: ca. 95 m², anbaufähig.
Zimmer: 3
Etagen: 2
Unterkellerung: teilweise unterkellert
Dachform: Mansardendach (obere Etage)
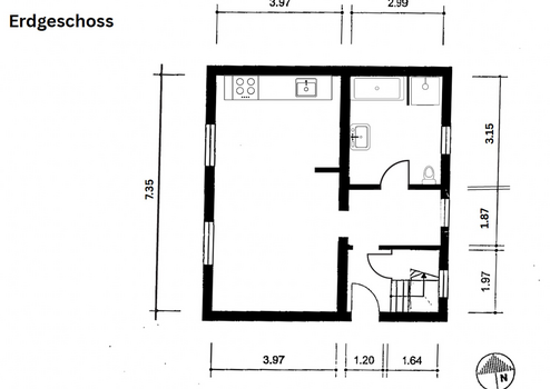
Raumaufteilung im Erdgeschoss:
- Wohnküche
- Geräumiges Badezimmer
- Flur
Raumaufteilung im Obergeschoss:
- Schlafzimmer
- Kinderzimmer
- Zusätzliches Gästebad
Ausstattung und Modernisierung (2022–2023)
Die Immobilie wurde in den letzten Jahren grundlegend modernisiert:
- Erneuerung sämtlicher Wasser- und Abwasserleitungen
- Komplette Erneuerung der Elektrik inklusive Sicherungskasten
- Verlegung von Datenkabeln im gesamten Haus
- Glasfaseranschluss vorhanden
- Neue Gas-Heizungsanlage (Therme im Keller)
- Fußbodenheizung im gesamten Haus (mit der Möglichkeit zur Erweiterung für einen möglichen Anbau)
- Alle Wände neu verputzt und mit atmungsaktiver Lehmfarbe gestrichen
- Zwischenböden zwischen Erd- und Obergeschoss vollständig erneuert
- Dach komplett neu gedeckt und gedämmt
- Einbau neuer Dachfenster im Obergeschoss
Sanitärausstattung:
- Hauptbad im Erdgeschoss mit Badewanne und Dusche, geflieste Wände
- Gästebad im Obergeschoss
Bodenbeläge:
- Küche: Fliesen
- Wohnzimmer: Laminat
- Kinderzimmer: Laminat
- Schlafzimmer: Teppichboden
- Flur: Laminat
- Bäder: Fliesen
Außenbereich
- Neuer Zaun zur Straße (2023, Fundament, gemauerte Pfeiler und Zaunfelder)
- Fundament und Vorbereitungsarbeiten für den Bau einer Garage bereits vorhanden
Allgemeine Angaben
Objektart: Einfamilienhaus
Lage: Berlin, Karlshorst
Baujahr: 1936
Bauweise: Massive Bauweise
Grundstücksgröße: ca. 492 m²
Wohnfläche: ca. 95 m², anbaufähig.
Zimmer: 3
Etagen: 2
Unterkellerung: teilweise unterkellert
Dachform: Mansardendach (obere Etage)
Raumaufteilung im Erdgeschoss:
- Wohnküche
- Geräumiges Badezimmer
- Flur
Raumaufteilung im Obergeschoss:
- Schlafzimmer
- Kinderzimmer
- Zusätzliches Gästebad
Ausstattung und Modernisierung (2022–2023)
Die Immobilie wurde in den letzten Jahren grundlegend modernisiert:
- Erneuerung sämtlicher Wasser- und Abwasserleitungen
- Komplette Erneuerung der Elektrik inklusive Sicherungskasten
- Verlegung von Datenkabeln im gesamten Haus
- Glasfaseranschluss vorhanden
- Neue Gas-Heizungsanlage (Therme im Keller)
- Fußbodenheizung im gesamten Haus (mit der Möglichkeit zur Erweiterung für einen möglichen Anbau)
- Alle Wände neu verputzt und mit atmungsaktiver Lehmfarbe gestrichen
- Zwischenböden zwischen Erd- und Obergeschoss vollständig erneuert
- Dach komplett neu gedeckt und gedämmt
- Einbau neuer Dachfenster im Obergeschoss
Sanitärausstattung:
- Hauptbad im Erdgeschoss mit Badewanne und Dusche, geflieste Wände
- Gästebad im Obergeschoss
Bodenbeläge:
- Küche: Fliesen
- Wohnzimmer: Laminat
- Kinderzimmer: Laminat
- Schlafzimmer: Teppichboden
- Flur: Laminat
- Bäder: Fliesen
Außenbereich
- Neuer Zaun zur Straße (2023, Fundament, gemauerte Pfeiler und Zaunfelder)
- Fundament und Vorbereitungsarbeiten für den Bau einer Garage bereits vorhanden
Ausstattungsmerkmale
| Anzahl der Etagen im Haus | 2 |
| Bad | 1 |
| Boden | Fliesen, Teppich, Laminat |
| Garten | |
| Keller |
Garten, Keller, Gäste-WC, Laminat, Teppichboden, Fliesen
Sonstige Informationen
Heizungsart: Fußbodenheizung
Energieträger: Gas
Makleranfragen nicht erwünscht. Nach § 7 UWG sind unaufgeforderte Kontaktaufnahmen durch Makler ohne ausdrückliche Einwilligung des Empfängers verboten!
ohne-makler (OM) ist weder Anbieter noch Vermittler der Immobilie. OM betreibt eine Plattform für Immobilieneigentümer, die unter anderem die gleichzeitige Veröffentlichung einzelner Inserate auf mehreren Immobilienportalen ermöglicht. Die Inhalte dieser Inserate werden ausschließlich von Dritten verantwortet. Für die Richtigkeit, Vollständigkeit oder Rechtmäßigkeit der Angaben übernimmt OM keine Haftung. Hinweise auf mögliche Rechtsverstöße können jederzeit gemeldet werden und werden nach Prüfung umgehend bearbeitet.
Energieträger: Gas
Makleranfragen nicht erwünscht. Nach § 7 UWG sind unaufgeforderte Kontaktaufnahmen durch Makler ohne ausdrückliche Einwilligung des Empfängers verboten!
ohne-makler (OM) ist weder Anbieter noch Vermittler der Immobilie. OM betreibt eine Plattform für Immobilieneigentümer, die unter anderem die gleichzeitige Veröffentlichung einzelner Inserate auf mehreren Immobilienportalen ermöglicht. Die Inhalte dieser Inserate werden ausschließlich von Dritten verantwortet. Für die Richtigkeit, Vollständigkeit oder Rechtmäßigkeit der Angaben übernimmt OM keine Haftung. Hinweise auf mögliche Rechtsverstöße können jederzeit gemeldet werden und werden nach Prüfung umgehend bearbeitet.
Karte wird geladen...
Objektstandort
10318 Berlin
- Berlin
Lage & Infrastruktur
Objektstandort
10318 Berlin
- Berlin
Karlshorst, ein charmanter Teil von Lichtenberg, Berlin, bietet eine angenehme Mischung aus Ruhe und urbanem Leben. Die Lage zeichnet sich aus durch:
- Familienfreundliches Wohnumfeld mit hohem Freizeit- und Erholungswert
- Ruhige und sichere Wohnlage
- Staatliche deutsch-russische Europaschule in der näheren Umgebung
- Museum Karlshorst fußläufig erreichbar
- Zahlreiche Einkaufsmöglichkeiten für den täglichen Bedarf im Umfeld
- Bushaltestelle in fußläufiger Entfernung
- S-Bahnhof Karlshorst und U-Bahnhof Tierpark in wenigen Minuten mit dem Bus erreichbar
- Mehrere Spielplätze in der näheren Umgebung
- Naturschutzgebiet Biesenhorster Sand fußläufig erreichbar
- Tierpark Berlin fußläufig erreichbar
Infrastruktur (im Umkreis von 5 km):
Apotheke, Lebensmittel-Discount, Allgemeinmediziner, Kindergarten, Grundschule, Realschule, Gymnasium, Gesamtschule, Öffentliche Verkehrsmittel
- Familienfreundliches Wohnumfeld mit hohem Freizeit- und Erholungswert
- Ruhige und sichere Wohnlage
- Staatliche deutsch-russische Europaschule in der näheren Umgebung
- Museum Karlshorst fußläufig erreichbar
- Zahlreiche Einkaufsmöglichkeiten für den täglichen Bedarf im Umfeld
- Bushaltestelle in fußläufiger Entfernung
- S-Bahnhof Karlshorst und U-Bahnhof Tierpark in wenigen Minuten mit dem Bus erreichbar
- Mehrere Spielplätze in der näheren Umgebung
- Naturschutzgebiet Biesenhorster Sand fußläufig erreichbar
- Tierpark Berlin fußläufig erreichbar
Infrastruktur (im Umkreis von 5 km):
Apotheke, Lebensmittel-Discount, Allgemeinmediziner, Kindergarten, Grundschule, Realschule, Gymnasium, Gesamtschule, Öffentliche Verkehrsmittel
Kontaktanfrage senden
Über den Anbieter
OM PropTech GmbH
Humboldtstraße 25a
21509 Glinde
Kontakt
| Telefon | - |
| Fax | - |
| Website | www.ohne-makler.net |
Ansprechpartner/in
Privat von Anna Günther
Weitere Angebote des Anbieters
45
Witten-Bommern: grosses Haus mit großem Grundstück zu ...
Haus
58452 Witten
Individuell ausgestattetes freistehendes Haus mit Fernblick, einem uneinsehbaren Innenhof und einem uneinsehbaren Grundstück mit einem großen Garten! Das Mietobjekt ist nur etwas für Gartenfreunde! Details werden nach ...
2.000 €
Kaltmiete (netto)
250 m²
Wohnfläche
8
Zimmer
12
2Raumwohnung mit Wohnküche
Wohnung
58452 Witten
Diese Wohnung wird nur an maximal zwei Personen über 25 Jahren, die arbeiten, vermietet. Voraussetzung für einen Mietvertrag ist Berufstätig und Deutschsprachigkeit. Besichtigungen können nur Vormittags angeboten ...
500 €
Kaltmiete (netto)
65 m²
Wohnfläche
2
Zimmer
11
Zentrale, große 3 ZKBB, 2 Schlafzimmer
Wohnung
48480 Spelle
Großzügige, helle, 3 Zimmer, Küche, Bad, Gäste WC, Kleinst-Balkon zentral in Spelle am Markelo Platz. Kellerraum. Aufzug (Barrierearm) Infrastruktur wie Schwimmbad, Einzelhandel (Netto, K&K) Schule.... Alles in wenigen ...
820 €
Kaltmiete (netto)
95 m²
Wohnfläche
3
Zimmer
8
2-Raum-Whg., Bad mit Fenster, Badewanne incl. Dusche, ...
Wohnung
02782 Seifhennersdorf
Diese helle sonnige Wohnung eignet sich auf Grund Ihrer zweckmäßigen/optimalen Raumaufteilung mit 2,0 Zimmern. Küche, Bad und Ihrer Lage idealerweise zur Nutzung für eine junge Familie oder für ältere Person/en. Zur ...
325 €
Kaltmiete (netto)
59 m²
Wohnfläche
2
Zimmer
9
WG: Liebevoll eingerichtetes, ruhiges WG-Zimmer in ...
Wohnung
80798 München
🌟 Hallo liebe Wohnungssuchende! Bei uns wird ein wundervolles Zimmer in Maxvorstadt frei! Dein zukünftiges Zuhause ist Teil einer 80 m2 großen WG, die insgesamt aus drei Schlafzimmern, einem großzügigen Bad mit Dusche ...
945 €
Kaltmiete (netto)
80 m²
Wohnfläche
1
Zimmer