Gepflegte Doppelhaushälfte mit Terrasse in ruhiger Lage von Oldenburg (26133)
940 €
Kaltmiete (netto)
73 m²
Wohnfläche
3
Zimmer
immobilien.de Nr.: 9476918
Objektnummer: 426853
Mietpreis & Nebenkosten
| Kaltmiete (netto) | 940 € |
| Nebenkosten | 90 € |
| Heizkosten enthalten | Ja |
| Kaution | 2.820 € |
Wohnfläche, Grundstück & Bausubstanz
| Wohnfläche | 73 m² |
| Grundstücksfläche | 222 m² |
| Zimmer | 3 |
| Baujahr | 2009 |
| Verfügbar ab | sofort |
| Zustand | Gepflegt |
Energie
| Energieausweistyp | Bedarfsausweis |
| Energieeffizienzklasse | B |
| Endenergiebedarf | 74 |
| Heizungsart | Zentralheizung |
| Energieträger/Befeuerung | Gas |
Beschreibung der Immobilie
Sofort Verfügbar!
Zur Vermietung steht eine gepflegte Doppelhaushälfte mit ca. 73 m² Wohnfläche in ruhiger Wohnlage von Oldenburg (26133).
Das Haus erstreckt sich über Erd- und Dachgeschoss und bietet ein angenehmes, eigenständiges Wohngefühl.
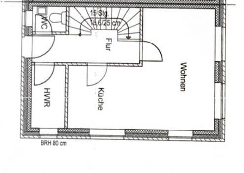
Im Erdgeschoss befinden sich der offene Wohn-Essbereich mit integrierter Küche sowie ein Gäste-WC. Von hier aus besteht Zugang zur Terrasse.
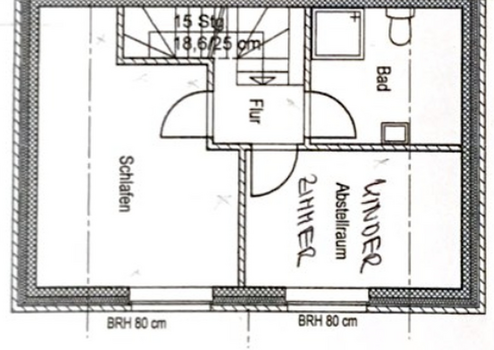
Das Dachgeschoss verfügt über ein Schlafzimmer, ein weiteres Zimmer (z. B. Arbeits- oder Gästezimmer) sowie ein Badezimmer mit Tageslicht und Dusche.
Zusätzlich steht ein Dachboden zur Verfügung, der als Abstellfläche genutzt werden kann.
Zur Vermietung steht eine gepflegte Doppelhaushälfte mit ca. 73 m² Wohnfläche in ruhiger Wohnlage von Oldenburg (26133).
Das Haus erstreckt sich über Erd- und Dachgeschoss und bietet ein angenehmes, eigenständiges Wohngefühl.
Im Erdgeschoss befinden sich der offene Wohn-Essbereich mit integrierter Küche sowie ein Gäste-WC. Von hier aus besteht Zugang zur Terrasse.
Das Dachgeschoss verfügt über ein Schlafzimmer, ein weiteres Zimmer (z. B. Arbeits- oder Gästezimmer) sowie ein Badezimmer mit Tageslicht und Dusche.
Zusätzlich steht ein Dachboden zur Verfügung, der als Abstellfläche genutzt werden kann.
Ausstattungsmerkmale
| Anzahl der Etagen im Haus | 2 |
| Küche | Einbauküche |
| Bad | 1 |
| Boden | Fliesen, Teppich |
| Balkone | 0 |
| Garten | |
| Terrassen | 1 |
Terrasse, Garten, Einbauküche, Gäste-WC, Teppichboden, Fliesen
Bemerkungen:
Die Doppelhaushälfte verfügt über eine solide und gepflegte Ausstattung. Im Erdgeschoss sind pflegeleichte Fliesen verlegt, während das Dachgeschoss mit Teppichboden ausgestattet ist. Die Räume sind hell und funktional geschnitten.
Der offene Wohn-Essbereich mit integrierter Küche bildet den zentralen Wohnbereich des Hauses. Eine Einbauküche ist vorhanden. Zusätzlich steht im Erdgeschoss ein separates Gäste-WC zur Verfügung. Das Badezimmer im Dachgeschoss ist mit Dusche und Tageslicht ausgestattet.
An den Fenstern sind Rollläden angebracht, die Sicht- und Sonnenschutz bieten. Beheizt wird das Haus über eine Gas-Zentralheizung. Zur Immobilie gehören außerdem eine Terrasse mit Sichtschutz sowie ein Stellplatz direkt am Haus.
Bemerkungen:
Die Doppelhaushälfte verfügt über eine solide und gepflegte Ausstattung. Im Erdgeschoss sind pflegeleichte Fliesen verlegt, während das Dachgeschoss mit Teppichboden ausgestattet ist. Die Räume sind hell und funktional geschnitten.
Der offene Wohn-Essbereich mit integrierter Küche bildet den zentralen Wohnbereich des Hauses. Eine Einbauküche ist vorhanden. Zusätzlich steht im Erdgeschoss ein separates Gäste-WC zur Verfügung. Das Badezimmer im Dachgeschoss ist mit Dusche und Tageslicht ausgestattet.
An den Fenstern sind Rollläden angebracht, die Sicht- und Sonnenschutz bieten. Beheizt wird das Haus über eine Gas-Zentralheizung. Zur Immobilie gehören außerdem eine Terrasse mit Sichtschutz sowie ein Stellplatz direkt am Haus.
Sonstige Informationen
Heizungsart: Zentralheizung
Energieträger: Gas
Makleranfragen nicht erwünscht. Nach § 7 UWG sind unaufgeforderte Kontaktaufnahmen durch Makler ohne ausdrückliche Einwilligung des Empfängers verboten!
ohne-makler (OM) ist weder Anbieter noch Vermittler der Immobilie. OM betreibt eine Plattform für Immobilieneigentümer, die unter anderem die gleichzeitige Veröffentlichung einzelner Inserate auf mehreren Immobilienportalen ermöglicht. Die Inhalte dieser Inserate werden ausschließlich von Dritten verantwortet. Für die Richtigkeit, Vollständigkeit oder Rechtmäßigkeit der Angaben übernimmt OM keine Haftung. Hinweise auf mögliche Rechtsverstöße können jederzeit gemeldet werden und werden nach Prüfung umgehend bearbeitet.
Energieträger: Gas
Makleranfragen nicht erwünscht. Nach § 7 UWG sind unaufgeforderte Kontaktaufnahmen durch Makler ohne ausdrückliche Einwilligung des Empfängers verboten!
ohne-makler (OM) ist weder Anbieter noch Vermittler der Immobilie. OM betreibt eine Plattform für Immobilieneigentümer, die unter anderem die gleichzeitige Veröffentlichung einzelner Inserate auf mehreren Immobilienportalen ermöglicht. Die Inhalte dieser Inserate werden ausschließlich von Dritten verantwortet. Für die Richtigkeit, Vollständigkeit oder Rechtmäßigkeit der Angaben übernimmt OM keine Haftung. Hinweise auf mögliche Rechtsverstöße können jederzeit gemeldet werden und werden nach Prüfung umgehend bearbeitet.
Karte wird geladen...
Objektstandort
26133 Oldenburg
- Niedersachsen
Lage & Infrastruktur
Objektstandort
26133 Oldenburg
- Niedersachsen
Die Doppelhaushälfte befindet sich in einem ruhigen Wohngebiet im Oldenburger Stadtteil Kreyenbrück (PLZ 26133). Die Umgebung ist geprägt von Ein- und Doppelhaushälften sowie gepflegter Wohnbebauung und bietet ein angenehmes, gewachsenes Wohnumfeld.
Einkaufsmöglichkeiten für den täglichen Bedarf, Supermärkte, Bäckereien, Apotheken sowie Ärzte befinden sich in kurzer Entfernung. Schulen, Kindergärten sowie Sport- und Freizeiteinrichtungen sind ebenfalls gut erreichbar. Mehrere Buslinien sorgen für eine gute Anbindung an die Oldenburger Innenstadt und andere Stadtteile.
Das Klinikum Oldenburg ist von hier aus in wenigen Minuten erreichbar und macht die Lage besonders attraktiv für Beschäftigte im medizinischen Bereich. Die Kombination aus ruhigem Wohnen, städtischer Infrastruktur und guter Erreichbarkeit bietet eine hohe Wohnqualität.
Infrastruktur (im Umkreis von 5 km):
Apotheke, Lebensmittel-Discount, Allgemeinmediziner, Kindergarten, Grundschule, Hauptschule, Realschule, Gesamtschule, Öffentliche Verkehrsmittel
Einkaufsmöglichkeiten für den täglichen Bedarf, Supermärkte, Bäckereien, Apotheken sowie Ärzte befinden sich in kurzer Entfernung. Schulen, Kindergärten sowie Sport- und Freizeiteinrichtungen sind ebenfalls gut erreichbar. Mehrere Buslinien sorgen für eine gute Anbindung an die Oldenburger Innenstadt und andere Stadtteile.
Das Klinikum Oldenburg ist von hier aus in wenigen Minuten erreichbar und macht die Lage besonders attraktiv für Beschäftigte im medizinischen Bereich. Die Kombination aus ruhigem Wohnen, städtischer Infrastruktur und guter Erreichbarkeit bietet eine hohe Wohnqualität.
Infrastruktur (im Umkreis von 5 km):
Apotheke, Lebensmittel-Discount, Allgemeinmediziner, Kindergarten, Grundschule, Hauptschule, Realschule, Gesamtschule, Öffentliche Verkehrsmittel