Großes Ein-/Zweifamilienhaus in Traumlage – viel Platz, viele Möglichkeiten, kein Makler!
440.000 €
Kaufpreis
165 m²
Wohnfläche
8
Zimmer
immobilien.de Nr.: 9476525
Objektnummer: 429037
Kaufpreis
| Kaufpreis | 440.000 € |
| Maklerprovision | keine Provision, courtagefrei |
Wohnfläche, Grundstück & Bausubstanz
| Wohnfläche | 165 m² |
| Grundstücksfläche | 650 m² |
| Zimmer | 8 |
| Baujahr | 1961 |
| Verfügbar ab | sofort |
| Zustand | Gepflegt |
Energie
| Energieausweistyp | Bedarfsausweis |
| Energieeffizienzklasse | G |
| Endenergiebedarf | 219 |
| Energieträger/Befeuerung | Elektro |
Beschreibung der Immobilie
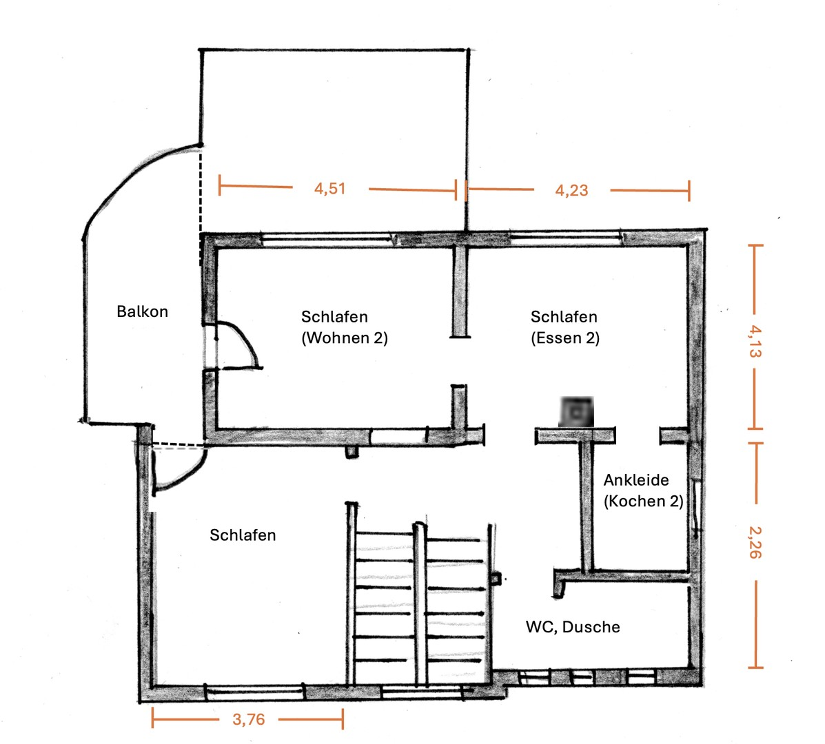
Dieses gepflegte und großzügige Einfamilienhaus bietet viel Raum zum Wohnen und Leben. Auf zwei Vollgeschossen und einem teilweise ausgebauten Dachgeschoss erwarten Sie eine funktionale Raumaufteilung und zahlreiche Nutzungsmöglichkeiten. Drei Bäder mit Toiletten, zwei Duschen und einer Badewanne sorgen für Wohnkomfort. Der liebevoll angelegte Gemüsegarten, Rasenflächen, überdachter Laube, Schuppen, Sommerküche und Werkstatt laden zum Entspannen und Werkeln ein. Ein gefliester Vorratskeller mit Tageslicht, ein Schuppen, eine Waschküche sowie eine große Garage erweitern das Platzangebot. Das Dachgeschoss ist weiter ausbaufähig – ideal für zusätzliche Wohn- oder Arbeitsräume. Ein Kaminofen, eine Terrazzotreppe, Parkett-, Kork- und Fliesenböden sowie eine Einbauküche geben dem Haus eine besondere Wohnatmosphäre.
Ausstattungsmerkmale
| Anzahl der Etagen im Haus | 2 |
| Küche | Einbauküche |
| Bad | 3 |
| Bad | Dusche, Wanne |
| Boden | Fliesen, Teppich, Parkett |
| Balkone | 2 |
| Garten | |
| Terrassen | 1 |
| Garage/Stellplätze | 1 |
| Keller |
Balkon, Terrasse, Wintergarten, Garten, Keller, Dachterrasse, Vollbad, Duschbad, Einbauküche, Gäste-WC, Kamin, Parkett, Teppichboden, Fliesen, Sonstiges (s. Text)
Bemerkungen:
PV-Anlage
Bemerkungen:
PV-Anlage
Sonstige Informationen
Heizungsart: Sonstiges (s. Text)
Energieträger: Strom
Pv-Anlage
Makleranfragen nicht erwünscht. Nach § 7 UWG sind unaufgeforderte Kontaktaufnahmen durch Makler ohne ausdrückliche Einwilligung des Empfängers verboten!
ohne-makler (OM) ist weder Anbieter noch Vermittler der Immobilie. OM betreibt eine Plattform für Immobilieneigentümer, die unter anderem die gleichzeitige Veröffentlichung einzelner Inserate auf mehreren Immobilienportalen ermöglicht. Die Inhalte dieser Inserate werden ausschließlich von Dritten verantwortet. Für die Richtigkeit, Vollständigkeit oder Rechtmäßigkeit der Angaben übernimmt OM keine Haftung. Hinweise auf mögliche Rechtsverstöße können jederzeit gemeldet werden und werden nach Prüfung umgehend bearbeitet.
Energieträger: Strom
Pv-Anlage
Makleranfragen nicht erwünscht. Nach § 7 UWG sind unaufgeforderte Kontaktaufnahmen durch Makler ohne ausdrückliche Einwilligung des Empfängers verboten!
ohne-makler (OM) ist weder Anbieter noch Vermittler der Immobilie. OM betreibt eine Plattform für Immobilieneigentümer, die unter anderem die gleichzeitige Veröffentlichung einzelner Inserate auf mehreren Immobilienportalen ermöglicht. Die Inhalte dieser Inserate werden ausschließlich von Dritten verantwortet. Für die Richtigkeit, Vollständigkeit oder Rechtmäßigkeit der Angaben übernimmt OM keine Haftung. Hinweise auf mögliche Rechtsverstöße können jederzeit gemeldet werden und werden nach Prüfung umgehend bearbeitet.
Karte wird geladen...
Objektstandort
74889 Sinsheim-Eschelbach
- Baden-Württemberg
Lage & Infrastruktur
Objektstandort
74889 Sinsheim-Eschelbach
- Baden-Württemberg
Das Haus befindet sich in ruhiger, sonniger Lage im Sinsheimer Stadtteil Eschelbach. Das freistehende Anwesen liegt in einer angenehmen, gewachsenen Wohngegend mit gepflegten Einfamilienhäusern und einer freundlichen Nachbarschaft. Hier genießen Sie Ruhe und Privatsphäre, ohne auf die gute Anbindung an Sinsheim und die umliegenden Orte verzichten zu müssen. Einkaufsmöglichkeiten, Kindergarten und Grundschule sind schnell erreichbar, ebenso die Autobahnanschlussstellen in Richtung Heidelberg und Heilbronn
Infrastruktur (im Umkreis von 5 km):
Allgemeinmediziner, Kindergarten, Grundschule, Öffentliche Verkehrsmittel
Infrastruktur (im Umkreis von 5 km):
Allgemeinmediziner, Kindergarten, Grundschule, Öffentliche Verkehrsmittel