Exklusive Neubau-Doppelhaushälfte in Iserbrook – modern, energieeffizient & hochwertig
3.000 €
Kaltmiete (netto)
112 m²
Wohnfläche
4
Zimmer
immobilien.de Nr.: 9476098
Objektnummer: 430660
Mietpreis & Nebenkosten
| Kaltmiete (netto) | 3.000 € |
| Nebenkosten | 250 € |
| Heizkosten | 30 € |
| Kaution | 9.000 € |
Wohnfläche, Grundstück & Bausubstanz
| Wohnfläche | 112 m² |
| Grundstücksfläche | 180 m² |
| Zimmer | 4 |
| Baujahr | 2026 |
| Verfügbar ab | nach Absprache |
| Zustand | Erstbezug |
Energie
| Energieausweistyp | Bedarfsausweis |
| Energieeffizienzklasse | A+ |
| Endenergiebedarf | 25 |
Beschreibung der Immobilie
Willkommen in dieser stilvollen und lichtdurchfluteten Neubau-Doppelhaushälfte in begehrter Wohnlage von Iserbrook. Das architektonisch durchdachte Haus vereint zeitlose Eleganz mit modernem Wohnkomfort und überzeugt durch eine hochwertige Ausstattung sowie ein zukunftsorientiertes Energiekonzept.
Bereits beim Betreten des Erdgeschosses empfängt Sie ein großzügig gestalteter Wohn- und Essbereich mit offener Küche, der das Herzstück des Hauses bildet. Große Fensterflächen sorgen für ein helles, freundliches Ambiente und schaffen eine harmonische Verbindung zwischen Innen- und Außenbereich. Von hier aus gelangen Sie direkt auf die sonnige Terrasse, die zum Entspannen und Verweilen einlädt. Ergänzt wird das Raumangebot im Erdgeschoss durch ein stilvolles Badezimmer sowie einen großzügigen Hauswirtschaftsraum mit praktischem Stauraum.
Über eine elegante Treppe erreichen Sie das Obergeschoss, das drei großzügig geschnittene Schlafzimmer mit bodentiefen Fenstern bereithält. Diese schaffen eine angenehme Wohnatmosphäre und bieten vielfältige Nutzungsmöglichkeiten – ob als Schlaf-, Kinder- oder Arbeitszimmer. Ein modernes Badezimmer mit Dusche und Badewanne rundet das Raumangebot auf dieser Ebene perfekt ab.
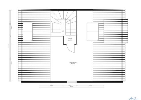
Der ausgebaute Spitzboden eröffnet zusätzliche Gestaltungsmöglichkeiten und lässt Ihrer Kreativität freien Lauf. Ob als Homeoffice, Gästezimmer, Hobbyraum oder privater Rückzugsort – hier stehen Ihnen zahlreiche Nutzungskonzepte offen.
Nachhaltigkeit & Energieeffizienz – niedrige Nebenkosten inklusive
Das Gebäude entspricht einem modernen Niedrigenergiestandard und ist mit einer leistungsstarken Photovoltaikanlage inklusive Stromspeicher sowie einer effizienten Luft-Wasser-Wärmepumpe ausgestattet. Dieses innovative Energiekonzept sorgt für dauerhaft niedrige Heiz- und Stromkosten und bietet Ihnen ein nachhaltiges, zukunftssicheres Wohnerlebnis.
Bereits beim Betreten des Erdgeschosses empfängt Sie ein großzügig gestalteter Wohn- und Essbereich mit offener Küche, der das Herzstück des Hauses bildet. Große Fensterflächen sorgen für ein helles, freundliches Ambiente und schaffen eine harmonische Verbindung zwischen Innen- und Außenbereich. Von hier aus gelangen Sie direkt auf die sonnige Terrasse, die zum Entspannen und Verweilen einlädt. Ergänzt wird das Raumangebot im Erdgeschoss durch ein stilvolles Badezimmer sowie einen großzügigen Hauswirtschaftsraum mit praktischem Stauraum.
Über eine elegante Treppe erreichen Sie das Obergeschoss, das drei großzügig geschnittene Schlafzimmer mit bodentiefen Fenstern bereithält. Diese schaffen eine angenehme Wohnatmosphäre und bieten vielfältige Nutzungsmöglichkeiten – ob als Schlaf-, Kinder- oder Arbeitszimmer. Ein modernes Badezimmer mit Dusche und Badewanne rundet das Raumangebot auf dieser Ebene perfekt ab.
Der ausgebaute Spitzboden eröffnet zusätzliche Gestaltungsmöglichkeiten und lässt Ihrer Kreativität freien Lauf. Ob als Homeoffice, Gästezimmer, Hobbyraum oder privater Rückzugsort – hier stehen Ihnen zahlreiche Nutzungskonzepte offen.
Nachhaltigkeit & Energieeffizienz – niedrige Nebenkosten inklusive
Das Gebäude entspricht einem modernen Niedrigenergiestandard und ist mit einer leistungsstarken Photovoltaikanlage inklusive Stromspeicher sowie einer effizienten Luft-Wasser-Wärmepumpe ausgestattet. Dieses innovative Energiekonzept sorgt für dauerhaft niedrige Heiz- und Stromkosten und bietet Ihnen ein nachhaltiges, zukunftssicheres Wohnerlebnis.
Ausstattungsmerkmale
| Anzahl der Etagen im Haus | 3 |
| Bad | 2 |
Sonstige Informationen
Makleranfragen nicht erwünscht. Nach § 7 UWG sind unaufgeforderte Kontaktaufnahmen durch Makler ohne ausdrückliche Einwilligung des Empfängers verboten!
ohne-makler (OM) ist weder Anbieter noch Vermittler der Immobilie. OM betreibt eine Plattform für Immobilieneigentümer, die unter anderem die gleichzeitige Veröffentlichung einzelner Inserate auf mehreren Immobilienportalen ermöglicht. Die Inhalte dieser Inserate werden ausschließlich von Dritten verantwortet. Für die Richtigkeit, Vollständigkeit oder Rechtmäßigkeit der Angaben übernimmt OM keine Haftung. Hinweise auf mögliche Rechtsverstöße können jederzeit gemeldet werden und werden nach Prüfung umgehend bearbeitet.
Karte wird geladen...
Objektstandort
22589 Hamburg
- Hamburg
Lage & Infrastruktur
Objektstandort
22589 Hamburg
- Hamburg
Ruhige Wohnlage in einem gewachsenen Stadtteil von Hamburg mit guter Anbindung an den öffentlichen Nahverkehr sowie kurzen Wegen zu Einkaufsmöglichkeiten und Grünflächen.