Erstbezug nach Renovierung - Helle 3-Raumwohnung mit Dusche und Badewanne im
390 €
Kaltmiete (netto)
74,5 m²
Wohnfläche
3
Zimmer
immobilien.de Nr.: 9476037
Objektnummer: 232393
Dateien
Mietpreis & Nebenkosten
| Kaltmiete (netto) | 390 € |
| Nebenkosten | 90 € |
| Heizkosten | 140 € |
| Kaution | 780 € |
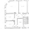
Wohnfläche, Grundstück & Bausubstanz
| Wohnfläche | 74,5 m² |
| Zimmer | 3 |
| Baujahr | 1918 |
| Verfügbar ab | sofort |
| Zustand | Teil Vollrenoviert |
Energie
| Energieausweistyp | Verbrauch |
| Energieverbrauchkennwert | 162 kWh/(m²*a) |
| Heizungsart | Zentralheizung |
| Energieträger/Befeuerung | Gas |
Beschreibung der Immobilie
Zur Anmietung steht eine helle 3-Raumwohnung inkl. Tageslichtbad mit Dusche und Badewanne bereit. Das Objekt liegt in der Jacobstraße an der Kreuzung Julius-Seifert-Straße, da beide keine Hauptverkehrsstraßen sind ist es relativ ruhig gelegen. Die Wohnung ist gut geschnitten, bietet sich für Paare oder WGs an und kann sofort bezogen werden.
Ausstattungsmerkmale
| Inserat befindet sich im Stockwerk | 2 |
| Bad | 1 |
| Boden | Fliesen, Laminat |
Laminat, Fliesen
Sonstige Informationen
Heizungsart: Zentralheizung
Energieträger: Gas
RIRE Assets Green GmbH
Bötzowstraße 26
10407 Berlin
Handelsregister: HRB223131 B
Registergericht: Amtsgericht Charlottenburg
Vertreten durch:
Benedikt Richter
Makleranfragen nicht erwünscht. Nach § 7 UWG sind unaufgeforderte Kontaktaufnahmen durch Makler ohne ausdrückliche Einwilligung des Empfängers verboten!
ohne-makler (OM) ist weder Anbieter noch Vermittler der Immobilie. OM betreibt eine Plattform für Immobilieneigentümer, die unter anderem die gleichzeitige Veröffentlichung einzelner Inserate auf mehreren Immobilienportalen ermöglicht. Die Inhalte dieser Inserate werden ausschließlich von Dritten verantwortet. Für die Richtigkeit, Vollständigkeit oder Rechtmäßigkeit der Angaben übernimmt OM keine Haftung. Hinweise auf mögliche Rechtsverstöße können jederzeit gemeldet werden und werden nach Prüfung umgehend bearbeitet.
Energieträger: Gas
RIRE Assets Green GmbH
Bötzowstraße 26
10407 Berlin
Handelsregister: HRB223131 B
Registergericht: Amtsgericht Charlottenburg
Vertreten durch:
Benedikt Richter
Makleranfragen nicht erwünscht. Nach § 7 UWG sind unaufgeforderte Kontaktaufnahmen durch Makler ohne ausdrückliche Einwilligung des Empfängers verboten!
ohne-makler (OM) ist weder Anbieter noch Vermittler der Immobilie. OM betreibt eine Plattform für Immobilieneigentümer, die unter anderem die gleichzeitige Veröffentlichung einzelner Inserate auf mehreren Immobilienportalen ermöglicht. Die Inhalte dieser Inserate werden ausschließlich von Dritten verantwortet. Für die Richtigkeit, Vollständigkeit oder Rechtmäßigkeit der Angaben übernimmt OM keine Haftung. Hinweise auf mögliche Rechtsverstöße können jederzeit gemeldet werden und werden nach Prüfung umgehend bearbeitet.
Karte wird geladen...
Objektstandort
Jacobstraße 17
08060 Zwickau
- Sachsen
Lage & Infrastruktur
Objektstandort
Jacobstraße 17
08060 Zwickau
- Sachsen
Im Westen Zwickaus liegt der Stadtteil Marienthal. Gelegen am Marienthaler Bach, der im Norden in die Mulde mündet. Geschäfte des täglichen Bedarfs befinden sich in unmittelbarer Nähe und öffentlicher Nahverkehr ist in Marienthal ausreichend vorhanden.
Buslinien:
• Linie 18: Neumarkt – Königswalde – Hartmannsdorf
• Linie 21: Neumarkt – Brand
• Linie 27: Städtisches Klinikum – Planitz Markt
• Nachtbuslinie A: Neumarkt – Marienthal – Olzmannstraße – Neuplanitz – Oberplanitz – Cainsdorf – Wilkau-Haßlau – Schedewitz – Innenstadt – -Neumarkt
Straßenbahnlinien:
• Linie 4: Pölbitz – Neumarkt (Bosestraße) – Georgenplatz – Städtisches Klinikum
Infrastruktur (im Umkreis von 5 km):
Apotheke, Lebensmittel-Discount, Allgemeinmediziner, Kindergarten, Grundschule, Realschule, Gymnasium, Öffentliche Verkehrsmittel
Buslinien:
• Linie 18: Neumarkt – Königswalde – Hartmannsdorf
• Linie 21: Neumarkt – Brand
• Linie 27: Städtisches Klinikum – Planitz Markt
• Nachtbuslinie A: Neumarkt – Marienthal – Olzmannstraße – Neuplanitz – Oberplanitz – Cainsdorf – Wilkau-Haßlau – Schedewitz – Innenstadt – -Neumarkt
Straßenbahnlinien:
• Linie 4: Pölbitz – Neumarkt (Bosestraße) – Georgenplatz – Städtisches Klinikum
Infrastruktur (im Umkreis von 5 km):
Apotheke, Lebensmittel-Discount, Allgemeinmediziner, Kindergarten, Grundschule, Realschule, Gymnasium, Öffentliche Verkehrsmittel