Stadtvilla (Energiesparhaus) im Grünen mit Regionalbahnanbindung; August-Strindberg Weg 7, Borkwalde
2.390 €
Kaltmiete (netto)
198 m²
Wohnfläche
5,5
Zimmer
immobilien.de Nr.: 9475780
Objektnummer: 379726
Mietpreis & Nebenkosten
| Kaltmiete (netto) | 2.390 € |
| Nebenkosten | 100 € |
| Kaution | 3.000 € |
Wohnfläche, Grundstück & Bausubstanz
| Wohnfläche | 198 m² |
| Grundstücksfläche | 560 m² |
| Zimmer | 5,5 |
| Baujahr | 2023 |
| Verfügbar ab | 01.07.2026 |
| Zustand | Neuwertig |
Energie
| Energieausweistyp | Bedarfsausweis |
| Energieeffizienzklasse | A |
| Endenergiebedarf | 44 |
| Heizungsart | Zentralheizung |
| Energieträger/Befeuerung | Gas |
Beschreibung der Immobilie
Die Villa „Kiefernblick“ befindet sich in der neuen Schwedenhaus-Siedlung um den August Strindberg Weg in Borkwalde, der bereits von vielen netten jungen Familien mit Leben erfüllt wird. Sie ist in massiver Bauweise errichtet und mit sibirischer Lärche verkleidet. Hochwertige italienische Fliesen im Naturholzlook und Fußbodenheizung im Innenbereich sorgen für eine behagliche Atmosphäre. Eine sehr großzügige nach Süden ausgerichtete Terrasse lädt zum Verweilen im Freien (unter Kiefern) ein.
Die Stadtvilla bietet Ihnen modernes Wohnen auf hohem Niveau umringt von Natur:
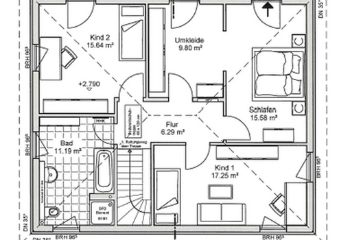
Im Erdgeschoss befindet sich eine großzügige, offene Küche im Landhausstil mit allen erforderlichen Geräten. Von hier führt ein großzügiger Zugang zum lichtdurchfluteten Wohnzimmer und der über 10m breiten Terrasse. Ein Gäste-WC mit Dusche, ein geräumiger HWR, ein Arbeits- bzw. Gästezimmer mit separatem Eingang ergänzen diese Ebene. Im Obergeschoss befinden sich drei große Schlafzimmer, eines davon mit angrenzendem Ankleidezimmer, welches auch als Kinderzimmer ausgestattet werden kann, sowie ein geräumiges Bad mit Wanne und bodengleicher Dusche. Das ausgebaute Dachgeschoss bietet zusätzlichen Stauraum oder Spielfläche und ist über eine ausklappbare Raumspartreppe begehbar.
Der große Garten bietet viel Platz für Kinder und Haustiere und hat eine eigene Zufahrt mit Tor. Die Stellplätze sind mit einer Wallbox ausgestattet. Die Villa „Kiefernblick“ eignet sich hervorragend ebenfalls für Familien oder Personen, die von Zuhause aus im eigenen Büro arbeiten aber auch nach Berlin oder Potsdam fahren, denn der Bahnhof Borkheide mit direkter Regionalanbindung nach Berlin liegt in lediglich 2,7 km Entfernung, eine Busanbindung befindet sich in unmittelbarer Nähe.
Die Stadtvilla bietet Ihnen modernes Wohnen auf hohem Niveau umringt von Natur:
Im Erdgeschoss befindet sich eine großzügige, offene Küche im Landhausstil mit allen erforderlichen Geräten. Von hier führt ein großzügiger Zugang zum lichtdurchfluteten Wohnzimmer und der über 10m breiten Terrasse. Ein Gäste-WC mit Dusche, ein geräumiger HWR, ein Arbeits- bzw. Gästezimmer mit separatem Eingang ergänzen diese Ebene. Im Obergeschoss befinden sich drei große Schlafzimmer, eines davon mit angrenzendem Ankleidezimmer, welches auch als Kinderzimmer ausgestattet werden kann, sowie ein geräumiges Bad mit Wanne und bodengleicher Dusche. Das ausgebaute Dachgeschoss bietet zusätzlichen Stauraum oder Spielfläche und ist über eine ausklappbare Raumspartreppe begehbar.
Der große Garten bietet viel Platz für Kinder und Haustiere und hat eine eigene Zufahrt mit Tor. Die Stellplätze sind mit einer Wallbox ausgestattet. Die Villa „Kiefernblick“ eignet sich hervorragend ebenfalls für Familien oder Personen, die von Zuhause aus im eigenen Büro arbeiten aber auch nach Berlin oder Potsdam fahren, denn der Bahnhof Borkheide mit direkter Regionalanbindung nach Berlin liegt in lediglich 2,7 km Entfernung, eine Busanbindung befindet sich in unmittelbarer Nähe.
Ausstattungsmerkmale
| Anzahl der Etagen im Haus | 2 |
| Küche | Einbauküche |
| Bad | 2 |
| Boden | Fliesen |
| Balkone | 0 |
| Garten | |
| Terrassen | 1 |
Terrasse, Garten, Einbauküche, Gäste-WC, Fliesen
Sonstige Informationen
Heizungsart: Zentralheizung
Energieträger: Gas
Makleranfragen nicht erwünscht. Nach § 7 UWG sind unaufgeforderte Kontaktaufnahmen durch Makler ohne ausdrückliche Einwilligung des Empfängers verboten!
ohne-makler (OM) ist weder Anbieter noch Vermittler der Immobilie. OM betreibt eine Plattform für Immobilieneigentümer, die unter anderem die gleichzeitige Veröffentlichung einzelner Inserate auf mehreren Immobilienportalen ermöglicht. Die Inhalte dieser Inserate werden ausschließlich von Dritten verantwortet. Für die Richtigkeit, Vollständigkeit oder Rechtmäßigkeit der Angaben übernimmt OM keine Haftung. Hinweise auf mögliche Rechtsverstöße können jederzeit gemeldet werden und werden nach Prüfung umgehend bearbeitet.
Energieträger: Gas
Makleranfragen nicht erwünscht. Nach § 7 UWG sind unaufgeforderte Kontaktaufnahmen durch Makler ohne ausdrückliche Einwilligung des Empfängers verboten!
ohne-makler (OM) ist weder Anbieter noch Vermittler der Immobilie. OM betreibt eine Plattform für Immobilieneigentümer, die unter anderem die gleichzeitige Veröffentlichung einzelner Inserate auf mehreren Immobilienportalen ermöglicht. Die Inhalte dieser Inserate werden ausschließlich von Dritten verantwortet. Für die Richtigkeit, Vollständigkeit oder Rechtmäßigkeit der Angaben übernimmt OM keine Haftung. Hinweise auf mögliche Rechtsverstöße können jederzeit gemeldet werden und werden nach Prüfung umgehend bearbeitet.
Karte wird geladen...
Objektstandort
14822 Borkwalde
- Brandenburg
Lage & Infrastruktur
Objektstandort
14822 Borkwalde
- Brandenburg
Borkwalde ist eine familienfreundliche, wachsende Gemeinde umgeben von Wald und Seen im Berliner Umland. Der Ort ist für seine zahlreichen, schönen Holzhäusern bekannt. Mit den vielen Spielplätzen, zwei Kitas und ausreichend Platz zum Fahrradfahren und Spazieren sowie dem Waldbad und dem Erlebnishof Klaistow mit Kletterpark und Streichelzoo fühlen sich junge Familien und Haustiere sofort wohl.
Eine Grundschule und ein weiterer Kindergarten befinden sich im benachbarten Borkheide. Dort gibt es zwei Supermärkte sowie einen Bäcker. Oberschulen sind leicht erreichbar in Brück, Beelitz, Michendorf, Treuenbrietzen und Bad Belzig.
Die gesundheitliche Versorgung ist durch eine Fachärztin für Allgemeinmedizin, eine Physiotherapeutin, eine Zahnärztin und eine Apotheke abgedeckt.
Borkwalde ist von der A 2 aus über die Abfahrt Glindow sowie der A 9 aus über die Abfahrt Beelitz zu erreichen. Von der nur 2,7 km entfernten Regionalbahnstation erreicht man Berlin-Wannsee in nur ca. 30 und Berlin Zentrum in 45 Minuten.
In Borkwalde gibt es u.a. eine aktive Kirchengemeinde, einen engagierten Feuerwehrförderverein und eine Seniorentanzgruppe.
Infrastruktur (im Umkreis von 5 km):
Apotheke, Lebensmittel-Discount, Allgemeinmediziner, Kindergarten, Grundschule, Öffentliche Verkehrsmittel
Eine Grundschule und ein weiterer Kindergarten befinden sich im benachbarten Borkheide. Dort gibt es zwei Supermärkte sowie einen Bäcker. Oberschulen sind leicht erreichbar in Brück, Beelitz, Michendorf, Treuenbrietzen und Bad Belzig.
Die gesundheitliche Versorgung ist durch eine Fachärztin für Allgemeinmedizin, eine Physiotherapeutin, eine Zahnärztin und eine Apotheke abgedeckt.
Borkwalde ist von der A 2 aus über die Abfahrt Glindow sowie der A 9 aus über die Abfahrt Beelitz zu erreichen. Von der nur 2,7 km entfernten Regionalbahnstation erreicht man Berlin-Wannsee in nur ca. 30 und Berlin Zentrum in 45 Minuten.
In Borkwalde gibt es u.a. eine aktive Kirchengemeinde, einen engagierten Feuerwehrförderverein und eine Seniorentanzgruppe.
Infrastruktur (im Umkreis von 5 km):
Apotheke, Lebensmittel-Discount, Allgemeinmediziner, Kindergarten, Grundschule, Öffentliche Verkehrsmittel