Für Eigennutzer u. Kapitalanleger - 75 m², 3 Zi, Gütersloh-Blankenhagen, EG-links mit PKW-Stellplatz
129.900 €
Kaufpreis
75 m²
Wohnfläche
10 m²
Nutzfläche
3
Zimmer
immobilien.de Nr.: 9475147
Objektnummer: 5103
Kaufpreis
| Kaufpreis | 129.900 € |
| Hausgeld | 381,5 € |
| Maklerprovision | 3,57 % inkl. gesetzl. MwSt. vom Kaufpreis fällig nach notarieller Beurkundung |
Wohnfläche, Grundstück & Bausubstanz
| Wohnfläche | 75 m² |
| Nutzfläche | 10 m² |
| Grundstücksfläche | 655 m² |
| Zimmer | 3 |
| Baujahr | 1972 |
| Verfügbar ab | keine Angabe |
| Zustand | Teil Vollsaniert |
Energie
| Energieausweistyp | Verbrauch |
| Gültig bis | 2024-06-01 |
| Baujahr (laut Energieausweis) | 1972 |
| Energieeffizienzklasse | E |
| Energieverbrauchkennwert | 149.48 kWh/(m²*a) |
| Heizungsart | Zentralheizung |
| Wesentlicher Energieträger | Oel |
| Energieträger/Befeuerung | Öl |
Beschreibung der Immobilie
Willkommen in Ihrem neuen Zuhause! Diese charmante Erdgeschoßwohnung in Gütersloh könnte schon bald Ihr neuer Lieblingsplatz werden. 1972 gebaut und umfassend saniert, bietet sie alles, was Sie für ein modernes und komfortables Leben brauchen.
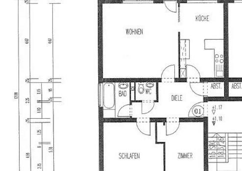
Auf 75 m² Wohnfläche finden Sie drei helle und freundliche Zimmer, einschließlich zwei Schlafzimmern und einem Badezimmer. Dank der soliden Grundrissgestaltung steht Ihnen außerdem ein Gäste-WC zur Verfügung. Von Ihrem sonnigen Balkon aus genießen Sie den Blick in den Gemeinschaftsgarten, den Sie selbstverständlich mitnutzen können.
Die Wohnung befindet sich auf einem 506 m² großen Eigentumsgrundstück. Das Haus ist unterkellert und bietet für diese Wohnung zusätzliche ca. 10 m² Nutzfläche. Die Ausstattung ist von normaler Qualität, was Ihnen die Freiheit gibt, Ihr neues Zuhause nach Ihren eigenen Vorstellungen zu gestalten.
Zur Wohnung gehört ein eigener, fest zugeordneter, PKW-Stellplatz.
Weiter gibt es einen gemeinschaftlichen Wasch- und Trockenkeller.
Dank der guten Aufteilung eignet sich die Wohnung sowohl für Kapitalanleger als auch für Eigennutzer. Derzeit wird die Wohnung für EUR 450,00 kalt vermietet, wobei die in vergleichbaren Wohnungen erzielte Miete und damit Soll-Kaltmiete bei EUR 600,00 liegt. Mit einem Hausgeld von EUR 381,50 und einer Nebenkostenvorauszahlung von EUR 369,50 bleibt alles überschaubar.
Zögern Sie nicht, sichern Sie sich diese Gelegenheit und machen Sie diese attraktive Wohnung zu Ihrem neuen Wohlfühlort oder eine lohnenden Kapitalanlage!
Auf 75 m² Wohnfläche finden Sie drei helle und freundliche Zimmer, einschließlich zwei Schlafzimmern und einem Badezimmer. Dank der soliden Grundrissgestaltung steht Ihnen außerdem ein Gäste-WC zur Verfügung. Von Ihrem sonnigen Balkon aus genießen Sie den Blick in den Gemeinschaftsgarten, den Sie selbstverständlich mitnutzen können.
Die Wohnung befindet sich auf einem 506 m² großen Eigentumsgrundstück. Das Haus ist unterkellert und bietet für diese Wohnung zusätzliche ca. 10 m² Nutzfläche. Die Ausstattung ist von normaler Qualität, was Ihnen die Freiheit gibt, Ihr neues Zuhause nach Ihren eigenen Vorstellungen zu gestalten.
Zur Wohnung gehört ein eigener, fest zugeordneter, PKW-Stellplatz.
Weiter gibt es einen gemeinschaftlichen Wasch- und Trockenkeller.
Dank der guten Aufteilung eignet sich die Wohnung sowohl für Kapitalanleger als auch für Eigennutzer. Derzeit wird die Wohnung für EUR 450,00 kalt vermietet, wobei die in vergleichbaren Wohnungen erzielte Miete und damit Soll-Kaltmiete bei EUR 600,00 liegt. Mit einem Hausgeld von EUR 381,50 und einer Nebenkostenvorauszahlung von EUR 369,50 bleibt alles überschaubar.
Zögern Sie nicht, sichern Sie sich diese Gelegenheit und machen Sie diese attraktive Wohnung zu Ihrem neuen Wohlfühlort oder eine lohnenden Kapitalanlage!
Ausstattungsmerkmale
| Bad | 1 |
| Balkone | 1 |
| Garten | |
| Keller |
+++ 506 m² Eigentumsgrundstück
+++ Baujahr 1972
+++ 75 m² Wohnfläche
+++ Erdgeschoß links
+++ 3-Zimmer, Küche, Bad, Gäste-WC
+++ Balkon / Gartennutzung
+++ PKW-Stellplatz fest zugeordnet vor der Tür
+++ ca. 10m² Kellerraum
+++ SAT-Anschluß
+++ Zentralheizung incl. Warmwasser mit Oel
+++ Kaltmiete Ist EUR 450,00 / Soll EUR 600,00
+++ NK-Vorauszahlung EUR 369,50
+++ Hausgeld EUR 381,50
+++ Baujahr 1972
+++ 75 m² Wohnfläche
+++ Erdgeschoß links
+++ 3-Zimmer, Küche, Bad, Gäste-WC
+++ Balkon / Gartennutzung
+++ PKW-Stellplatz fest zugeordnet vor der Tür
+++ ca. 10m² Kellerraum
+++ SAT-Anschluß
+++ Zentralheizung incl. Warmwasser mit Oel
+++ Kaltmiete Ist EUR 450,00 / Soll EUR 600,00
+++ NK-Vorauszahlung EUR 369,50
+++ Hausgeld EUR 381,50
Sonstige Informationen
Sie haben Interesse, Rückfragen oder möchten mehrere Informationen?
Gerne, kontaktieren Sie uns Tel.: +49 5424 308 9002 Mobil: +49 163 2310 417 Email: ankn@m-quadrat-immobilien.de
Wir bevorzugen Mailanfragen, diese werden schnell und zuverlässig bearbeitet. Hinweis: Bitte hinterlassen Sie uns den vollständigen Namen, Anschrift und Telefonnummer, damit wir Ihnen ggf. kurzfristig einen Besichtigungstermin zukommen lassen können bzw. uns schnell bei Ihnen melden können.
Adresse:
m² Immobilien Osnabrück - Gütersloh
Andreas Knöbel
Kesselstraße 1b
49196 Bad Laer
Provision: Es ist eine Provision in Höhe 3,57 % inkl. 19% MwSt. bei Abschluss verdient, fällig und zahlbar durch den Käufer bei Vertragsabschluss.
Die in diesem Exposé angegebenen Provisionssätze sind mit einer Anfrage akzeptiert und nicht verhandelbar. Alle Daten, z.B. Grundrisse, Maße, Zustand des Objektes etc. beruhen auf den Angaben des Eigentümers / Vermieters / Verwalters. Eine Gewähr für die Richtigkeit dieser Angaben kann nicht übernommen werden. Das Angebot ist freibleibend. Irrtum und Zwischenvermietung /-verkauf bleiben vorbehalten. Aus Datenschutzgründen weisen wir Sie darauf hin, dass die im Exposé enthaltenen Informationen, Kontakt- und Adressdaten nur zum Zwecke des Erwerbs (aus Eigeninteresse) zu verwenden sind. Sollten Sie die Anfrage nicht für sich oder Ihren Ehepartner eingeleitet haben, so sind Sie zur Meldung bzw. unverzüglichen Nachmeldung der entsprechenden Informationen verpflichtet. Eine unbefugte Verwendung außerhalb dieses vorgesehenen Zweckes und/oder die Weitergabe an Dritte, wird nach Erlangung der Kenntnis darüber, zur Anzeige gebracht und löst Schadensersatz- sowie Provisionsansprüche aus. Es gelten die gesetzlichen Verjährungsfristen.
Gerne, kontaktieren Sie uns Tel.: +49 5424 308 9002 Mobil: +49 163 2310 417 Email: ankn@m-quadrat-immobilien.de
Wir bevorzugen Mailanfragen, diese werden schnell und zuverlässig bearbeitet. Hinweis: Bitte hinterlassen Sie uns den vollständigen Namen, Anschrift und Telefonnummer, damit wir Ihnen ggf. kurzfristig einen Besichtigungstermin zukommen lassen können bzw. uns schnell bei Ihnen melden können.
Adresse:
m² Immobilien Osnabrück - Gütersloh
Andreas Knöbel
Kesselstraße 1b
49196 Bad Laer
Provision: Es ist eine Provision in Höhe 3,57 % inkl. 19% MwSt. bei Abschluss verdient, fällig und zahlbar durch den Käufer bei Vertragsabschluss.
Die in diesem Exposé angegebenen Provisionssätze sind mit einer Anfrage akzeptiert und nicht verhandelbar. Alle Daten, z.B. Grundrisse, Maße, Zustand des Objektes etc. beruhen auf den Angaben des Eigentümers / Vermieters / Verwalters. Eine Gewähr für die Richtigkeit dieser Angaben kann nicht übernommen werden. Das Angebot ist freibleibend. Irrtum und Zwischenvermietung /-verkauf bleiben vorbehalten. Aus Datenschutzgründen weisen wir Sie darauf hin, dass die im Exposé enthaltenen Informationen, Kontakt- und Adressdaten nur zum Zwecke des Erwerbs (aus Eigeninteresse) zu verwenden sind. Sollten Sie die Anfrage nicht für sich oder Ihren Ehepartner eingeleitet haben, so sind Sie zur Meldung bzw. unverzüglichen Nachmeldung der entsprechenden Informationen verpflichtet. Eine unbefugte Verwendung außerhalb dieses vorgesehenen Zweckes und/oder die Weitergabe an Dritte, wird nach Erlangung der Kenntnis darüber, zur Anzeige gebracht und löst Schadensersatz- sowie Provisionsansprüche aus. Es gelten die gesetzlichen Verjährungsfristen.
Karte wird geladen...
Objektstandort
33330 Gütersloh / Blankenhagen
- Nordrhein-Westfalen
Lage & Infrastruktur
Objektstandort
33330 Gütersloh / Blankenhagen
- Nordrhein-Westfalen
Der familienfreundliche Ortsteil Blankenhagen verfügt mit seinen Einkaufsmöglichkeiten, Kindergärten und der Grundschule über alle Einrichtungen des täglichen Bedarfs.
Die wirtschaftsstarke Stadt Gütersloh ist Standort vieler großer Unternehmen aus verschiedenen Branchen, wie z.B. Bertelsmann und Miele.
Das Sport- und Kulturangebot ist ausgezeichnet. Die zentrale Lage Güterslohs mitten in Ostwestfalen-Lippe biete eine gute Anbindung an umliegende Städte wie z.B. Bielefeld und Paderborn.
Mit der Entwicklung zur Großstadt geht eine hohe Wohnungsnachfrage, insbesondere im mittleren Segment, einher.
Die wirtschaftsstarke Stadt Gütersloh ist Standort vieler großer Unternehmen aus verschiedenen Branchen, wie z.B. Bertelsmann und Miele.
Das Sport- und Kulturangebot ist ausgezeichnet. Die zentrale Lage Güterslohs mitten in Ostwestfalen-Lippe biete eine gute Anbindung an umliegende Städte wie z.B. Bielefeld und Paderborn.
Mit der Entwicklung zur Großstadt geht eine hohe Wohnungsnachfrage, insbesondere im mittleren Segment, einher.
Kontaktanfrage senden
Über den Anbieter
m² immobilien GmbH
Gräfrather Markt 4
42653 Solingen
Kontakt
| Telefon | 004954243089002 |
| Mobil | 00491632310417 |
Ansprechpartner/in
Herr Andreas Knöbel
Weitere Angebote des Anbieters
11
Moderne 3- Zimmerwohnung mit zwei Balkonen in der ...
Wohnung
42651 Solingen
Die angebotene Wohnung befindet sich im 1. Obergeschoss rechts eines gepflegten Mehrfamilienhauses mit insgesamt 7 Parteien. Ein Aufzug im Treppenhaus ermöglicht einen komfortablen Zugang zur Wohnung und sorgt für ...
1.350 €
Kaltmiete
12,86 €
Mietpreis pro m²
105 m²
Wohnfläche
3
Zimmer
14
GROSSES BAUGRUNDSTÜCK GRZ=0,2 IN SÜDWESTLICHER ...
Grundstück
21400 Reinstorf / Holzen
Entdecken Sie Ihr ideales Baugrundstück in der idyllischen Gemeinde Reinstorf im Ortsteil Holzen! Dieses weitläufige Wohnbaugrundstück erstreckt sich über ca. 1.294 m² und bietet Ihnen ausreichend Raum, um Ihren Traum ...
160.000 €
Kaufpreis
1.294 m²
Grundstücksfläche
16
Historisches Fachwerkhaus in Bestlage – direkt am ...
Haus
42653 Solingen
Das denkmalgeschützte Haus in Solingen-Gräfrath vereint historischen Charme mit funktionaler Raumaufteilung und bietet auf ca. 102 m² Wohnfläche ein besonderes Wohnambiente. Die Immobilie eignet sich ideal für ...
380.000 €
Kaufpreis
102 m²
Wohnfläche
5
Zimmer
18
Ein Zuhause voller Möglichkeiten: zeitloses ...
Haus
40721 Hilden
In einer der begehrtesten Wohnlagen Hildens liegt dieses zeitlose Zweifamilienhaus. Das massiv erbaute Haus aus dem Jahr 1971 hat eine Klinkerfassade und ist einseitig angebaut. Das Haus erstreckt sich über zwei Etagen ...
750.000 €
Kaufpreis
194 m²
Wohnfläche
6
Zimmer
7
GROSSZÜGIGES BAUGRUNDSTÜCK MIT HOHER BEBAUBARKEIT IN ...
Grundstück
21423 Winsen (Luhe)
Willkommen in Winsen (Luhe) – einem charmanten Ort, der durch seine malerische Umgebung und ideale Anbindung besticht. Wir präsentieren Ihnen hier ein einzigartiges Premium-Baugrundstück in 1A-Mikrolage für vielseitige ...
670.000 €
Kaufpreis
2.125 m²
Grundstücksfläche