Ruhige 2-Zimmer Gartenwohnung
288.000 €
Kaufpreis
76 m²
Wohnfläche
2
Zimmer
immobilien.de Nr.: 9474008
Objektnummer: E 1833
Kaufpreis
| Kaufpreis | 288.000 € |
| Maklerprovision | 3,57% inklusive gesetzlicher MwSt. aus dem Kaufpreis, zahlbar bei notariellem Kaufvertrag |
Wohnfläche, Grundstück & Bausubstanz
| Wohnfläche | 76 m² |
| Zimmer | 2 |
| Baujahr | 1974 |
| Verfügbar ab | keine Angabe |
Beschreibung der Immobilie
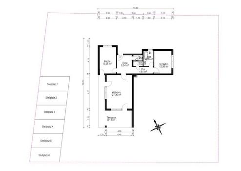
Ruhige 2-Zi.-EG-Gartenwohnung, ca. 76m² Wfl, Wohnküche, 2 Duschbäder, Kaminanschluss, überdachte Terrasse, Keller, großer Garten, Stellplatz, ab sofort
Karte wird geladen...
Objektstandort
82497 Unterammergau
Lage & Infrastruktur
Objektstandort
82497 Unterammergau
Die Wohnung liegt am Ortsrand von Unterammergau in absoluter Ruhe mit einem traumhaften Weitblick.
In die Dorfmitte sind es ca. 5 Gehminuten.
Oberammergau erreichen Sie in wenigen Autominuten. Nach Murnau und Garmisch sind es jeweils ca. 20 Minuten mit dem Auto. Genauso schnell erreichen Sie die Autobahnauffahrt nach München.
https://www.gemeinde-unterammergau.de/
In die Dorfmitte sind es ca. 5 Gehminuten.
Oberammergau erreichen Sie in wenigen Autominuten. Nach Murnau und Garmisch sind es jeweils ca. 20 Minuten mit dem Auto. Genauso schnell erreichen Sie die Autobahnauffahrt nach München.
https://www.gemeinde-unterammergau.de/
Kontaktanfrage senden
Über den Anbieter
TK-Immobilien & Hausverwaltung
Ludwig-Thoma-Str. 5
82487 Oberammergau
Kontakt
| Telefon | +49 8822 94013 |
| Website | www.tk-immo-bayern.de |
Ansprechpartner/in
Tobias Königsberger