Traumblick inklusive! E.-Überruhr, sonnige 57 m², frei, von Privat
129.900 €
Kaufpreis
57 m²
Wohnfläche
2
Zimmer
immobilien.de Nr.: 9473937
Objektnummer: 430083
Kaufpreis
| Kaufpreis | 129.900 € |
| Hausgeld | 216 € |
| Maklerprovision | keine Provision, courtagefrei |
Wohnfläche, Grundstück & Bausubstanz
| Wohnfläche | 57 m² |
| Zimmer | 2 |
| Baujahr | 1974 |
| Verfügbar ab | sofort |
| Zustand | Gepflegt |
Energie
| Energieausweistyp | Bedarfsausweis |
| Energieeffizienzklasse | B |
| Endenergiebedarf | 69 |
| Energieträger/Befeuerung | Elektro |
Beschreibung der Immobilie
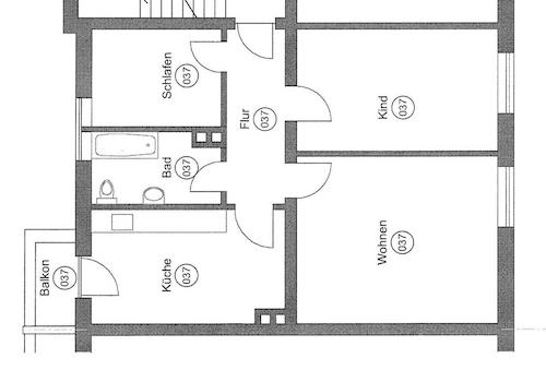
Diese erstklassig geschnittene, helle Wohnung (Südausrichtung) liegt im
8. OG einer äusserst gepflegten Wohnanlage. Neben der geschickten Raumaufteilung der Wohnung besticht natürlich die weite Aussicht in den Essener Süden.
Die Diele, das Wohnzimmer, der Flur und das Schlafzimmer sind mit einem hochwertigem Echtholz/ Vollholz Parkettboden ausgestattet. Die Küche wurde mit hellen Bodenfliesen verfliesst und der Küchenspiegel wurde ebenfalls erneuert. Die Küche bietet Platz für eine Frühstücksecke. Ein grosszügiger Essplatz mit sep. Fenster kann darüberhinaus im Wohnzimmer (22,9 m²) eingerichtet werden. Das grosse Schlafzimmer bildet mit der davorgelagerten Diele (mit Einbauschrank) und dem Bad eine kleine abgeschlossene Einheit. Die Wohnung wurde zum 31.01.2026 freigezogen.
8. OG einer äusserst gepflegten Wohnanlage. Neben der geschickten Raumaufteilung der Wohnung besticht natürlich die weite Aussicht in den Essener Süden.
Die Diele, das Wohnzimmer, der Flur und das Schlafzimmer sind mit einem hochwertigem Echtholz/ Vollholz Parkettboden ausgestattet. Die Küche wurde mit hellen Bodenfliesen verfliesst und der Küchenspiegel wurde ebenfalls erneuert. Die Küche bietet Platz für eine Frühstücksecke. Ein grosszügiger Essplatz mit sep. Fenster kann darüberhinaus im Wohnzimmer (22,9 m²) eingerichtet werden. Das grosse Schlafzimmer bildet mit der davorgelagerten Diele (mit Einbauschrank) und dem Bad eine kleine abgeschlossene Einheit. Die Wohnung wurde zum 31.01.2026 freigezogen.
Ausstattungsmerkmale
| Bad | 1 |
| Boden | Fliesen, Parkett |
| Balkone | 1 |
| Terrassen | 0 |
| Fahrstuhl | |
| Keller |
Balkon, Keller, Fahrstuhl, Parkett, Fliesen
Bemerkungen:
Das Haus kann auch ohne Stufen durch einen zweiten Eingang betreten werden, ein Fahrstuhl führt dann in die 8. Etage. In der 8. Etage befinden sich insgesamt drei Wohnungen. Auch in den recht großen Kellerraum (mit kleinem Fenster) kann man vom zweiten Eingang aus gelangen( gut nutzbar für E-Bikes).
Der elektronische Durchlauferhitzer für das Bad und die Küche wurde 2025 erneuert. Die Wohnung verfügt über hochwertige Lichtschalter und Steckdosen und eine neue Gegensprechanlage.
Eine Waschmaschine kann in der Küche aufgestellt werden, es ist aber auch eine Gemeinschaftswaschküche mit Münzgeräten vorhanden. Darüberhinaus steht im Keller ein Trockenraum zur Verfügung. Die Balkongeländersanierung ist schon gösstenteils abgeschlossen.
Bemerkungen:
Das Haus kann auch ohne Stufen durch einen zweiten Eingang betreten werden, ein Fahrstuhl führt dann in die 8. Etage. In der 8. Etage befinden sich insgesamt drei Wohnungen. Auch in den recht großen Kellerraum (mit kleinem Fenster) kann man vom zweiten Eingang aus gelangen( gut nutzbar für E-Bikes).
Der elektronische Durchlauferhitzer für das Bad und die Küche wurde 2025 erneuert. Die Wohnung verfügt über hochwertige Lichtschalter und Steckdosen und eine neue Gegensprechanlage.
Eine Waschmaschine kann in der Küche aufgestellt werden, es ist aber auch eine Gemeinschaftswaschküche mit Münzgeräten vorhanden. Darüberhinaus steht im Keller ein Trockenraum zur Verfügung. Die Balkongeländersanierung ist schon gösstenteils abgeschlossen.
Sonstige Informationen
Heizungsart: Sonstiges (s. Text)
Energieträger: Strom
Makleranfragen nicht erwünscht. Nach § 7 UWG sind unaufgeforderte Kontaktaufnahmen durch Makler ohne ausdrückliche Einwilligung des Empfängers verboten!
ohne-makler (OM) ist weder Anbieter noch Vermittler der Immobilie. OM betreibt eine Plattform für Immobilieneigentümer, die unter anderem die gleichzeitige Veröffentlichung einzelner Inserate auf mehreren Immobilienportalen ermöglicht. Die Inhalte dieser Inserate werden ausschließlich von Dritten verantwortet. Für die Richtigkeit, Vollständigkeit oder Rechtmäßigkeit der Angaben übernimmt OM keine Haftung. Hinweise auf mögliche Rechtsverstöße können jederzeit gemeldet werden und werden nach Prüfung umgehend bearbeitet.
Energieträger: Strom
Makleranfragen nicht erwünscht. Nach § 7 UWG sind unaufgeforderte Kontaktaufnahmen durch Makler ohne ausdrückliche Einwilligung des Empfängers verboten!
ohne-makler (OM) ist weder Anbieter noch Vermittler der Immobilie. OM betreibt eine Plattform für Immobilieneigentümer, die unter anderem die gleichzeitige Veröffentlichung einzelner Inserate auf mehreren Immobilienportalen ermöglicht. Die Inhalte dieser Inserate werden ausschließlich von Dritten verantwortet. Für die Richtigkeit, Vollständigkeit oder Rechtmäßigkeit der Angaben übernimmt OM keine Haftung. Hinweise auf mögliche Rechtsverstöße können jederzeit gemeldet werden und werden nach Prüfung umgehend bearbeitet.
Karte wird geladen...
Objektstandort
Eskenshof 7
45277 Essen
- Nordrhein-Westfalen
Lage & Infrastruktur
Objektstandort
Eskenshof 7
45277 Essen
- Nordrhein-Westfalen
Geschäfte und alle Dinge des täglichen Bedarfs sind fussläufig zu erreichen. Der S-Bahn Anschluss der S9 und der Weg entlang der Ruhr sind in 8 Minuten erreichbar. Die S-Bahn benötigt 10 Minuten bis zum Essener Hbf.
Infrastruktur (im Umkreis von 5 km):
Apotheke, Lebensmittel-Discount, Öffentliche Verkehrsmittel
Infrastruktur (im Umkreis von 5 km):
Apotheke, Lebensmittel-Discount, Öffentliche Verkehrsmittel