PROVISIONSFREI - Modernes Ein- oder Zweifamilienhaus in Wendelstein - Rohbau oder schlüsselfertig
949.000 €
Kaufpreis
200 m²
Wohnfläche
5
Zimmer
immobilien.de Nr.: 9472368
Objektnummer: 429603
Kaufpreis
| Kaufpreis | 949.000 € |
| Maklerprovision | keine Provision, courtagefrei |
Wohnfläche, Grundstück & Bausubstanz
| Wohnfläche | 200 m² |
| Grundstücksfläche | 475 m² |
| Zimmer | 5 |
| Baujahr | 2026 |
| Verfügbar ab | nach Absprache |
| Zustand | Rohbau |
Energie
| Heizungsart | Fußbodenheizung |
| Energieträger/Befeuerung | Luft-Wärme-Pumpe |
Beschreibung der Immobilie
Ihr neues Zuhause wartet auf Sie!
In ruhiger und familienfreundlicher Lage von Wendelstein entsteht dieses stilvolle Ein- oder Zweifamilienhaus – ein echter Wohntraum mit vielen Möglichkeiten. Aktuell befindet sich das Haus im Rohbauzustand und kann ganz nach Ihren Wünschen entweder im jetzigen Zustand oder schlüsselfertig übernommen werden.
Viel Platz für Ihre Wohnträume
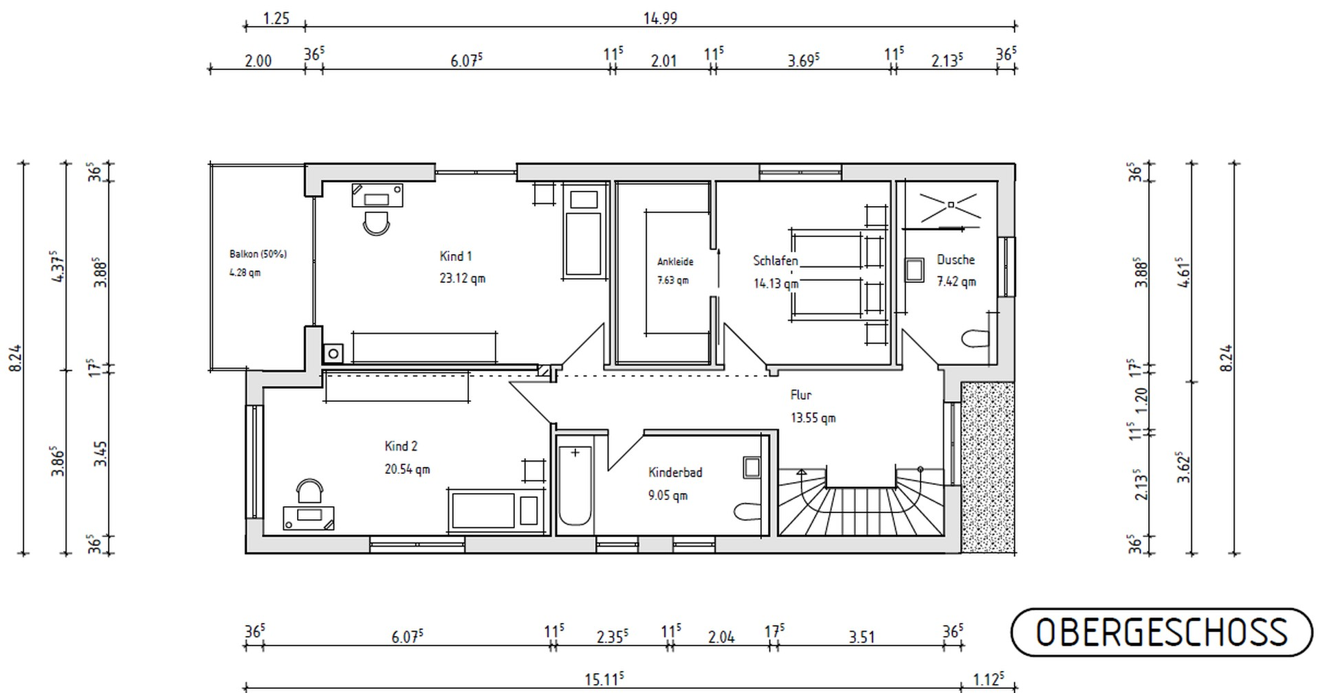
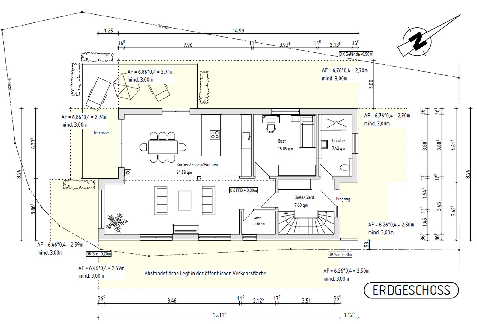
Mit rund 200 m² Wohnfläche, verteilt auf 5 großzügige Zimmer über Erd- und Obergeschoss, bietet das Haus jede Menge Raum für Familienleben, Rückzug und Entfaltung. Der durchdachte Grundriss sorgt für eine harmonische Raumaufteilung – ob als gemütliches Familiennest oder modernes Paar-Domizil mit Homeoffice – hier ist fast alles möglich.
Besonders attraktiv: Sowohl im Erd- als auch im Obergeschoss kann die Raumaufteilung noch individuell nach Ihren Wünschen gestaltet werden. So entsteht genau das Zuhause, das perfekt zu Ihrem Lebensstil passt.
Helles Wohnen & clever geplant
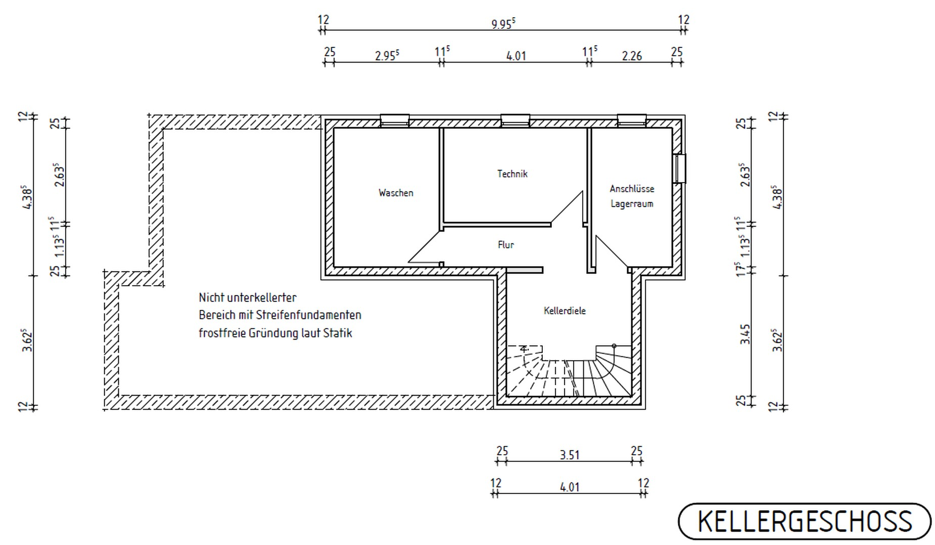
Große Fenster sorgen für viel Tageslicht und ein angenehmes Wohngefühl. Der teilunterkellerte Bereich bietet praktischen Stauraum sowie Platz für Technik oder Hobbys.
Grundstück mit Gestaltungspotenzial
Das rund 475 m² große Grundstück lädt zum Gärtnern, Spielen oder Entspannen ein – ob mit Sonnenterrasse, Hochbeet oder Trampolin bleibt ganz Ihnen überlassen!
Komfort & Nachhaltigkeit vereint
Das massiv gebaute Haus erfüllt den KfW-55-Standard und überzeugt schon jetzt mit hoher Energieeffizienz und solider Bauqualität.
Eine Doppelgarage bzw. ein Carport mit Stellfläche für 2 Fahrzeuge ist ebenfalls Teil des Angebots – perfekt für Familien mit mehreren Autos oder zusätzlichem Platzbedarf.
In ruhiger und familienfreundlicher Lage von Wendelstein entsteht dieses stilvolle Ein- oder Zweifamilienhaus – ein echter Wohntraum mit vielen Möglichkeiten. Aktuell befindet sich das Haus im Rohbauzustand und kann ganz nach Ihren Wünschen entweder im jetzigen Zustand oder schlüsselfertig übernommen werden.
Viel Platz für Ihre Wohnträume
Mit rund 200 m² Wohnfläche, verteilt auf 5 großzügige Zimmer über Erd- und Obergeschoss, bietet das Haus jede Menge Raum für Familienleben, Rückzug und Entfaltung. Der durchdachte Grundriss sorgt für eine harmonische Raumaufteilung – ob als gemütliches Familiennest oder modernes Paar-Domizil mit Homeoffice – hier ist fast alles möglich.
Besonders attraktiv: Sowohl im Erd- als auch im Obergeschoss kann die Raumaufteilung noch individuell nach Ihren Wünschen gestaltet werden. So entsteht genau das Zuhause, das perfekt zu Ihrem Lebensstil passt.
Helles Wohnen & clever geplant
Große Fenster sorgen für viel Tageslicht und ein angenehmes Wohngefühl. Der teilunterkellerte Bereich bietet praktischen Stauraum sowie Platz für Technik oder Hobbys.
Grundstück mit Gestaltungspotenzial
Das rund 475 m² große Grundstück lädt zum Gärtnern, Spielen oder Entspannen ein – ob mit Sonnenterrasse, Hochbeet oder Trampolin bleibt ganz Ihnen überlassen!
Komfort & Nachhaltigkeit vereint
Das massiv gebaute Haus erfüllt den KfW-55-Standard und überzeugt schon jetzt mit hoher Energieeffizienz und solider Bauqualität.
Eine Doppelgarage bzw. ein Carport mit Stellfläche für 2 Fahrzeuge ist ebenfalls Teil des Angebots – perfekt für Familien mit mehreren Autos oder zusätzlichem Platzbedarf.
Ausstattungsmerkmale
| Anzahl der Etagen im Haus | 3 |
| Bad | 3 |
| Bad | Dusche |
| Balkone | 1 |
| Garten | |
| Terrassen | 1 |
| Barrierefrei | |
| Carport | 1 |
| Keller |
Balkon, Terrasse, Garten, Keller, Duschbad, Gäste-WC, Kamin, Barrierefrei, Sonstiges (s. Text)
Bemerkungen:
•KfW 55-förderfähig – hervorragende Energieeffizienz, ideal für staatliche Förderprogramme
•Moderne Luft-Wärmepumpe als Heizsystem
•Dezentrale Lüftungsanlage für ein gesundes Raumklima
•Smart-Home-Steuerung über KNX-System (intelligente Haustechnik)
•Fußbodenheizung in allen Räumen (energieeffiziente Niedertemperatur-Heizung)
•Erdgeschoss barrierefrei mit Gäste- oder Arbeitszimmer und einem Gäste-Bad
•Betontreppe, Belag nach Absprache
•Balkon im Obergeschoss
•3 Badezimmer, 1x EG und 2x im OG
•Hochwertige Kunststofffenster mit 3-fach-Verglasung (EG mit Raffstores, OG mit Aluminium-Rollläden)
•Hochwasserdicht ausgeführte Kellerfenster
•Regenwasser-Zisterne (ca. 5,5 m³) zur Gartenbewässerung und Brauchwassernutzung
Bemerkungen:
•KfW 55-förderfähig – hervorragende Energieeffizienz, ideal für staatliche Förderprogramme
•Moderne Luft-Wärmepumpe als Heizsystem
•Dezentrale Lüftungsanlage für ein gesundes Raumklima
•Smart-Home-Steuerung über KNX-System (intelligente Haustechnik)
•Fußbodenheizung in allen Räumen (energieeffiziente Niedertemperatur-Heizung)
•Erdgeschoss barrierefrei mit Gäste- oder Arbeitszimmer und einem Gäste-Bad
•Betontreppe, Belag nach Absprache
•Balkon im Obergeschoss
•3 Badezimmer, 1x EG und 2x im OG
•Hochwertige Kunststofffenster mit 3-fach-Verglasung (EG mit Raffstores, OG mit Aluminium-Rollläden)
•Hochwasserdicht ausgeführte Kellerfenster
•Regenwasser-Zisterne (ca. 5,5 m³) zur Gartenbewässerung und Brauchwassernutzung
Sonstige Informationen
Heizungsart: Fußbodenheizung
Energieträger: Luft-/Wasserwärme
Energieausweis nicht vorhanden
Alle Baukosten des aktuellen Bauzustandes inklusive Erschließung sowie sämtliche anfallenden Gebühren für Hausanschlüsse bei der Gemeinde sind im Angebot bereits enthalten. Die schlüsselfertige Fertigstellung kann auf Wunsch gegen entsprechende Absprache übernommen werden. Preisangaben hierzu erfolgen auf Anfrage.
Der vor Ort befindliche Strommast auf dem Nebengrundstück wird bis 2032 entfernt.
ohne-makler (OM) ist weder Anbieter noch Vermittler der Immobilie. OM betreibt eine Plattform für Immobilieneigentümer, die unter anderem die gleichzeitige Veröffentlichung einzelner Inserate auf mehreren Immobilienportalen ermöglicht. Die Inhalte dieser Inserate werden ausschließlich von Dritten verantwortet. Für die Richtigkeit, Vollständigkeit oder Rechtmäßigkeit der Angaben übernimmt OM keine Haftung. Hinweise auf mögliche Rechtsverstöße können jederzeit gemeldet werden und werden nach Prüfung umgehend bearbeitet.
Energieträger: Luft-/Wasserwärme
Energieausweis nicht vorhanden
Alle Baukosten des aktuellen Bauzustandes inklusive Erschließung sowie sämtliche anfallenden Gebühren für Hausanschlüsse bei der Gemeinde sind im Angebot bereits enthalten. Die schlüsselfertige Fertigstellung kann auf Wunsch gegen entsprechende Absprache übernommen werden. Preisangaben hierzu erfolgen auf Anfrage.
Der vor Ort befindliche Strommast auf dem Nebengrundstück wird bis 2032 entfernt.
ohne-makler (OM) ist weder Anbieter noch Vermittler der Immobilie. OM betreibt eine Plattform für Immobilieneigentümer, die unter anderem die gleichzeitige Veröffentlichung einzelner Inserate auf mehreren Immobilienportalen ermöglicht. Die Inhalte dieser Inserate werden ausschließlich von Dritten verantwortet. Für die Richtigkeit, Vollständigkeit oder Rechtmäßigkeit der Angaben übernimmt OM keine Haftung. Hinweise auf mögliche Rechtsverstöße können jederzeit gemeldet werden und werden nach Prüfung umgehend bearbeitet.
Karte wird geladen...
Objektstandort
In der Gibitzen 28
90530 Wendelstein
- Bayern
Lage & Infrastruktur
Objektstandort
In der Gibitzen 28
90530 Wendelstein
- Bayern
Die Marktgemeinde Wendelstein liegt am südlichen Stadtrand von Nürnberg und bietet eine hervorragende Wohnlage mit familienfreundlicher Infrastruktur. Eine Grundschule, Gymnasium sowie ein Kindergarten befinden sich direkt vor Ort. Einkaufsmöglichkeiten für den täglichen Bedarf (diverse Supermärkte, Bäcker, etc.) sind im Ort vorhanden und schnell erreichbar.
Die Anbindung an den öffentlichen Nahverkehr ist sehr gut: Eine Bushaltestelle liegt nur wenige Gehminuten entfernt und bietet regelmäßige Verbindungen nach Nürnberg und umliegende Orte. Für Pendler mit dem Auto ist die Lage ebenso ideal. Die Autobahn A73, A6 und A9 sowie die Bundesstraße B2 und B8 sind in wenigen Fahrminuten erreichbar. Über die nahegelegenen Anschlüsse an das Autobahnnetz gelangt man schnell in die Metropolregion Nürnberg und weitere Ziele. Gleichzeitig genießt man in Wendelstein ein ruhiges, grünes Wohnumfeld mit hohem Freizeit- und Erholungswert.
Infrastruktur (im Umkreis von 5 km):
Apotheke, Lebensmittel-Discount, Allgemeinmediziner, Kindergarten, Grundschule, Realschule, Gymnasium, Gesamtschule, Öffentliche Verkehrsmittel
Die Anbindung an den öffentlichen Nahverkehr ist sehr gut: Eine Bushaltestelle liegt nur wenige Gehminuten entfernt und bietet regelmäßige Verbindungen nach Nürnberg und umliegende Orte. Für Pendler mit dem Auto ist die Lage ebenso ideal. Die Autobahn A73, A6 und A9 sowie die Bundesstraße B2 und B8 sind in wenigen Fahrminuten erreichbar. Über die nahegelegenen Anschlüsse an das Autobahnnetz gelangt man schnell in die Metropolregion Nürnberg und weitere Ziele. Gleichzeitig genießt man in Wendelstein ein ruhiges, grünes Wohnumfeld mit hohem Freizeit- und Erholungswert.
Infrastruktur (im Umkreis von 5 km):
Apotheke, Lebensmittel-Discount, Allgemeinmediziner, Kindergarten, Grundschule, Realschule, Gymnasium, Gesamtschule, Öffentliche Verkehrsmittel