Bungalow in Toplage von Mandelbachtal/Ormesheim
382.000 €
Kaufpreis
122 m²
Wohnfläche
5
Zimmer
immobilien.de Nr.: 9467770
Objektnummer: 402211
Kaufpreis
| Kaufpreis | 382.000 € |
| Maklerprovision | keine Provision, courtagefrei |
Wohnfläche, Grundstück & Bausubstanz
| Wohnfläche | 122 m² |
| Grundstücksfläche | 714 m² |
| Zimmer | 5 |
| Baujahr | 1971 |
| Verfügbar ab | nach Absprache |
| Zustand | Gepflegt |
Energie
| Heizungsart | Zentralheizung |
| Energieträger/Befeuerung | Öl |
Beschreibung der Immobilie
Privatverkauf - Provisionsfrei!
Dieser im typischen Stil der 70er-Jahre gebaute und gepflegte Bungalow liegt am Ende einer Sackgasse, in einem bevorzugtem Wohngebiet von Ormesheim. Das ganze Gebäude ist massiv gebaut und außer der Garage voll unterkellert. Alle Wohnräume befinden sich auf einer Ebene, daher ist es ideal für Jung und Alt.
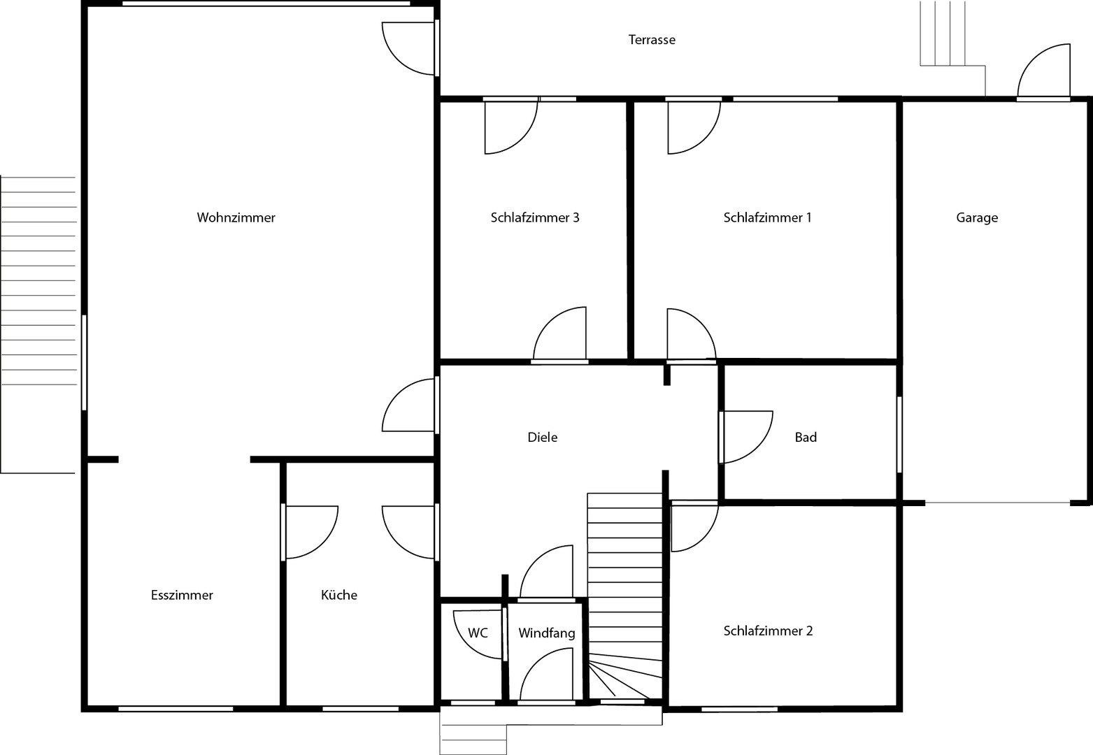
Einige Stufen führen zur Eingangstür. Im Eingangsbereich befindet sich ein Windfang mit Zugang zum Gäste-WC. Geradeaus gelangt man in eine großzügige Diele, von der alle Räumer erreichbar sind.
Nach links, vorbei an einer Garderobennische geht es in die Küche und weiter in das ca. 50 m² große Wohn-Esszimmer, in dem ein großes Blumenfenster einen herrlichen Blick in den Garten ermöglicht.
Ebenerdig befinden sich 3 Schlafzimmer und ein Bad mit Fenster und ebenerdiger Dusche.
Das Wohnzimmer sowie 2 der Schlafzimmer haben einen Zugang zu Terrasse und Garten.
Im Untergeschoss bieten zwei Zimmer und ein Duschbad (ca. 45-60 m²) weitere Möglichkeiten das Haus zu beleben. Die restliche Grundfläche im Untergeschoss sind Waschküche, Heizungs-, Ölvorratskeller sowie 3 weitere Kellerräume.
Der Garten ist schön angelegt und ist mit Rasen, schützenden Pflanzen und Baumbestand fast nicht einsehbar.
Die angebaute Garage ist mit einem elektrischen Garagentor ausgestattet und hat einen Ausgang zur Terrasse. 2 weitere KfZ-Stellflächen befinden sich auf dem Grundstück.
Dieser im typischen Stil der 70er-Jahre gebaute und gepflegte Bungalow liegt am Ende einer Sackgasse, in einem bevorzugtem Wohngebiet von Ormesheim. Das ganze Gebäude ist massiv gebaut und außer der Garage voll unterkellert. Alle Wohnräume befinden sich auf einer Ebene, daher ist es ideal für Jung und Alt.
Einige Stufen führen zur Eingangstür. Im Eingangsbereich befindet sich ein Windfang mit Zugang zum Gäste-WC. Geradeaus gelangt man in eine großzügige Diele, von der alle Räumer erreichbar sind.
Nach links, vorbei an einer Garderobennische geht es in die Küche und weiter in das ca. 50 m² große Wohn-Esszimmer, in dem ein großes Blumenfenster einen herrlichen Blick in den Garten ermöglicht.
Ebenerdig befinden sich 3 Schlafzimmer und ein Bad mit Fenster und ebenerdiger Dusche.
Das Wohnzimmer sowie 2 der Schlafzimmer haben einen Zugang zu Terrasse und Garten.
Im Untergeschoss bieten zwei Zimmer und ein Duschbad (ca. 45-60 m²) weitere Möglichkeiten das Haus zu beleben. Die restliche Grundfläche im Untergeschoss sind Waschküche, Heizungs-, Ölvorratskeller sowie 3 weitere Kellerräume.
Der Garten ist schön angelegt und ist mit Rasen, schützenden Pflanzen und Baumbestand fast nicht einsehbar.
Die angebaute Garage ist mit einem elektrischen Garagentor ausgestattet und hat einen Ausgang zur Terrasse. 2 weitere KfZ-Stellflächen befinden sich auf dem Grundstück.
Ausstattungsmerkmale
| Anzahl der Etagen im Haus | 1 |
| Küche | Einbauküche |
| Bad | 1 |
| Bad | Dusche |
| Boden | Fliesen, Teppich, Parkett |
| Balkone | 0 |
| Garten | |
| Terrassen | 1 |
| Garage/Stellplätze | 1 |
| Keller |
Terrasse, Garten, Keller, Duschbad, Einbauküche, Gäste-WC, Parkett, Teppichboden, Fliesen
Bemerkungen:
Auf einen Blick:
Wohnfläche: ca. 122 m² + ca. 45-60 m² im Untergeschoss
Grundstück: 714 m²
Raumaufteilung: EG: Wohn-Esszimmer mit Ausgang auf die Terrasse und Garten, Küche mit Einbauküche, Diele mit Garderobennische, 3 Schlafzimmer zwei davon mit Ausgang auf die Terrasse und Garten, Bad mit Fenster und ebenerdiger Dusche, Windfang und Gäste-WC
UG: Schlafzimmer/Büro, Partyraum, Diele, Duschbad, 3 Kellerräume, Waschküche, Heizungs- und Ölvorratskeller
Fenster: Hochwertige Holz-Alu-Fenster, 2fach-Verglasung mit abschließbaren Fenstergriffen und elektrischen Rollläden
Beheizung: Niedertemperatur-Ölheizung Bj. 1998 - Brenner Bj. 2011
durchschnittlicher Ölverbrauch über 10 Jahre ca. 2.700 Liter/Jahr
Garagen/Abstellplatz: 1 Garage, 2 Abstellplätze
Besonderheit: SAT-Antenne, Glasfaser- sowie Gasanschluss im Haus
Der Energieausweis ist in Arbeit. Voraussichtlich Energieeffizienz F (?)
Dieses Angebot richtet sich ausschließlich an ernsthafte Kaufinteressenten. Immobilenmarkler bitten wir von Anfragen abzusehen.
Gerne stehen wir für weitere Informationen und Besichtigungstermine zur Verfügung.
Bemerkungen:
Auf einen Blick:
Wohnfläche: ca. 122 m² + ca. 45-60 m² im Untergeschoss
Grundstück: 714 m²
Raumaufteilung: EG: Wohn-Esszimmer mit Ausgang auf die Terrasse und Garten, Küche mit Einbauküche, Diele mit Garderobennische, 3 Schlafzimmer zwei davon mit Ausgang auf die Terrasse und Garten, Bad mit Fenster und ebenerdiger Dusche, Windfang und Gäste-WC
UG: Schlafzimmer/Büro, Partyraum, Diele, Duschbad, 3 Kellerräume, Waschküche, Heizungs- und Ölvorratskeller
Fenster: Hochwertige Holz-Alu-Fenster, 2fach-Verglasung mit abschließbaren Fenstergriffen und elektrischen Rollläden
Beheizung: Niedertemperatur-Ölheizung Bj. 1998 - Brenner Bj. 2011
durchschnittlicher Ölverbrauch über 10 Jahre ca. 2.700 Liter/Jahr
Garagen/Abstellplatz: 1 Garage, 2 Abstellplätze
Besonderheit: SAT-Antenne, Glasfaser- sowie Gasanschluss im Haus
Der Energieausweis ist in Arbeit. Voraussichtlich Energieeffizienz F (?)
Dieses Angebot richtet sich ausschließlich an ernsthafte Kaufinteressenten. Immobilenmarkler bitten wir von Anfragen abzusehen.
Gerne stehen wir für weitere Informationen und Besichtigungstermine zur Verfügung.
Sonstige Informationen
Heizungsart: Zentralheizung
Energieträger: Öl
Energieausweis nicht vorhanden
Makleranfragen nicht erwünscht. Nach § 7 UWG sind unaufgeforderte Kontaktaufnahmen durch Makler ohne ausdrückliche Einwilligung des Empfängers verboten!
ohne-makler (OM) ist weder Anbieter noch Vermittler der Immobilie. OM betreibt eine Plattform für Immobilieneigentümer, die unter anderem die gleichzeitige Veröffentlichung einzelner Inserate auf mehreren Immobilienportalen ermöglicht. Die Inhalte dieser Inserate werden ausschließlich von Dritten verantwortet. Für die Richtigkeit, Vollständigkeit oder Rechtmäßigkeit der Angaben übernimmt OM keine Haftung. Hinweise auf mögliche Rechtsverstöße können jederzeit gemeldet werden und werden nach Prüfung umgehend bearbeitet.
Energieträger: Öl
Energieausweis nicht vorhanden
Makleranfragen nicht erwünscht. Nach § 7 UWG sind unaufgeforderte Kontaktaufnahmen durch Makler ohne ausdrückliche Einwilligung des Empfängers verboten!
ohne-makler (OM) ist weder Anbieter noch Vermittler der Immobilie. OM betreibt eine Plattform für Immobilieneigentümer, die unter anderem die gleichzeitige Veröffentlichung einzelner Inserate auf mehreren Immobilienportalen ermöglicht. Die Inhalte dieser Inserate werden ausschließlich von Dritten verantwortet. Für die Richtigkeit, Vollständigkeit oder Rechtmäßigkeit der Angaben übernimmt OM keine Haftung. Hinweise auf mögliche Rechtsverstöße können jederzeit gemeldet werden und werden nach Prüfung umgehend bearbeitet.
Karte wird geladen...
Objektstandort
66399 Mandelbachtal/Ormesheim
- Saarland
Lage & Infrastruktur
Objektstandort
66399 Mandelbachtal/Ormesheim
- Saarland
Lage:
Inmitten des Biosphärenreservats Bliesgau liegt die Gemeinde Mandelbachtal. Insbesondere der Ortsteil Ormesheim, bietet eine ruhige und familienfreundliche Wohnlage im Saarland und hat eine gute Infrastruktur mit Einkaufsmöglichkeiten, Ärzten und Schulen.
Die Anbindung an Saarbrücken ist zeitnah sowohl mit dem Auto als auch mit ÖPNV gegeben. Fernverbindungen sind in alle Richtungen schnell möglich.
Zahlreiche Freizeitmöglichkeiten in der Natur, wie Wanderwege und Radwege, laden zur Erholung ein.
Das Haus befindet sich im bevorzugte Wohngebiet oberhalb der Dorfmitte von Ormesheim am Ende einer Sackgasse. Es ist nur wenige Minuten vom Zentrum entfernt und doch auch umgeben von der weitläufigen Natur.
Infrastruktur (im Umkreis von 5 km):
Apotheke, Lebensmittel-Discount, Allgemeinmediziner, Kindergarten, Grundschule, Gesamtschule, Öffentliche Verkehrsmittel
Inmitten des Biosphärenreservats Bliesgau liegt die Gemeinde Mandelbachtal. Insbesondere der Ortsteil Ormesheim, bietet eine ruhige und familienfreundliche Wohnlage im Saarland und hat eine gute Infrastruktur mit Einkaufsmöglichkeiten, Ärzten und Schulen.
Die Anbindung an Saarbrücken ist zeitnah sowohl mit dem Auto als auch mit ÖPNV gegeben. Fernverbindungen sind in alle Richtungen schnell möglich.
Zahlreiche Freizeitmöglichkeiten in der Natur, wie Wanderwege und Radwege, laden zur Erholung ein.
Das Haus befindet sich im bevorzugte Wohngebiet oberhalb der Dorfmitte von Ormesheim am Ende einer Sackgasse. Es ist nur wenige Minuten vom Zentrum entfernt und doch auch umgeben von der weitläufigen Natur.
Infrastruktur (im Umkreis von 5 km):
Apotheke, Lebensmittel-Discount, Allgemeinmediziner, Kindergarten, Grundschule, Gesamtschule, Öffentliche Verkehrsmittel