Neubau-Doppelhaushälfte mit Stil & Komfort in Hanau – Hohe Tanne
1.200.000 €
Kaufpreis
215 m²
Wohnfläche
6
Zimmer
immobilien.de Nr.: 9467073
Objektnummer: 367577
Kaufpreis
| Kaufpreis | 1.200.000 € |
| Maklerprovision | keine Provision, courtagefrei |
Wohnfläche, Grundstück & Bausubstanz
| Wohnfläche | 215 m² |
| Grundstücksfläche | 310 m² |
| Zimmer | 6 |
| Baujahr | 2025 |
| Verfügbar ab | nach Absprache |
| Zustand | Erstbezug |
Energie
| Energieausweistyp | Bedarfsausweis |
| Energieeffizienzklasse | A |
| Endenergiebedarf | 36 |
| Heizungsart | Fußbodenheizung |
Beschreibung der Immobilie
Zum Verkauf stehen zwei exklusive Doppelhaushälften (Einheit B & C) zum Preis von jeweils 1.200.000 €.
Mit einer großzügigen Wohnfläche von je ca. 215 m² auf drei stilvoll gestalteten Etagen (zwei Vollgeschosse und ein Staffelgeschoss) bieten diese Häuser ein ideales Zuhause für Familien, die Wert auf modernes Design, hochwertige Materialien und viel Raum zum Leben legen.
*Die hier gezeigten Bilder sind unverbindliche Visualisierungen und dienen der Veranschaulichung des geplanten Wohnkonzepts. Änderungen vorbehalten.
Wohnen mit Stil und Komfort
Bereits beim Betreten der Häuser empfängt Sie eine besondere Wohnatmosphäre:
Helle, offen gestaltete Räume, große Fensterflächen und sorgfältig ausgewählte Materialien schaffen eine harmonische Verbindung aus Eleganz und Behaglichkeit.
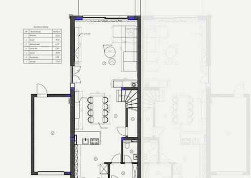
Der großzügige Wohn- und Essbereich im Erdgeschoss überzeugt mit einem durchdachten Grundriss und fließenden Übergängen in den Außenbereich.
Die sonnige Terrasse sowie der private Garten laden zum Entspannen und Verweilen im Freien ein – perfekt für gesellige Stunden mit Familie und Freunden.
Innenausbau mit Mitgestaltung – Ihr Stil zählt
Die Doppelhaushälften befinden sich aktuell in der Innenausbauphase.
Die Fertigstellung ist für Sommer 2026 geplant – der ideale Zeitpunkt, um sich jetzt Ihr zukünftiges Zuhause zu sichern.
Ein besonderes Highlight: Im Kaufpreis enthalten ist Ihre individuelle Mitgestaltung beim Innenausbau.
Sie wählen aus hochwertigen Optionen und gestalten folgende Bereiche nach Ihrem persönlichen Stil (im Rahmen definierter Materialbudgets):
Innentüren
Bodenbeläge (z. B. Parkett, Feinsteinzeug)
Für alle, die sich eine professionelle Rundum-Begleitung wünschen, steht auf Wunsch ein exklusives Innenarchitektur-Paket zur Verfügung (nicht im Kaufpreis enthalten). z.B. Küchendesign etc.
Damit wird Ihr neues Zuhause nicht nur hochwertig, sondern auch bis ins Detail geschmackvoll und bezugsfertig ausgestattet – ohne Planungsstress.
Jetzt vormerken – Ihr neues Zuhause wartet
Diese einzigartigen Neubauobjekte vereinen zeitlose Architektur, moderne Technik und persönliche Gestaltungsmöglichkeiten.
Gerne senden wir Ihnen ausführliche Informationen zu oder vereinbaren einen persönlichen Besichtigungstermin.
Wir freuen uns auf Ihre Anfrage!
Mit einer großzügigen Wohnfläche von je ca. 215 m² auf drei stilvoll gestalteten Etagen (zwei Vollgeschosse und ein Staffelgeschoss) bieten diese Häuser ein ideales Zuhause für Familien, die Wert auf modernes Design, hochwertige Materialien und viel Raum zum Leben legen.
*Die hier gezeigten Bilder sind unverbindliche Visualisierungen und dienen der Veranschaulichung des geplanten Wohnkonzepts. Änderungen vorbehalten.
Wohnen mit Stil und Komfort
Bereits beim Betreten der Häuser empfängt Sie eine besondere Wohnatmosphäre:
Helle, offen gestaltete Räume, große Fensterflächen und sorgfältig ausgewählte Materialien schaffen eine harmonische Verbindung aus Eleganz und Behaglichkeit.
Der großzügige Wohn- und Essbereich im Erdgeschoss überzeugt mit einem durchdachten Grundriss und fließenden Übergängen in den Außenbereich.
Die sonnige Terrasse sowie der private Garten laden zum Entspannen und Verweilen im Freien ein – perfekt für gesellige Stunden mit Familie und Freunden.
Innenausbau mit Mitgestaltung – Ihr Stil zählt
Die Doppelhaushälften befinden sich aktuell in der Innenausbauphase.
Die Fertigstellung ist für Sommer 2026 geplant – der ideale Zeitpunkt, um sich jetzt Ihr zukünftiges Zuhause zu sichern.
Ein besonderes Highlight: Im Kaufpreis enthalten ist Ihre individuelle Mitgestaltung beim Innenausbau.
Sie wählen aus hochwertigen Optionen und gestalten folgende Bereiche nach Ihrem persönlichen Stil (im Rahmen definierter Materialbudgets):
Innentüren
Bodenbeläge (z. B. Parkett, Feinsteinzeug)
Für alle, die sich eine professionelle Rundum-Begleitung wünschen, steht auf Wunsch ein exklusives Innenarchitektur-Paket zur Verfügung (nicht im Kaufpreis enthalten). z.B. Küchendesign etc.
Damit wird Ihr neues Zuhause nicht nur hochwertig, sondern auch bis ins Detail geschmackvoll und bezugsfertig ausgestattet – ohne Planungsstress.
Jetzt vormerken – Ihr neues Zuhause wartet
Diese einzigartigen Neubauobjekte vereinen zeitlose Architektur, moderne Technik und persönliche Gestaltungsmöglichkeiten.
Gerne senden wir Ihnen ausführliche Informationen zu oder vereinbaren einen persönlichen Besichtigungstermin.
Wir freuen uns auf Ihre Anfrage!
Ausstattungsmerkmale
| Anzahl der Etagen im Haus | 3 |
| Bad | 2 |
| Bad | Dusche, Wanne |
| Boden | Fliesen, Parkett |
| Balkone | 1 |
| Garten | |
| Terrassen | 1 |
| Garage/Stellplätze | 1 |
Balkon, Terrasse, Garten, Vollbad, Duschbad, Gäste-WC, Parkett, Fliesen, Sonstiges (s. Text)
Bemerkungen:
Ausstattung:
Im Erdgeschoss lädt eine großzügige Terrasse mit angrenzendem Garten zum Verweilen im Freien ein.
Die durchdachte Bauweise und der moderne Schnitt im Erdgeschoss ermöglichen die Integration einer eleganten Einbauküche – ideal für gesellige Kochabende oder ein entspanntes Frühstück mit Ausblick ins Grüne.
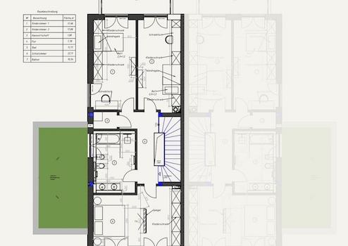
Im Obergeschoss sorgt ein gemütlicher Balkon für entspannte Stunden mit Blick ins Grüne.
In den oberen Etagen erwarten Sie mehrere geräumige Schlafzimmer, ein exklusives Tageslichtbad mit bodentiefer Dusche und Badewanne, sowie zusätzliche Räume, die sich flexibel als Home-Office, Gästezimmer oder Hobbybereich nutzen lassen.
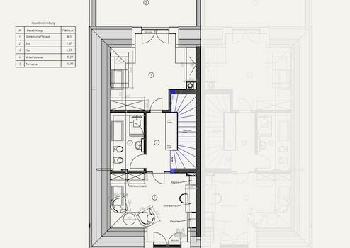
Das ausgebaute Dachgeschoss eröffnet zusätzliche Möglichkeiten für Individualität und Komfort.
Die Doppelhaushälften überzeugen nicht nur durch ihre Architektur, sondern auch durch eine energiesparende Bauweise und eine Ausstattung, die den Anforderungen moderner Wohnkonzepte gerecht wird.
Zur hochwertigen, energieeffizienten Ausstattung gehören unter anderem:
Photovoltaikanlage mit Batteriespeicher
– für eine nachhaltige Stromerzeugung, niedrigere Energiekosten und mehr Unabhängigkeit vom Netz
Dreifachverglaste Holz-/Aluminiumfenster
– eine durchdachte Kombination aus natürlicher Wohnatmosphäre im Innenbereich und wetterfester, pflegeleichter Aluminiumoptik außen.
Diese Fenster bieten:
exzellente Wärmedämmung
hohen Schallschutz eine warme, wohnliche Anmutung durch Holz innen
langlebige, moderne Alu-Optik außen, die optimal zur Architektur passt
Energieeffiziente Bauweise nach aktuellem Standard
Bemerkungen:
Ausstattung:
Im Erdgeschoss lädt eine großzügige Terrasse mit angrenzendem Garten zum Verweilen im Freien ein.
Die durchdachte Bauweise und der moderne Schnitt im Erdgeschoss ermöglichen die Integration einer eleganten Einbauküche – ideal für gesellige Kochabende oder ein entspanntes Frühstück mit Ausblick ins Grüne.
Im Obergeschoss sorgt ein gemütlicher Balkon für entspannte Stunden mit Blick ins Grüne.
In den oberen Etagen erwarten Sie mehrere geräumige Schlafzimmer, ein exklusives Tageslichtbad mit bodentiefer Dusche und Badewanne, sowie zusätzliche Räume, die sich flexibel als Home-Office, Gästezimmer oder Hobbybereich nutzen lassen.
Das ausgebaute Dachgeschoss eröffnet zusätzliche Möglichkeiten für Individualität und Komfort.
Die Doppelhaushälften überzeugen nicht nur durch ihre Architektur, sondern auch durch eine energiesparende Bauweise und eine Ausstattung, die den Anforderungen moderner Wohnkonzepte gerecht wird.
Zur hochwertigen, energieeffizienten Ausstattung gehören unter anderem:
Photovoltaikanlage mit Batteriespeicher
– für eine nachhaltige Stromerzeugung, niedrigere Energiekosten und mehr Unabhängigkeit vom Netz
Dreifachverglaste Holz-/Aluminiumfenster
– eine durchdachte Kombination aus natürlicher Wohnatmosphäre im Innenbereich und wetterfester, pflegeleichter Aluminiumoptik außen.
Diese Fenster bieten:
exzellente Wärmedämmung
hohen Schallschutz eine warme, wohnliche Anmutung durch Holz innen
langlebige, moderne Alu-Optik außen, die optimal zur Architektur passt
Energieeffiziente Bauweise nach aktuellem Standard
Sonstige Informationen
Heizungsart: Fußbodenheizung
Alle Angaben zum Objekt basieren auf erteilten Auskünften und Informationen Dritter.
Für die Richtigkeit oder Vollständigkeit der Angaben kann deshalb keine Haftung übernommen werden.
Hinweis: Der genannte Kaufpreis von 1.200.000 € bezieht sich jeweils auf eine Doppelhaushälfte.
Ein Energieausweis wird bei Besichtigung vorgelegt.
Unverbindliche Illustration der Wohnräume – Änderungen vorbehalten.
Makleranfragen nicht erwünscht. Nach § 7 UWG sind unaufgeforderte Kontaktaufnahmen durch Makler ohne ausdrückliche Einwilligung des Empfängers verboten!
ohne-makler (OM) ist weder Anbieter noch Vermittler der Immobilie. OM betreibt eine Plattform für Immobilieneigentümer, die unter anderem die gleichzeitige Veröffentlichung einzelner Inserate auf mehreren Immobilienportalen ermöglicht. Die Inhalte dieser Inserate werden ausschließlich von Dritten verantwortet. Für die Richtigkeit, Vollständigkeit oder Rechtmäßigkeit der Angaben übernimmt OM keine Haftung. Hinweise auf mögliche Rechtsverstöße können jederzeit gemeldet werden und werden nach Prüfung umgehend bearbeitet.
Alle Angaben zum Objekt basieren auf erteilten Auskünften und Informationen Dritter.
Für die Richtigkeit oder Vollständigkeit der Angaben kann deshalb keine Haftung übernommen werden.
Hinweis: Der genannte Kaufpreis von 1.200.000 € bezieht sich jeweils auf eine Doppelhaushälfte.
Ein Energieausweis wird bei Besichtigung vorgelegt.
Unverbindliche Illustration der Wohnräume – Änderungen vorbehalten.
Makleranfragen nicht erwünscht. Nach § 7 UWG sind unaufgeforderte Kontaktaufnahmen durch Makler ohne ausdrückliche Einwilligung des Empfängers verboten!
ohne-makler (OM) ist weder Anbieter noch Vermittler der Immobilie. OM betreibt eine Plattform für Immobilieneigentümer, die unter anderem die gleichzeitige Veröffentlichung einzelner Inserate auf mehreren Immobilienportalen ermöglicht. Die Inhalte dieser Inserate werden ausschließlich von Dritten verantwortet. Für die Richtigkeit, Vollständigkeit oder Rechtmäßigkeit der Angaben übernimmt OM keine Haftung. Hinweise auf mögliche Rechtsverstöße können jederzeit gemeldet werden und werden nach Prüfung umgehend bearbeitet.
Karte wird geladen...
Objektstandort
63454 Hanau
- Hessen
Lage & Infrastruktur
Objektstandort
63454 Hanau
- Hessen
Attraktive Lage in Hanau – Hohe Tanne
Die angebotenen Doppelhaushälften befinden sich in Hanau-Hohe Tanne, einem der gefragtesten Wohnviertel der Stadt. Die Kombination aus ruhiger, grüner Umgebung, einer sehr guten Anbindung und der Nähe zu umfassender Infrastruktur macht diesen Stadtteil besonders lebenswert –
ideal für Familien, Berufstätige und Ruhesuchende gleichermaßen.
Der Stadtteil bietet nicht nur eine hohe Wohnqualität, sondern auch eine hervorragend ausgebaute Infrastruktur für alle Lebensphasen –
ein perfekter Ort zum Leben, Arbeiten und Entspannen.
Umfassende Infrastruktur im Umkreis von 5 km
Bildung & Kinderbetreuung
Zahlreiche Kitas und Tagespflegeeinrichtungen im direkten Umfeld, z. B. die U3-Servicestelle in Steinheim sowie Einrichtungen in Klein- und Großauheim.
Vielfältiges Schulangebot, u. a.:
Tümpelgartenschule (Grund-, Haupt- & Realschule, ca. 2–4 km)
Friedrich-Ebert-Schule in Klein-Auheim
Paul-Gerhardt-Schule, eine evangelische Privatschule mit Grund-, Real- und Gymnasialzweig
Zukunftsorientiert: Der Pioneer Park wird bis 2026/27 um weitere Schul- und Betreuungsangebote inkl. Ganztagsbetreuung, Kita und Mensa erweitert.
Verkehr & Mobilität
Buslinie 9 mit direkter Anbindung an Freiheitsplatz, Mittelbuchen und weitere Ziele – Haltestelle in unmittelbarer Nähe.
Bahnhof Hanau-Wilhelmsbad
Verkehrsberuhigte Tempo-30-Zone mit fußläufig erreichbaren Einrichtungen des täglichen Bedarfs wie Supermarkt, Post und das Gemeindezentrum St. Elisabeth.
Soziales & Freizeitangebote
Das nahegelegene Gemeindezentrum St. Elisabeth dient als kultureller Treffpunkt für Jung und Alt.
Reitstall und zahlreiche Vereinsangebote im Umfeld sorgen für aktive Freizeitgestaltung.
Der beliebte Staatspark Hanau-Wilhelmsbad sowie weitläufige Rad- und Spazierwege laden zu Naturerlebnissen direkt vor der Haustür ein.
Infrastruktur (im Umkreis von 5 km):
Apotheke, Lebensmittel-Discount, Allgemeinmediziner, Kindergarten, Grundschule, Hauptschule, Realschule, Gymnasium, Gesamtschule, Öffentliche Verkehrsmittel
Die angebotenen Doppelhaushälften befinden sich in Hanau-Hohe Tanne, einem der gefragtesten Wohnviertel der Stadt. Die Kombination aus ruhiger, grüner Umgebung, einer sehr guten Anbindung und der Nähe zu umfassender Infrastruktur macht diesen Stadtteil besonders lebenswert –
ideal für Familien, Berufstätige und Ruhesuchende gleichermaßen.
Der Stadtteil bietet nicht nur eine hohe Wohnqualität, sondern auch eine hervorragend ausgebaute Infrastruktur für alle Lebensphasen –
ein perfekter Ort zum Leben, Arbeiten und Entspannen.
Umfassende Infrastruktur im Umkreis von 5 km
Bildung & Kinderbetreuung
Zahlreiche Kitas und Tagespflegeeinrichtungen im direkten Umfeld, z. B. die U3-Servicestelle in Steinheim sowie Einrichtungen in Klein- und Großauheim.
Vielfältiges Schulangebot, u. a.:
Tümpelgartenschule (Grund-, Haupt- & Realschule, ca. 2–4 km)
Friedrich-Ebert-Schule in Klein-Auheim
Paul-Gerhardt-Schule, eine evangelische Privatschule mit Grund-, Real- und Gymnasialzweig
Zukunftsorientiert: Der Pioneer Park wird bis 2026/27 um weitere Schul- und Betreuungsangebote inkl. Ganztagsbetreuung, Kita und Mensa erweitert.
Verkehr & Mobilität
Buslinie 9 mit direkter Anbindung an Freiheitsplatz, Mittelbuchen und weitere Ziele – Haltestelle in unmittelbarer Nähe.
Bahnhof Hanau-Wilhelmsbad
Verkehrsberuhigte Tempo-30-Zone mit fußläufig erreichbaren Einrichtungen des täglichen Bedarfs wie Supermarkt, Post und das Gemeindezentrum St. Elisabeth.
Soziales & Freizeitangebote
Das nahegelegene Gemeindezentrum St. Elisabeth dient als kultureller Treffpunkt für Jung und Alt.
Reitstall und zahlreiche Vereinsangebote im Umfeld sorgen für aktive Freizeitgestaltung.
Der beliebte Staatspark Hanau-Wilhelmsbad sowie weitläufige Rad- und Spazierwege laden zu Naturerlebnissen direkt vor der Haustür ein.
Infrastruktur (im Umkreis von 5 km):
Apotheke, Lebensmittel-Discount, Allgemeinmediziner, Kindergarten, Grundschule, Hauptschule, Realschule, Gymnasium, Gesamtschule, Öffentliche Verkehrsmittel