Haus + Grundstück in guter Lage Hanaus - Anwesen mit 1200 qm und viel Potential
650.000 €
Kaufpreis
116 m²
Wohnfläche
7
Zimmer
immobilien.de Nr.: 9465566
Objektnummer: 412349
Kaufpreis
| Kaufpreis | 650.000 € |
| Maklerprovision | keine Provision, courtagefrei |
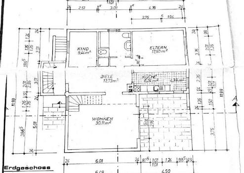
Wohnfläche, Grundstück & Bausubstanz
| Wohnfläche | 116 m² |
| Grundstücksfläche | 1.200 m² |
| Zimmer | 7 |
| Baujahr | 1977 |
| Verfügbar ab | sofort |
Energie
| Energieausweistyp | Bedarfsausweis |
| Energieeffizienzklasse | G |
| Endenergiebedarf | 218 |
| Heizungsart | Zentralheizung |
| Energieträger/Befeuerung | Öl |
Beschreibung der Immobilie
Zum Verkauf steht ein stilvoller Bungalow sowie ein weitläufiges Grundstück mit einem erschlossenen, vollwertigen Bauplatz – ideal für die Realisierung weiterer Wohnträume.
Ein gewachsener, alter Baumbestand verleiht dem von der Straße nicht einsehbaren Grundstück eine besondere Atmosphäre und macht dieses zu einer einmaligen Gelegenheit in Hanauer Toplage.
Im Bungalow wurde vor weniger als 4 Jahren eine neue Einbauküche eingebaut.
Dank der Grundstücksgröße und der Anordnung der bestehenden Bebauung besteht gemäß § 34 BauGB die Möglichkeit einer weiteren Bebauung.
Ein gewachsener, alter Baumbestand verleiht dem von der Straße nicht einsehbaren Grundstück eine besondere Atmosphäre und macht dieses zu einer einmaligen Gelegenheit in Hanauer Toplage.
Im Bungalow wurde vor weniger als 4 Jahren eine neue Einbauküche eingebaut.
Dank der Grundstücksgröße und der Anordnung der bestehenden Bebauung besteht gemäß § 34 BauGB die Möglichkeit einer weiteren Bebauung.
Ausstattungsmerkmale
| Anzahl der Etagen im Haus | 2 |
| Küche | Einbauküche |
| Bad | 2 |
| Bad | Dusche, Wanne |
| Boden | Fliesen, Teppich |
| Balkone | 0 |
| Garten | |
| Terrassen | 1 |
| Carport | 1 |
| Keller |
Terrasse, Garten, Keller, Vollbad, Duschbad, Einbauküche, Gäste-WC, Kamin, Teppichboden, Fliesen
Bemerkungen:
Der im Jahr 1977 in Massivbauweise errichtete und vollunterkellerte Bungalow bietet mit seiner nach Südwesten ausgerichteten Terrasse ein komfortables Wohnambiente.
Ein repräsentativer Eingangsbereich führt in das lichtdurchflutete Galerie-Wohnzimmer mit Speckstein-Kaminofen. Die Küche mit einer neuwertigen Einbauküche im Wert von ca. 8.500,- €, ein Gäste- oder Hauswirtschaftszimmer sowie der Schlaf- und Studiobereich mit zusätzlichem Zimmer und separater Toilette bieten vielseitige Nutzungsmöglichkeiten.
Im Hochkeller befinden sich ein Gäste- oder Kinderzimmer mit eigenem Duschbad, ein großer Hobbyraum, mehrere Lagerräume sowie die Heizungsanlage. Ein Carport mit direktem Zugang zum Untergeschoss und eine Gartenhütte ergänzen dieses großzügige Gebäude.
Besonderheiten
•Traumhaftes, weitläufiges Grundstück mit altem Baumbestand
•Erweiterungsmöglichkeit gemäß § 34 BauGB
•Neuwertige Einbauküche
•Ruhige, gewachsene Wohnlage mit perfekter Anbindung
•Hoher Freizeitwert durch unmittelbare Nähe zum Naherholungsgebiet
Bemerkungen:
Der im Jahr 1977 in Massivbauweise errichtete und vollunterkellerte Bungalow bietet mit seiner nach Südwesten ausgerichteten Terrasse ein komfortables Wohnambiente.
Ein repräsentativer Eingangsbereich führt in das lichtdurchflutete Galerie-Wohnzimmer mit Speckstein-Kaminofen. Die Küche mit einer neuwertigen Einbauküche im Wert von ca. 8.500,- €, ein Gäste- oder Hauswirtschaftszimmer sowie der Schlaf- und Studiobereich mit zusätzlichem Zimmer und separater Toilette bieten vielseitige Nutzungsmöglichkeiten.
Im Hochkeller befinden sich ein Gäste- oder Kinderzimmer mit eigenem Duschbad, ein großer Hobbyraum, mehrere Lagerräume sowie die Heizungsanlage. Ein Carport mit direktem Zugang zum Untergeschoss und eine Gartenhütte ergänzen dieses großzügige Gebäude.
Besonderheiten
•Traumhaftes, weitläufiges Grundstück mit altem Baumbestand
•Erweiterungsmöglichkeit gemäß § 34 BauGB
•Neuwertige Einbauküche
•Ruhige, gewachsene Wohnlage mit perfekter Anbindung
•Hoher Freizeitwert durch unmittelbare Nähe zum Naherholungsgebiet
Sonstige Informationen
Heizungsart: Zentralheizung
Energieträger: Öl
Fazit
Dieses Anwesen vereint Investition, Wohnkomfort und Entwicklungspotenzial auf höchstem Niveau.
Anfragen und Besichtigung bitte nur mit gesicherter Finanzierung!
ohne-makler (OM) ist weder Anbieter noch Vermittler der Immobilie. OM betreibt eine Plattform für Immobilieneigentümer, die unter anderem die gleichzeitige Veröffentlichung einzelner Inserate auf mehreren Immobilienportalen ermöglicht. Die Inhalte dieser Inserate werden ausschließlich von Dritten verantwortet. Für die Richtigkeit, Vollständigkeit oder Rechtmäßigkeit der Angaben übernimmt OM keine Haftung. Hinweise auf mögliche Rechtsverstöße können jederzeit gemeldet werden und werden nach Prüfung umgehend bearbeitet.
Energieträger: Öl
Fazit
Dieses Anwesen vereint Investition, Wohnkomfort und Entwicklungspotenzial auf höchstem Niveau.
Anfragen und Besichtigung bitte nur mit gesicherter Finanzierung!
ohne-makler (OM) ist weder Anbieter noch Vermittler der Immobilie. OM betreibt eine Plattform für Immobilieneigentümer, die unter anderem die gleichzeitige Veröffentlichung einzelner Inserate auf mehreren Immobilienportalen ermöglicht. Die Inhalte dieser Inserate werden ausschließlich von Dritten verantwortet. Für die Richtigkeit, Vollständigkeit oder Rechtmäßigkeit der Angaben übernimmt OM keine Haftung. Hinweise auf mögliche Rechtsverstöße können jederzeit gemeldet werden und werden nach Prüfung umgehend bearbeitet.
Karte wird geladen...
Objektstandort
63452 Hanau
- Hessen
Lage & Infrastruktur
Objektstandort
63452 Hanau
- Hessen
Die Immobilie überzeugt durch ihre zentrale, aber ruhige Wohnlage in Hanau.
Eine Bushaltestelle befindet sich nur etwa 50 m entfernt, die Autobahn ist in wenigen Minuten erreichbar (ca. 3 km). Kindergarten und Grundschule liegen in unmittelbarer Nähe.
Die Hanauer Innenstadt ist nur wenige Minuten entfernt.
Hanau – bekannt als Brüder-Grimm-Stadt – zählt mit rund 100.000 Einwohnern zu den sechs größten Städten Hessens und liegt direkt vor den Toren der Metropole Frankfurt.
Als wirtschaftliches und kulturelles Zentrum der Region Main-Kinzig bietet Hanau urbanes Leben mit hohem Freizeitwert.
Das beliebte Naherholungsgebiet „Bulau“ befindet sich in direkter Umgebung und lädt zu Spaziergängen und sportlichen Aktivitäten ein.
Der aktuelle Bodenrichtwert von über 400 €/m² bestätigt die begehrte Lage.
Infrastruktur (im Umkreis von 5 km):
Apotheke, Lebensmittel-Discount, Allgemeinmediziner, Kindergarten, Grundschule, Hauptschule, Realschule, Gymnasium, Gesamtschule, Öffentliche Verkehrsmittel
Eine Bushaltestelle befindet sich nur etwa 50 m entfernt, die Autobahn ist in wenigen Minuten erreichbar (ca. 3 km). Kindergarten und Grundschule liegen in unmittelbarer Nähe.
Die Hanauer Innenstadt ist nur wenige Minuten entfernt.
Hanau – bekannt als Brüder-Grimm-Stadt – zählt mit rund 100.000 Einwohnern zu den sechs größten Städten Hessens und liegt direkt vor den Toren der Metropole Frankfurt.
Als wirtschaftliches und kulturelles Zentrum der Region Main-Kinzig bietet Hanau urbanes Leben mit hohem Freizeitwert.
Das beliebte Naherholungsgebiet „Bulau“ befindet sich in direkter Umgebung und lädt zu Spaziergängen und sportlichen Aktivitäten ein.
Der aktuelle Bodenrichtwert von über 400 €/m² bestätigt die begehrte Lage.
Infrastruktur (im Umkreis von 5 km):
Apotheke, Lebensmittel-Discount, Allgemeinmediziner, Kindergarten, Grundschule, Hauptschule, Realschule, Gymnasium, Gesamtschule, Öffentliche Verkehrsmittel
Kontaktanfrage senden
Kontakt
| Telefon | 0177 9357862 |
| Fax | - |
| Website | www.ohne-makler.net |
Ansprechpartner/in
Privat vom Eigentümer