Hofgebäude auf 52 m² mit Ausbaupotenzial in begehrter Lage von Mainz-Neustadt, Nähe Rheinufer
135.000 €
Kaufpreis
45 m²
Wohnfläche
7 m²
Nutzfläche
2
Zimmer
immobilien.de Nr.: 9465394
Objektnummer: 5517#da0Td
Kaufpreis
| Kaufpreis | 135.000 € |
| Hausgeld | 258 € |
| Maklerprovision | 2,98 % |
Wohnfläche, Grundstück & Bausubstanz
| Wohnfläche | 45 m² |
| Nutzfläche | 7 m² |
| Zimmer | 2 |
| Baujahr | 1903 |
| Verfügbar ab | sofort |
| Zustand | Sanierungsbeduerftig |
Beschreibung der Immobilie
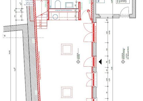
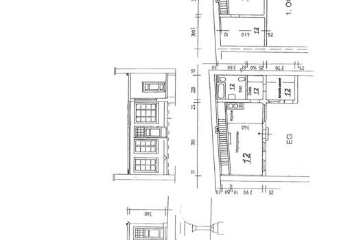
Im Hinterhof eines denkmalgeschützten Mehrfamilienhauses steht ein Hofgebäude/Einheit Nr. 12 mit ca. 52 m² Grundfläche, zum Verkauf.
Das Gebäude wurde bisher als Lagerraum genutzt und ist bereits freigestellt. Daher kann es sofort zu einer 2 Zimmer-Eigentumswohnung Nr. 12, wie in der Teilungserklärung ausgewiesen, ausgebaut werden.
Eine Nutzungsänderung sowie eine Baugenehmigung mit aktuellen Ausbauplänen vom Architekten liegen bereits vor. Individuelle Wünsche können noch berücksichtigt werden.
Das denkmalgeschützte Mehrfamilienhaus wurde in den letzten Jahren stets modernisiert und auf einen modernen technischen Stand gebracht:
- 1998/1999 komplett saniert und restauriert: Aufzug eingebaut
- 2018 Fassade zum Innenhof angelegt, Balkone renoviert
- 2018 Dacherneuerung zum Teil und 2 Feuertreppen montiert
- 2025 Sanierungsmaßnahmen in Gewölbekeller Nr. 13
- 2025 Sanierung der 2 Dachgeschoss-Gaupen
- 2026 Hofsanierung (Beginn voraussichtlich ab Februar)
Das Gebäude wurde bisher als Lagerraum genutzt und ist bereits freigestellt. Daher kann es sofort zu einer 2 Zimmer-Eigentumswohnung Nr. 12, wie in der Teilungserklärung ausgewiesen, ausgebaut werden.
Eine Nutzungsänderung sowie eine Baugenehmigung mit aktuellen Ausbauplänen vom Architekten liegen bereits vor. Individuelle Wünsche können noch berücksichtigt werden.
Das denkmalgeschützte Mehrfamilienhaus wurde in den letzten Jahren stets modernisiert und auf einen modernen technischen Stand gebracht:
- 1998/1999 komplett saniert und restauriert: Aufzug eingebaut
- 2018 Fassade zum Innenhof angelegt, Balkone renoviert
- 2018 Dacherneuerung zum Teil und 2 Feuertreppen montiert
- 2025 Sanierungsmaßnahmen in Gewölbekeller Nr. 13
- 2025 Sanierung der 2 Dachgeschoss-Gaupen
- 2026 Hofsanierung (Beginn voraussichtlich ab Februar)
Ausstattungsmerkmale
| Inserat befindet sich im Stockwerk | 0 |
| Boden | Dielen |
| Terrassen | 0 |
Der Lagerraum bzw. das Hofgebäude ist mit Holz-Dielenboden versehen. Die Wände und Decken sind nicht verputzt. Das Dach des Hofgebäudes wurde 2009 erneuert.
Das Gebäude befindet sich in einem Rohbauzustand und ist mit Strom jedoch ohne Heizung ausgestattet. Die Zu- und Ableitungen für Wasser sind im Boden des Innenhofs vorhanden.
Das Hausgeld beträgt aktuell ca. 258,- €/ Monat (ohne Heizung- und Wasserverbrauch).
Die vorhandene Baugenehmigung, beantragt durch Architekturbüro Lessing in Mainz, ist für eine 2 Zimmer-Wohnung mit großzügigem Wohn-/Esszimmer und ca. 10 m² Schlafbereich auf der zweiten Ebene, großes Bad mit Dusche sowie einen Abstellraum für die Technik (Wärmepumpe, Strom- und Wasserzähler) erteilt worden. Das Dach mit 2 Dachfenstern soll begrünt werden.
Hinweis: Im Kaufpreis sind die Kosten für die Baugenehmigung, die bisherige Planung des Architekten sowie die Sonderumlagen für Keller-, Gaupen- und Hofsanierung bereits enthalten.
Das Gebäude befindet sich in einem Rohbauzustand und ist mit Strom jedoch ohne Heizung ausgestattet. Die Zu- und Ableitungen für Wasser sind im Boden des Innenhofs vorhanden.
Das Hausgeld beträgt aktuell ca. 258,- €/ Monat (ohne Heizung- und Wasserverbrauch).
Die vorhandene Baugenehmigung, beantragt durch Architekturbüro Lessing in Mainz, ist für eine 2 Zimmer-Wohnung mit großzügigem Wohn-/Esszimmer und ca. 10 m² Schlafbereich auf der zweiten Ebene, großes Bad mit Dusche sowie einen Abstellraum für die Technik (Wärmepumpe, Strom- und Wasserzähler) erteilt worden. Das Dach mit 2 Dachfenstern soll begrünt werden.
Hinweis: Im Kaufpreis sind die Kosten für die Baugenehmigung, die bisherige Planung des Architekten sowie die Sonderumlagen für Keller-, Gaupen- und Hofsanierung bereits enthalten.
Sonstige Informationen
Überzeugen Sie sich vor Ort von den Vorteilen dieser interessanten Immobilie. Eine Besichtigung ist nach Rücksprache möglich.
Hinweis:
Sollten Sie Interesse an der o.g. Immobilie haben, dann hinterlassen Sie bitte bei Ihrer E-Mail-Anfrage Ihre Telefonnummer, damit wir direkt mit Ihnen Kontakt aufnehmen können.
Hinweis:
Sollten Sie Interesse an der o.g. Immobilie haben, dann hinterlassen Sie bitte bei Ihrer E-Mail-Anfrage Ihre Telefonnummer, damit wir direkt mit Ihnen Kontakt aufnehmen können.
Karte wird geladen...
Objektstandort
Adam-Karrillon-Straße 0
55118 Mainz
Lage & Infrastruktur
Objektstandort
Adam-Karrillon-Straße 0
55118 Mainz
Zentral und ruhig gelegen, direkte Nähe zum Hauptbahnhof und zum Rheinufer, alle Einkaufsmöglichkeiten im näheren Umfeld zu Fuß zu erreichen. Öffentliche Verkehrsmittel in unmittelbarer Nähe, gute BAB-Anschlussmöglichkeit in nur 3 km Entfernung.
Kontaktanfrage senden
Über den Anbieter
Villa Immobilien
Greiffenklaustraße 9
55116 Mainz
Kontakt
| Telefon | +49 6131 231427 |
| Website | www.villa-immobilien.de |
Ansprechpartner/in
Frau Dipl.-Ing.Ginka Gerster