3-Familienhaus in idyllischer Lage von Waldaschaff
569.000 €
Kaufpreis
272 m²
Wohnfläche
9
Zimmer
immobilien.de Nr.: 9465169
Objektnummer: 410582
Kaufpreis
| Kaufpreis | 569.000 € |
| Maklerprovision | keine Provision, courtagefrei |
Wohnfläche, Grundstück & Bausubstanz
| Wohnfläche | 272 m² |
| Grundstücksfläche | 350 m² |
| Zimmer | 9 |
| Baujahr | 1975 |
| Verfügbar ab | nach Absprache |
| Zustand | Gepflegt |
Energie
| Energieausweistyp | Verbrauch |
| Energieeffizienzklasse | D |
| Energieverbrauchkennwert | 100 kWh/(m²*a) |
| Heizungsart | Zentralheizung |
| Energieträger/Befeuerung | Gas |
Beschreibung der Immobilie
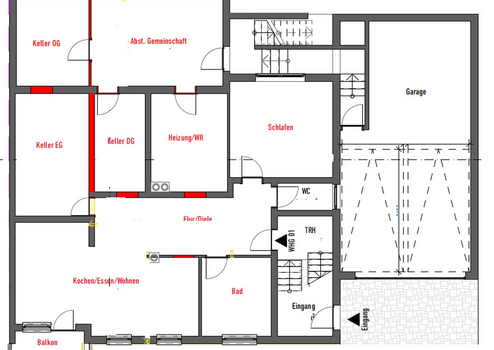
Dieses gepflegte 3-Familienhaus aus dem Jahr 1975 bietet auf einem ca. 350 m² großen Grundstück drei großzügige Wohneinheiten mit insgesamt rund 271 m² Wohnfläche. Das Erdgeschoss umfasst ca. 75 m² mit 2 Zimmern, das 1. Obergeschoss bietet ca. 113 m² mit 3 Zimmern und Balkon und direktem Zugang zum Garten. Das Dachgeschoss bietet eine ca. 83m² große 2 Zimmerwohnung. Für das Erd- und Obergeschoss steht jeweils ein Garagenstellplatz zur Verfügung. Zusätzlich werden zwei direkt angrenzende Grundstücke als Gartenland mitverkauft, die weiteren Raum für Freizeit, Gartenprojekte oder Privatsphäre bieten.
Ausstattungsmerkmale
| Anzahl der Etagen im Haus | 3 |
| Garage/Stellplätze | 2 |
Bemerkungen:
Die Beheizung erfolgt über eine moderne Gastherme aus dem Jahr 2020. Das Haus befindet sich insgesamt in einem gepflegten Zustand, größere Renovierungen sind derzeit nicht erforderlich. Ein Energieausweis liegt selbstverständlich vor.
Sonstige Informationen
Heizungsart: Zentralheizung
Energieträger: Gas
Makleranfragen nicht erwünscht. Nach § 7 UWG sind unaufgeforderte Kontaktaufnahmen durch Makler ohne ausdrückliche Einwilligung des Empfängers verboten!
ohne-makler (OM) ist weder Anbieter noch Vermittler der Immobilie. OM betreibt eine Plattform für Immobilieneigentümer, die unter anderem die gleichzeitige Veröffentlichung einzelner Inserate auf mehreren Immobilienportalen ermöglicht. Die Inhalte dieser Inserate werden ausschließlich von Dritten verantwortet. Für die Richtigkeit, Vollständigkeit oder Rechtmäßigkeit der Angaben übernimmt OM keine Haftung. Hinweise auf mögliche Rechtsverstöße können jederzeit gemeldet werden und werden nach Prüfung umgehend bearbeitet.
Energieträger: Gas
Makleranfragen nicht erwünscht. Nach § 7 UWG sind unaufgeforderte Kontaktaufnahmen durch Makler ohne ausdrückliche Einwilligung des Empfängers verboten!
ohne-makler (OM) ist weder Anbieter noch Vermittler der Immobilie. OM betreibt eine Plattform für Immobilieneigentümer, die unter anderem die gleichzeitige Veröffentlichung einzelner Inserate auf mehreren Immobilienportalen ermöglicht. Die Inhalte dieser Inserate werden ausschließlich von Dritten verantwortet. Für die Richtigkeit, Vollständigkeit oder Rechtmäßigkeit der Angaben übernimmt OM keine Haftung. Hinweise auf mögliche Rechtsverstöße können jederzeit gemeldet werden und werden nach Prüfung umgehend bearbeitet.
Karte wird geladen...
Objektstandort
63857 Waldaschaff
- Bayern
Lage & Infrastruktur
Objektstandort
63857 Waldaschaff
- Bayern
Das Haus befindet sich in ruhiger und naturnaher Lage von Waldaschaff, in unmittelbarer Nähe zu Schulen, Kindergärten und Einkaufsmöglichkeiten. Die Verkehrsanbindung ist hervorragend – Bus, Bahn und Autobahn sind gut erreichbar. Die Umgebung lädt zu Freizeitaktivitäten im Grünen ein, sei es Spaziergänge im nahegelegenen Wald, Sportmöglichkeiten oder Vereinstätigkeiten.
Kontaktanfrage senden
Kontakt
| Telefon | 0151 12380070 |
| Fax | - |
| Website | www.ohne-makler.net |
Ansprechpartner/in
Angebot von Emily Stock