Familienfreundliche Wohnlage !

66693 Mettlach
Frei ab: nach Vereinbarung
410.000 € Kaufpreis
Grundstücksfläche
700 m²

Kaufpreis

Kaufpreis 410.000 €

Wohnfläche, Grundstück & Bausubstanz

Grundstücksfläche700 m²
Baujahr2026
Verfügbar ab nach Vereinbarung

Beschreibung der Immobilie

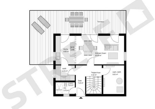
Das behagliche Family-Haus mit Satteldach punktet mit einem gut durchdachten Grundriss. Der offen gestaltete Wohn-/Ess- und Kochbereich ist lichtdurchflutet. Ein praktischer Hauswirtschaftsraum ist direkt neben der Küche platziert. Komplettiert wird das Raumangebot im Erdgeschoss mit einem Gäste-WC, das optional auch als Duschbad ausgeführt werden kann, einer Diele und einem Haustechnikraum.
Im Dachgeschoss des Hauses sind zwei schöne Kinderzimmer, ein Elternschlafzimmer, ein Flur und ein Familienbad untergebracht. Die Lage der Treppe und des Haustechnikraumes sind fixiert.
Objektart: Einfamilienhaus, 1,5-geschossig
Dachform: Satteldach
Kniestock: 0,75m variabel

Ausstattungsmerkmale

Bei uns übernehmen Sie die vereinbarte Leistung immer in garantiert einwandfreiem Zustand, auf Wunsch auch gerne mit zusätzlicher, Bauherren seitiger Abnahme. Unsere Bauleiter stellen die einwandfreie Erstellung sicher und erläutern bei der Übergabe gerne alle relevanten Funktionen und Vorteile, damit Sie auf sehr lange Sicht sorgenfrei wohnen werden.

STREIF-Häuser sind Energiesparhäuser. Die STREIF-Passiv-Außenwände und eine sparsame Heiztechnik mit integrierter Wohnraumlüftung und Wärmerückgewinnung, garantieren einen geringen Energieverbrauch und ein fantastisches Raumklima, das insbesondere Allergiker aufatmen lässt.

STREIF Leistungen sind MEHR WERT - schon im Grundpreis enthalten!

- 16-monatige Festpreisgarantie

- Energieeffizienzhaus KfW 40 EE im Standard

- Inkl. individuelle Grundrissgestaltung und Raumaufteilung

- Inkl. Fundamentplatte

- Inkl. STREIF-Luft-Luft-Wärmepumpe mit integrierter

Lüftungsanlage mit Wärmerückgewinnung

- Inkl. Haustür von KERA und Fenster von Porta/Kömmerling

- Inkl. Massivholz-Geschosstreppe aus eigener Produktion

- Inkl. Sanitärobjekte von Markenherstellern

- Inkl. Elektroinstallation

- Inkl. Baubetreuung u.v.m.

Die hohe Wertigkeit und Langlebigkeit eines STREIF-Energiespar-Hauses wird durch zahlreiche Auszeichnungen, Qualitäts- und Gütesiegel unabhängiger Institute und Verbände dokumentiert.

Der Angebotspreis ist inklusive Grundstück und bezieht sich auf die Standard-Ausbaustufe Fast-Fertig-Plus. Ihre Eigenleistungen: Spachtel-,Tapezier- und Malerarbeiten, Bodenbeläge, Innentüren.

Baunebenkosten fallen zuzüglich an.

Der Verkauf des Grundstücks erfolgt über einen unserer Netzwerkpartner.

Bilder können evtl. Anbauteile, Carports, Balkone, Gauben usw. zeigen, die nicht im Angebotspreis enthalten sind. Änderungen und Irrtümer vorbehalten.

Thomas Heitz 0160 7038141 oder thomas.heitz@streif.de

Energie

A+
Energieeffizienzklasse A+ · 33.00 kWh/(m²*a)
EnergieausweistypVerbrauch
Baujahr (laut Energieausweis)2026
EnergieeffizienzklasseA+
Energieverbrauchkennwert33.00 kWh/(m²*a)

Karte wird geladen...
66693 Mettlach

Lage & Infrastruktur

Das Grundstück liegt in guter Wohnlage in Saarhölzbach.
Das Haus ist auf einem realen Baugrundstück geplant oder auf einem Grundstück in einer Planungsphase. Das Grundstück erwerben Sie über den beauftragten Immobilienmakler direkt vom Eigentümer. Der Preis des Grundstücks ist im Angebotspreis bereits eingerechnet.

Bitte haben Sie Verständnis dafür, dass wir ohne ein persönliches Gespräch keine Grundstücksdaten weiterleiten können.

Gern sind wir bei der Wahl Ihres Traumgrundstückes behilflich!

Natürlich können wir ihren Haustraum auch auf einem anderen Grundstück realisieren, lassen Sie sich dazu in einem unverbindlichen Gespräch zu Ihrem Bauvorhaben beraten.

Thomas Heitz 0160 7038141 oder thomas.heitz@streif.de

Sonstige Informationen

Modernstes Heizsystem !

Heizen, Lüften und Warmwasser mit einem System

- STREIF-Luft-Luft-Wärmepumpen-Technologe (Basissystem), mit bis zu 85 Prozent Wärmerückgewinnung

- Integrierte Be- und Entlüftungsanlage

- Separate Trinkwasserwärmepumpe mit 300 L Warmwasserspeicher

- G4-Frischluftfilter zur Reduzierung von Staub und Pollen

Vorteile:

- Keine störenden Heizkörper

- Keine fossilen Brennstoffe wie Öl und Gas

- Kein Gasanschluss, kein Öl- oder Pelletslager

- Keine Erdbohrung

Thomas Heitz 0160 7038141 oder thomas.heitz@streif.de
Ansprechpartner/in: Herr Thomas Heitz
STREIF Haus GmbH
Josef-Streif-Straße 1, 54595 Weinsheim