Von privat: 425 m² Freiheit in Mainz – Wohnen & Arbeiten mit uneinsehbarem Garten
1.290.000 €
Kaufpreis
425 m²
Wohnfläche
13
Zimmer
immobilien.de Nr.: 9464952
Objektnummer: 328059
Dateien
Kaufpreis
| Kaufpreis | 1.290.000 € |
| Maklerprovision | keine Provision, courtagefrei |
Wohnfläche, Grundstück & Bausubstanz
| Wohnfläche | 425 m² |
| Grundstücksfläche | 924 m² |
| Zimmer | 13 |
| Baujahr | 1945 |
| Verfügbar ab | nach Absprache |
| Zustand | Teil Vollrenoviert |
Energie
| Heizungsart | Zentralheizung |
| Energieträger/Befeuerung | Öl |
Beschreibung der Immobilie
Dieses gepflegte und laufend modernisierte Gebäudeensemble auf einem ca. 924 m² großen Grundstück, vereint modernen Wohnkomfort, attraktive Gewerbefläche und ein flexibles Raumkonzept. Das Objekt besteht aus drei Einheiten – zwei Doppelhaushälften und einem Hinterhaus. Die ruhige und dennoch gut angebundene Lage in Mainz macht dieses Anwesen besonders attraktiv für private und gewerbliche Nutzung.
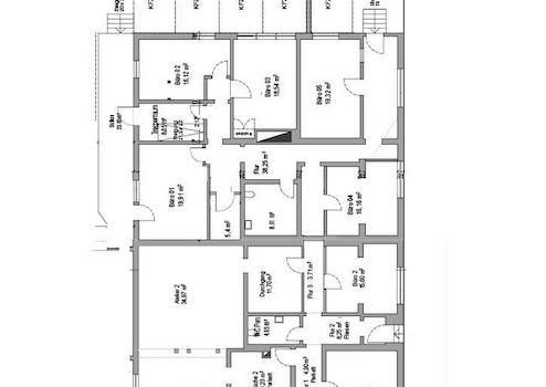
Praxis (Osteopathie) im Erdgeschoss – 146,93 m²
Aktuell an eine Praxis vermietet, bietet diese Einheit moderne Behandlungsräume und vielseitige Nutzungsoptionen:
• 4 Behandlungsräume
• Große Holzterrasse
• Küche/Büro
• Bad/WC sowie Gäste-WC
• Diele/Empfangsbereich
Die Kaltmiete für diese Einheit beträgt derzeit 1.695 €/Monat.
Wohn-/Gewerbeeinheit – 163,78 m²
Diese kombinierte Wohn- und Gewerbefläche bietet eine großzügige Raumaufteilung und direkten Zugang zu einem uneinsehbaren Garten:
• 2 komfortable Zimmer
• Ein großes lichtdurchflutetes Studio (63,57 m²)
• Privatgarten mit Holzterrasse
• Moderne Küche
• Hauptbad und zusätzliches Duschbad/Gäste-WC
• Praktisches Durchgangszimmer
Hinterhaus auf zwei Etagen – aktuell frei ca. 125 m²
Ob zur Selbstnutzung als privater Wohnbereich, Praxis, Büro oder Atelier – dieses separate Gebäude bietet maximale Freiheit:
• 1. OG: 3 helle Räume, Küche, Bad/WC, Diele
• Dachgeschoss: Ein großzügiges Studio, Nebenraum und Gäste-WC
Highlights:
✓ Ausbaureserve von ca. 200 m² im Dachgeschoss
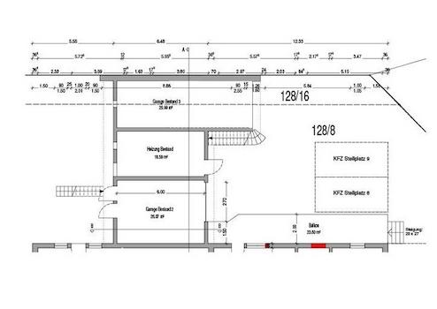
✓ 7 Außenstellplätze, 2 Einzelgaragen, 1 Doppelgarage
✓ Mögliche Mieteinnahmen: ca. 70.000 €/Jahr
✓ Laufend modernisiert, zuletzt 2023
✓ Ruhige Lage mit perfekter Anbindung an Mainz-City & Autobahn
✓ Uneinsehbarer Garten
Fazit:
Ideal für Mehrgenerationenwohnen oder Selbstnutzer, die
Wohnen, Arbeiten und Rendite kombinieren möchten.
Praxis (Osteopathie) im Erdgeschoss – 146,93 m²
Aktuell an eine Praxis vermietet, bietet diese Einheit moderne Behandlungsräume und vielseitige Nutzungsoptionen:
• 4 Behandlungsräume
• Große Holzterrasse
• Küche/Büro
• Bad/WC sowie Gäste-WC
• Diele/Empfangsbereich
Die Kaltmiete für diese Einheit beträgt derzeit 1.695 €/Monat.
Wohn-/Gewerbeeinheit – 163,78 m²
Diese kombinierte Wohn- und Gewerbefläche bietet eine großzügige Raumaufteilung und direkten Zugang zu einem uneinsehbaren Garten:
• 2 komfortable Zimmer
• Ein großes lichtdurchflutetes Studio (63,57 m²)
• Privatgarten mit Holzterrasse
• Moderne Küche
• Hauptbad und zusätzliches Duschbad/Gäste-WC
• Praktisches Durchgangszimmer
Hinterhaus auf zwei Etagen – aktuell frei ca. 125 m²
Ob zur Selbstnutzung als privater Wohnbereich, Praxis, Büro oder Atelier – dieses separate Gebäude bietet maximale Freiheit:
• 1. OG: 3 helle Räume, Küche, Bad/WC, Diele
• Dachgeschoss: Ein großzügiges Studio, Nebenraum und Gäste-WC
Highlights:
✓ Ausbaureserve von ca. 200 m² im Dachgeschoss
✓ 7 Außenstellplätze, 2 Einzelgaragen, 1 Doppelgarage
✓ Mögliche Mieteinnahmen: ca. 70.000 €/Jahr
✓ Laufend modernisiert, zuletzt 2023
✓ Ruhige Lage mit perfekter Anbindung an Mainz-City & Autobahn
✓ Uneinsehbarer Garten
Fazit:
Ideal für Mehrgenerationenwohnen oder Selbstnutzer, die
Wohnen, Arbeiten und Rendite kombinieren möchten.
Ausstattungsmerkmale
| Anzahl der Etagen im Haus | 2 |
| Küche | Einbauküche |
| Bad | Dusche, Wanne |
| Boden | Fliesen, Parkett, Laminat |
| Balkone | 0 |
| Garten | |
| Terrassen | 1 |
| Barrierefrei | |
| Garage/Stellplätze | 3 |
Terrasse, Garten, Vollbad, Duschbad, Einbauküche, Gäste-WC, Barrierefrei, Parkett, Laminat, Fliesen
Sonstige Informationen
Heizungsart: Zentralheizung
Energieträger: Öl
Energieausweis nicht vorhanden
Da zwei Energieausweise vorliegen, sind diese als PDF einsehbar.
ohne-makler (OM) ist weder Anbieter noch Vermittler der Immobilie. OM betreibt eine Plattform für Immobilieneigentümer, die unter anderem die gleichzeitige Veröffentlichung einzelner Inserate auf mehreren Immobilienportalen ermöglicht. Die Inhalte dieser Inserate werden ausschließlich von Dritten verantwortet. Für die Richtigkeit, Vollständigkeit oder Rechtmäßigkeit der Angaben übernimmt OM keine Haftung. Hinweise auf mögliche Rechtsverstöße können jederzeit gemeldet werden und werden nach Prüfung umgehend bearbeitet.
Energieträger: Öl
Energieausweis nicht vorhanden
Da zwei Energieausweise vorliegen, sind diese als PDF einsehbar.
ohne-makler (OM) ist weder Anbieter noch Vermittler der Immobilie. OM betreibt eine Plattform für Immobilieneigentümer, die unter anderem die gleichzeitige Veröffentlichung einzelner Inserate auf mehreren Immobilienportalen ermöglicht. Die Inhalte dieser Inserate werden ausschließlich von Dritten verantwortet. Für die Richtigkeit, Vollständigkeit oder Rechtmäßigkeit der Angaben übernimmt OM keine Haftung. Hinweise auf mögliche Rechtsverstöße können jederzeit gemeldet werden und werden nach Prüfung umgehend bearbeitet.
Karte wird geladen...
Objektstandort
55120 Mainz
- Rheinland-Pfalz
Lage & Infrastruktur
Objektstandort
55120 Mainz
- Rheinland-Pfalz
Das angebotene Objekt befindet sich im charmanten Stadtteil Mainz-Mombach, einem lebendigen Teil der rheinland-pfälzischen Landeshauptstadt. Mombach zeichnet sich durch seine ideale Anbindung an die Mainzer Innenstadt (10 Minuten) und das gesamte Rhein-Main-Gebiet aus. Mit der Autobahn A643 in unmittelbarer Nähe sind die A60 und A66 schnell erreichbar, wodurch Wiesbaden, Frankfurt, Darmstadt sowie der Frankfurter Flughafen gut angebunden sind. Der Stadtteil verfügt zudem über einen eigenen Bahnhof, Straßenbahnlinien und eine Vielzahl von Busverbindungen. Das Objekt liegt in einem Mischgebiet, das Gewerbe- und gepflegtes Wohngebiet auf harmonische Weise verbindet. Alle notwendigen Einkaufsmöglichkeiten, Ärzte, Apotheken, Kitas und Schulen sind fußläufig erreichbar, genau wie das Naturschutzgebiet „Mainzer Sand“, mehrere Sportanlagen sowie ein Frei- und Hallenbad.
Infrastruktur (im Umkreis von 5 km):
Apotheke, Lebensmittel-Discount, Allgemeinmediziner, Kindergarten, Grundschule, Hauptschule, Realschule, Gymnasium, Gesamtschule, Öffentliche Verkehrsmittel
Infrastruktur (im Umkreis von 5 km):
Apotheke, Lebensmittel-Discount, Allgemeinmediziner, Kindergarten, Grundschule, Hauptschule, Realschule, Gymnasium, Gesamtschule, Öffentliche Verkehrsmittel