Bungalow von STREIF Haus - Grundstücksservice bekommen Sie auch.
659.300 €
Kaufpreis
108 m²
Wohnfläche
3
Zimmer
immobilien.de Nr.: 9464924
Objektnummer: JW-Ott-7-Aktion-Bungalow-5
Kaufpreis
| Kaufpreis | 659.300 € |
Wohnfläche, Grundstück & Bausubstanz
| Wohnfläche | 108 m² |
| Grundstücksfläche | 699 m² |
| Zimmer | 3 |
| Verfügbar ab | keine Angabe |
| Zustand | Projektiert |
Energie
| Energietyp | Niedrigenergie |
| Energieträger/Befeuerung | Luft-Wärme-Pumpe |
Beschreibung der Immobilie
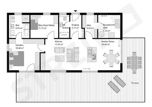
Der Bungalow zeichnet sich durch eine klassische Hausarchitektur mit Walmdach
aus. Die Räume sind lichterfüllt geplant. Die Grundrissgestaltung ist mit ca. 107,43 m² Netto-
Raumfläche für Singles, Paare oder eine Kleinfamilie mit einem Kind geeignet. Bauartbedingt
bringt der Bungalow einen Mehrwert in Sachen Wohnkomfort mit. Der Wohn-/Ess- und
Kochbereich ist auf 43,95 m² großzügig angelegt. Ein großes Schlafzimmer mit viel Platz, ein
weiterer Raum, der als Kinderzimmer/Büro oder Hobby-/Gästebereich vorgesehen ist, ein
Gäste-WC sowie ein Haustechnik-/Hauswirtschaftsraum runden das Raumangebot ab. Eine
Garage kann optional ausgeführt werden.
Objektart: Bungalow, 1-geschossig
Hausmaße: 15,58 m x 8,08 m
Netto-Raumfläche: 107,43 m²
aus. Die Räume sind lichterfüllt geplant. Die Grundrissgestaltung ist mit ca. 107,43 m² Netto-
Raumfläche für Singles, Paare oder eine Kleinfamilie mit einem Kind geeignet. Bauartbedingt
bringt der Bungalow einen Mehrwert in Sachen Wohnkomfort mit. Der Wohn-/Ess- und
Kochbereich ist auf 43,95 m² großzügig angelegt. Ein großes Schlafzimmer mit viel Platz, ein
weiterer Raum, der als Kinderzimmer/Büro oder Hobby-/Gästebereich vorgesehen ist, ein
Gäste-WC sowie ein Haustechnik-/Hauswirtschaftsraum runden das Raumangebot ab. Eine
Garage kann optional ausgeführt werden.
Objektart: Bungalow, 1-geschossig
Hausmaße: 15,58 m x 8,08 m
Netto-Raumfläche: 107,43 m²
Ausstattungsmerkmale
| Anzahl der Etagen im Haus | 1 |
| Küche | Offene Küche |
| Bad | 2 |
| Bad | Dusche, Wanne, Fenster |
| Barrierefrei |
Das Streif Haus wird im Standard KFW 40 PLUS ausgeführt. KfW Effizienshaus inkl. Haustechnik aus dem STREIF-Programm in der Ausbaustufe FF+ inklusive einer gedämmten Fundamentplatte.
■ Rohbau (geschlossene Gebäudehülle) mit Fenstern, Haustür, Dacheindeckung
■ Außenfassade inkl. Außenputz, vor Ort komplett fertiggestellt
■ Komplette Blechner-/Spenglerarbeiten
■ lnnen-/Außenwände wärme- und schallgedämmt und mit Gipsfaserplatten geschlossen
■ Geschosstreppe (außer Bungalow)
■ Decken wärme- und schallgedämmt und mit Gipskarton Bauplatten geschlossen
■ Elektroinstallation, einschließlich erforderlichem Zählerschrank und Inbetriebnahme
■ Heizungsanlage inkl. Inbetriebnahme
■ Innenfensterbänke Kunststeinbänke (Gussmarmorbänke) inkl. Einbau
■ Estrich
■ Sanitärräume mit Wand- und Bodenfliesen
■ Sanitärräume mit Sanitärobjekten
■ 6,23 kWp Photovoltaikanlage und 7,7 kWh Speicher
Die Innentüren sowie Wand-, Decken- und Bodenbeläge der übrigen Räume sind Eigenleistungen des Bauherren.
STREIF Frischluft-Wärmepumpen-Technologie - inklusive
- Heizen mit frischer Außenluft
- Kein Gasanschluss, kein Öl- oder Pelletlagerraum
- Keine Heizkörper
- Wärmetauscher mit bis zu 85% Wärmerückgewinnung
Die dargestellten Bilder können Sonderausstattungen beinhalten, die nicht im Preis enthalten sind!
zzgl. Ortüblicher Baunebenkosten
Selbstverständlich können wir Ihr Haus auch schlüsselfertig / bezugsfertig errichten.
■ Bodenbeläge, Sockelleisten verlegt
■ Maler- und Tapezierarbeiten
■ Innentüren inkl. Einbau
■ Rohbau (geschlossene Gebäudehülle) mit Fenstern, Haustür, Dacheindeckung
■ Außenfassade inkl. Außenputz, vor Ort komplett fertiggestellt
■ Komplette Blechner-/Spenglerarbeiten
■ lnnen-/Außenwände wärme- und schallgedämmt und mit Gipsfaserplatten geschlossen
■ Geschosstreppe (außer Bungalow)
■ Decken wärme- und schallgedämmt und mit Gipskarton Bauplatten geschlossen
■ Elektroinstallation, einschließlich erforderlichem Zählerschrank und Inbetriebnahme
■ Heizungsanlage inkl. Inbetriebnahme
■ Innenfensterbänke Kunststeinbänke (Gussmarmorbänke) inkl. Einbau
■ Estrich
■ Sanitärräume mit Wand- und Bodenfliesen
■ Sanitärräume mit Sanitärobjekten
■ 6,23 kWp Photovoltaikanlage und 7,7 kWh Speicher
Die Innentüren sowie Wand-, Decken- und Bodenbeläge der übrigen Räume sind Eigenleistungen des Bauherren.
STREIF Frischluft-Wärmepumpen-Technologie - inklusive
- Heizen mit frischer Außenluft
- Kein Gasanschluss, kein Öl- oder Pelletlagerraum
- Keine Heizkörper
- Wärmetauscher mit bis zu 85% Wärmerückgewinnung
Die dargestellten Bilder können Sonderausstattungen beinhalten, die nicht im Preis enthalten sind!
zzgl. Ortüblicher Baunebenkosten
Selbstverständlich können wir Ihr Haus auch schlüsselfertig / bezugsfertig errichten.
■ Bodenbeläge, Sockelleisten verlegt
■ Maler- und Tapezierarbeiten
■ Innentüren inkl. Einbau
Sonstige Informationen
STREIF Haus - der Pionier der deutschen Fertighausbranche
Die langjährige Firmentradition des Unternehmens reicht bis in das Jahr 1929 zurück. In den 50er und 60er Jahren wurde in Deutschland schnell und viel Wohnraum für Familien benötigt, seitdem konzentrierte sich das Unternehmen auf die Entwicklung und Produktion von Fertighaustypen, die im Werk in großen Stückzahlen hergestellt werden konnten. So kann das Unternehmen auf 90.000 gebaute Hausobjekte zurückblicken und sich zu Recht als Pionier der deutschen Fertighausbranche bezeichnen.
Die neuen Energiesparhäuser - So baut man heute.
Unser Anspruch ist es, in enger Partnerschaft mit unseren Kunden langlebige Häuser zu bauen, mit einer hohen architektonischen Qualität, individuell geplant und dabei energieeffizient und ressourcenschonend. Jedes STREIF-Haus ist einzigartig und wird speziell für jeden Kunden "maßgeschneidert" und gebaut. Passend zu den persönlichen Wünschen, dem vorgegebenen Budget und dem vorhandenen Grundstück planen und bauen wir jedes Haus mit viel Liebe zum Detail.
Die langjährige Firmentradition des Unternehmens reicht bis in das Jahr 1929 zurück. In den 50er und 60er Jahren wurde in Deutschland schnell und viel Wohnraum für Familien benötigt, seitdem konzentrierte sich das Unternehmen auf die Entwicklung und Produktion von Fertighaustypen, die im Werk in großen Stückzahlen hergestellt werden konnten. So kann das Unternehmen auf 90.000 gebaute Hausobjekte zurückblicken und sich zu Recht als Pionier der deutschen Fertighausbranche bezeichnen.
Die neuen Energiesparhäuser - So baut man heute.
Unser Anspruch ist es, in enger Partnerschaft mit unseren Kunden langlebige Häuser zu bauen, mit einer hohen architektonischen Qualität, individuell geplant und dabei energieeffizient und ressourcenschonend. Jedes STREIF-Haus ist einzigartig und wird speziell für jeden Kunden "maßgeschneidert" und gebaut. Passend zu den persönlichen Wünschen, dem vorgegebenen Budget und dem vorhandenen Grundstück planen und bauen wir jedes Haus mit viel Liebe zum Detail.
Karte wird geladen...
Objektstandort
15366 Hoppegarten
Lage & Infrastruktur
Objektstandort
15366 Hoppegarten
Unsere Grundstücke befinden sich in ausgewählten, attraktiven Lagen und erfüllen höchste Ansprüche an Lebensqualität und Wertbeständigkeit.
Aus Diskretions- und Datenschutzgründen bitten wir um Verständnis, dass Grundstücksdaten ausschließlich im Rahmen eines persönlichen Beratungstermins und ausschließlich für unsere Kunden weitergegeben werden.
Aus Diskretions- und Datenschutzgründen bitten wir um Verständnis, dass Grundstücksdaten ausschließlich im Rahmen eines persönlichen Beratungstermins und ausschließlich für unsere Kunden weitergegeben werden.
Kontaktanfrage senden
Über den Anbieter
STREIF Haus GmbH
Josef-Streif-Straße 1
54595 Weinsheim
Kontakt
| Telefon | +49 30 67390424 |
| Mobil | +49 172 1588519 |
| Website | www.streif.de |
Ansprechpartner/in
Herr Andreas Ott