Exklusive 3-Zimmer Wohnung im Güntzel-Kiez
450.000 €
Kaufpreis
70,5 m²
Wohnfläche
3
Zimmer
immobilien.de Nr.: 9464496
Objektnummer: 426158
Kaufpreis
| Kaufpreis | 450.000 € |
| Hausgeld | 394 € |
| Maklerprovision | keine Provision, courtagefrei |
Wohnfläche, Grundstück & Bausubstanz
| Wohnfläche | 70,5 m² |
| Zimmer | 3 |
| Baujahr | 1904 |
| Verfügbar ab | 15.06.2026 |
| Zustand | Gepflegt |
Energie
| Energieausweistyp | Bedarfsausweis |
| Energieeffizienzklasse | C |
| Endenergiebedarf | 121 |
| Heizungsart | Zentralheizung |
| Energieträger/Befeuerung | Fernwärme |
Beschreibung der Immobilie
Diese attraktive ruhige 3-Zimmer-Wohnung mit ca. 70,5m² Wohnfläche befindet sich im 3. Obergeschoss im Gartenhaus eines gepflegten Altbau-Mehrfamilienhauses mit insgesamt 5 Etagen in Berlin-Wilmersdorf unweit der Güntzelstraße.
Die Wohnung besticht durch eine gehobene Innenausstattung mit Kastenfenstern, antiken Türen und Beschlägen, sowie Fischgräten-Parkett im Wohnbereich, Terrakotta-Fliesen in der Küche und hellen Steinfliesen im Bad. Die Deckenhöhe beträgt 3,20 m.
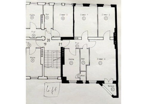
Die Ausrichtung der Wohnung ist in einer Ost/West Achse. Das Schlaf- und Wohnzimmer zeigen nach Westen, Die Küche, das Bad und das Balkonzimmer zeigen nach Osten.
Zudem verfügt sie über einen ruhigen Balkon zum Hof, der zum Entspannen einlädt. Der Balkon bekommt Mittags Sonne und hat Sicht auf den Baum, den Fahrstuhl und die Hauswand gegenüber.
Die Wohnung ist mit einer geölten Vollholz-Einbauküche mit Granit-Stein Spüle ausgestattet, die natürlichen Charme und Wärme ausstrahlt.
Die Wohnung wurde im Jahre 2010 voll saniert. Sämtliche Fenster und Türen wurden instand gesetzt. Im Bad und in der Küche wurden die Holz-Fenster mit neuen Kunststoff Isolier-Fenster ersetzt.
Ein Aufzug erleichtert den Zugang zu allen Zwischen-Etagen. Zur Wohnung hin verbleiben 11 Stufen Treppe.
Ein trockenes, beleuchtetes Kellerabteil bietet zusätzlichen Stauraum. Auch eine Steckdose ist dort installiert, zum Beispiel zum Laden von Fahrrad Akkus.
Der Altbau aus dem Jahre 1904 wurde seit 2008 sorgsam vollsaniert. Unter anderem wurde das Dachgeschoss ausgebaut, der Fahrstuhl im Gartenhaus eingebaut, die Steigleitungen erneuert und die Nordwand-Fassade von außen gedämmt.
Mit dieser Top-Wohnung investieren Sie überlegt in Ihre Zukunft, schaffen sich ein angenehmes Zuhause, können sich unabhängig von Vermietern frei entfalten und bekommen eine Immobilie, die sich sehen lassen kann.
Die Wohnung besticht durch eine gehobene Innenausstattung mit Kastenfenstern, antiken Türen und Beschlägen, sowie Fischgräten-Parkett im Wohnbereich, Terrakotta-Fliesen in der Küche und hellen Steinfliesen im Bad. Die Deckenhöhe beträgt 3,20 m.
Die Ausrichtung der Wohnung ist in einer Ost/West Achse. Das Schlaf- und Wohnzimmer zeigen nach Westen, Die Küche, das Bad und das Balkonzimmer zeigen nach Osten.
Zudem verfügt sie über einen ruhigen Balkon zum Hof, der zum Entspannen einlädt. Der Balkon bekommt Mittags Sonne und hat Sicht auf den Baum, den Fahrstuhl und die Hauswand gegenüber.
Die Wohnung ist mit einer geölten Vollholz-Einbauküche mit Granit-Stein Spüle ausgestattet, die natürlichen Charme und Wärme ausstrahlt.
Die Wohnung wurde im Jahre 2010 voll saniert. Sämtliche Fenster und Türen wurden instand gesetzt. Im Bad und in der Küche wurden die Holz-Fenster mit neuen Kunststoff Isolier-Fenster ersetzt.
Ein Aufzug erleichtert den Zugang zu allen Zwischen-Etagen. Zur Wohnung hin verbleiben 11 Stufen Treppe.
Ein trockenes, beleuchtetes Kellerabteil bietet zusätzlichen Stauraum. Auch eine Steckdose ist dort installiert, zum Beispiel zum Laden von Fahrrad Akkus.
Der Altbau aus dem Jahre 1904 wurde seit 2008 sorgsam vollsaniert. Unter anderem wurde das Dachgeschoss ausgebaut, der Fahrstuhl im Gartenhaus eingebaut, die Steigleitungen erneuert und die Nordwand-Fassade von außen gedämmt.
Mit dieser Top-Wohnung investieren Sie überlegt in Ihre Zukunft, schaffen sich ein angenehmes Zuhause, können sich unabhängig von Vermietern frei entfalten und bekommen eine Immobilie, die sich sehen lassen kann.
Ausstattungsmerkmale
| Anzahl der Etagen im Haus | 5 |
| Inserat befindet sich im Stockwerk | 3 |
| Küche | Einbauküche |
| Bad | 1 |
| Bad | Wanne |
| Boden | Fliesen, Parkett |
| Balkone | 1 |
| Terrassen | 0 |
| Fahrstuhl | |
| Keller |
Balkon, Keller, Fahrstuhl, Vollbad, Einbauküche, Parkett, Fliesen
Bemerkungen:
Die Tür zum Balkonzimmer zum Flur ist im Augenblick nicht im Gebrauch, lagert aber geschützt im Keller.
Bemerkungen:
Die Tür zum Balkonzimmer zum Flur ist im Augenblick nicht im Gebrauch, lagert aber geschützt im Keller.
Sonstige Informationen
Heizungsart: Zentralheizung
Energieträger: Fernwärme
ohne-makler (OM) ist weder Anbieter noch Vermittler der Immobilie. OM betreibt eine Plattform für Immobilieneigentümer, die unter anderem die gleichzeitige Veröffentlichung einzelner Inserate auf mehreren Immobilienportalen ermöglicht. Die Inhalte dieser Inserate werden ausschließlich von Dritten verantwortet. Für die Richtigkeit, Vollständigkeit oder Rechtmäßigkeit der Angaben übernimmt OM keine Haftung. Hinweise auf mögliche Rechtsverstöße können jederzeit gemeldet werden und werden nach Prüfung umgehend bearbeitet.
Energieträger: Fernwärme
ohne-makler (OM) ist weder Anbieter noch Vermittler der Immobilie. OM betreibt eine Plattform für Immobilieneigentümer, die unter anderem die gleichzeitige Veröffentlichung einzelner Inserate auf mehreren Immobilienportalen ermöglicht. Die Inhalte dieser Inserate werden ausschließlich von Dritten verantwortet. Für die Richtigkeit, Vollständigkeit oder Rechtmäßigkeit der Angaben übernimmt OM keine Haftung. Hinweise auf mögliche Rechtsverstöße können jederzeit gemeldet werden und werden nach Prüfung umgehend bearbeitet.
Karte wird geladen...
Objektstandort
10717 Berlin
- Berlin
Lage & Infrastruktur
Objektstandort
10717 Berlin
- Berlin
Die angebotene Wohnung befindet sich im begehrten Güntzel-Kiez, einem ruhigen, urbanen und exklusivem Stadtteil in Berlin, Charlottenburg-Wilmersdorf.
Die Gegend zeichnet sich durch prachtvolle Altbauten und einladende Grünanlagen und ihrer zugleich ruhigen und zentralen Lage aus.
Mit seiner gehobenen Infrastruktur bietet der Güntzel-Kiez eine ausgezeichnete Lebensqualität.
Die Güntzel -, Uhland - und Berliner Straße in unmittelbarer Nähe bieten Einkaufsmöglichkeiten für den Alltag sowie hochwertige Feinkostläden und exklusive Boutiquen. Diverse etablierte Cafés und Restaurants sorgen für eine gediegene Atmosphäre und laden zum Verweilen ein.
Der Güntzel-Kiez ist ein ideal angebundener, urbaner Wohnstandort. Er bietet eine exzellente Anbindung durch die U-Bahn-Linien U3, U7 und U9 und den Buslinien 101 und 249 sowie eine schnelle Zufahrt zur Stadtautobahn (A100).
Der Kurfürstendamm ist fußläufig erreichbar.
In kurzer Fußdistanz von der Wohnung befinden sich der Wilmersdorfer Volkspark, der Nikolsburger Platz und der Prager Platz mit Spielplätzen, Springbrunnen und altem Baumbestand. Auch finden sich in der Gegend reichlich Schulen und Kindergärten, was die Gegend zu einem idealen Wohnort für Familien macht.
Berufstätige schätzen ebenfalls die lebendige und dennoch sichere Atmosphäre des Viertels, besonders mit einer so ruhig gelegenen Wohnung.
Infrastruktur (im Umkreis von 5 km):
Apotheke, Lebensmittel-Discount, Allgemeinmediziner, Kindergarten, Grundschule, Hauptschule, Realschule, Gymnasium, Gesamtschule, Öffentliche Verkehrsmittel
Die Gegend zeichnet sich durch prachtvolle Altbauten und einladende Grünanlagen und ihrer zugleich ruhigen und zentralen Lage aus.
Mit seiner gehobenen Infrastruktur bietet der Güntzel-Kiez eine ausgezeichnete Lebensqualität.
Die Güntzel -, Uhland - und Berliner Straße in unmittelbarer Nähe bieten Einkaufsmöglichkeiten für den Alltag sowie hochwertige Feinkostläden und exklusive Boutiquen. Diverse etablierte Cafés und Restaurants sorgen für eine gediegene Atmosphäre und laden zum Verweilen ein.
Der Güntzel-Kiez ist ein ideal angebundener, urbaner Wohnstandort. Er bietet eine exzellente Anbindung durch die U-Bahn-Linien U3, U7 und U9 und den Buslinien 101 und 249 sowie eine schnelle Zufahrt zur Stadtautobahn (A100).
Der Kurfürstendamm ist fußläufig erreichbar.
In kurzer Fußdistanz von der Wohnung befinden sich der Wilmersdorfer Volkspark, der Nikolsburger Platz und der Prager Platz mit Spielplätzen, Springbrunnen und altem Baumbestand. Auch finden sich in der Gegend reichlich Schulen und Kindergärten, was die Gegend zu einem idealen Wohnort für Familien macht.
Berufstätige schätzen ebenfalls die lebendige und dennoch sichere Atmosphäre des Viertels, besonders mit einer so ruhig gelegenen Wohnung.
Infrastruktur (im Umkreis von 5 km):
Apotheke, Lebensmittel-Discount, Allgemeinmediziner, Kindergarten, Grundschule, Hauptschule, Realschule, Gymnasium, Gesamtschule, Öffentliche Verkehrsmittel
Kontaktanfrage senden
Über den Anbieter
OM PropTech GmbH
Humboldtstraße 25a
21509 Glinde
Kontakt
| Telefon | - |
| Fax | - |
| Website | www.ohne-makler.net |
Ansprechpartner/in
Privat von Barbara Naur
Weitere Angebote des Anbieters
15
Attraktive 3-Zimmer- und 2 Zimmer -Wohnung mit KDB – ...
Wohnung
57577 Hamm(sieg)
Wir vermieten verschiedene Wohnungen in den Größen zwischen 83 qm bis 96 qm. Es sind 3 Zimmer KDB . Jede Wohnung ist frisch renoviert. Alle Wohnungen sind hell und gut geschnitten, sie verfügen jeweils über einen ...
672 €
Kaltmiete (netto)
84 m²
Wohnfläche
3
Zimmer
22
Wunderschöne 4-Zi.-Maisonette mit Haus-im-Haus-Charakte ...
Wohnung
71101 SCHOENAICH
In begehrter, zentraler Lage von Schönaich bieten wir diese außergewöhnlich geschnittene 4-Zimmer-Maisonettewohnung mit ca. 101 m² Wohnfläche im Privatverkauf an. Die Wohnung überzeugt durch ihren separaten Hauseingang ...
379.000 €
Kaufpreis
101 m²
Wohnfläche
4
Zimmer
11
Schöne renovierte 3-Zimmer Altbauwohnung in Straubing ...
Wohnung
94315 Straubung
Diese helle neuwertige Altbauwohnung befindet sich in einem ruhigen Mehrfamilienhaus mitten im Herzen von Straubing. Die Wohnung überzeugt durch ihren großzügigen Grundriss. Küche, Wohnzimmer und zwei Schlafzimmer oder ...
820 €
Kaltmiete (netto)
84 m²
Wohnfläche
4
Zimmer
7
Schöne renovierte 2-Zi-Altbauwohnung und EBK in Bogen ...
Wohnung
94327 Bogen
Diese schöne, vollständig renovierte Wohnung in der zweiten Etage zeichnet sich durch eine gehobene Innenausstattung aus und kann zum 01.12.2025 bezogen werden. Die Wohnung bietet neben zwei attraktiven Zimmern nicht ...
676 €
Kaltmiete (netto)
81 m²
Wohnfläche
3
Zimmer
9
Erstbezug nach Sanierung: Großzügige Etagenwohnung
Wohnung
68307 Mannheim
Bei dieser ansprechenden Immobilie handelt es sich um einen Erstbezug nach umfassender Sanierung (Türen, Böden, Fenster, Bäder, Elektroleitungen, gesamte Heizungsanlage, einschließlich Leitungen neu). Die Wohnung in ...
1.550 €
Kaltmiete (netto)
115 m²
Wohnfläche
3
Zimmer