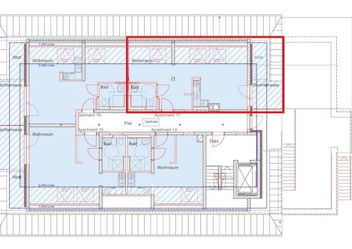
Penthousewohnung für Senioren im Betreuten Wohnen
790 €
Kaltmiete (netto)
45 m²
Wohnfläche
1
Zimmer
immobilien.de Nr.: 9464259
Objektnummer: 428477
Mietpreis & Nebenkosten
| Kaltmiete (netto) | 790 € |
| Nebenkosten | 100 € |
| Heizkosten | 100 € |
| Kaution | 2.370 € |
Wohnfläche, Grundstück & Bausubstanz
| Wohnfläche | 45 m² |
| Zimmer | 1 |
| Baujahr | 1970 |
| Verfügbar ab | 01.03.2026 |
| Zustand | Gepflegt |
Energie
| Energieausweistyp | Verbrauch |
| Energieeffizienzklasse | D |
| Energieverbrauchkennwert | 103 kWh/(m²*a) |
| Heizungsart | Zentralheizung |
| Energieträger/Befeuerung | Gas |
Beschreibung der Immobilie
Betreutes Wohnen ist die ideale Lösung, um Senioren ein selbst bestimmtes Leben mit der notwendigen Unterstützung zu ermöglichen. Ein professioneller Pflegedienst steht Ihnen mit Rat und Tat zur Seite, sofern dies notwendig ist. Unsere modernen und geräumigen Apartment sind Teil der neuen Wohnanlage Im lmenautal in Bad Bevensen.
In dem ehemaligen kernsanierten Hotel befinden sich insgesamt 18 Ein- oder Zwei-Zimmer Apartments in einer Größe bis zu 55 m². Jedes Apartment verfügt über eine Küchenzeile mit einem Doppelkochfeld, einem Spülbecken, Abstellmöglichkeiten sowie einem Kühlschrank. Des Weiteren befindet sich im Apartment ein Badezimmer inklusive einer modernen barrierefreien Dusche. Die Möglichkeit zum Entspannen an der frischen Luft bietet wahlweise ein Balkon, eine Terrasse oder eine Dachterrasse, die bequem über den Wohnraum betreten werden kann. Im Untergeschoss befinden sich neben der Waschküche auch noch großzügige Abstellräume, die mit dem Fahrstuhl gut zu erreichen sind. Im Gastraum und der angrenzenden Sonnenterrasse können Besucher empfangen, oder gemeinsame Aktivitäten durchgeführt werden. Direkt vor dem Gebäude befinden sich fünf PKW Stellplätze, die mit Elektroladesäulen versehen werden können. Hier können E-Autos parken und bequem dabei geladen werden.
In dem ehemaligen kernsanierten Hotel befinden sich insgesamt 18 Ein- oder Zwei-Zimmer Apartments in einer Größe bis zu 55 m². Jedes Apartment verfügt über eine Küchenzeile mit einem Doppelkochfeld, einem Spülbecken, Abstellmöglichkeiten sowie einem Kühlschrank. Des Weiteren befindet sich im Apartment ein Badezimmer inklusive einer modernen barrierefreien Dusche. Die Möglichkeit zum Entspannen an der frischen Luft bietet wahlweise ein Balkon, eine Terrasse oder eine Dachterrasse, die bequem über den Wohnraum betreten werden kann. Im Untergeschoss befinden sich neben der Waschküche auch noch großzügige Abstellräume, die mit dem Fahrstuhl gut zu erreichen sind. Im Gastraum und der angrenzenden Sonnenterrasse können Besucher empfangen, oder gemeinsame Aktivitäten durchgeführt werden. Direkt vor dem Gebäude befinden sich fünf PKW Stellplätze, die mit Elektroladesäulen versehen werden können. Hier können E-Autos parken und bequem dabei geladen werden.
Ausstattungsmerkmale
| Anzahl der Etagen im Haus | 4 |
| Inserat befindet sich im Stockwerk | 2 |
| Küche | Einbauküche |
| Bad | 1 |
| Bad | Dusche |
| Balkone | 2 |
| Terrassen | 0 |
| Fahrstuhl | |
| Barrierefrei | |
| Keller |
Balkon, Keller, Dachterrasse, Fahrstuhl, Duschbad, Einbauküche, Barrierefrei
Bemerkungen:
Um Ihnen, bzw. Ihren Angehörigen ein individuelles und umfangreiches Pflegeangebot anbieten zu können, arbeiten wir in den Wohnungen im Ilmenautal mit dem ambulanten Pflegedienst Medikom zusammen:
Medikom Ambulanter Pflegedienst GmbH
Tannrähmsweg 3
29556 Suderburg
Telefon: +49 (0) 5826 / 950 885
Telefax: +49 (0) 5826 / 950 889
Die Aufgaben, die ein ambulanter Pflegedienst übernehmen kann, sind so vielfältig wie die Personen, die wir betreuen. Lesen Sie alles über unsere Leistungen und erfahren Sie, wie wir Ihnen und Ihren Angehörigen im Alltag behilflich sein können.
1. Notrufeinrichtung
Jeder Mieter erhält ein Notrufgerät, das im Bedarfsfall sofort Kontakt mit einer Tag und Nacht besetzten Zentrale aufnehmen kann. Diese Zentrale leistet bzw. vermittelt Hilfe in Notfällen 24 Stunden an 365 Tagen im Jahr. Die Notrufeinrichtung umfasst die Entgegennahme der Notrufe und Einleitung der erforderlichen Hilfsmaßnahmen sowie die Stammdatenpflege des Mieters.
2. Auskunft und Beratung
In Fragen des täglichen Lebens, zu Hilfsmöglichkeiten und zur Wohnsituation stehen den Mietern Fachkräfte als Ansprechpartner zur Verfügung. Ferner werden Hilfen bei der Antragstellung für Leistungen der Pflege- und Krankenversicherungen angeboten. Die entsprechende Ansprechperson sowie Telefonnummer werden mittels Aushang im Hause sowie Merkblatt bekannt gegeben.
3. Vermittlung von Dienstleistungen
Bei Bedarf vermittelt der Betreuungsträger auch besondere persönliche oder soziale Hilfen bzw. Dienste. Diese Dienstleistungen sind nicht in den Grundleistungen enthalten und bedürfen einer zusätzlichen Kostenübernahme durch den Mieter.
4. Begegnungsstätten / Gemeinschaftsräume
Jedem Mieter stehen Gemeinschaftsräume zur Benutzung zur Verfügung. Nach Vereinbarung und sofern verfügbar kann der Mieter für besondere Anlässe, wie Geburtstage oder andere Feiern und Veranstaltungen, entsprechende Räume reservieren und nutzen. Die Kosten für die individuelle Nutzung stellen eine Grundleistung dar. (Kostenfrei)
5. Angebote zur Freizeitgestaltung / Gesundheitsförderung
Der Betreuungsträger bietet die Teilnahme an regelmäßigen Veranstaltungen kultureller, informativer und gesundheitsfördernder Art an. Grundsätzlich sind diese Veranstaltungen von den Grundleistungen umfasst. Soweit im Einzelfall – wie bei Ausflügen und besonderen Kursen o.ä. – eine gesonderte Vergütung beansprucht wird, wird diese besonders ausgewiesen bzw. rechtzeitig bekannt gegeben.
6. Wahlleistungen
•Vermittlung oder Erbringung von krankenpflegerische bzw. pflegerische Leistungen(Leistungen nach SGBXI/SGB V – durch dritte also Pflegeversicherung / häusliche Krankenpflege),
•Hauswirtschaftspaket,
•Service- und Betreuungspaket,
•Essenspaket,
• und einem abwechslungsreichen Mittagstisch.
Bemerkungen:
Um Ihnen, bzw. Ihren Angehörigen ein individuelles und umfangreiches Pflegeangebot anbieten zu können, arbeiten wir in den Wohnungen im Ilmenautal mit dem ambulanten Pflegedienst Medikom zusammen:
Medikom Ambulanter Pflegedienst GmbH
Tannrähmsweg 3
29556 Suderburg
Telefon: +49 (0) 5826 / 950 885
Telefax: +49 (0) 5826 / 950 889
Die Aufgaben, die ein ambulanter Pflegedienst übernehmen kann, sind so vielfältig wie die Personen, die wir betreuen. Lesen Sie alles über unsere Leistungen und erfahren Sie, wie wir Ihnen und Ihren Angehörigen im Alltag behilflich sein können.
1. Notrufeinrichtung
Jeder Mieter erhält ein Notrufgerät, das im Bedarfsfall sofort Kontakt mit einer Tag und Nacht besetzten Zentrale aufnehmen kann. Diese Zentrale leistet bzw. vermittelt Hilfe in Notfällen 24 Stunden an 365 Tagen im Jahr. Die Notrufeinrichtung umfasst die Entgegennahme der Notrufe und Einleitung der erforderlichen Hilfsmaßnahmen sowie die Stammdatenpflege des Mieters.
2. Auskunft und Beratung
In Fragen des täglichen Lebens, zu Hilfsmöglichkeiten und zur Wohnsituation stehen den Mietern Fachkräfte als Ansprechpartner zur Verfügung. Ferner werden Hilfen bei der Antragstellung für Leistungen der Pflege- und Krankenversicherungen angeboten. Die entsprechende Ansprechperson sowie Telefonnummer werden mittels Aushang im Hause sowie Merkblatt bekannt gegeben.
3. Vermittlung von Dienstleistungen
Bei Bedarf vermittelt der Betreuungsträger auch besondere persönliche oder soziale Hilfen bzw. Dienste. Diese Dienstleistungen sind nicht in den Grundleistungen enthalten und bedürfen einer zusätzlichen Kostenübernahme durch den Mieter.
4. Begegnungsstätten / Gemeinschaftsräume
Jedem Mieter stehen Gemeinschaftsräume zur Benutzung zur Verfügung. Nach Vereinbarung und sofern verfügbar kann der Mieter für besondere Anlässe, wie Geburtstage oder andere Feiern und Veranstaltungen, entsprechende Räume reservieren und nutzen. Die Kosten für die individuelle Nutzung stellen eine Grundleistung dar. (Kostenfrei)
5. Angebote zur Freizeitgestaltung / Gesundheitsförderung
Der Betreuungsträger bietet die Teilnahme an regelmäßigen Veranstaltungen kultureller, informativer und gesundheitsfördernder Art an. Grundsätzlich sind diese Veranstaltungen von den Grundleistungen umfasst. Soweit im Einzelfall – wie bei Ausflügen und besonderen Kursen o.ä. – eine gesonderte Vergütung beansprucht wird, wird diese besonders ausgewiesen bzw. rechtzeitig bekannt gegeben.
6. Wahlleistungen
•Vermittlung oder Erbringung von krankenpflegerische bzw. pflegerische Leistungen(Leistungen nach SGBXI/SGB V – durch dritte also Pflegeversicherung / häusliche Krankenpflege),
•Hauswirtschaftspaket,
•Service- und Betreuungspaket,
•Essenspaket,
• und einem abwechslungsreichen Mittagstisch.
Sonstige Informationen
Heizungsart: Zentralheizung
Energieträger: Gas
Sehr geehrte Interessent*innen,
bitte beachten Sie, dass Hunde & Katzen in den Wohnungen nicht gestattet sind!
Um einen Besichtigungstermin für die Wohnung zu vereinbaren, rufen Sie mich gerne werktags zwischen 09:00 Uhr und 13:00 Uhr unter 0175 10 33 192 an. Sollte ich telefonisch nicht erreichbar sein, sprechen Sie gerne auf meine Mailbox und nennen Sie Ihren Namen, Ihre Telefonnummer und die Wohnung, um die es geht.
Vielen Dank und mit freundlichen Grüßen
Clemens Meinke
Makleranfragen nicht erwünscht. Nach § 7 UWG sind unaufgeforderte Kontaktaufnahmen durch Makler ohne ausdrückliche Einwilligung des Empfängers verboten!
ohne-makler (OM) ist weder Anbieter noch Vermittler der Immobilie. OM betreibt eine Plattform für Immobilieneigentümer, die unter anderem die gleichzeitige Veröffentlichung einzelner Inserate auf mehreren Immobilienportalen ermöglicht. Die Inhalte dieser Inserate werden ausschließlich von Dritten verantwortet. Für die Richtigkeit, Vollständigkeit oder Rechtmäßigkeit der Angaben übernimmt OM keine Haftung. Hinweise auf mögliche Rechtsverstöße können jederzeit gemeldet werden und werden nach Prüfung umgehend bearbeitet.
Energieträger: Gas
Sehr geehrte Interessent*innen,
bitte beachten Sie, dass Hunde & Katzen in den Wohnungen nicht gestattet sind!
Um einen Besichtigungstermin für die Wohnung zu vereinbaren, rufen Sie mich gerne werktags zwischen 09:00 Uhr und 13:00 Uhr unter 0175 10 33 192 an. Sollte ich telefonisch nicht erreichbar sein, sprechen Sie gerne auf meine Mailbox und nennen Sie Ihren Namen, Ihre Telefonnummer und die Wohnung, um die es geht.
Vielen Dank und mit freundlichen Grüßen
Clemens Meinke
Makleranfragen nicht erwünscht. Nach § 7 UWG sind unaufgeforderte Kontaktaufnahmen durch Makler ohne ausdrückliche Einwilligung des Empfängers verboten!
ohne-makler (OM) ist weder Anbieter noch Vermittler der Immobilie. OM betreibt eine Plattform für Immobilieneigentümer, die unter anderem die gleichzeitige Veröffentlichung einzelner Inserate auf mehreren Immobilienportalen ermöglicht. Die Inhalte dieser Inserate werden ausschließlich von Dritten verantwortet. Für die Richtigkeit, Vollständigkeit oder Rechtmäßigkeit der Angaben übernimmt OM keine Haftung. Hinweise auf mögliche Rechtsverstöße können jederzeit gemeldet werden und werden nach Prüfung umgehend bearbeitet.
Karte wird geladen...
Objektstandort
Im Ilmenautal 11
29549 Bad Bevensen
- Niedersachsen
Lage & Infrastruktur
Objektstandort
Im Ilmenautal 11
29549 Bad Bevensen
- Niedersachsen
Bad Bevensen, das bekannte Jod-Sole-Heilbad, liegt verkehrsgünstig im Städtedreieck Hamburg – Bremen – Hannover. Die sanft hügelige Landschaft rund um das einzige Mineralheilbad in der Lüneburger Heide, ist geprägt durch große Wälder, kleine Heideflächen und die wasserreiche Natur des Ilmenau-Tals.
Seit 1929 ist Bevensen Stadt, seit 1976 nennt sich der Kurort "Bad" Bevensen. Mit der Erschließung der Thermal-Jod-Sole-Heilquelle 1968 und dem Bau des Kurzentrums entstand in den 70er Jahren ein Kurviertel mit Hotels, Kliniken und Kurheimen.
Ein weitläufiger Kurpark und Fußgängerbrücken über den Fluss Ilmenau verbinden das Kurviertel und die Altstadt. Kurzentrum und Kurpark sind damit das Bindeglied zwischen dem „alten“ Stadtteil um Dreikönigskirche und Fußgängerzone und dem "neuen" Bad Bevensen mit seinen Hotels und Pensionen.
Gesundheit
Bad Bevensen ist seit 1975 als Mineralheilbad staatlich anerkannt. Das Angebot des Kurortes richtet sich an Menschen, die in der ruhigen und waldreichen Umgebung etwas für ihre Gesundheit und die Erhaltung ihrer körperlichen Fitness tun wollen. Der weitläufige Kurpark mitten in der Stadt ist Ausgangspunkt für Spaziergänge beispielsweise zum nahen Kloster Medingen.
Die Jod-Sole-Therme mit ihrer großzügigen Badelandschaft, dem vielfältigen Saunaangebot und der allen Ansprüchen gerecht werdenden Wellnessoase, dem Spa & Vital Center, steht im Mittelpunkt des Gesundheitsangebotes.
Kultur
Kulturinteressierte erfreuen sich an dem abwechslungsreichen Veranstaltungsangebot im Kurhaus oder den klassischen Musikreihen im Kloster Medingen.
Feste
Regionale Feste wie der Töpfermarkt, Stadt-, Heidekartoffel- und Schützenfest, aber auch die in den Sommermonaten immer sonntags regelmäßig stattfindenden LandArt- und Antikmärkte erfreuen die Einwohner und ziehen regelmäßig viele Besucher in die Stadt.
Infrastruktur (im Umkreis von 5 km):
Apotheke, Lebensmittel-Discount, Allgemeinmediziner, Kindergarten, Grundschule, Hauptschule, Realschule, Gymnasium, Gesamtschule, Öffentliche Verkehrsmittel
Seit 1929 ist Bevensen Stadt, seit 1976 nennt sich der Kurort "Bad" Bevensen. Mit der Erschließung der Thermal-Jod-Sole-Heilquelle 1968 und dem Bau des Kurzentrums entstand in den 70er Jahren ein Kurviertel mit Hotels, Kliniken und Kurheimen.
Ein weitläufiger Kurpark und Fußgängerbrücken über den Fluss Ilmenau verbinden das Kurviertel und die Altstadt. Kurzentrum und Kurpark sind damit das Bindeglied zwischen dem „alten“ Stadtteil um Dreikönigskirche und Fußgängerzone und dem "neuen" Bad Bevensen mit seinen Hotels und Pensionen.
Gesundheit
Bad Bevensen ist seit 1975 als Mineralheilbad staatlich anerkannt. Das Angebot des Kurortes richtet sich an Menschen, die in der ruhigen und waldreichen Umgebung etwas für ihre Gesundheit und die Erhaltung ihrer körperlichen Fitness tun wollen. Der weitläufige Kurpark mitten in der Stadt ist Ausgangspunkt für Spaziergänge beispielsweise zum nahen Kloster Medingen.
Die Jod-Sole-Therme mit ihrer großzügigen Badelandschaft, dem vielfältigen Saunaangebot und der allen Ansprüchen gerecht werdenden Wellnessoase, dem Spa & Vital Center, steht im Mittelpunkt des Gesundheitsangebotes.
Kultur
Kulturinteressierte erfreuen sich an dem abwechslungsreichen Veranstaltungsangebot im Kurhaus oder den klassischen Musikreihen im Kloster Medingen.
Feste
Regionale Feste wie der Töpfermarkt, Stadt-, Heidekartoffel- und Schützenfest, aber auch die in den Sommermonaten immer sonntags regelmäßig stattfindenden LandArt- und Antikmärkte erfreuen die Einwohner und ziehen regelmäßig viele Besucher in die Stadt.
Infrastruktur (im Umkreis von 5 km):
Apotheke, Lebensmittel-Discount, Allgemeinmediziner, Kindergarten, Grundschule, Hauptschule, Realschule, Gymnasium, Gesamtschule, Öffentliche Verkehrsmittel
Kontaktanfrage senden
Über den Anbieter
OM PropTech GmbH
Humboldtstraße 25a
21509 Glinde
Kontakt
| Telefon | - |
| Fax | - |
| Website | www.ohne-makler.net |
Ansprechpartner/in
Privat von Clemens Meinke