2-Zimmer-Wohnung im 5. OG mit Aufzug und Balkon – Stuttgart-Kernerviertel (54 m²)
970 €
Kaltmiete (netto)
54 m²
Wohnfläche
2
Zimmer
immobilien.de Nr.: 9463377
Objektnummer: 428209
Mietpreis & Nebenkosten
| Kaltmiete (netto) | 970 € |
| Nebenkosten | 210 € |
| Heizkosten enthalten | Ja |
| Kaution | 1.940 € |
Wohnfläche, Grundstück & Bausubstanz
| Wohnfläche | 54 m² |
| Zimmer | 2 |
| Baujahr | 1968 |
| Verfügbar ab | nach Absprache |
| Zustand | Gepflegt |
Energie
| Energieausweistyp | Bedarfsausweis |
| Energieeffizienzklasse | C |
| Endenergiebedarf | 83 |
| Heizungsart | Zentralheizung |
| Energieträger/Befeuerung | Gas |
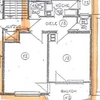
Beschreibung der Immobilie
Hochwertig und modern möblierte 2-Zimmer Wohnung mit großem Balkon und tollem Blick über Stuttgart in zentraler, aber dennoch ruhiger Lage in Stuttgart Mitte.
Die Wohnung befindet sich im 5. Stock mit Aufzug.
Das großzügige Wohnzimmer ist unter anderem mit einem großen Ledersofa (Gästebettfunktion), einem Flat-TV, Stereoanlage, einem Sideboard, einem Bücherregal und einem Esstisch mit Stühlen eingerichtet.
Im Schlafzimmer befinden sich u.a. ein großes Bett (1,60 x 2,00m), Kommode und ein Kleiderschrank (4 Meter).
Sowohl vom Wohnzimmer als auch vom Schlafzimmer hat man Zugang zum großen Balkon.
Das neue Badezimmer mit Tageslicht verfügt über Badewanne mit Duschvorrichtung. Das WC ist separat.
Die Einbauküche mit Geschirrspüler und kleinem Küchenbalkon ist voll ausgestattet.
Die Waschmaschine befindet sich in einem abschließbaren nur zur Wohnung gehörenden Keller.
In der Wohnung ist das Rauchen nicht gestattet, jedoch auf den Balkonen.
Die Wohnung befindet sich im 5. Stock mit Aufzug.
Das großzügige Wohnzimmer ist unter anderem mit einem großen Ledersofa (Gästebettfunktion), einem Flat-TV, Stereoanlage, einem Sideboard, einem Bücherregal und einem Esstisch mit Stühlen eingerichtet.
Im Schlafzimmer befinden sich u.a. ein großes Bett (1,60 x 2,00m), Kommode und ein Kleiderschrank (4 Meter).
Sowohl vom Wohnzimmer als auch vom Schlafzimmer hat man Zugang zum großen Balkon.
Das neue Badezimmer mit Tageslicht verfügt über Badewanne mit Duschvorrichtung. Das WC ist separat.
Die Einbauküche mit Geschirrspüler und kleinem Küchenbalkon ist voll ausgestattet.
Die Waschmaschine befindet sich in einem abschließbaren nur zur Wohnung gehörenden Keller.
In der Wohnung ist das Rauchen nicht gestattet, jedoch auf den Balkonen.
Ausstattungsmerkmale
| Anzahl der Etagen im Haus | 5 |
| Inserat befindet sich im Stockwerk | 5 |
| Küche | Einbauküche |
| Bad | 1 |
| Bad | Dusche, Wanne |
| Boden | Fliesen, Parkett, Laminat |
| Balkone | 1 |
| Terrassen | 0 |
| Fahrstuhl | |
| Barrierefrei | |
| Keller |
Balkon, Keller, Fahrstuhl, Vollbad, Duschbad, Einbauküche, Barrierefrei, Parkett, Laminat, Fliesen
Sonstige Informationen
Heizungsart: Zentralheizung
Energieträger: Gas
Bei Interesse freue ich mich über eine kurze Nachricht mit ein paar Infos zu Ihnen (wer einzieht und ab wann Sie suchen).
Makleranfragen nicht erwünscht. Nach § 7 UWG sind unaufgeforderte Kontaktaufnahmen durch Makler ohne ausdrückliche Einwilligung des Empfängers verboten!
ohne-makler (OM) ist weder Anbieter noch Vermittler der Immobilie. OM betreibt eine Plattform für Immobilieneigentümer, die unter anderem die gleichzeitige Veröffentlichung einzelner Inserate auf mehreren Immobilienportalen ermöglicht. Die Inhalte dieser Inserate werden ausschließlich von Dritten verantwortet. Für die Richtigkeit, Vollständigkeit oder Rechtmäßigkeit der Angaben übernimmt OM keine Haftung. Hinweise auf mögliche Rechtsverstöße können jederzeit gemeldet werden und werden nach Prüfung umgehend bearbeitet.
Energieträger: Gas
Bei Interesse freue ich mich über eine kurze Nachricht mit ein paar Infos zu Ihnen (wer einzieht und ab wann Sie suchen).
Makleranfragen nicht erwünscht. Nach § 7 UWG sind unaufgeforderte Kontaktaufnahmen durch Makler ohne ausdrückliche Einwilligung des Empfängers verboten!
ohne-makler (OM) ist weder Anbieter noch Vermittler der Immobilie. OM betreibt eine Plattform für Immobilieneigentümer, die unter anderem die gleichzeitige Veröffentlichung einzelner Inserate auf mehreren Immobilienportalen ermöglicht. Die Inhalte dieser Inserate werden ausschließlich von Dritten verantwortet. Für die Richtigkeit, Vollständigkeit oder Rechtmäßigkeit der Angaben übernimmt OM keine Haftung. Hinweise auf mögliche Rechtsverstöße können jederzeit gemeldet werden und werden nach Prüfung umgehend bearbeitet.
Karte wird geladen...
Objektstandort
70190 Stuttgart
- Baden-Württemberg
Lage & Infrastruktur
Objektstandort
70190 Stuttgart
- Baden-Württemberg
Innerhalb von 8-10 Gehminuten ist man am Schlossplatz, Hauptbahnhof und Schlosspark.
In der Nähe der Wohnung befinden sich Einkaufsmöglichkeiten, Restaurants und Cafes.
Eines der exklusivsten Stuttgarter Hotels, das Le MERIDIEN befindet sich in direkter Nachbarschaft. Dort kann man auch als Externer gegen Bezahlung den Schwimm-/ und Wellnesbereich nutzen.
3 Gehminuten zur U1, U2, U4, U9, U14, Haltestelle Staatsgalerie, 10 Gehminuten zum HBF Stuttgart
Infrastruktur (im Umkreis von 5 km):
Apotheke, Lebensmittel-Discount, Allgemeinmediziner, Kindergarten, Grundschule, Hauptschule, Realschule, Gymnasium, Gesamtschule, Öffentliche Verkehrsmittel
In der Nähe der Wohnung befinden sich Einkaufsmöglichkeiten, Restaurants und Cafes.
Eines der exklusivsten Stuttgarter Hotels, das Le MERIDIEN befindet sich in direkter Nachbarschaft. Dort kann man auch als Externer gegen Bezahlung den Schwimm-/ und Wellnesbereich nutzen.
3 Gehminuten zur U1, U2, U4, U9, U14, Haltestelle Staatsgalerie, 10 Gehminuten zum HBF Stuttgart
Infrastruktur (im Umkreis von 5 km):
Apotheke, Lebensmittel-Discount, Allgemeinmediziner, Kindergarten, Grundschule, Hauptschule, Realschule, Gymnasium, Gesamtschule, Öffentliche Verkehrsmittel