Provisionsfreie, Bezugsfreie 2-Zimmer-Wohnung mit Balkon & Garagenstellplatz
296.900 €
Kaufpreis
56,4 m²
Wohnfläche
2
Zimmer
immobilien.de Nr.: 9462966
Objektnummer: 428122
Dateien
Kaufpreis
| Kaufpreis | 296.900 € |
| Hausgeld | 286 € |
| Maklerprovision | keine Provision, courtagefrei |
| Stellplatz Garage Kaufpreis | 20.000 € |
Wohnfläche, Grundstück & Bausubstanz
| Wohnfläche | 56,4 m² |
| Zimmer | 2 |
| Baujahr | 1970 |
| Verfügbar ab | sofort |
| Zustand | Modernisiert |
Energie
| Energieausweistyp | Verbrauch |
| Energieeffizienzklasse | E |
| Energieverbrauchkennwert | 146 kWh/(m²*a) |
| Heizungsart | Zentralheizung |
| Energieträger/Befeuerung | Gas |
Beschreibung der Immobilie
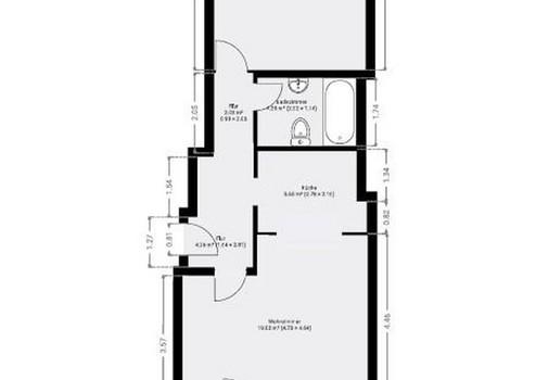
Die ca. 56,42 m² große Wohnung überzeugt durch einen klaren, funktionalen Grundriss und helle Räume.
Der großzügige Wohnbereich mit halboffener Küche bildet das Herzstück der Wohnung und bietet direkten Zugang zum ruhigen Balkon.
Das Schlafzimmer ist gut geschnitten und bietet ausreichend Platz für Bett und Kleiderschrank.
Das modernisierte Badezimmer verfügt über eine Badewanne und ein zeitloses, neutrales Design.
Die Wohnung wurde 2025 umfassend renoviert und befindet sich in einem sofort bezugsfertigen Zustand.
Ein eigener Kellerraum sowie ein abschließbarer ebenerdiger Garagenstellplatz runden das Angebot ab.
Der großzügige Wohnbereich mit halboffener Küche bildet das Herzstück der Wohnung und bietet direkten Zugang zum ruhigen Balkon.
Das Schlafzimmer ist gut geschnitten und bietet ausreichend Platz für Bett und Kleiderschrank.
Das modernisierte Badezimmer verfügt über eine Badewanne und ein zeitloses, neutrales Design.
Die Wohnung wurde 2025 umfassend renoviert und befindet sich in einem sofort bezugsfertigen Zustand.
Ein eigener Kellerraum sowie ein abschließbarer ebenerdiger Garagenstellplatz runden das Angebot ab.
Ausstattungsmerkmale
| Anzahl der Etagen im Haus | 5 |
| Inserat befindet sich im Stockwerk | 2 |
| Bad | 1 |
| Boden | Fliesen, Kunststoff |
| Balkone | 1 |
| Terrassen | 0 |
| Fahrstuhl | |
| Barrierefrei | |
| Garage/Stellplätze | 1 |
| Keller |
Balkon, Keller, Fahrstuhl, Barrierefrei, Fliesen
Bemerkungen:
Balkon
Personenaufzug
ebenerdiger Garagenstellplatz (abschließbar)
Kellerraum
Halboffene Küche
Modernes Duschbad
Hochwertige Bodenbeläge
Neue Türen
Frisch tapezierte & gestrichene Wände
Erneuerte Elektrik (2025)
Bemerkungen:
Balkon
Personenaufzug
ebenerdiger Garagenstellplatz (abschließbar)
Kellerraum
Halboffene Küche
Modernes Duschbad
Hochwertige Bodenbeläge
Neue Türen
Frisch tapezierte & gestrichene Wände
Erneuerte Elektrik (2025)
Sonstige Informationen
Heizungsart: Zentralheizung
Energieträger: Gas
Eckdaten auf einen Blick:
Kaufpreis Wohnung: 296.900 €
Garagenstellplatz: 20.000 €
Wohnfläche: ca. 56,42 m²
Zimmer: 2
Etage: 2. Obergeschoss (mit Aufzug)
Hausgeld: 286 € / Monat
Bezugsfrei: sofort
Keine Käuferprovision
Makleranfragen nicht erwünscht. Nach § 7 UWG sind unaufgeforderte Kontaktaufnahmen durch Makler ohne ausdrückliche Einwilligung des Empfängers verboten!
ohne-makler (OM) ist weder Anbieter noch Vermittler der Immobilie. OM betreibt eine Plattform für Immobilieneigentümer, die unter anderem die gleichzeitige Veröffentlichung einzelner Inserate auf mehreren Immobilienportalen ermöglicht. Die Inhalte dieser Inserate werden ausschließlich von Dritten verantwortet. Für die Richtigkeit, Vollständigkeit oder Rechtmäßigkeit der Angaben übernimmt OM keine Haftung. Hinweise auf mögliche Rechtsverstöße können jederzeit gemeldet werden und werden nach Prüfung umgehend bearbeitet.
Energieträger: Gas
Eckdaten auf einen Blick:
Kaufpreis Wohnung: 296.900 €
Garagenstellplatz: 20.000 €
Wohnfläche: ca. 56,42 m²
Zimmer: 2
Etage: 2. Obergeschoss (mit Aufzug)
Hausgeld: 286 € / Monat
Bezugsfrei: sofort
Keine Käuferprovision
Makleranfragen nicht erwünscht. Nach § 7 UWG sind unaufgeforderte Kontaktaufnahmen durch Makler ohne ausdrückliche Einwilligung des Empfängers verboten!
ohne-makler (OM) ist weder Anbieter noch Vermittler der Immobilie. OM betreibt eine Plattform für Immobilieneigentümer, die unter anderem die gleichzeitige Veröffentlichung einzelner Inserate auf mehreren Immobilienportalen ermöglicht. Die Inhalte dieser Inserate werden ausschließlich von Dritten verantwortet. Für die Richtigkeit, Vollständigkeit oder Rechtmäßigkeit der Angaben übernimmt OM keine Haftung. Hinweise auf mögliche Rechtsverstöße können jederzeit gemeldet werden und werden nach Prüfung umgehend bearbeitet.
Karte wird geladen...
Objektstandort
Burghofstraße 34
40223 Düsseldorf
- Nordrhein-Westfalen
Lage & Infrastruktur
Die Wohnung befindet sich in Düsseldorf-Bilk, einem der gefragtesten und lebendigsten Stadtteile der Landeshauptstadt.
Die Lage kombiniert zentrales Wohnen mit einer ausgezeichneten Infrastruktur.
Einkaufsmöglichkeiten, Cafés, Restaurants, Ärzte und Apotheken sind fußläufig erreichbar.
Die sehr gute Anbindung an den öffentlichen Nahverkehr (S-Bahn, Straßenbahn, Bus) ermöglicht eine schnelle Verbindung in die Innenstadt, zur Heinrich-Heine-Universität sowie in andere Stadtteile.
Zahlreiche Grünflächen in der Umgebung sorgen für einen angenehmen Ausgleich zum urbanen Alltag.
Infrastruktur (im Umkreis von 5 km):
Apotheke, Lebensmittel-Discount, Allgemeinmediziner, Kindergarten, Grundschule, Hauptschule, Realschule, Gymnasium, Gesamtschule, Öffentliche Verkehrsmittel
Die Lage kombiniert zentrales Wohnen mit einer ausgezeichneten Infrastruktur.
Einkaufsmöglichkeiten, Cafés, Restaurants, Ärzte und Apotheken sind fußläufig erreichbar.
Die sehr gute Anbindung an den öffentlichen Nahverkehr (S-Bahn, Straßenbahn, Bus) ermöglicht eine schnelle Verbindung in die Innenstadt, zur Heinrich-Heine-Universität sowie in andere Stadtteile.
Zahlreiche Grünflächen in der Umgebung sorgen für einen angenehmen Ausgleich zum urbanen Alltag.
Infrastruktur (im Umkreis von 5 km):
Apotheke, Lebensmittel-Discount, Allgemeinmediziner, Kindergarten, Grundschule, Hauptschule, Realschule, Gymnasium, Gesamtschule, Öffentliche Verkehrsmittel