STREIF baut Euer perfektes Zuhause
914.180 €
Kaufpreis
140 m²
Wohnfläche
6
Zimmer
immobilien.de Nr.: 9461615
Objektnummer: AM76706003
Kaufpreis
| Kaufpreis | 914.180 € |
Wohnfläche, Grundstück & Bausubstanz
| Wohnfläche | 140 m² |
| Grundstücksfläche | 900 m² |
| Zimmer | 6 |
| Verfügbar ab | keine Angabe |
| Zustand | Erstbezug |
Energie
| Energietyp | KfW-40 |
| Heizungsart | Zentralheizung |
| Energieträger/Befeuerung | Luft-Wärme-Pumpe |
Beschreibung der Immobilie
STREIF-Doppelhausentwurf 1 - im Stadtvillenstil
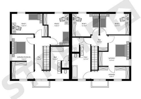
Die Architektur dieses Doppelhauses mit einem eleganten Walmdach strahlt zeitlose Modernität aus. Die Grundrisse sind so konzipiert, dass großzügige und komfortable Räume entstehen. Der offene Wohn-/Ess-/Kochbereich bietet mit seinen 39 m² viel Platz und Helligkeit, dank einer Panorama-Hebeschiebetür und einer doppelflügeligen Terrassentür. Im Erdgeschoss befindet sich ein zusätzliches Zimmer, das flexibel als Homeoffice, Gästezimmer oder Schlafzimmer genutzt werden kann. Das Badezimmer im Erdgeschoss kann optional mit einer Dusche ausgestattet werden, was in Kombination mit dem Zusatzzimmer ein ebenerdiges Wohnen ermöglicht. Im Obergeschoss finden Sie einen Elternbereich mit Ankleidezimmer, zwei Kinderzimmern und ein geräumiges Bad. Aufgrund der Bauweise dieses Doppelhausentwurfs mit Walmdach ist es erforderlich, beide Haushälften gleichzeitig zu errichten.
Preisangaben beziehen sich auf eine Doppelhaushälfte.
Die Architektur dieses Doppelhauses mit einem eleganten Walmdach strahlt zeitlose Modernität aus. Die Grundrisse sind so konzipiert, dass großzügige und komfortable Räume entstehen. Der offene Wohn-/Ess-/Kochbereich bietet mit seinen 39 m² viel Platz und Helligkeit, dank einer Panorama-Hebeschiebetür und einer doppelflügeligen Terrassentür. Im Erdgeschoss befindet sich ein zusätzliches Zimmer, das flexibel als Homeoffice, Gästezimmer oder Schlafzimmer genutzt werden kann. Das Badezimmer im Erdgeschoss kann optional mit einer Dusche ausgestattet werden, was in Kombination mit dem Zusatzzimmer ein ebenerdiges Wohnen ermöglicht. Im Obergeschoss finden Sie einen Elternbereich mit Ankleidezimmer, zwei Kinderzimmern und ein geräumiges Bad. Aufgrund der Bauweise dieses Doppelhausentwurfs mit Walmdach ist es erforderlich, beide Haushälften gleichzeitig zu errichten.
Preisangaben beziehen sich auf eine Doppelhaushälfte.
Ausstattungsmerkmale
| Anzahl der Etagen im Haus | 2 |
| Bad | 1 |
| Terrassen | 1 |
| Barrierefrei |
STREIF-Energiespar-Häuser sind für die Effizienzhaus-Klasse 40* vorbereitet. (*In Abhängigkeit von Gebäudestandort, Gebäudeausrichtung, Fensterflächenanteile, Haustechnik usw. können zusätzliche oder abweichende Leistungen erforderlich werden, die im Zuge der Bauantragsbewertung/-erstellung bewertet werden.)
Gegen Aufpreis erstellen wir eine Ökobilanzierung für Ihr Haus nach QNG durch. Für das Erreichen der Vorgaben des Qualitätssiegels Nachhaltiges Gebäude (QNG) für eine Ökobilanzierung wird zusätzlich eine Photovoltaik-Anlage mit Batteriespeicher benötigt. Mit dem Erfüllen dieser und weiterer Anforderungen wird Ihr Haus nach den neuen KfW-Förderrichtlinien für den Klimafreundlichen Neubau (KFN) förderfähig.
Die Außenwände im Passiv-Haus-Standard und eine sparsame Heiztechnik mit integrierter Wohnraumlüftung und Wärmerückgewinnung, garantieren einen geringen Energieverbrauch und ein fantastisches Raumklima, das insbesondere Allergiker aufatmen lässt.
STREIF Leistungen sind MEHR WERT - schon im Grundpreis enthalten!
- 16-monatige Festpreisgarantie
- Inkl. individuelle Grundrissgestaltung und Raumaufteilung
- Inkl. gedämmte Fundamentplatte
- Inkl. STREIF-Luft-Luft-Wärmepumpen-Technologie mit integrierter Lüftungsanlage mit Wärmerückgewinnung
- Inkl. Haustür von KERA und Fenster von Porta/Kömmerling
- Inkl. Sanitärobjekte von Markenherstellern
- Inkl. Massivholz-Geschosstreppe aus eigener Produktion (entfällt bei Bungalow)
- Inkl. Elektroinstallation u. v. m.
- Inkl. Photovoltaikanlage 7,12 KWP
- Inkl. Batteriespeicher mit 7,70 KWH
Die hohe Wertigkeit und Langlebigkeit eines STREIF-Energiespar-Hauses wird durch zahlreiche Auszeichnungen, Qualitäts- und Gütesiegel unabhängiger Institute und Verbände dokumentiert.
Der Angebotspreis ist inklusive Grundstück und bezieht sich auf die Standard-Ausbaustufe Fast-Fertig-Plus. Ihre Eigenleistungen: Spachtel-,Tapezier- und Malerarbeiten, Bodenbeläge, Innentüren.
Baunebenkosten fallen zuzüglich an.
Der Verkauf des Grundstücks erfolgt über einen unserer Netzwerkpartner.
Bilder können evtl. Anbauteile, Carports, Balkone, Gauben usw. zeigen, die nicht im Angebotspreis enthalten sind. Änderungen und Irrtümer vorbehalten.
Gegen Aufpreis erstellen wir eine Ökobilanzierung für Ihr Haus nach QNG durch. Für das Erreichen der Vorgaben des Qualitätssiegels Nachhaltiges Gebäude (QNG) für eine Ökobilanzierung wird zusätzlich eine Photovoltaik-Anlage mit Batteriespeicher benötigt. Mit dem Erfüllen dieser und weiterer Anforderungen wird Ihr Haus nach den neuen KfW-Förderrichtlinien für den Klimafreundlichen Neubau (KFN) förderfähig.
Die Außenwände im Passiv-Haus-Standard und eine sparsame Heiztechnik mit integrierter Wohnraumlüftung und Wärmerückgewinnung, garantieren einen geringen Energieverbrauch und ein fantastisches Raumklima, das insbesondere Allergiker aufatmen lässt.
STREIF Leistungen sind MEHR WERT - schon im Grundpreis enthalten!
- 16-monatige Festpreisgarantie
- Inkl. individuelle Grundrissgestaltung und Raumaufteilung
- Inkl. gedämmte Fundamentplatte
- Inkl. STREIF-Luft-Luft-Wärmepumpen-Technologie mit integrierter Lüftungsanlage mit Wärmerückgewinnung
- Inkl. Haustür von KERA und Fenster von Porta/Kömmerling
- Inkl. Sanitärobjekte von Markenherstellern
- Inkl. Massivholz-Geschosstreppe aus eigener Produktion (entfällt bei Bungalow)
- Inkl. Elektroinstallation u. v. m.
- Inkl. Photovoltaikanlage 7,12 KWP
- Inkl. Batteriespeicher mit 7,70 KWH
Die hohe Wertigkeit und Langlebigkeit eines STREIF-Energiespar-Hauses wird durch zahlreiche Auszeichnungen, Qualitäts- und Gütesiegel unabhängiger Institute und Verbände dokumentiert.
Der Angebotspreis ist inklusive Grundstück und bezieht sich auf die Standard-Ausbaustufe Fast-Fertig-Plus. Ihre Eigenleistungen: Spachtel-,Tapezier- und Malerarbeiten, Bodenbeläge, Innentüren.
Baunebenkosten fallen zuzüglich an.
Der Verkauf des Grundstücks erfolgt über einen unserer Netzwerkpartner.
Bilder können evtl. Anbauteile, Carports, Balkone, Gauben usw. zeigen, die nicht im Angebotspreis enthalten sind. Änderungen und Irrtümer vorbehalten.
Sonstige Informationen
Zur Realisierung des Bauvorhabens und zur Bezugsfertigkeit des Gebäudes kommen zzgl. noch Baunebenkosten und Fertigstellungskosten.
Karte wird geladen...
Objektstandort
76706 Dettenheim-Liedolsheim
Lage & Infrastruktur
Objektstandort
76706 Dettenheim-Liedolsheim
Dettenheim ist eine Gemeinde im Nordwesten des Landkreises Karlsruhe in Baden-Württemberg. Sie liegt direkt am rechten Rheinufer in der malerischen Hardt-Ebene. Die Gemarkung ist geprägt durch die weitläufigen Rheinauen, Altrheinarme und fruchtbares Ackerland.
Über die Bundesstraße B36, die in unmittelbarer Nähe verläuft, ist die Gemeinde sehr gut an das regionale Straßennetz angebunden. Die Autobahnen A5 und A6 sind in etwa 15 bis 20 Minuten erreichbar. Buslinien des Karlsruher Verkehrsverbundes (KVV) verbinden die Ortsteile mit den Bahnhöfen in der Umgebung (z. B. Graben-Neudorf), von wo aus schneller Anschluss an die S-Bahn-Netze Richtung Karlsruhe, Mannheim und Bruchsal besteht. Die Gemeinde bietet eine gute Grundversorgung mit Supermärkten, Bäckereien und Ärzten, die den täglichen Bedarf abdecken.
Kindergärten und Kindertagesstätten gewährleisten die Betreuung der jüngsten Bürgerinnen und Bürger. In beiden Ortsteilen gibt es jeweils eine eigene Grundschule (Pestalozzischule Liedolsheim und Grundschule Rußheim). Weiterführende Schulen (Realschulen, Gymnasien) befinden sich in den Nachbargemeinden Linkenheim-Hochstetten oder Philippsburg und sind gut mit dem Schulbus erreichbar.
Die Rheinauen bieten einzigartige Wander- und Radwege durch eine seltene Flora und Fauna.
Dettenheim ist ein regionales Zentrum für den Wassersport. Die umliegenden Baggerseen (wie der Giesener See) bieten im Sommer hervorragende Möglichkeiten zum Baden und Entspannen. In Liedolsheim befindet sich ein bedeutendes Segelrevier mit einem großen Yachthafen. Überregional bekannt ist die Kartbahn Liedolsheim, auf der regelmäßig Rennen stattfinden und die ein Magnet für Motorsportbegeisterte ist.
Die Fischerfeste und die traditionellen Kerwen in Liedolsheim und Rußheim sind die gesellschaftlichen Höhepunkte des Jahres. Ob Musik, Sport oder Brauchtum - die Vereine sind der Motor der Gemeinschaft und sorgen für eine schnelle Integration von Neubürgern.
Die Weite der Rheinebene, die Nähe zur Natur und eine gute Infrastruktur machen Dettenheim zu einem attraktiven Wohnort.
Über die Bundesstraße B36, die in unmittelbarer Nähe verläuft, ist die Gemeinde sehr gut an das regionale Straßennetz angebunden. Die Autobahnen A5 und A6 sind in etwa 15 bis 20 Minuten erreichbar. Buslinien des Karlsruher Verkehrsverbundes (KVV) verbinden die Ortsteile mit den Bahnhöfen in der Umgebung (z. B. Graben-Neudorf), von wo aus schneller Anschluss an die S-Bahn-Netze Richtung Karlsruhe, Mannheim und Bruchsal besteht. Die Gemeinde bietet eine gute Grundversorgung mit Supermärkten, Bäckereien und Ärzten, die den täglichen Bedarf abdecken.
Kindergärten und Kindertagesstätten gewährleisten die Betreuung der jüngsten Bürgerinnen und Bürger. In beiden Ortsteilen gibt es jeweils eine eigene Grundschule (Pestalozzischule Liedolsheim und Grundschule Rußheim). Weiterführende Schulen (Realschulen, Gymnasien) befinden sich in den Nachbargemeinden Linkenheim-Hochstetten oder Philippsburg und sind gut mit dem Schulbus erreichbar.
Die Rheinauen bieten einzigartige Wander- und Radwege durch eine seltene Flora und Fauna.
Dettenheim ist ein regionales Zentrum für den Wassersport. Die umliegenden Baggerseen (wie der Giesener See) bieten im Sommer hervorragende Möglichkeiten zum Baden und Entspannen. In Liedolsheim befindet sich ein bedeutendes Segelrevier mit einem großen Yachthafen. Überregional bekannt ist die Kartbahn Liedolsheim, auf der regelmäßig Rennen stattfinden und die ein Magnet für Motorsportbegeisterte ist.
Die Fischerfeste und die traditionellen Kerwen in Liedolsheim und Rußheim sind die gesellschaftlichen Höhepunkte des Jahres. Ob Musik, Sport oder Brauchtum - die Vereine sind der Motor der Gemeinschaft und sorgen für eine schnelle Integration von Neubürgern.
Die Weite der Rheinebene, die Nähe zur Natur und eine gute Infrastruktur machen Dettenheim zu einem attraktiven Wohnort.
Kontaktanfrage senden
Über den Anbieter
STREIF Haus GmbH
Josef-Streif-Straße 1
54595 Weinsheim
Kontakt
| Telefon | +49 176 43417486 |
| Website | www.streif.de |
Ansprechpartner/in
Achim Machmeier