Elegantes Wohnen in Adelsdorf
870 €
Kaltmiete (netto)
77 m²
Wohnfläche
3
Zimmer
immobilien.de Nr.: 9460497
Objektnummer: 376458
Mietpreis & Nebenkosten
| Kaltmiete (netto) | 870 € |
| Nebenkosten | 130 € |
| Heizkosten | 100 € |
| Kaution | 2.150 € |
| Stellplatz Freiplatz Miete} | 35 € |
Wohnfläche, Grundstück & Bausubstanz
| Wohnfläche | 77 m² |
| Zimmer | 3 |
| Baujahr | 1991 |
| Verfügbar ab | nach Absprache |
| Zustand | Gepflegt |
Energie
| Energieausweistyp | Verbrauch |
| Energieeffizienzklasse | D |
| Energieverbrauchkennwert | 120 kWh/(m²*a) |
| Heizungsart | Zentralheizung |
| Energieträger/Befeuerung | Öl |
Beschreibung der Immobilie
Objektbeschreibung
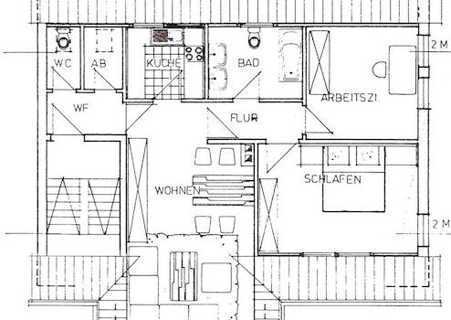
Bei dem Objekt handelt es sich um ein topgepflegtes Drei - Familienhaus.
77 qm – 2 Schlafzimmer, 1 Wohnzimmer, Küche mit Einbaugeräten, Speisekammer, Tageslicht Badezimmer mit Dusche und Wanne, Gäste WC, Kellerraum, Wasch, und Trockenraum, Gartenmitbenutzung, KFZ Stellplatz auf dem Grundstück. Abstellraum für Fahrräder. Mit Hausmeisterservice für Außenanlagen.
Bei dem Objekt handelt es sich um ein topgepflegtes Drei - Familienhaus.
77 qm – 2 Schlafzimmer, 1 Wohnzimmer, Küche mit Einbaugeräten, Speisekammer, Tageslicht Badezimmer mit Dusche und Wanne, Gäste WC, Kellerraum, Wasch, und Trockenraum, Gartenmitbenutzung, KFZ Stellplatz auf dem Grundstück. Abstellraum für Fahrräder. Mit Hausmeisterservice für Außenanlagen.
Ausstattungsmerkmale
| Anzahl der Etagen im Haus | 2 |
| Inserat befindet sich im Stockwerk | 2 |
| Küche | Einbauküche |
| Bad | 1 |
| Bad | Wanne |
| Boden | Fliesen, Parkett |
| Garten | |
| Keller |
Garten, Keller, Vollbad, Einbauküche, Gäste-WC, Parkett, Fliesen
Bemerkungen:
Die Wohnung ist in Diele, Bad, Küche, Speisekammer, WC mit Fließen ausgestattet.
Die Zimmer sind mit Parkettböden ausgestattet.
Die Einbauküche ist ablösefrei und Bestandteil der Wohnung.
Für Haustiere ungeeignet.
Bemerkungen:
Die Wohnung ist in Diele, Bad, Küche, Speisekammer, WC mit Fließen ausgestattet.
Die Zimmer sind mit Parkettböden ausgestattet.
Die Einbauküche ist ablösefrei und Bestandteil der Wohnung.
Für Haustiere ungeeignet.
Sonstige Informationen
Heizungsart: Zentralheizung
Energieträger: Öl
Keine Haustiere
zur Kontaktaufnahme bitte Telefon / Mobilnummer, e-mail und Selbstauskunft angeben.
ohne-makler (OM) ist weder Anbieter noch Vermittler der Immobilie. OM betreibt eine Plattform für Immobilieneigentümer, die unter anderem die gleichzeitige Veröffentlichung einzelner Inserate auf mehreren Immobilienportalen ermöglicht. Die Inhalte dieser Inserate werden ausschließlich von Dritten verantwortet. Für die Richtigkeit, Vollständigkeit oder Rechtmäßigkeit der Angaben übernimmt OM keine Haftung. Hinweise auf mögliche Rechtsverstöße können jederzeit gemeldet werden und werden nach Prüfung umgehend bearbeitet.
Energieträger: Öl
Keine Haustiere
zur Kontaktaufnahme bitte Telefon / Mobilnummer, e-mail und Selbstauskunft angeben.
ohne-makler (OM) ist weder Anbieter noch Vermittler der Immobilie. OM betreibt eine Plattform für Immobilieneigentümer, die unter anderem die gleichzeitige Veröffentlichung einzelner Inserate auf mehreren Immobilienportalen ermöglicht. Die Inhalte dieser Inserate werden ausschließlich von Dritten verantwortet. Für die Richtigkeit, Vollständigkeit oder Rechtmäßigkeit der Angaben übernimmt OM keine Haftung. Hinweise auf mögliche Rechtsverstöße können jederzeit gemeldet werden und werden nach Prüfung umgehend bearbeitet.
Karte wird geladen...
Objektstandort
91325 Adelsdorf
- Bayern
Lage & Infrastruktur
Objektstandort
91325 Adelsdorf
- Bayern
Adelsdorf mit ca. 9.500 Einwohnern liegt im Einzugsgebiet von Erlangen, Forchheim, Herzogenaurach, Bamberg und ist mit dem KFZ über die A3, bzw. B470 schnell zu erreichen.
Die Wohnung befindet sich ruhig gelegen in der Ortsmitte von Adelsdorf mit fantastischer Aussicht auf den Aischgrund.
Die nächste Bushaltestelle liegt in einer Entfernung von 3 Minuten Fußweg. Kindergärten, Grundschule, Ärzte sind zu Fuß in 5 Minuten zu erreichen. Weiterführende Schulen sind über das öffentliche Verkehrsnetz nach Erlangen, Forchheim und Höchstadt im 20 Minutentakt über die Buslinien 205 und 247angebunden.
Geschäfte für den täglichen Bedarf, Ärzte und Apotheken sind am Ort zu Fuß erreichbar.
Infrastruktur (im Umkreis von 5 km):
Apotheke, Lebensmittel-Discount, Allgemeinmediziner, Kindergarten, Grundschule, Hauptschule, Realschule, Öffentliche Verkehrsmittel
Die Wohnung befindet sich ruhig gelegen in der Ortsmitte von Adelsdorf mit fantastischer Aussicht auf den Aischgrund.
Die nächste Bushaltestelle liegt in einer Entfernung von 3 Minuten Fußweg. Kindergärten, Grundschule, Ärzte sind zu Fuß in 5 Minuten zu erreichen. Weiterführende Schulen sind über das öffentliche Verkehrsnetz nach Erlangen, Forchheim und Höchstadt im 20 Minutentakt über die Buslinien 205 und 247angebunden.
Geschäfte für den täglichen Bedarf, Ärzte und Apotheken sind am Ort zu Fuß erreichbar.
Infrastruktur (im Umkreis von 5 km):
Apotheke, Lebensmittel-Discount, Allgemeinmediziner, Kindergarten, Grundschule, Hauptschule, Realschule, Öffentliche Verkehrsmittel