Leben im Denkmal -historisch-energieeffizient-ökologisch- DG-Wohnung rechts u.a.m.
893 €
Kaltmiete (netto)
59,56 m²
Wohnfläche
3
Zimmer
immobilien.de Nr.: 9455589
Objektnummer: 417814
Mietpreis & Nebenkosten
| Kaltmiete (netto) | 893 € |
| Nebenkosten | 149 € |
| Heizkosten enthalten | Ja |
Wohnfläche, Grundstück & Bausubstanz
| Wohnfläche | 59,56 m² |
| Zimmer | 3 |
| Baujahr | 1713 |
| Verfügbar ab | nach Absprache |
| Zustand | Teil Vollsaniert |
Energie
| Heizungsart | Fußbodenheizung |
| Energieträger/Befeuerung | Luft-Wärme-Pumpe |
Beschreibung der Immobilie
Leben im Denkmal. Einzigartig individuell wohnen in einer energieeffizienten ökologisch sanierten barocken Hofreite von 1713 mit insgesamt sieben Wohneinheiten zwischen 50 m² und 72 m² und einem im Innenhof gegenüberliegendem Kellerhaus.
Das historische Gebäude (Einzeldenkmal) wurde mit ökologischen Baustoffen komplett kernsaniert und gleichzeitig energieffizient mit einer modernen klimafreundlichen Technik ausgestattet. Sie beziehen günstigen Mieterstrom vom eigenen Dach (PV-Anlage), die ökologische Innendämmung mit Holzfaserplatten und Lehmputz erhält den Charakter des barocken Gebäudes mit hohen Räumen und einem tollem Raumklima.
Wichtig für Elektroautofahrer:
Wir bieten zwei Ladepunkte für günstiges Laden mit Solarstrom.
Die moderne zentrale Luft-Wasser-Wärmepumpe mit Wand- und Fussbodenheizung versorgt die barocke Hofreite. Dauerhaft niedrige Betriebskosten für alle Wohnungen sind somit gegeben.
Objektzustand: Erstbezug nach Sanierung
Das historische Gebäude (Einzeldenkmal) wurde mit ökologischen Baustoffen komplett kernsaniert und gleichzeitig energieffizient mit einer modernen klimafreundlichen Technik ausgestattet. Sie beziehen günstigen Mieterstrom vom eigenen Dach (PV-Anlage), die ökologische Innendämmung mit Holzfaserplatten und Lehmputz erhält den Charakter des barocken Gebäudes mit hohen Räumen und einem tollem Raumklima.
Wichtig für Elektroautofahrer:
Wir bieten zwei Ladepunkte für günstiges Laden mit Solarstrom.
Die moderne zentrale Luft-Wasser-Wärmepumpe mit Wand- und Fussbodenheizung versorgt die barocke Hofreite. Dauerhaft niedrige Betriebskosten für alle Wohnungen sind somit gegeben.
Objektzustand: Erstbezug nach Sanierung
Ausstattungsmerkmale
| Anzahl der Etagen im Haus | 3 |
| Inserat befindet sich im Stockwerk | 2 |
| Bad | 1 |
| Bad | Dusche |
| Boden | Parkett |
| Keller |
Keller, Duschbad, Parkett
Bemerkungen:
Alle sieben Wohneinheiten werden komplett kernsaniert. Aktuell können zwei Musterwohnungen im Dachgeschoss besichtigt werden.
Für ein angenehmes Raumklima auch im Sommer, sind die beiden Maisonett-Dachgeschosswohnungen mit modernen und hocheffizienten Split-Klimageräten ausgestattet.
Die beiden DG-Wohnungen können ab März 2026 gemietet werden.
Weitere vier Wohnungen im Haupthaus im EG und 1. OG sind ab März/April bezugsfertig.
2 Wohnungen sind bereits reserviert bzw. vermietet, 2 Wohnungen im EG und im 1.OG sind noch zu vermieten.
Nebst Mieterstrom ist das Haus mit einer Videosprechanlage, Schlüssellos mit einem Smartlock zugänglich. Internet Zugang wird kostengünstig zentral mit einem eigenen Zugang direkt zum Einzug bereitgestellt.
Die Besichtigung unserer zwei Musterwohnungen im Dachgeschoss kann ab sofort nach vorheriger Terminabstimmung erfolgen.
"Leben im Denkmal" ist unser Motto.
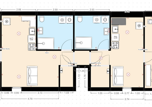
Grundrisse und Mietkonditionen der einzelnen Wohnungen können zur Verfügung gestellt werden.
Wenn Sie sich angesprochen fühlen, freuen wir uns über Ihre Kontaktaufahme.
Bemerkungen:
Alle sieben Wohneinheiten werden komplett kernsaniert. Aktuell können zwei Musterwohnungen im Dachgeschoss besichtigt werden.
Für ein angenehmes Raumklima auch im Sommer, sind die beiden Maisonett-Dachgeschosswohnungen mit modernen und hocheffizienten Split-Klimageräten ausgestattet.
Die beiden DG-Wohnungen können ab März 2026 gemietet werden.
Weitere vier Wohnungen im Haupthaus im EG und 1. OG sind ab März/April bezugsfertig.
2 Wohnungen sind bereits reserviert bzw. vermietet, 2 Wohnungen im EG und im 1.OG sind noch zu vermieten.
Nebst Mieterstrom ist das Haus mit einer Videosprechanlage, Schlüssellos mit einem Smartlock zugänglich. Internet Zugang wird kostengünstig zentral mit einem eigenen Zugang direkt zum Einzug bereitgestellt.
Die Besichtigung unserer zwei Musterwohnungen im Dachgeschoss kann ab sofort nach vorheriger Terminabstimmung erfolgen.
"Leben im Denkmal" ist unser Motto.
Grundrisse und Mietkonditionen der einzelnen Wohnungen können zur Verfügung gestellt werden.
Wenn Sie sich angesprochen fühlen, freuen wir uns über Ihre Kontaktaufahme.
Sonstige Informationen
Heizungsart: Fußbodenheizung
Energieträger: Luft-/Wasserwärme
Energieausweis nicht vorhanden
Impressum:
artifex Beteiligungs und Service AG
artifex Denkmal®
Nassauer Str. 3
65232 Taunusstein
Makleranfragen nicht erwünscht. Nach § 7 UWG sind unaufgeforderte Kontaktaufnahmen durch Makler ohne ausdrückliche Einwilligung des Empfängers verboten!
ohne-makler (OM) ist weder Anbieter noch Vermittler der Immobilie. OM betreibt eine Plattform für Immobilieneigentümer, die unter anderem die gleichzeitige Veröffentlichung einzelner Inserate auf mehreren Immobilienportalen ermöglicht. Die Inhalte dieser Inserate werden ausschließlich von Dritten verantwortet. Für die Richtigkeit, Vollständigkeit oder Rechtmäßigkeit der Angaben übernimmt OM keine Haftung. Hinweise auf mögliche Rechtsverstöße können jederzeit gemeldet werden und werden nach Prüfung umgehend bearbeitet.
Energieträger: Luft-/Wasserwärme
Energieausweis nicht vorhanden
Impressum:
artifex Beteiligungs und Service AG
artifex Denkmal®
Nassauer Str. 3
65232 Taunusstein
Makleranfragen nicht erwünscht. Nach § 7 UWG sind unaufgeforderte Kontaktaufnahmen durch Makler ohne ausdrückliche Einwilligung des Empfängers verboten!
ohne-makler (OM) ist weder Anbieter noch Vermittler der Immobilie. OM betreibt eine Plattform für Immobilieneigentümer, die unter anderem die gleichzeitige Veröffentlichung einzelner Inserate auf mehreren Immobilienportalen ermöglicht. Die Inhalte dieser Inserate werden ausschließlich von Dritten verantwortet. Für die Richtigkeit, Vollständigkeit oder Rechtmäßigkeit der Angaben übernimmt OM keine Haftung. Hinweise auf mögliche Rechtsverstöße können jederzeit gemeldet werden und werden nach Prüfung umgehend bearbeitet.
Karte wird geladen...
Objektstandort
Wormser Str. 47
55276 Oppenheim
- Rheinland-Pfalz
Lage & Infrastruktur
Objektstandort
Wormser Str. 47
55276 Oppenheim
- Rheinland-Pfalz
Die historische Stadt Oppenheim liegt im Landkreis Mainz-Bingen (Rheinland-Pfalz), eingebettet in die Hügellandschaft Rheinhessens zwischen Mainz und Worms. Als bedeutendes Mittelzentrum bietet die Stadt eine hervorragende Lebensqualität mit historischem Flair (Katharinenkirche, Weinbaumuseum) und moderner Infrastruktur.
Die Wormser Straße ist eine der zentralen Achsen Oppenheims, die den Stadtkern mit den südlichen Ausläufern verbindet. Die Lage ist geprägt durch eine Mischung aus Wohn- und Geschäftshäusern. In unmittelbarer Nähe befinden sich zahlreiche Einrichtungen des täglichen Bedarfs. Ein Schulungszentrum der KVHS Mainz-Bingen ist ebenfalls in der Wormser Straße ansässig. Öffentlicher Nahverkehr: Der Bahnhof Oppenheim (S-Bahn-Anbindung in Richtung Mainz/Frankfurt und Worms/Mannheim) ist fußläufig oder in wenigen Minuten mit dem Rad erreichbar. Die B9 verläuft unweit der Wormser Straße und stellt eine direkte Verbindung nach Mainz (ca. 20 Min.) und Worms (ca. 25 Min.) her. Entlang der Wormser Straße und in den angrenzenden Seitenstraßen finden sich öffentliche Parkmöglichkeiten. Die Immobilie liegt vorteilhaft für Wein- und Kulturliebhaber. Die berühmten Oppenheimer Weinlagen im direkten Umfeld, das Deutsche Weinbaumuseum als direkten Nachbar. Der historische Marktplatz ist bequem zu Fuß erreichbar.
Infrastruktur (im Umkreis von 5 km):
Apotheke, Lebensmittel-Discount, Allgemeinmediziner, Kindergarten, Grundschule, Hauptschule, Realschule, Gymnasium, Gesamtschule, Öffentliche Verkehrsmittel
Die Wormser Straße ist eine der zentralen Achsen Oppenheims, die den Stadtkern mit den südlichen Ausläufern verbindet. Die Lage ist geprägt durch eine Mischung aus Wohn- und Geschäftshäusern. In unmittelbarer Nähe befinden sich zahlreiche Einrichtungen des täglichen Bedarfs. Ein Schulungszentrum der KVHS Mainz-Bingen ist ebenfalls in der Wormser Straße ansässig. Öffentlicher Nahverkehr: Der Bahnhof Oppenheim (S-Bahn-Anbindung in Richtung Mainz/Frankfurt und Worms/Mannheim) ist fußläufig oder in wenigen Minuten mit dem Rad erreichbar. Die B9 verläuft unweit der Wormser Straße und stellt eine direkte Verbindung nach Mainz (ca. 20 Min.) und Worms (ca. 25 Min.) her. Entlang der Wormser Straße und in den angrenzenden Seitenstraßen finden sich öffentliche Parkmöglichkeiten. Die Immobilie liegt vorteilhaft für Wein- und Kulturliebhaber. Die berühmten Oppenheimer Weinlagen im direkten Umfeld, das Deutsche Weinbaumuseum als direkten Nachbar. Der historische Marktplatz ist bequem zu Fuß erreichbar.
Infrastruktur (im Umkreis von 5 km):
Apotheke, Lebensmittel-Discount, Allgemeinmediziner, Kindergarten, Grundschule, Hauptschule, Realschule, Gymnasium, Gesamtschule, Öffentliche Verkehrsmittel